Информационная система
«Ёшкин Кот»

Скачать базу одним архивом
Скачать обновления
История создания базы
Карта сайта

Скачать Типовой проект 704-1-20 Альбом II. Оборудование для светлых нефтепродуктов

Дата актуализации: 10.08.2017

Типовой проект 704-1-20

Альбом II. Оборудование для светлых нефтепродуктов

Обозначение: Типовой проект 704-1-20
Обозначение англ: 704-1-20
Статус:действует
Название рус.:Альбом II. Оборудование для светлых нефтепродуктов
Дата добавления в базу:01.10.2014
Дата актуализации:05.05.2017
Оглавление:Содержание альбома. Пояснительная записка
Технологическая часть
   Общий вид
   Спецификация
   Патрубок приемо-раздаточный ППР-100; ППР-150. Общий вид
   Патрубок для зачистки Dy100. Общий вид
   Монтажный патрубок замерного люка Dy150. Общий вид
   Монтажный патрубок Dy200 для установки дыхательной арматуры. Общий вид
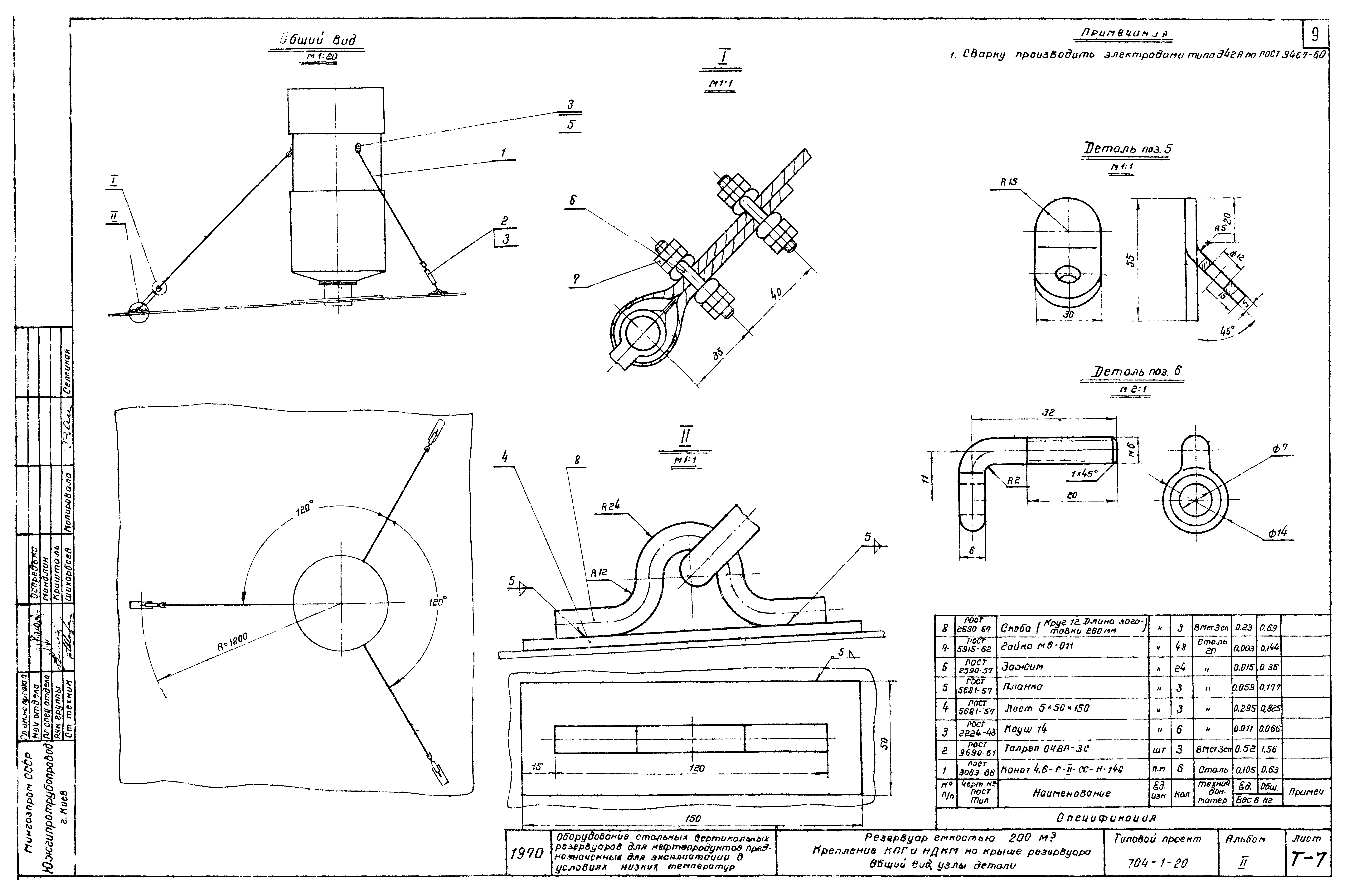
   Крепление КПГ и НДКМ на крыше резервуара. Общий вид. Узлы. Детали
   Монтажный патрубок сигнализатора уровня Dy100. Общий вид
   Люк-лаз Dy500 в I поясе стенки. Общий вид. Узлы. Детали
Электротехническая часть
   Грозозащита резервуара. Молниеприемник. Общий вид
   Грозозащита резервуара. Клемма типа К3-3. Общий вид
КИП и автоматика
   Спецификации
   Принципиальная схема автоматизации
   Установка указателя уровня УДУ-5П
   Установка сигнализатора уровня жидкости СУЖ-1с
   Установка пробоотборника сниженного ПСР-4
   Установка термометра ртутного технического углового. Общий вид
   Установка термометра ртутного технического углового. Детали
Разработан: ЮжГипротрубопровод Мингазпрома
Утверждён:26.12.1966 Союзметаллостройниипроект (Soyuzmetallostroyniiproject 21)
Расположен в:Техническая документация Строительство Справочные документы Типовые строительные конструкции, изделия и узлы Общероссийский строительный каталог Промышленные предприятия, здания и сооружения Предприятия, здания и сооружения складские Резервуары и склады для нефти и нефтепродуктов Резервуары стальные для нефти и нефтепродуктов
Типовой проект 704-1-20Типовой проект 704-1-20Типовой проект 704-1-20Типовой проект 704-1-20Типовой проект 704-1-20Типовой проект 704-1-20Типовой проект 704-1-20Типовой проект 704-1-20Типовой проект 704-1-20Типовой проект 704-1-20Типовой проект 704-1-20Типовой проект 704-1-20Типовой проект 704-1-20Типовой проект 704-1-20Типовой проект 704-1-20Типовой проект 704-1-20Типовой проект 704-1-20Типовой проект 704-1-20Типовой проект 704-1-20Типовой проект 704-1-20

© 2013 Ёшкин Кот :-) Карта сайта