Информационная система
«Ёшкин Кот»

Скачать базу одним архивом
Скачать обновления
История создания базы
Карта сайта

Скачать Типовой проект 224-1-426.84 Альбом I. Архитектурно-строительные и технологические чертежи

Дата актуализации: 10.08.2017

Типовой проект 224-1-426.84

Альбом I. Архитектурно-строительные и технологические чертежи

Обозначение: Типовой проект 224-1-426.84
Обозначение англ: 224-1-426.84
Статус:не определен законодательством
Название рус.:Альбом I. Архитектурно-строительные и технологические чертежи
Дата добавления в базу:01.10.2014
Дата актуализации:05.05.2017
Дата введения:10.05.1984
Оглавление:Содержание альбома
Пояснительная записка
Схема генерального плана
Архитектурно-строительные чертежи
   Общие данные
   Фасады 1 - 18; 18 - 1; П - А; Б - П
   Фасады 1 - 12; М - Е; Е - М; 12 - 5
   Фасады 1 - 18; 18 - 1; П - А; Б - П (вариант скатного покрытия)
   Фасады 1 - 12; М - Е; Е - М; 12 - 5 (вариант скатного покрытия)
   Блок 1. План 1 этажа
   Блок 2. План 1 этажа
   Блок 3. План 1 этажа
   Блок 4. План 1 этажа
   Блок 5. План 1 этажа
   Блок 1. План 2 этажа
   Блок 2. План 2 этажа
   Блок 3. План 2 этажа
   Блок 4. План 2 этажа
   Блок 5. План 2 этажа
   Разрезы 1-1, 2-2, 3-3, 4-4
   Разрезы 5-5…8-8
   Разрезы 1-1…7-7 (вариант скатного покрытия)
   Развертки вентканалов по осям Н, Д, 10, 3, 9, 6, М
   Развертки вентканалов по оси 15. Планы козырьков
   Развертки вентканалов по осям Г, Е
   Развертки вентканалов по оси Н
   План плоского покрытия
   Схема расположения элементов карнизных плит. Узлы покрытия 1…6
   План чердака
   План скатного покрытия
   Схема расположения элементов перемычек 1 этажа
   Схема расположения элементов перемычек 2 этажа
   Ведомость перемычек
   Спецификация перемычек
   Блок 1. Схема расположения элементов перекрытия
   Блок 2. Схема расположения элементов перекрытия
   Блок 3, 4. Схема расположения элементов перекрытия
   Блок 5. Схема расположения элементов перекрытия
   Блок 1. Схема расположения элементов покрытия
   Блок 2. Схема расположения элементов покрытия
   Блок 3, 4. Схема расположения элементов покрытия
   Блок 5. Схема расположения элементов покрытия
   Блок 1. Схема расположения элементов стропил
   Блок 2. Схема расположения элементов стропил
   Блок 3. Схема расположения элементов стропил
   Блок 4. Схема расположения элементов стропил. Разрез 14-14
   Блок 5. Схема расположения элементов стропил
   Разрезы стропил 1-1…13-13
   Узлы стропил 1…14
   Узлы стропил 15…24
   Вентиляционная камера. Слуховые окна ОС-1, ОС-2
   План 1 этажа. Экспликация помещений
   План 2 этажа. Экспликация помещений
   Ведомость отделки помещений
   Экспликация полов
   Устройство эстрады
   Монтажные схемы санузлов и гардероба. Схемы установки решеток Вр-1…Вр-8
   Деревянные изделия ИД-1, ДР-1, ДР-2, Вр-1…Вр-4
   Деревянные изделия СЩ-1…СЩ4, ДВ-1, СД-1…СД-6, Вр5…Вр7
   Монолитный железобетонный пояс ПЖМ-1
   Монолитный участок Ум-1, Ум-2
   Плита ППИ-1, опорная плита ОПИ-1
   Арматурные изделия. Сетки С-01, С-02, СК-1…СК-5. Каркасы КР-3…КР-5
   Металлические элементы ОГ-1…ОГ-4, Ст-1…Ст-3, ИС-9, МС-12, Р-2
   Металлические элементы МС-1…МС-8, ВРМ-1, ЖМ-1, Р-1, К-1
Технологические чертежи
   Общие данные
   Блок 1. План 1 этажа. Расстановка технологического оборудования
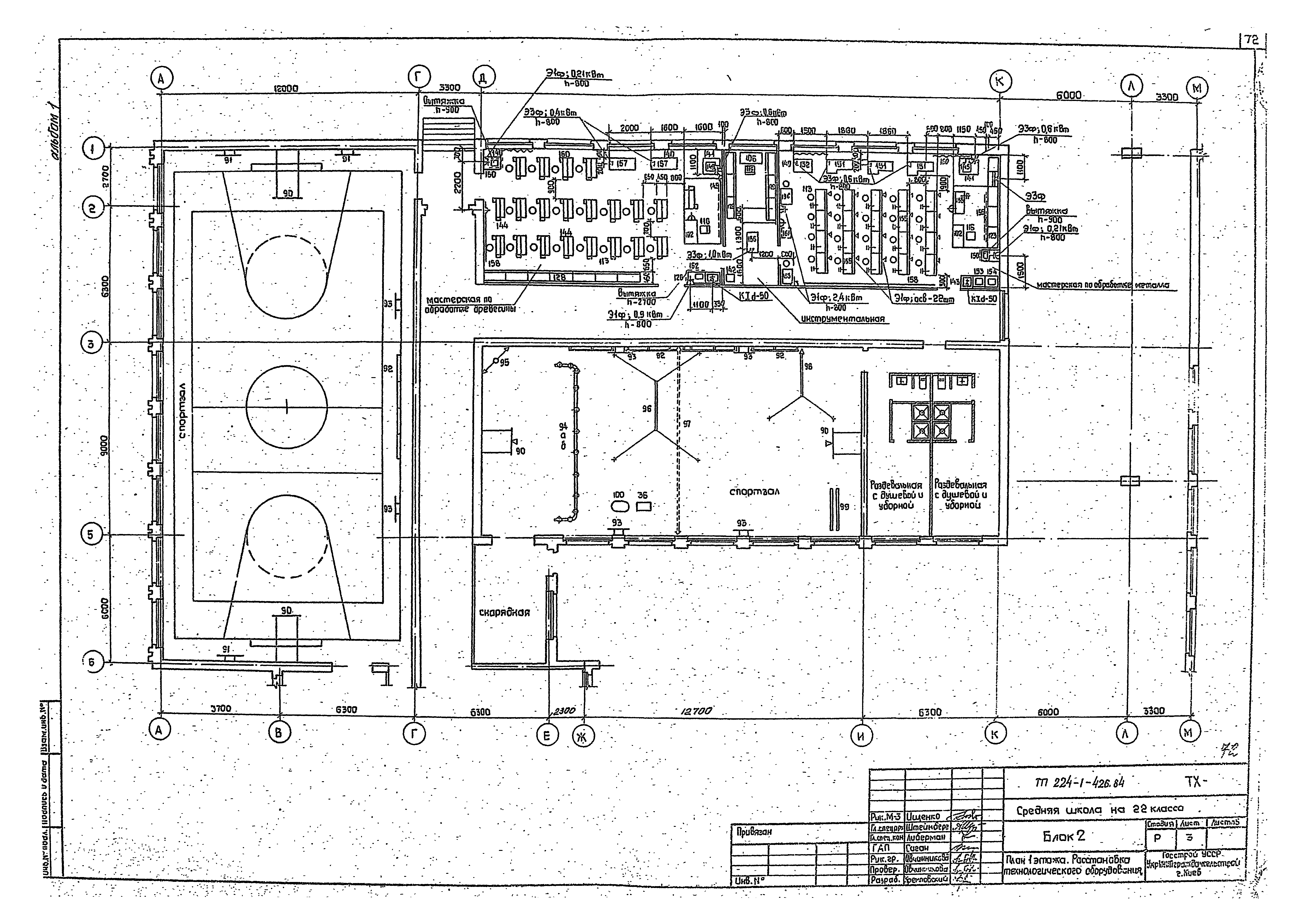
   Блок 2. План 1 этажа. Расстановка технологического оборудования
   Блок 3. План 1 этажа. Расстановка технологического оборудования
   Блок 4. План 1 этажа. Расстановка технологического оборудования
   Блок 5. План 1 этажа. Расстановка технологического оборудования
   Блок 1. План 2 этажа. Расстановка технологического оборудования
   Блок 2. План 2 этажа. Расстановка технологического оборудования
   Блок 3. План 2 этажа. Расстановка технологического оборудования
   Блок 4. План 2 этажа. Расстановка технологического оборудования
   Блок 5. План 2 этажа. Расстановка технологического оборудования
Разработан: УкрНИИПграждансельстроя
Утверждён:24.06.1983 Госстрой УССР (UkrSSR Gosstroy 56)
Расположен в:Техническая документация Строительство Справочные документы Типовые строительные конструкции, изделия и узлы Общероссийский строительный каталог Общественные здания для строительства в сельской местности Школы и внешкольные учреждения Общеобразовательные школы
Типовой проект 224-1-426.84Типовой проект 224-1-426.84Типовой проект 224-1-426.84Типовой проект 224-1-426.84Типовой проект 224-1-426.84Типовой проект 224-1-426.84Типовой проект 224-1-426.84Типовой проект 224-1-426.84Типовой проект 224-1-426.84Типовой проект 224-1-426.84Типовой проект 224-1-426.84Типовой проект 224-1-426.84Типовой проект 224-1-426.84Типовой проект 224-1-426.84Типовой проект 224-1-426.84Типовой проект 224-1-426.84Типовой проект 224-1-426.84Типовой проект 224-1-426.84Типовой проект 224-1-426.84Типовой проект 224-1-426.84Типовой проект 224-1-426.84Типовой проект 224-1-426.84Типовой проект 224-1-426.84Типовой проект 224-1-426.84Типовой проект 224-1-426.84Типовой проект 224-1-426.84Типовой проект 224-1-426.84Типовой проект 224-1-426.84Типовой проект 224-1-426.84Типовой проект 224-1-426.84Типовой проект 224-1-426.84Типовой проект 224-1-426.84Типовой проект 224-1-426.84Типовой проект 224-1-426.84Типовой проект 224-1-426.84Типовой проект 224-1-426.84Типовой проект 224-1-426.84Типовой проект 224-1-426.84Типовой проект 224-1-426.84Типовой проект 224-1-426.84Типовой проект 224-1-426.84Типовой проект 224-1-426.84Типовой проект 224-1-426.84Типовой проект 224-1-426.84Типовой проект 224-1-426.84Типовой проект 224-1-426.84Типовой проект 224-1-426.84Типовой проект 224-1-426.84Типовой проект 224-1-426.84Типовой проект 224-1-426.84Типовой проект 224-1-426.84Типовой проект 224-1-426.84Типовой проект 224-1-426.84Типовой проект 224-1-426.84Типовой проект 224-1-426.84Типовой проект 224-1-426.84Типовой проект 224-1-426.84Типовой проект 224-1-426.84Типовой проект 224-1-426.84Типовой проект 224-1-426.84Типовой проект 224-1-426.84Типовой проект 224-1-426.84Типовой проект 224-1-426.84Типовой проект 224-1-426.84Типовой проект 224-1-426.84Типовой проект 224-1-426.84Типовой проект 224-1-426.84Типовой проект 224-1-426.84Типовой проект 224-1-426.84Типовой проект 224-1-426.84Типовой проект 224-1-426.84Типовой проект 224-1-426.84Типовой проект 224-1-426.84Типовой проект 224-1-426.84Типовой проект 224-1-426.84Типовой проект 224-1-426.84Типовой проект 224-1-426.84Типовой проект 224-1-426.84Типовой проект 224-1-426.84Типовой проект 224-1-426.84

© 2013 Ёшкин Кот :-) Карта сайта