Скачать Типовой проект 223-1-419.84 Альбом II. Чертежи санитарно-технические, электрооборудования, связи и сигнализации, автоматикиДата актуализации: 10.08.2017 Типовой проект 223-1-419.84
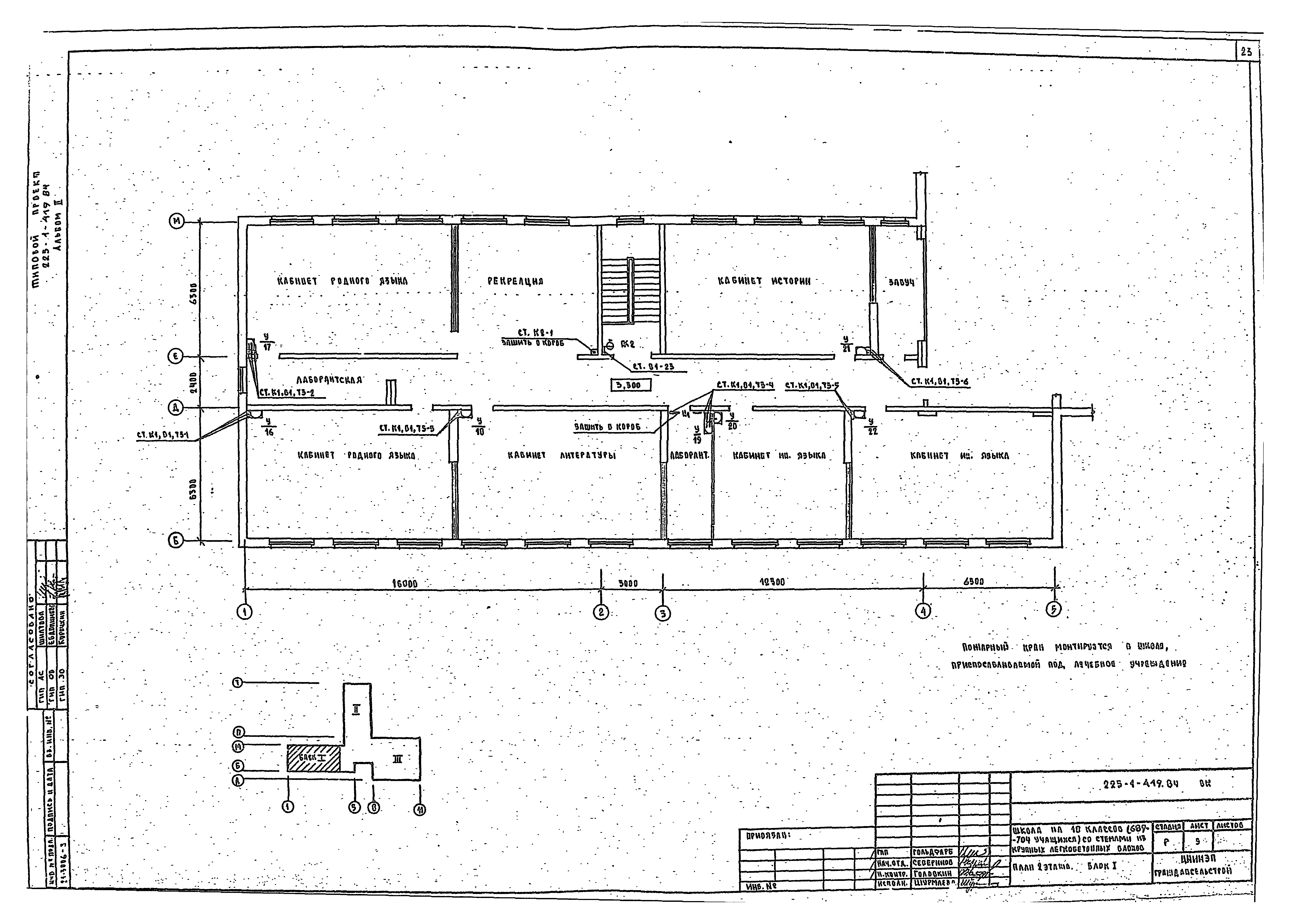
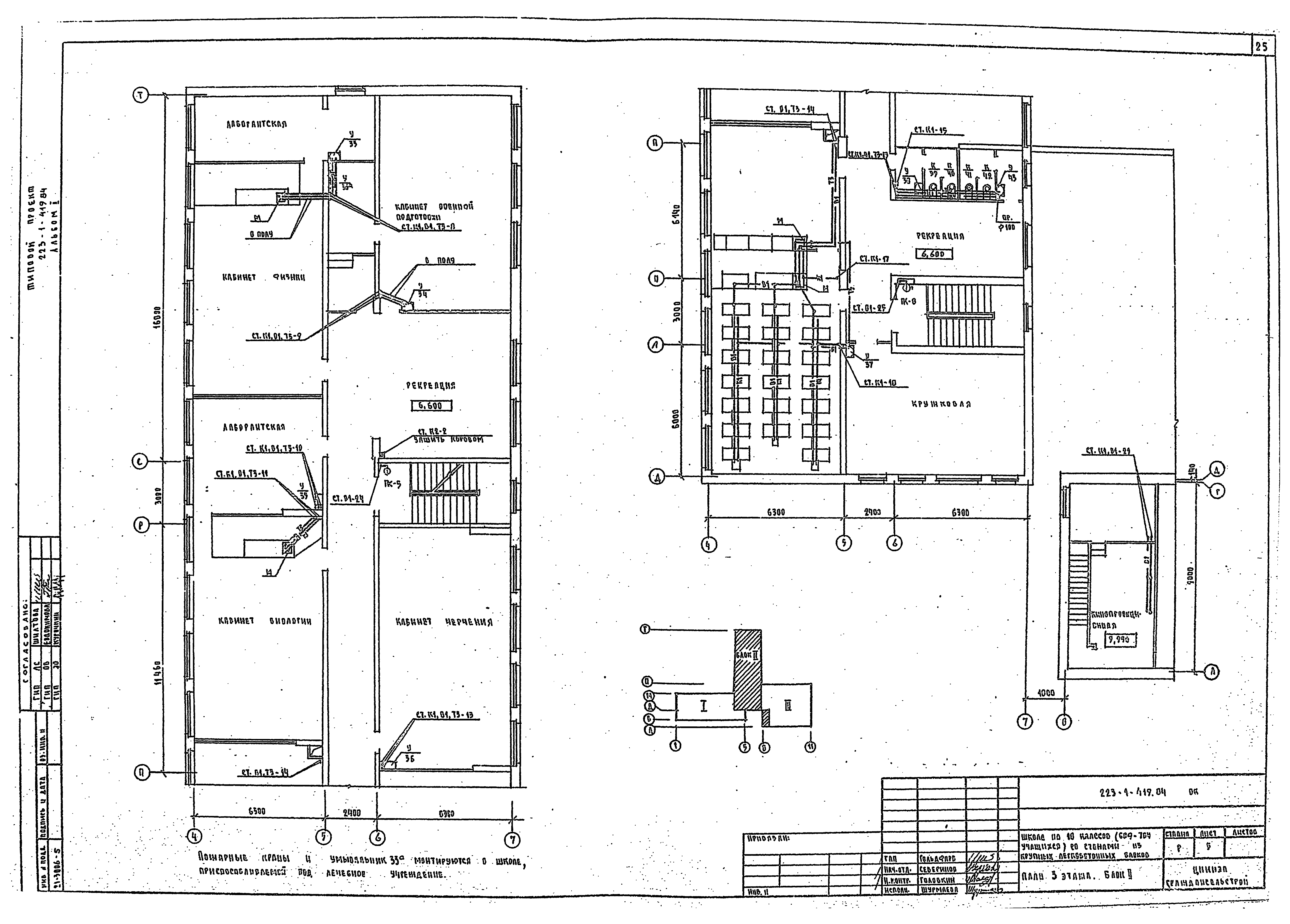
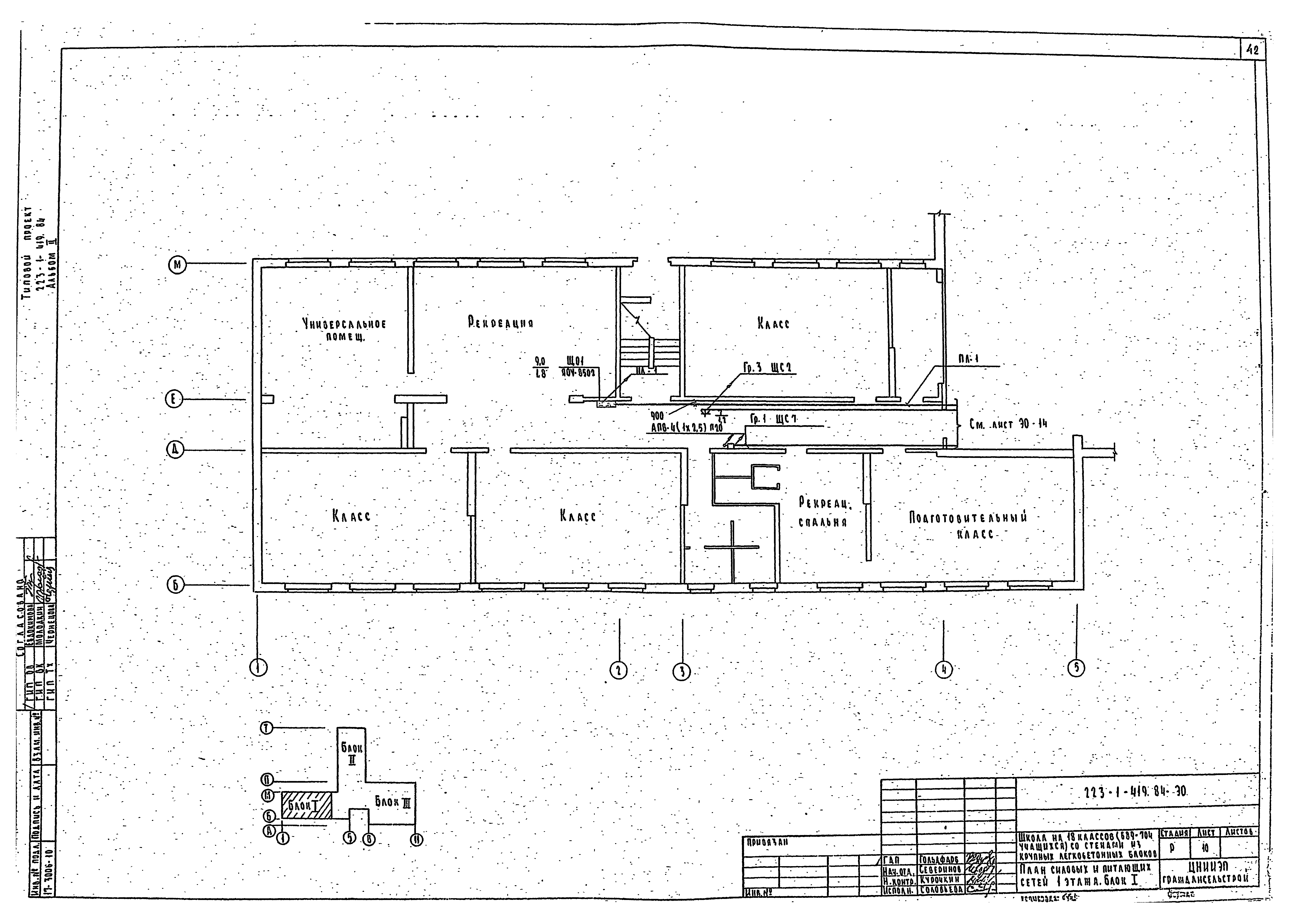
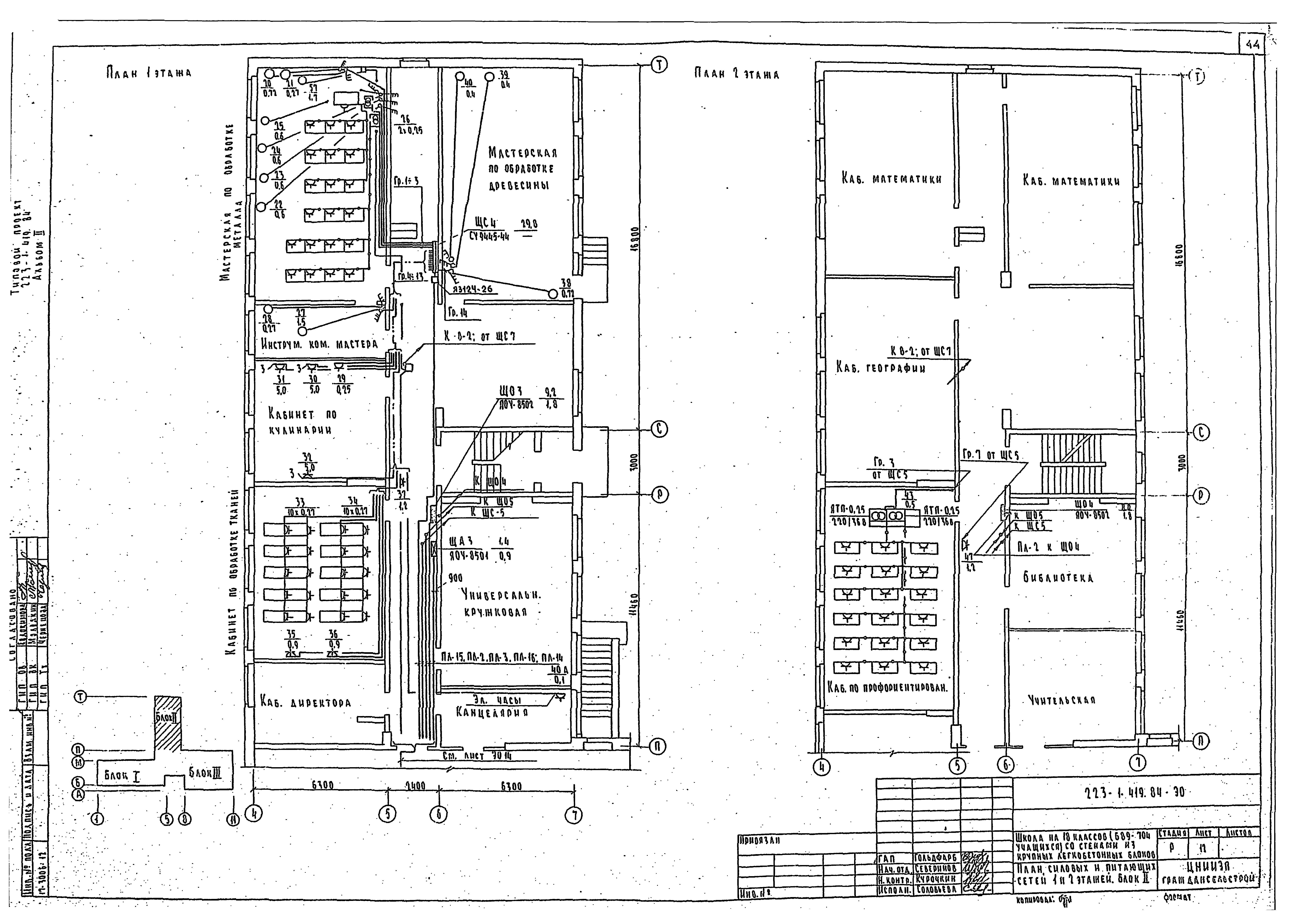
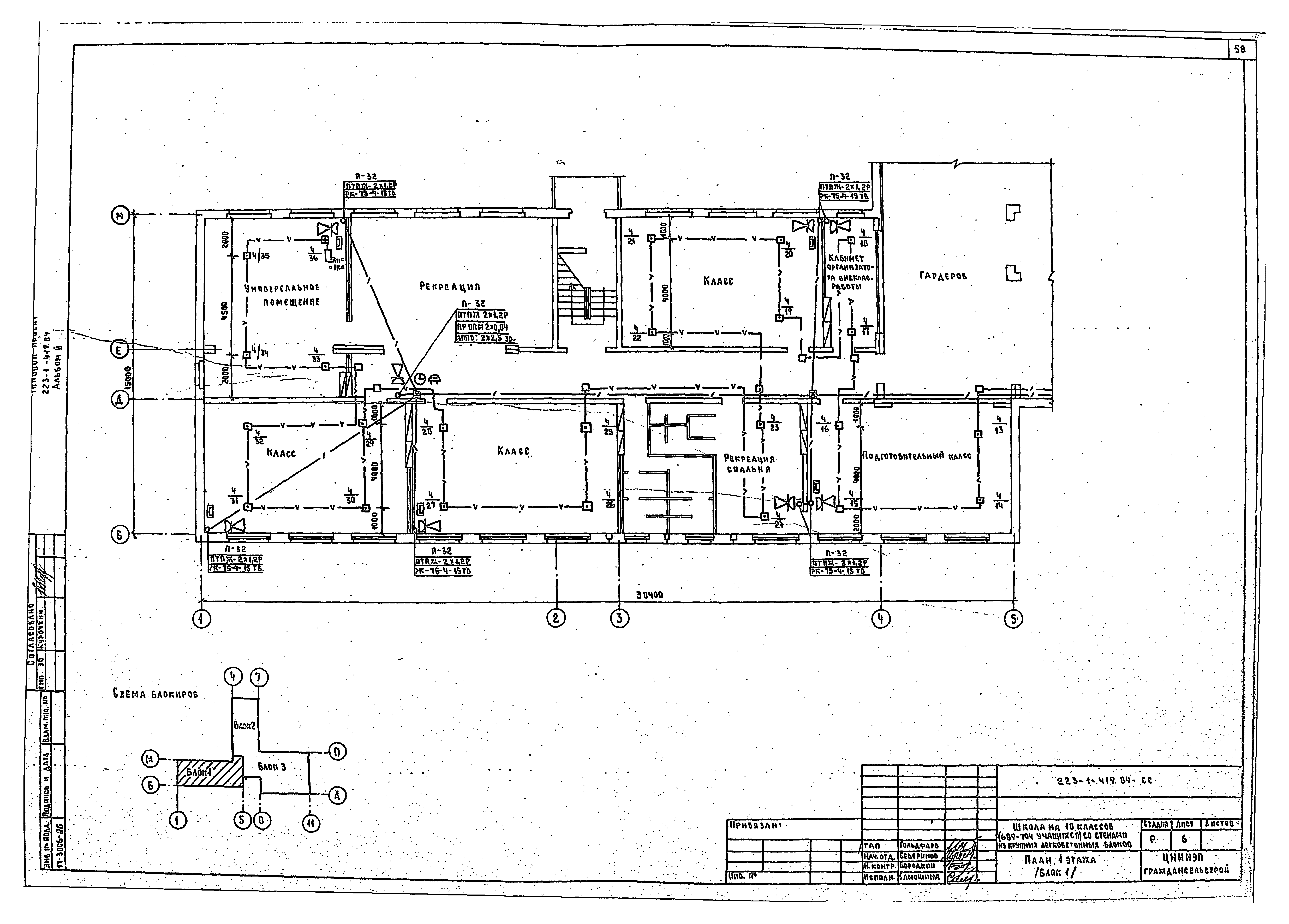
Альбом II. Чертежи санитарно-технические, электрооборудования, связи и сигнализации, автоматикиОбозначение: | Типовой проект 223-1-419.84 | Обозначение англ: | 223-1-419.84 | Статус: | не определен законодательством | Название рус.: | Альбом II. Чертежи санитарно-технические, электрооборудования, связи и сигнализации, автоматики | Дата добавления в базу: | 01.10.2014 | Дата актуализации: | 05.05.2017 | Дата введения: | 24.01.1985 | Оглавление: | Содержание альбома Отопление и вентиляция Общие данные План 1 этажа. Блок I План 1 и 2 этажей. Блок II План 1 этажа. Блок III План 2 этажа. Блок I План 2 этажа. Блок III План 3 этажа. План кинопроекционной Схема системы отопления 1, 2 Схема системы отопления 3, 4 Узел управления. Схема системы теплоснабжения установок П1 - П4 Схемы систем П1, П2, П3, П4 Схемы систем В3, В4, В5, В6 Схемы систем ВЕ1 - ВЕ41 Установка системы В1. Схема системы В1 Установки систем П1 - П4 Воздуховод из асбестоцементных листов Водопровод и канализация Общие данные План 1 этажа. План подвала. Блок I План 2 этажа. Блок I План 1 и 2 этажей. Блок II План 3 этажа. Блок II План 1 этажа. Блок III План 2 этажа. Блок III Схемы систем В1, Т3 Схемы системы В1, Т3, Т4 Схемы систем К1 Схемы систем К1, К2, К3 Электрооборудование Общие данные Расчетная схема питающих сетей План осветительных питающих и силовых сетей подвала План осветительных сетей 1 этажа. Блок I План осветительных сетей 2 этажа. Блок I План осветительных сетей 1 и 2 этажей. Блок II План осветительных сетей 3 этажа. Блок II План осветительных сетей 1 этажа. Блок III План осветительных сетей 2 этажа. Блок III План силовых и питающий сетей 1 этажа. Блок I План силовых и питающий сетей 2 этажа. Блок I План силовых и питающий сетей 1 и 2 этажей. Блок II План силовых и питающий сетей 3 этажа. Блок II План силовых и питающий сетей 1 этажа. Блок III План силовых и питающий сетей 2 этажа. Блок III Расчетная схема осветительных сетей Расчетная схема силовых сетей Опросный лист Связь и сигнализация Общие данные Схема расположения устройств связи План 1 этажа. Блок III План 1 и 2 этажей. Блок II План 1 этажа. Блок I План 2 этажа. Блок III План 2 этажа. Блок I План 3 этажа. Блок II Подпольная коробка Автоматика вентиляции Общие данные Функциональная схема П-3 Система №1. Схема принципиальная электрическая управления Система №1. Схема принципиальная электрическая регулирования Схема подключений. Схема расположений Функциональная схема П-2 Схема принципиальная электрическая управления Схема подключений. Схема расположений | Разработан: | ЦНИИЭП граждансельстрой
| Утверждён: | 19.08.1983 Госгражданстрой (Gosgrazhdanstroy 244)
| Расположен в: |
|
                                                                      
|