Информационная система
«Ёшкин Кот»

Скачать базу одним архивом
Скачать обновления
История создания базы
Карта сайта

Скачать Типовой проект 221-1-25-372 Альбом I. Архитектурно-строительные и технологические чертежи

Дата актуализации: 10.08.2017

Типовой проект 221-1-25-372

Альбом I. Архитектурно-строительные и технологические чертежи

Обозначение: Типовой проект 221-1-25-372
Обозначение англ: 221-1-25-372
Статус:действует
Название рус.:Альбом I. Архитектурно-строительные и технологические чертежи
Дата добавления в базу:01.10.2014
Дата актуализации:05.05.2017
Оглавление:Заглавный лист
Генплан. Технико-экономические показатели
Характеристика проекта
Архитектурно-строительные чертежи ниже отм. 0.000
   Блок "Г". Схемы нагрузок на фундаменты. План фундаментов
   План разбивочных осей. Узлы 1 - 5
   Блоки "А", "В". План фундаментов Rр = 1,5 кгс/кв. см
   Блок "Б". План фундаментов Rр = 1,5; 2,5 кгс/кв. см
   Блоки "А", "В". План фундаментов Rр = 2,9 кгс/кв. см
   Блок "Б". План фундаментов Rр = 2,0 кгс/кв. см
   Блоки "А", "В". План фундаментов Rр = 2,5 кгс/кв. см
   Блоки "А", "Б", "В", "Г". План технического подполья
   Развертки фундаментов
   Блоки "А", "В". Венткамеры
   Блок "А". Венткамеры
   Блоки "А", "Б", "В". План перекрытия над техническим подпольем
   Спецификация здания ниже отм. 0.000. Узлы и сечения
   Спецификация здания ниже отм. 0.000
Архитектурно-строительные чертежи выше отм. 0.000
   Внутренний дворик. Конструкция приточной шахты
   Фасады 1 - 14; 14 - 1; С - В; В - С; А - Р; Р - А
   Фасады 1 - 14; 14 - 1; С - В; В - С; А - Р; Р - А (варианты)
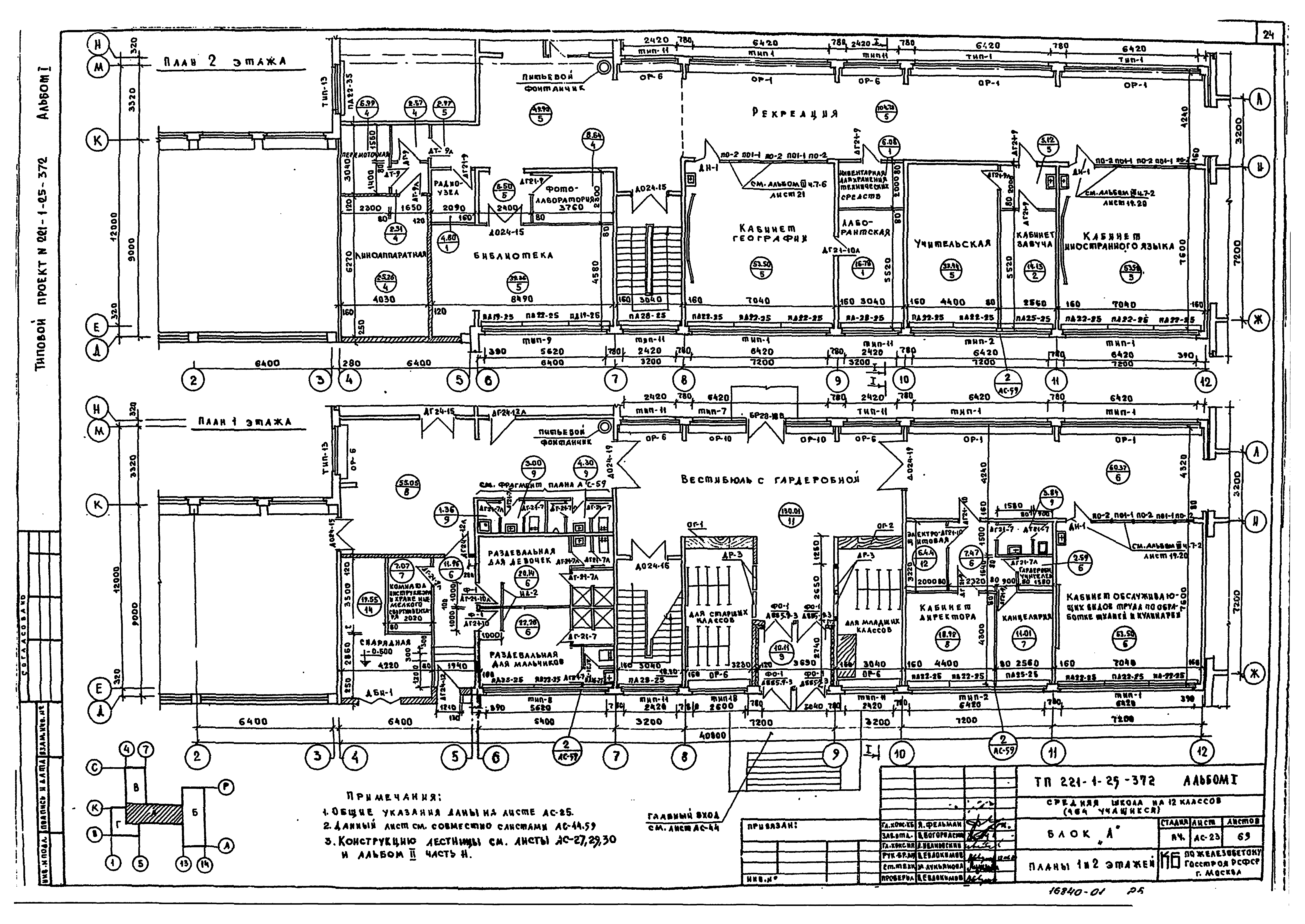
   Блок "А". Планы 1 и 2 этажей
   Блок "Б". Планы 1 и 2 этажей
   Блок "В". Планы 1 и 2 этажей
   Блок "Г". Планы 1 и 2 этажей
   Разрезы I-I - V-V
   Монтажные фасады
   Блок "А". Монтажные планы 1 и 2 этажей
   Блок "Б". Монтажные планы 1 и 2 этажей
   Блок "В". Монтажные планы 1 и 2 этажей
   Блок "Г". Монтажные планы 1 и 2 этажей
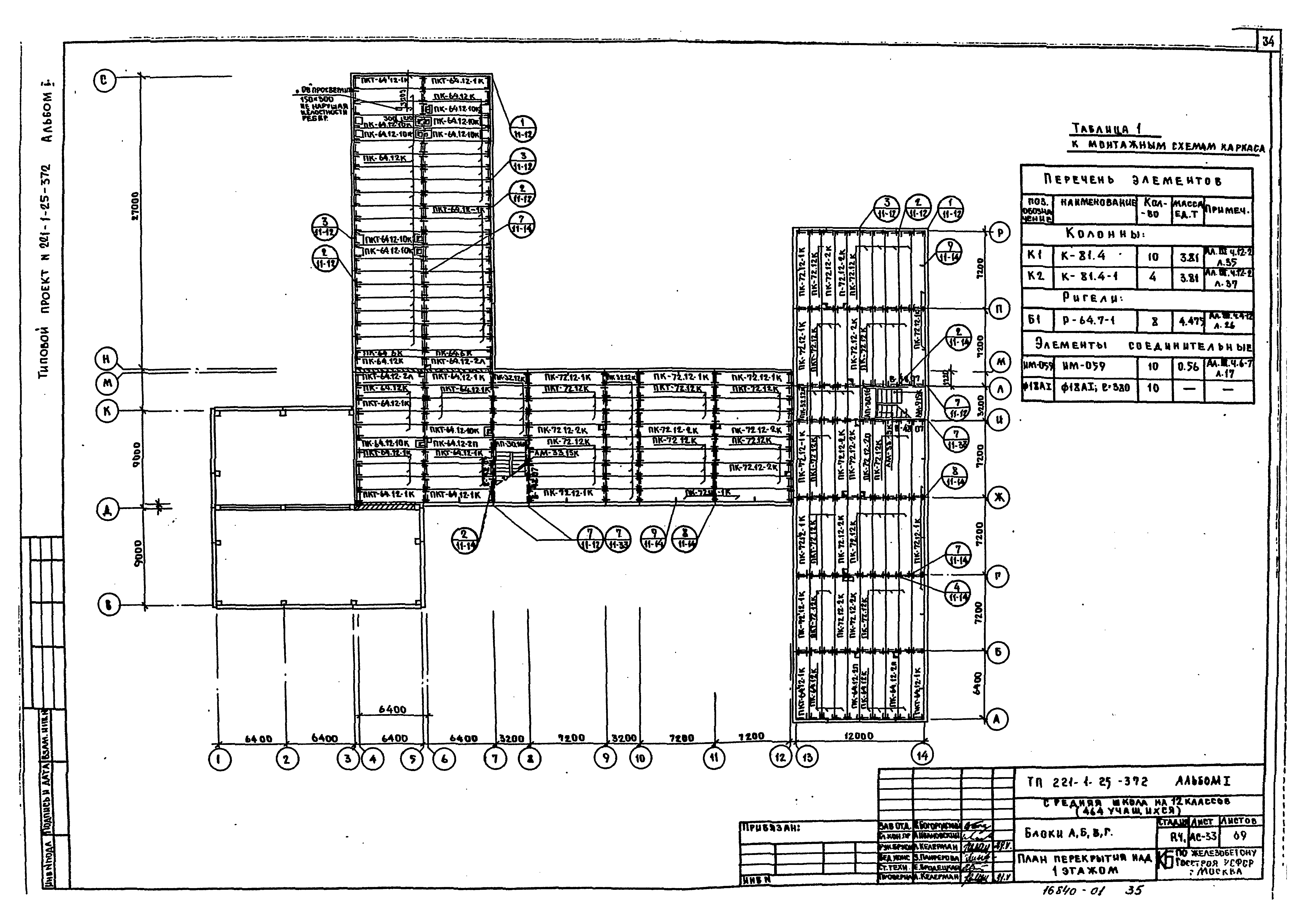
   Планы перекрытий над 1 этажом
   Блоки "А", "Б", "В", "Г". План покрытия
   Блоки "А", "Б", "В", "Г". План кровли
   Блок "А". Развертки внутренних стен
   Блоки "А", "Б", "В", "Г". Развертки внутренних стен
   Детали крепления декоративных элементов. Монтажные узлы
   Блок "Г". Конструкция пола в залах. План раскладки объемных щитов
   Схема входов. Входы 2, 3, 4, 5, 7 (конструкция)
   Вход 8. Узлы 1 - 3; ДИ-1; ФГ-1; ФГ-2; ФО-1
   Входы 6, 8
   Входы 3, 6. Узлы 1 - 9
   Главный вход
   Главный вход (вариант)
   Главный вход. Конструкция
   Блок "А". Главный вход. Конструкция (вариант)
   Конструкция эстрады
   Ограждение оконных проемов в спортивном зале
   Крепление баскетбольных щитов и монорельса
   Раскладка оконных блоков
   Ведомость отделки помещений. Ведомость отделки фасадов
   Ограждения гардеробной ОГ-1, ОГ-2. Скамья гардеробной С-1
   Развертки внутренних стен (интерьеры)
   Тепловая завеса. Окно в моечную ОМ-1. Фрагмент стены по оси "И" при обеденном зале
   Остекленные перегородки. Узлы 1 - 16
   Декоративные решетки ДР-1 и ДР-2. Подиумы в лабораториях и мастерской
   Подвесной потолок в актовом зале (вариант)
   Фрагмент плана 1 этажа. Блок "А". Фрагмент плана 1 этажа. Блок "Б". Экраны ограждения в санузлах
   Ограждения радиаторов ОР-9 - ОР-13
   Декоративная решетка ДР-3
   Монтажные узлы 1 - 7
   Монтажные узлы. Защитные сетки, крепление киноэкрана
   Монтажные узлы. Детали крепления коробов
   Спецификация здания выше отм. 0.000
Технологические чертежи
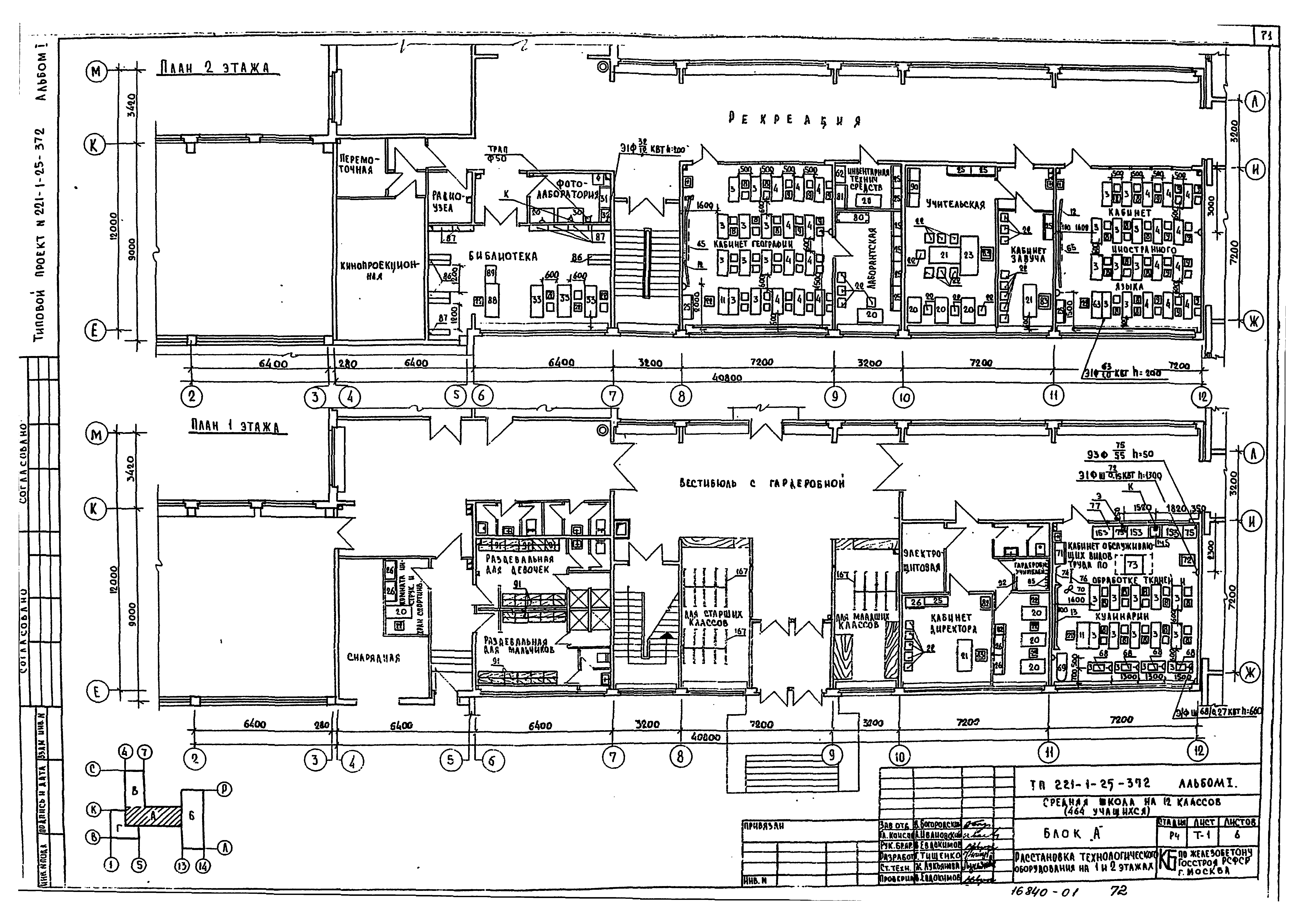
   Блок "А". Расстановка технологического оборудования на 1 и 2 этажах
   Блок "Б". Расстановка технологического оборудования на 1 и 2 этажах
   Блоки "В", "Г". Расстановка технологического оборудования. Технология спортзала
   Блок "В". Расстановка технологического оборудования
   Спецификация технологического оборудования
Кинотехнологические чертежи
   Заглавный лист
   План и разрезы актового зала
   План кинопроекционной
   Разрезы кинопроекционной
   Схема внешних соединений электросилового и кинопроекционного оборудования
   Схема внешних соединений звуковоспроизводящего устройства
   Раскладка стальных труб в кинопроекционной
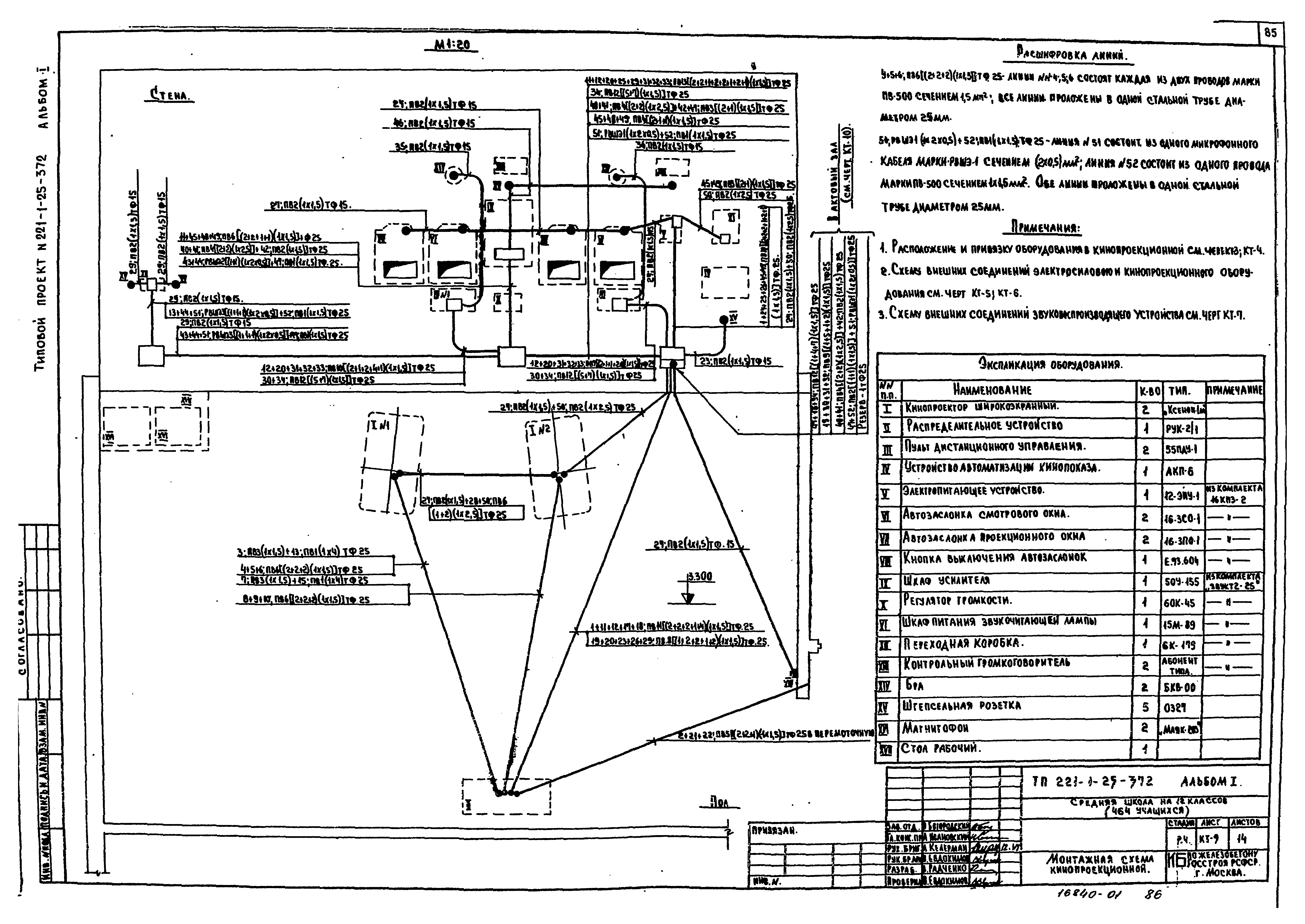
   Монтажная схема кинопроекционной
   Монтажная схема актового зала
   Киноэкран. Общий вид
   Киноэкран. Общий вид. Узлы
   Каркас киноэкрана. Общий вид
Разработан: КБ по железобетону Госстроя РСФСР
Утверждён:31.01.1980 Госстрой РСФСР (Russian Federation Gosstroy 7)
Расположен в:Техническая документация Строительство Справочные документы Типовые строительные конструкции, изделия и узлы Общероссийский строительный каталог Общественные здания для строительства в сельской местности Школы и внешкольные учреждения Общеобразовательные школы
Типовой проект 221-1-25-372Типовой проект 221-1-25-372Типовой проект 221-1-25-372Типовой проект 221-1-25-372Типовой проект 221-1-25-372Типовой проект 221-1-25-372Типовой проект 221-1-25-372Типовой проект 221-1-25-372Типовой проект 221-1-25-372Типовой проект 221-1-25-372Типовой проект 221-1-25-372Типовой проект 221-1-25-372Типовой проект 221-1-25-372Типовой проект 221-1-25-372Типовой проект 221-1-25-372Типовой проект 221-1-25-372Типовой проект 221-1-25-372Типовой проект 221-1-25-372Типовой проект 221-1-25-372Типовой проект 221-1-25-372Типовой проект 221-1-25-372Типовой проект 221-1-25-372Типовой проект 221-1-25-372Типовой проект 221-1-25-372Типовой проект 221-1-25-372Типовой проект 221-1-25-372Типовой проект 221-1-25-372Типовой проект 221-1-25-372Типовой проект 221-1-25-372Типовой проект 221-1-25-372Типовой проект 221-1-25-372Типовой проект 221-1-25-372Типовой проект 221-1-25-372Типовой проект 221-1-25-372Типовой проект 221-1-25-372Типовой проект 221-1-25-372Типовой проект 221-1-25-372Типовой проект 221-1-25-372Типовой проект 221-1-25-372Типовой проект 221-1-25-372Типовой проект 221-1-25-372Типовой проект 221-1-25-372Типовой проект 221-1-25-372Типовой проект 221-1-25-372Типовой проект 221-1-25-372Типовой проект 221-1-25-372Типовой проект 221-1-25-372Типовой проект 221-1-25-372Типовой проект 221-1-25-372Типовой проект 221-1-25-372Типовой проект 221-1-25-372Типовой проект 221-1-25-372Типовой проект 221-1-25-372Типовой проект 221-1-25-372Типовой проект 221-1-25-372Типовой проект 221-1-25-372Типовой проект 221-1-25-372Типовой проект 221-1-25-372Типовой проект 221-1-25-372Типовой проект 221-1-25-372Типовой проект 221-1-25-372Типовой проект 221-1-25-372Типовой проект 221-1-25-372Типовой проект 221-1-25-372Типовой проект 221-1-25-372Типовой проект 221-1-25-372Типовой проект 221-1-25-372Типовой проект 221-1-25-372Типовой проект 221-1-25-372Типовой проект 221-1-25-372Типовой проект 221-1-25-372Типовой проект 221-1-25-372Типовой проект 221-1-25-372Типовой проект 221-1-25-372Типовой проект 221-1-25-372Типовой проект 221-1-25-372Типовой проект 221-1-25-372Типовой проект 221-1-25-372Типовой проект 221-1-25-372Типовой проект 221-1-25-372Типовой проект 221-1-25-372Типовой проект 221-1-25-372Типовой проект 221-1-25-372Типовой проект 221-1-25-372Типовой проект 221-1-25-372Типовой проект 221-1-25-372Типовой проект 221-1-25-372Типовой проект 221-1-25-372Типовой проект 221-1-25-372Типовой проект 221-1-25-372Типовой проект 221-1-25-372

© 2013 Ёшкин Кот :-) Карта сайта