Информационная система
«Ёшкин Кот»

Скачать базу одним архивом
Скачать обновления
История создания базы
Карта сайта

Скачать Типовой проект 85-012/1.2 Э.1-1. Электрооборудование без электроплит ниже и выше отм. 0.000

Дата актуализации: 10.08.2017

Типовой проект 85-012/1.2

Э.1-1. Электрооборудование без электроплит ниже и выше отм. 0.000

Обозначение: Типовой проект 85-012/1.2
Обозначение англ: 85-012/1.2
Статус:не определен законодательством
Название рус.:Э.1-1. Электрооборудование без электроплит ниже и выше отм. 0.000
Дата добавления в базу:01.10.2014
Дата актуализации:05.05.2017
Дата введения:29.12.1980
Оглавление:Общие данные
Общие указания
Условные обозначения
Спецификация
Однолинейная расчетная схема
Питающая сеть и освещение подполья
Освещение вариантов 1-го этажа
Освещение типового этажа
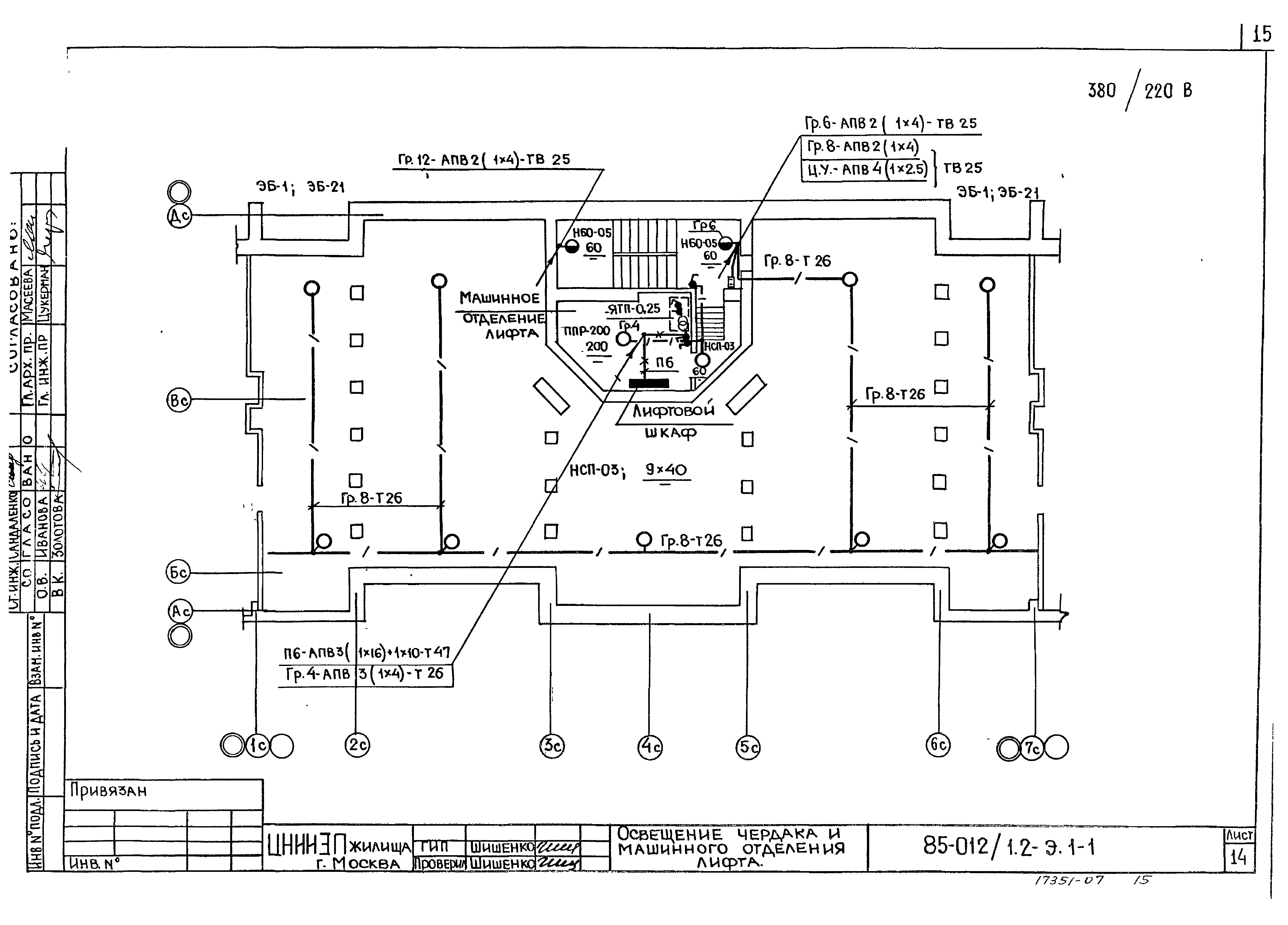
Освещение чердака и машинного отделения лифта
Размещение вводно-распределительного устройства. Вывод питающих и групповых линий
Закладные устройства для электропроводок в перегородках
Узлы прокладки групповой электросети
Элементы блокировки по подполью
Элементы блокировки выше "0"
Опросный лист
Разработан: ЦНИИЭП жилища
Утверждён:31.12.1969 Госгражданстрой (Gosgrazhdanstroy 280)
Расположен в:Техническая документация Строительство Справочные документы Типовые строительные конструкции, изделия и узлы Общероссийский строительный каталог Жилые здания для строительства в городах и поселках городского типа Обычные условия Жилые дома со стенами из местных материалов Серия 85
Типовой проект 85-012/1.2Типовой проект 85-012/1.2Типовой проект 85-012/1.2Типовой проект 85-012/1.2Типовой проект 85-012/1.2Типовой проект 85-012/1.2Типовой проект 85-012/1.2Типовой проект 85-012/1.2Типовой проект 85-012/1.2Типовой проект 85-012/1.2Типовой проект 85-012/1.2Типовой проект 85-012/1.2Типовой проект 85-012/1.2Типовой проект 85-012/1.2Типовой проект 85-012/1.2Типовой проект 85-012/1.2Типовой проект 85-012/1.2Типовой проект 85-012/1.2Типовой проект 85-012/1.2Типовой проект 85-012/1.2Типовой проект 85-012/1.2Типовой проект 85-012/1.2Типовой проект 85-012/1.2Типовой проект 85-012/1.2Типовой проект 85-012/1.2

© 2013 Ёшкин Кот :-) Карта сайта