Информационная система
«Ёшкин Кот»

Скачать базу одним архивом
Скачать обновления
История создания базы
Карта сайта

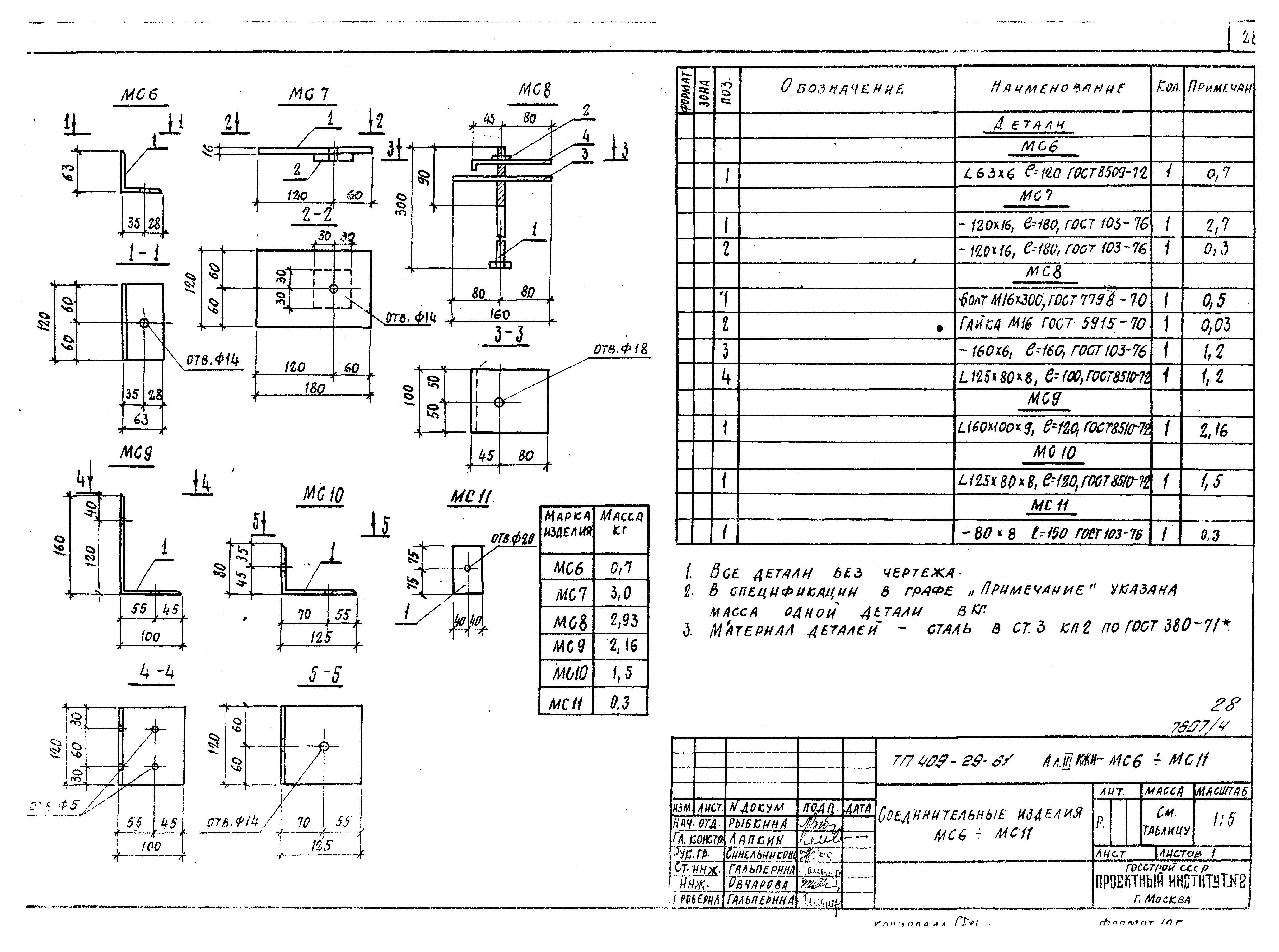
Скачать Типовой проект 409-29-61 Альбом III. Строительные изделия

Дата актуализации: 10.08.2017

Типовой проект 409-29-61

Альбом III. Строительные изделия

Обозначение: Типовой проект 409-29-61
Обозначение англ: 409-29-61
Статус:действует
Название рус.:Альбом III. Строительные изделия
Дата добавления в базу:01.10.2014
Дата актуализации:05.05.2017
Оглавление:Содержание альбома
Фундаменты
Подколонник
Колонны
Балки
Плиты
Кольца стеновые
Сетки арматурные
Каркасы пространственные
Каркасы плоские
Анкера. Соединительное изделие
Закладные изделия. Крышка люка
Изделия закладные
Соединительные изделия
Фланцы
Воронки
Щит стеновой
Разработан: Гипростроммашина
Утверждён:02.07.1979 Госстрой СССР (Государственный комитет Совета Министров СССР по делам строительства) (USSR Gosstroy 35)
Расположен в:Техническая документация Строительство Справочные документы Типовые строительные конструкции, изделия и узлы Общероссийский строительный каталог Промышленные предприятия, здания и сооружения Предприятия, здания и сооружения складские Склады строительных материалов и изделий
Типовой проект 409-29-61Типовой проект 409-29-61Типовой проект 409-29-61Типовой проект 409-29-61Типовой проект 409-29-61Типовой проект 409-29-61Типовой проект 409-29-61Типовой проект 409-29-61Типовой проект 409-29-61Типовой проект 409-29-61Типовой проект 409-29-61Типовой проект 409-29-61Типовой проект 409-29-61Типовой проект 409-29-61Типовой проект 409-29-61Типовой проект 409-29-61Типовой проект 409-29-61Типовой проект 409-29-61Типовой проект 409-29-61Типовой проект 409-29-61Типовой проект 409-29-61Типовой проект 409-29-61Типовой проект 409-29-61Типовой проект 409-29-61Типовой проект 409-29-61Типовой проект 409-29-61Типовой проект 409-29-61Типовой проект 409-29-61Типовой проект 409-29-61Типовой проект 409-29-61Типовой проект 409-29-61Типовой проект 409-29-61Типовой проект 409-29-61Типовой проект 409-29-61Типовой проект 409-29-61Типовой проект 409-29-61Типовой проект 409-29-61Типовой проект 409-29-61Типовой проект 409-29-61Типовой проект 409-29-61Типовой проект 409-29-61Типовой проект 409-29-61Типовой проект 409-29-61Типовой проект 409-29-61Типовой проект 409-29-61Типовой проект 409-29-61Типовой проект 409-29-61Типовой проект 409-29-61

© 2013 Ёшкин Кот :-) Карта сайта