Информационная система
«Ёшкин Кот»

Скачать базу одним архивом
Скачать обновления
История создания базы
Карта сайта

Скачать Типовые проектные решения 320-069.86 Альбом II. Изделия железобетонные. Изделия металлические

Дата актуализации: 10.08.2017

Типовые проектные решения 320-069.86

Альбом II. Изделия железобетонные. Изделия металлические

Обозначение: Типовые проектные решения 320-069.86
Обозначение англ: 320-069.86
Статус:cправочные материалы, мп, тпр
Название рус.:Альбом II. Изделия железобетонные. Изделия металлические
Дата добавления в базу:01.10.2014
Дата актуализации:05.05.2017
Дата введения:09.12.1985
Оглавление:Содержание альбома
Технические условия
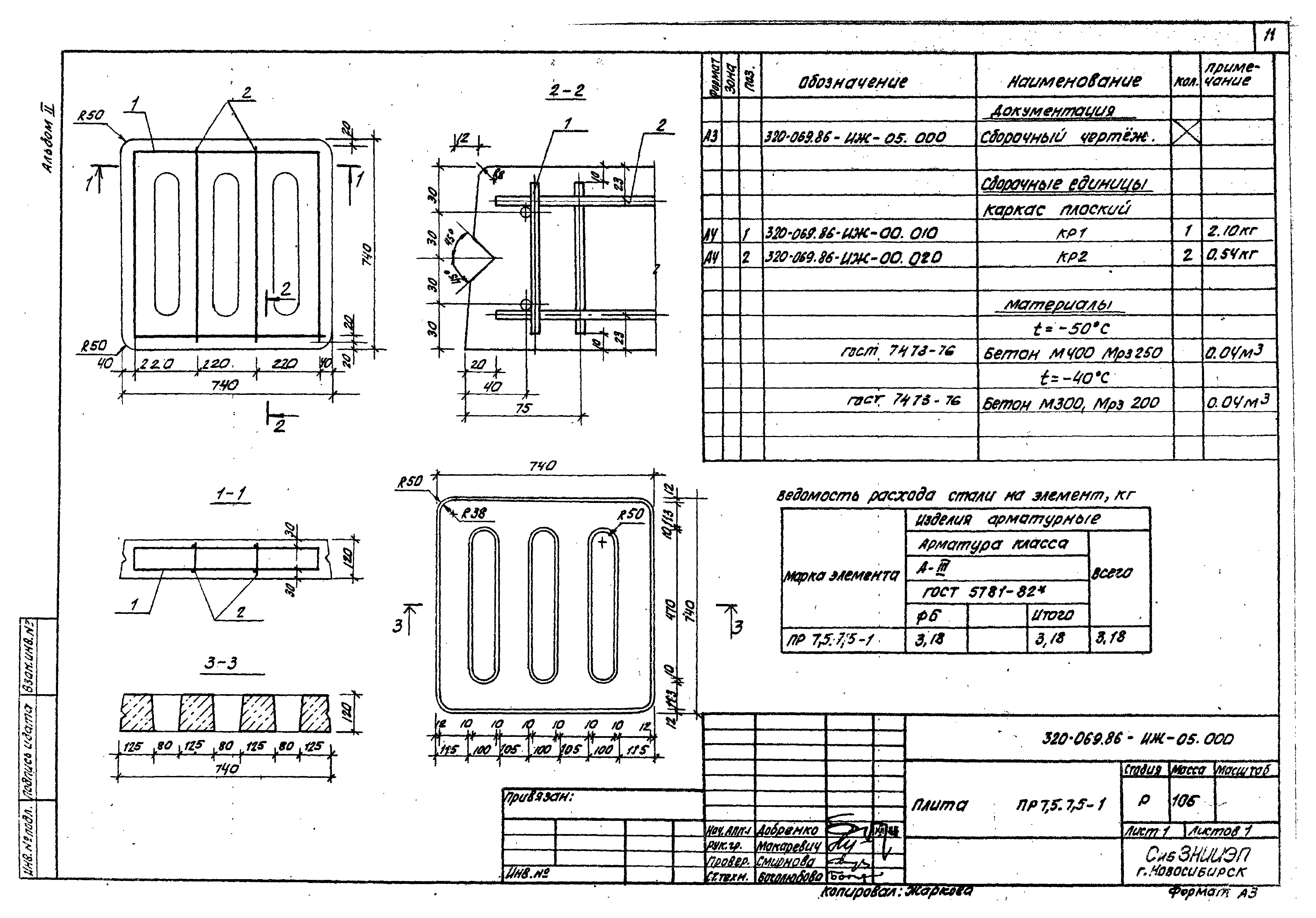
Плиты
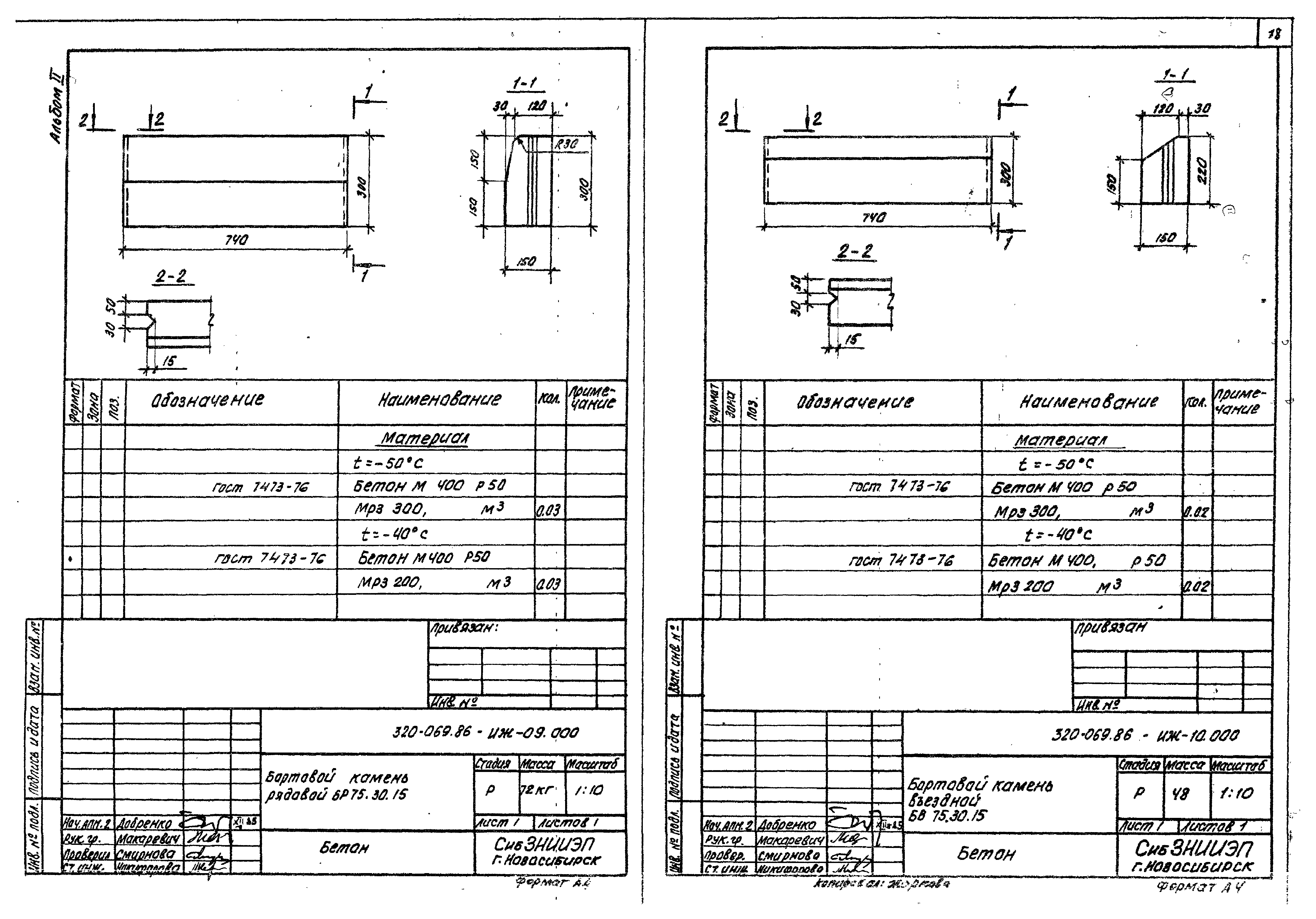
Бортовой камень рядовой
Бортовой камень въездной
Бортовой камень рядовой
Бортовой камень с уширением
Бортовой камень с прерывистым уширением
Бортовой камень въездной правый
Бортовой камень въездной левый
Бортовые камни криволинейные
Бортовой камень рядовой
Бортовой камень декоративный
Водосточный лоток рядовой
Водосточный лоток примыкания
Водосточный лоток поворотный
Плита водостока
Водосточный лоток рядовой
Водосточный лоток примыкания
Водосточный лоток поворотный
Панель стеновая
Панель стеновая поворотная
Плита оформления откосов
Каркасы
Сетки
Петля
Хомут
Петля
Решетка водостока
Сетка
Каркас плоский
Сетки
Разработан: СибЗНИИЭП
Утверждён:09.10.1984 Госгражданстрой (Gosgrazhdanstroy 287)
Расположен в:Техническая документация Строительство Справочные документы Типовые строительные конструкции, изделия и узлы Общероссийский строительный каталог Малые формы архитектуры и элементы благоустройства Малые архитектурные формы Обработка поверхности земли
Типовые проектные решения 320-069.86Типовые проектные решения 320-069.86Типовые проектные решения 320-069.86Типовые проектные решения 320-069.86Типовые проектные решения 320-069.86Типовые проектные решения 320-069.86Типовые проектные решения 320-069.86Типовые проектные решения 320-069.86Типовые проектные решения 320-069.86Типовые проектные решения 320-069.86Типовые проектные решения 320-069.86Типовые проектные решения 320-069.86Типовые проектные решения 320-069.86Типовые проектные решения 320-069.86Типовые проектные решения 320-069.86Типовые проектные решения 320-069.86Типовые проектные решения 320-069.86Типовые проектные решения 320-069.86Типовые проектные решения 320-069.86Типовые проектные решения 320-069.86Типовые проектные решения 320-069.86Типовые проектные решения 320-069.86Типовые проектные решения 320-069.86Типовые проектные решения 320-069.86Типовые проектные решения 320-069.86Типовые проектные решения 320-069.86Типовые проектные решения 320-069.86Типовые проектные решения 320-069.86Типовые проектные решения 320-069.86Типовые проектные решения 320-069.86Типовые проектные решения 320-069.86Типовые проектные решения 320-069.86Типовые проектные решения 320-069.86Типовые проектные решения 320-069.86Типовые проектные решения 320-069.86Типовые проектные решения 320-069.86Типовые проектные решения 320-069.86Типовые проектные решения 320-069.86Типовые проектные решения 320-069.86Типовые проектные решения 320-069.86Типовые проектные решения 320-069.86Типовые проектные решения 320-069.86Типовые проектные решения 320-069.86Типовые проектные решения 320-069.86Типовые проектные решения 320-069.86Типовые проектные решения 320-069.86Типовые проектные решения 320-069.86Типовые проектные решения 320-069.86Типовые проектные решения 320-069.86Типовые проектные решения 320-069.86Типовые проектные решения 320-069.86Типовые проектные решения 320-069.86Типовые проектные решения 320-069.86Типовые проектные решения 320-069.86Типовые проектные решения 320-069.86Типовые проектные решения 320-069.86Типовые проектные решения 320-069.86Типовые проектные решения 320-069.86Типовые проектные решения 320-069.86Типовые проектные решения 320-069.86Типовые проектные решения 320-069.86Типовые проектные решения 320-069.86Типовые проектные решения 320-069.86Типовые проектные решения 320-069.86Типовые проектные решения 320-069.86Типовые проектные решения 320-069.86Типовые проектные решения 320-069.86Типовые проектные решения 320-069.86Типовые проектные решения 320-069.86Типовые проектные решения 320-069.86Типовые проектные решения 320-069.86Типовые проектные решения 320-069.86Типовые проектные решения 320-069.86Типовые проектные решения 320-069.86Типовые проектные решения 320-069.86Типовые проектные решения 320-069.86Типовые проектные решения 320-069.86Типовые проектные решения 320-069.86Типовые проектные решения 320-069.86Типовые проектные решения 320-069.86Типовые проектные решения 320-069.86Типовые проектные решения 320-069.86Типовые проектные решения 320-069.86Типовые проектные решения 320-069.86Типовые проектные решения 320-069.86Типовые проектные решения 320-069.86Типовые проектные решения 320-069.86Типовые проектные решения 320-069.86Типовые проектные решения 320-069.86Типовые проектные решения 320-069.86Типовые проектные решения 320-069.86Типовые проектные решения 320-069.86Типовые проектные решения 320-069.86Типовые проектные решения 320-069.86Типовые проектные решения 320-069.86Типовые проектные решения 320-069.86

© 2013 Ёшкин Кот :-) Карта сайта