Информационная система
«Ёшкин Кот»

Скачать базу одним архивом
Скачать обновления
История создания базы
Карта сайта

Скачать Типовой проект Г.2-IV-3.90 Альбом 2. Архитектурно-строительные решения. Конструкции железобетонные. Организация строительства

Дата актуализации: 10.08.2017

Типовой проект Г.2-IV-3.90

Альбом 2. Архитектурно-строительные решения. Конструкции железобетонные. Организация строительства

Обозначение: Типовой проект Г.2-IV-3.90
Обозначение англ: Г.2-IV-3.90
Статус:не определен законодательством
Название рус.:Альбом 2. Архитектурно-строительные решения. Конструкции железобетонные. Организация строительства
Дата добавления в базу:01.10.2014
Дата актуализации:05.05.2017
Дата введения:23.04.1990
Оглавление:Содержание
Архитектурно-строительные решения
   Общие данные
   План каналов и закладных деталей в полу в осях "1 - 3" и "А - Д"
   План каналов и закладных деталей в полу в осях "3 - 5" и "А - Д"
   План каналов. Сечения. Узлы. Спецификация
   План сооружения на отм. - 3.000
   Разрезы 1-1, 2-2
   План полов. Экспликация полов
   План закладных деталей в стенах
   Спецификация закладных деталей в стенах
   Вход №1 (монолитный вариант)
   Вход №1 (сборный вариант)
   Вход №2 (монолитный вариант)
   Вход №2 (сборный вариант)
   Компенсационный колодец №1 на вводе кабелей связи. План и разрезы
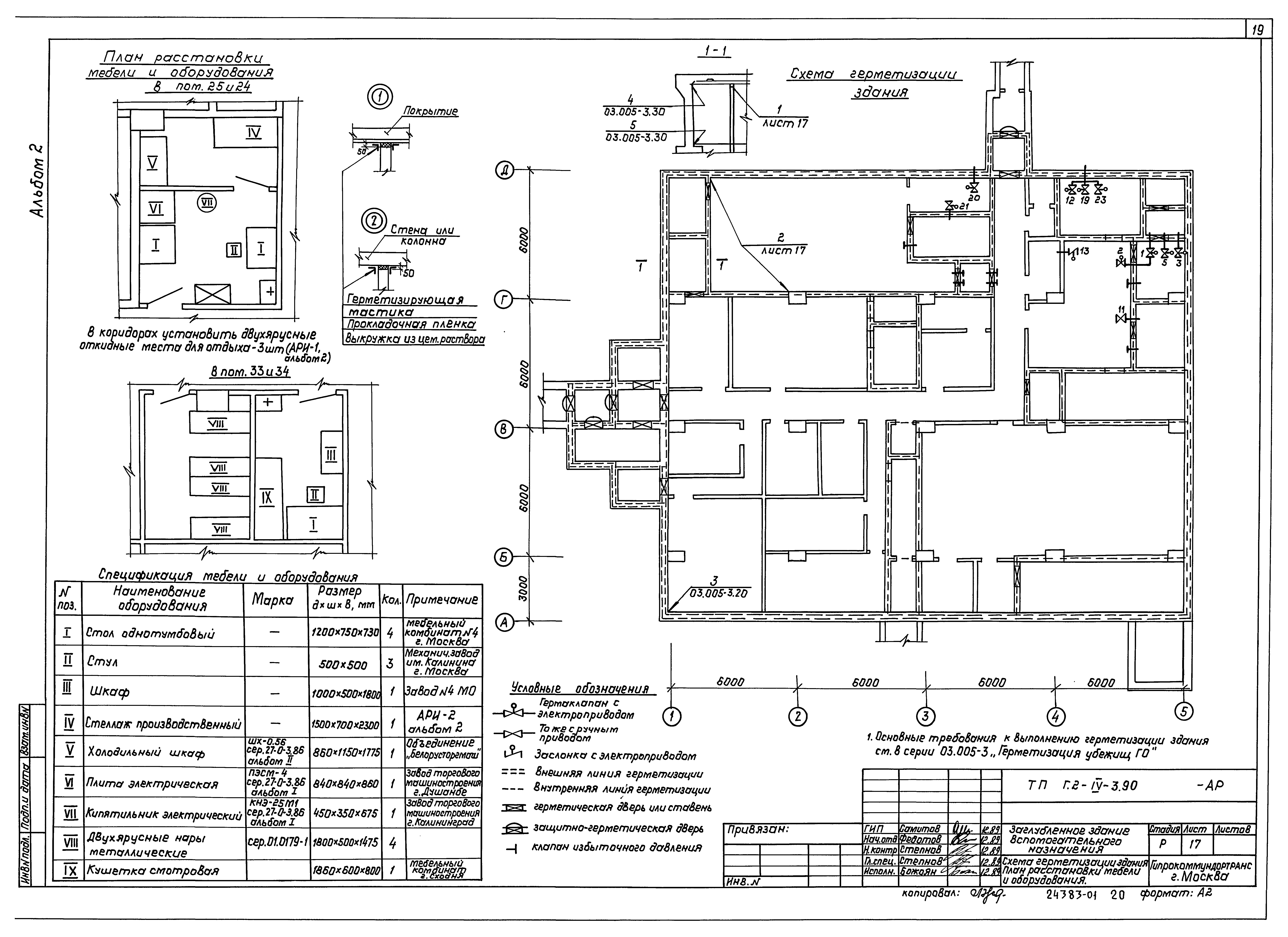
   Схема герметизации здания. План расстановки мебели и оборудования
   Экранизация помещений №21, 27, 28, 30. Разрезы. Узлы. Спецификация элементов
   Резервуар для воды. План. Разрезы
   Устройство звукопоглощающей облицовки
   План дренажа. Продольный профиль. Разрезы. Спецификация
   Антенный павильон. План. Разрезы. Узлы
   Экранизация сооружения
   Оголовок над резервуарами топлива. План. Разрезы. Фасад. Приемный колодец. План. Разрез
   Двухъярусные откидные места для отдыха. Общий вид. Ведомость расхода материалов
   Стеллаж и окно выдачи. Общий вид. Ведомость расхода материалов
   Дверь Д-1. Спецификация материалов
Конструкции железобетонные
   Общие данные
   Фундаментная плита. План выпусков. Сечения
   Спецификация арматурных изделий на выпуски из плиты на монолитные колонны и ФОМ-6. Ведомость
   Фундаментная плита. Армирование. Разрезы 1-1 - 3-3
   Фундаментная плита. Спецификация (сухие грунты)
   Фундаментная плита. Спецификация (водонасыщенные грунты)
   Монтажная схема железобетонных конструкций. Спецификация
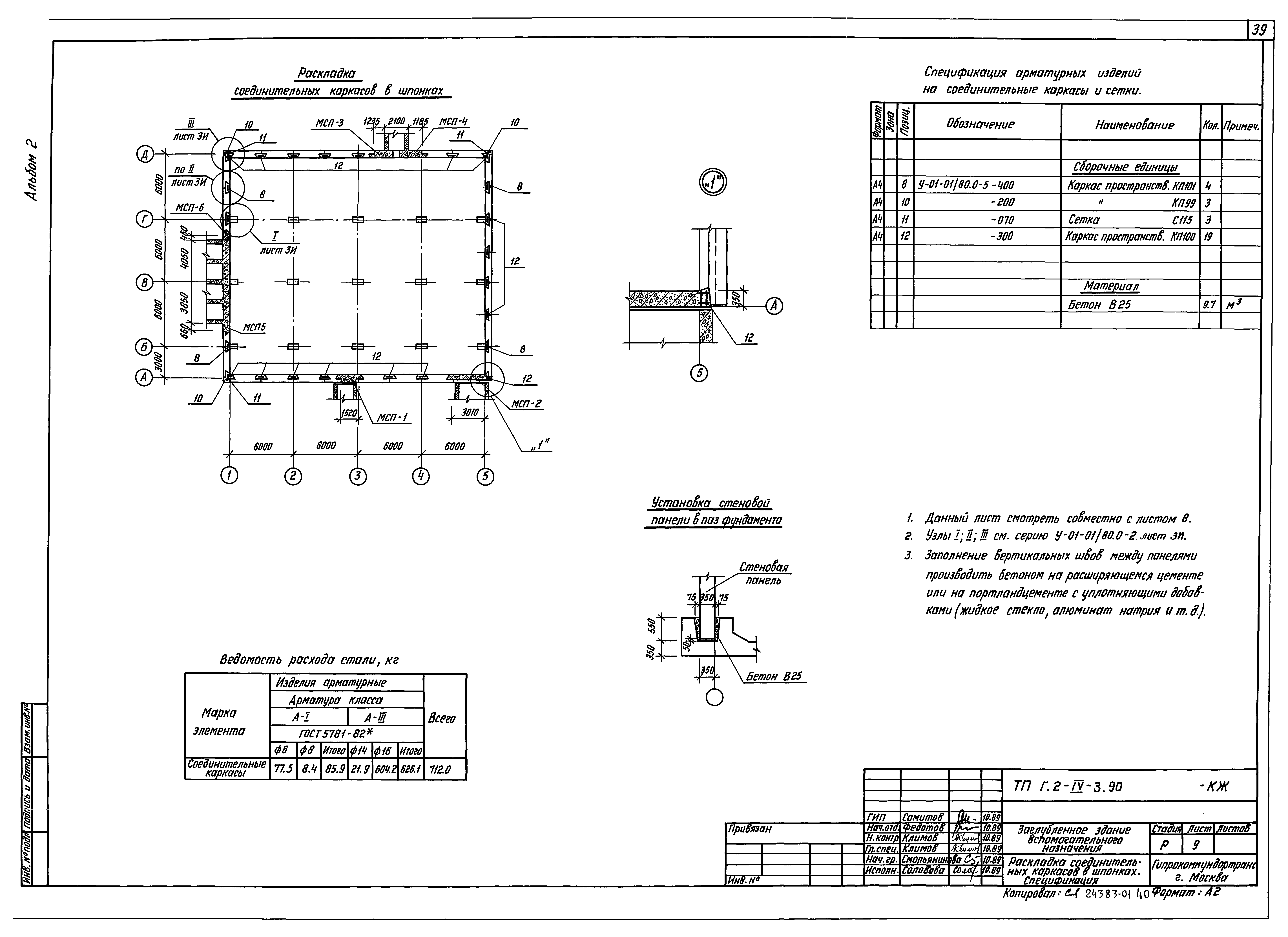
   Раскладка соединительных каркасов в шпонках. Спецификация
   Армирование монолитной части покрытия. Спецификация. Ведомость
   Монолитный участок покрытия. Армирование. Спецификация
   Монолитные стеновые панели МСП1 - МСП6. Армирование
   Монолитные стеновые панели МСП1 - МСП6. Спецификация. Ведомость
   Экструзионные перегородки. Схема раскладки. Детали. Спецификация
   Экструзионные перегородки. Узлы. Спецификация. Ведомость расхода стали
   Армокирпичные перегородки (вариант). Детали. Спецификация. Ведомость
   Армирование монолитных ж/б перегородок. Спецификация. Ведомости
   Резервуар для воды. Армирование. Спецификация. Ведомости
   Металлическая рубашка резервуара для воды. Узлы. Спецификация. Ведомости
   Звукопоглощающая облицовка стен. Спецификация
   Монорельс для подвески тельферов. Узлы. Спецификация. Ведомость
   План раскладки закладных изделий в покрытии. Спецификация. Ведомость
   План раскладки закладных изделий в стенах и перегородках в осях "А - В"
   План раскладки закладных изделий в стенах и перегородках в осях "В - Д"
   Узлы крепления закладных изделий. Спецификация
   Тамбур-шлюз входа №1. Армирование плиты П-1
   Тамбур-шлюз входа №1. Армирование стен С-1 - С-4
   Тамбур-шлюз входа №1. Армирование стен С-5 - С-8
   Тамбур-шлюз входа №1. Армирование плиты П-2. Ведомость. Спецификация
   Тамбур-шлюз входа №1. Спецификация. Ведомость расхода стали
   Тамбур входа №2. Армирование стен С-1, С-2. Плиты П-1
   Тамбур входа №2. Армирование стен С-3, С-4. Плиты П-2. Ведомость
   Тамбур входа №2. Спецификация. Ведомость
   Наклонный вход №1. Армирование
   Наклонный вход №1. Спецификация. Ведомости
   Наклонный вход №2. Армирование
   Наклонный вход №2. Спецификация. Ведомости
   Наклонные входы №1, 2. Раскладка сборных элементов. Спецификация
   Компенсационный колодец №1. Армирование стен С-1, С-2, С-3, плиты П-1
   Компенсационный колодец №1. Армирование плиты П-2. Спецификация. Ведомости
   Конструкция подшивного потолка. Узлы. Сечения. Спецификация
   Антенный павильон. Фундаменты. Покрытие. Спецификация
   Стойки опор и анкерные фундаменты. Спецификация. Ведомости
Чертежи основного комплекта марки ОС
   Пояснительная записка
   Стройгенплан
   График производства работ
Разработан: Гипрокоммундортранс
Утверждён:18.04.1990 Штаб гражданской обороны СССР (USSR Civil Defense Headquarters 56)
Расположен в:Техническая документация Строительство Справочные документы Типовые строительные конструкции, изделия и узлы Общероссийский строительный каталог Защитные сооружения гражданской обороны Типовые проекты защитных сооружений гражданской обороны специального назначения Объекты специального назначения Объекты межотраслевые и межтерриториальные
Типовой проект Г.2-IV-3.90Типовой проект Г.2-IV-3.90Типовой проект Г.2-IV-3.90Типовой проект Г.2-IV-3.90Типовой проект Г.2-IV-3.90Типовой проект Г.2-IV-3.90Типовой проект Г.2-IV-3.90Типовой проект Г.2-IV-3.90Типовой проект Г.2-IV-3.90Типовой проект Г.2-IV-3.90Типовой проект Г.2-IV-3.90Типовой проект Г.2-IV-3.90Типовой проект Г.2-IV-3.90Типовой проект Г.2-IV-3.90Типовой проект Г.2-IV-3.90Типовой проект Г.2-IV-3.90Типовой проект Г.2-IV-3.90Типовой проект Г.2-IV-3.90Типовой проект Г.2-IV-3.90Типовой проект Г.2-IV-3.90Типовой проект Г.2-IV-3.90Типовой проект Г.2-IV-3.90Типовой проект Г.2-IV-3.90Типовой проект Г.2-IV-3.90Типовой проект Г.2-IV-3.90Типовой проект Г.2-IV-3.90Типовой проект Г.2-IV-3.90Типовой проект Г.2-IV-3.90Типовой проект Г.2-IV-3.90Типовой проект Г.2-IV-3.90Типовой проект Г.2-IV-3.90Типовой проект Г.2-IV-3.90Типовой проект Г.2-IV-3.90Типовой проект Г.2-IV-3.90Типовой проект Г.2-IV-3.90Типовой проект Г.2-IV-3.90Типовой проект Г.2-IV-3.90Типовой проект Г.2-IV-3.90Типовой проект Г.2-IV-3.90Типовой проект Г.2-IV-3.90Типовой проект Г.2-IV-3.90Типовой проект Г.2-IV-3.90Типовой проект Г.2-IV-3.90Типовой проект Г.2-IV-3.90Типовой проект Г.2-IV-3.90Типовой проект Г.2-IV-3.90Типовой проект Г.2-IV-3.90Типовой проект Г.2-IV-3.90Типовой проект Г.2-IV-3.90Типовой проект Г.2-IV-3.90Типовой проект Г.2-IV-3.90Типовой проект Г.2-IV-3.90Типовой проект Г.2-IV-3.90Типовой проект Г.2-IV-3.90Типовой проект Г.2-IV-3.90Типовой проект Г.2-IV-3.90Типовой проект Г.2-IV-3.90Типовой проект Г.2-IV-3.90Типовой проект Г.2-IV-3.90Типовой проект Г.2-IV-3.90Типовой проект Г.2-IV-3.90Типовой проект Г.2-IV-3.90Типовой проект Г.2-IV-3.90Типовой проект Г.2-IV-3.90Типовой проект Г.2-IV-3.90Типовой проект Г.2-IV-3.90Типовой проект Г.2-IV-3.90Типовой проект Г.2-IV-3.90Типовой проект Г.2-IV-3.90Типовой проект Г.2-IV-3.90Типовой проект Г.2-IV-3.90Типовой проект Г.2-IV-3.90Типовой проект Г.2-IV-3.90Типовой проект Г.2-IV-3.90Типовой проект Г.2-IV-3.90Типовой проект Г.2-IV-3.90Типовой проект Г.2-IV-3.90Типовой проект Г.2-IV-3.90

© 2013 Ёшкин Кот :-) Карта сайта