Информационная система
«Ёшкин Кот»

Скачать базу одним архивом
Скачать обновления
История создания базы
Карта сайта

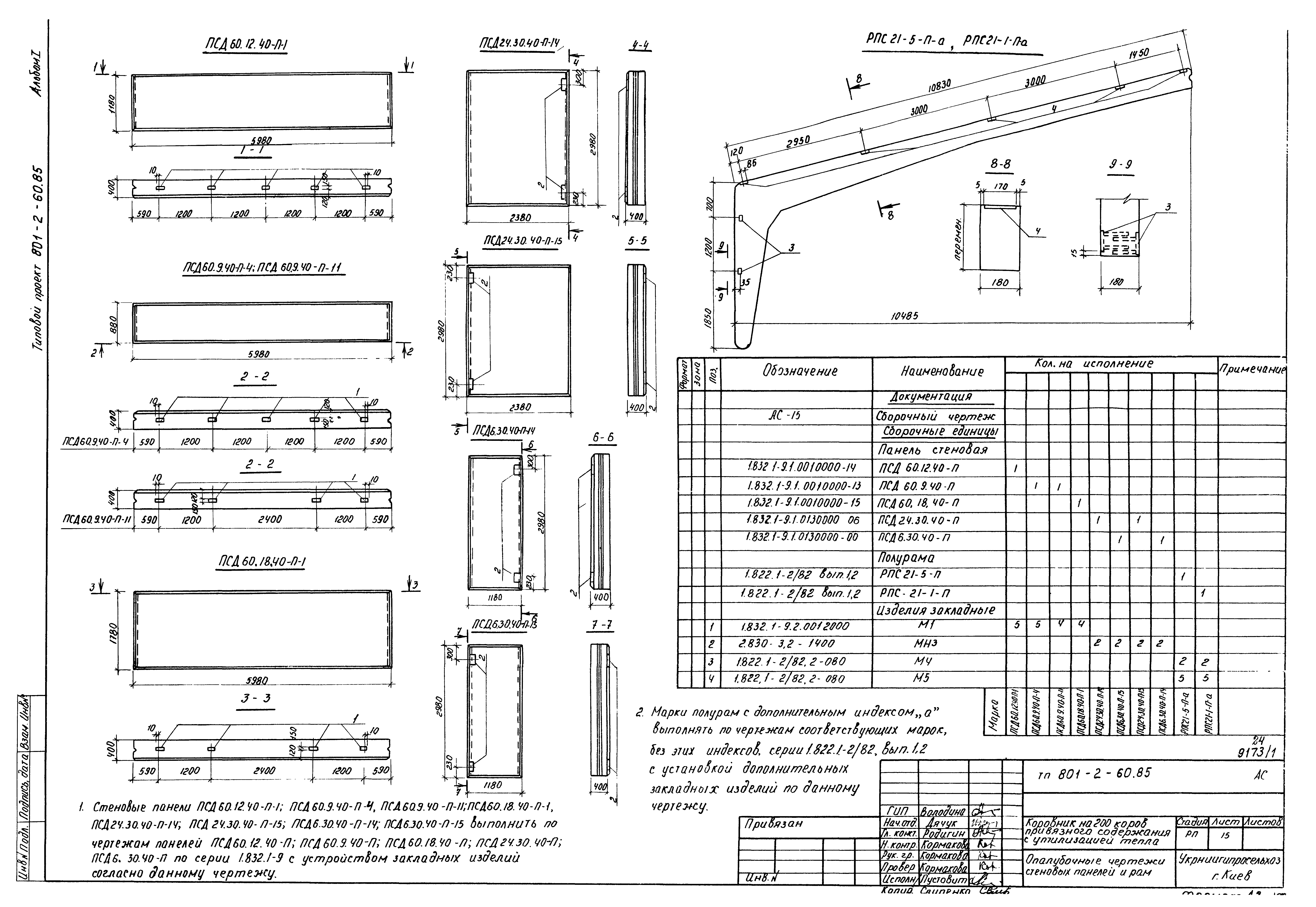
Скачать Типовой проект 801-2-60.85 Альбом I. Общая пояснительная записка и чертежи

Дата актуализации: 10.08.2017

Типовой проект 801-2-60.85

Альбом I. Общая пояснительная записка и чертежи

Обозначение: Типовой проект 801-2-60.85
Обозначение англ: 801-2-60.85
Статус:действует
Название рус.:Альбом I. Общая пояснительная записка и чертежи
Дата добавления в базу:01.10.2014
Дата актуализации:05.05.2017
Оглавление:Содержание альбома
Общая пояснительная записка
Чертежи основного комплекта марки ТХ
   Общие данные
   Размещение технологического оборудования. План. Разрезы
   Транспортная линия уборки навоза транспортерами ТСН-160. План. Разрезы
   Оборудование стойловое для коров ОСК-25А. Узлы. Разрезы
Чертежи основного комплекта марки АС
   Общие данные
   План на отм. 0.000. Разрезы 1-1, 2-2, 3-3
   Фрагменты 1 и 2
   Фасады
   План полов. Схема расположения кормушек, бортовых камней, ограждений
   Схема расположения элементов фундаментов
   Схема расположения фундаментов под навозоуборочные транспортеры
   Фрагменты схемы расположения фундаментов под навозоуборочные транспортеры
   Схемы расположения элементов каркаса и плит покрытия
   Схемы расположения стеновых панелей
   Схема расположения подвесок и изделий крепления обрешетки. Схема обрамления проема ворот
   Схема расположения обрешетки и брусков обрешетки. План кровли
   Опалубочные чертежи стеновых панелей и фахверковых колонн
   Опалубочные чертежи стеновых панелей и рам
   Опалубочные чертежи плит покрытия
   Соединительные изделия МС-1 - МС-3. Изделия закладные МН1 - МН7. Ограждения ОГ-1 - ОГ-5. Сетки С1, С2
Чертежи основного комплекта марки ВК
   Общие данные
   План на отм. 0.000. Схемы В1, Т3, В31, Т31, К13
   Вариант водопровода с применением пластмассовых труб. План на отм. 0.000 между осями 3 - 12 и А - Б. Схемы В1, Т31
Чертежи основного комплекта марки ОВ
   Общие данные
   План на отм. 0.000. Разрез 1-1
   Схемы систем П1, В1, П2, В2, ВЕ1 - ВЕ10, ВЕ11
   Установки систем П1, В1
   Установки систем П2, В2
Чертежи основного комплекта марки Э
   Общие данные
   Перечень электрооборудования и материалов
   План электроосвещения
   План силового оборудования и расчетная схема
   Устройство выравнивания электрических потенциалов
Чертежи основного комплекта марки АОВ
   Общие данные
   Схема автоматизации
Разработан: Укрниигипросельхоз
Утверждён:20.03.1985 МСХ УССР (21-Э)
Расположен в:Техническая документация Строительство Справочные документы Типовые строительные конструкции, изделия и узлы Общероссийский строительный каталог Сельскохозяйственные предприятия, здания и сооружения Предприятия, здания и сооружения для крупного рогатого скота Здания и сооружения Производство молока и выращивание нетелей Коровники
Типовой проект 801-2-60.85Типовой проект 801-2-60.85Типовой проект 801-2-60.85Типовой проект 801-2-60.85Типовой проект 801-2-60.85Типовой проект 801-2-60.85Типовой проект 801-2-60.85Типовой проект 801-2-60.85Типовой проект 801-2-60.85Типовой проект 801-2-60.85Типовой проект 801-2-60.85Типовой проект 801-2-60.85Типовой проект 801-2-60.85Типовой проект 801-2-60.85Типовой проект 801-2-60.85Типовой проект 801-2-60.85Типовой проект 801-2-60.85Типовой проект 801-2-60.85Типовой проект 801-2-60.85Типовой проект 801-2-60.85Типовой проект 801-2-60.85Типовой проект 801-2-60.85Типовой проект 801-2-60.85Типовой проект 801-2-60.85Типовой проект 801-2-60.85Типовой проект 801-2-60.85Типовой проект 801-2-60.85Типовой проект 801-2-60.85Типовой проект 801-2-60.85Типовой проект 801-2-60.85Типовой проект 801-2-60.85Типовой проект 801-2-60.85Типовой проект 801-2-60.85Типовой проект 801-2-60.85Типовой проект 801-2-60.85Типовой проект 801-2-60.85Типовой проект 801-2-60.85Типовой проект 801-2-60.85Типовой проект 801-2-60.85Типовой проект 801-2-60.85Типовой проект 801-2-60.85Типовой проект 801-2-60.85Типовой проект 801-2-60.85

© 2013 Ёшкин Кот :-) Карта сайта