Информационная система
«Ёшкин Кот»

Скачать базу одним архивом
Скачать обновления
История создания базы
Карта сайта

Скачать Типовой проект 903-1-198 Альбом 5.4. Котельная. Архитектурно-строительная часть. Конструкции нулевого цикла и борова. Конструкции металлические (вариант установки котлов КВ-ГМ-100 и ДЕ-25-14ГМ)

Дата актуализации: 10.08.2017

Типовой проект 903-1-198

Альбом 5.4. Котельная. Архитектурно-строительная часть. Конструкции нулевого цикла и борова. Конструкции металлические (вариант установки котлов КВ-ГМ-100 и ДЕ-25-14ГМ)

Обозначение: Типовой проект 903-1-198
Обозначение англ: 903-1-198
Статус:действует
Название рус.:Альбом 5.4. Котельная. Архитектурно-строительная часть. Конструкции нулевого цикла и борова. Конструкции металлические (вариант установки котлов КВ-ГМ-100 и ДЕ-25-14ГМ)
Дата добавления в базу:01.10.2014
Дата актуализации:05.05.2017
Оглавление:Чертежи основного комплекта марки КЖ1
   Общие данные
   Схема расположения элементов подземного хозяйства в осях 1 - 6; А - Е
   Схема расположения элементов подземного хозяйства в осях 6 - 11; А - Е
   Схема расположения элементов подземного хозяйства в осях 11 - 16; А - Е
   Схема расположения элементов подземного хозяйства в осях 2 - 4; 7 - 9
   Схема расположения элементов подземного хозяйства в осях 7 - 15
   Схема расположения плит перекрытия каналов в осях 1 - 6; А - Е
   Схема расположения плит перекрытия каналов и фундаментов под металлические конструкции в осях 6 - 11; А - Е
   Схема расположения плит перекрытия каналов и фундаментов под металлические конструкции в осях 11 - 16; А - Г
   Схема расположения плит перекрытия каналов и фундаментов под металлические конструкции в осях 7 - 14
   Схема расположения плит перекрытия каналов в осях 7 - 9
   Подземное хозяйство. Разрезы 1-1 - 8-8
   Подземное хозяйство. Разрезы 9-9 - 14-14
   Схема расположения элементов подземного хозяйства камеры управления
   Схема расположения фундаментов под резервуары ФЛм1. Опалубка и армирование
   Спецификация элементов к схемам расположения подземного хозяйства на листах КЖ1-3 - КЖ1-16
   Подземное хозяйство. Разрезы а-а - к-к; е`-е`. Деталь "А"
   Подземное хозяйство. Разрезы Л-Л, М-М, Н-Н. Фундамент ФОм13
   Фрагмент плана №1. Разрезы 1-1 - 4-4. КНм1
   Фрагмент плана №2. Разрезы 5-5 - 8-8; 13-13; 14-14
   Фрагмент плана №1 и №2. Разрезы 9-9 - 12-12. Узлы 1 - 8
   Фрагмент плана №1 и №2. Спецификации каналов КНм1, КНм2
   Фрагмент плана №3. КНм3. Разрезы 1-1 - 3-3
   Фрагмент плана №3. КНм3. Разрезы 5-5 - 8-8
   Фрагмент плана №4 и №5. Спецификации КНм4, КНм5
   ФОм1 - ФОм6. Опалубка и армирование
   ФОм7 - ФОм12. Опалубка и армирование
   Продувочный колодец ПРм1. Опалубка и армирование
   Боров. Схема расположения фундаментов
   Боров. Фундаменты Фм26, Фм27. Опалубка и армирование
   Боров. Фундаменты Фм28, Фм29. Опалубка и армирование
   Боров. Схема расположения колонн. Разрезы 1-1 - 3-3
   Боров. Схема расположения плит перекрытия
   Боров. Схема расположения плит покрытия. Спецификация
   Боров. Ум1 - Ум8. Опалубка и армирование
   Боров. Ум9* - Ум17*. Опалубка и армирование
   Боров. Спецификация монолитных участков Ум1 - Ум17*
   Открытая установка трансформаторов 10/6 кВ. Схема расположения конструкций
   Открытая установка трансформаторов 10/6 кВ. Разрезы 2-2 - 6-6
   Деаэраторная этажерка. Схемы расположения плит покрытия и перекрытия
   Деаэраторная этажерка. Схемы расположения стеновых панелей
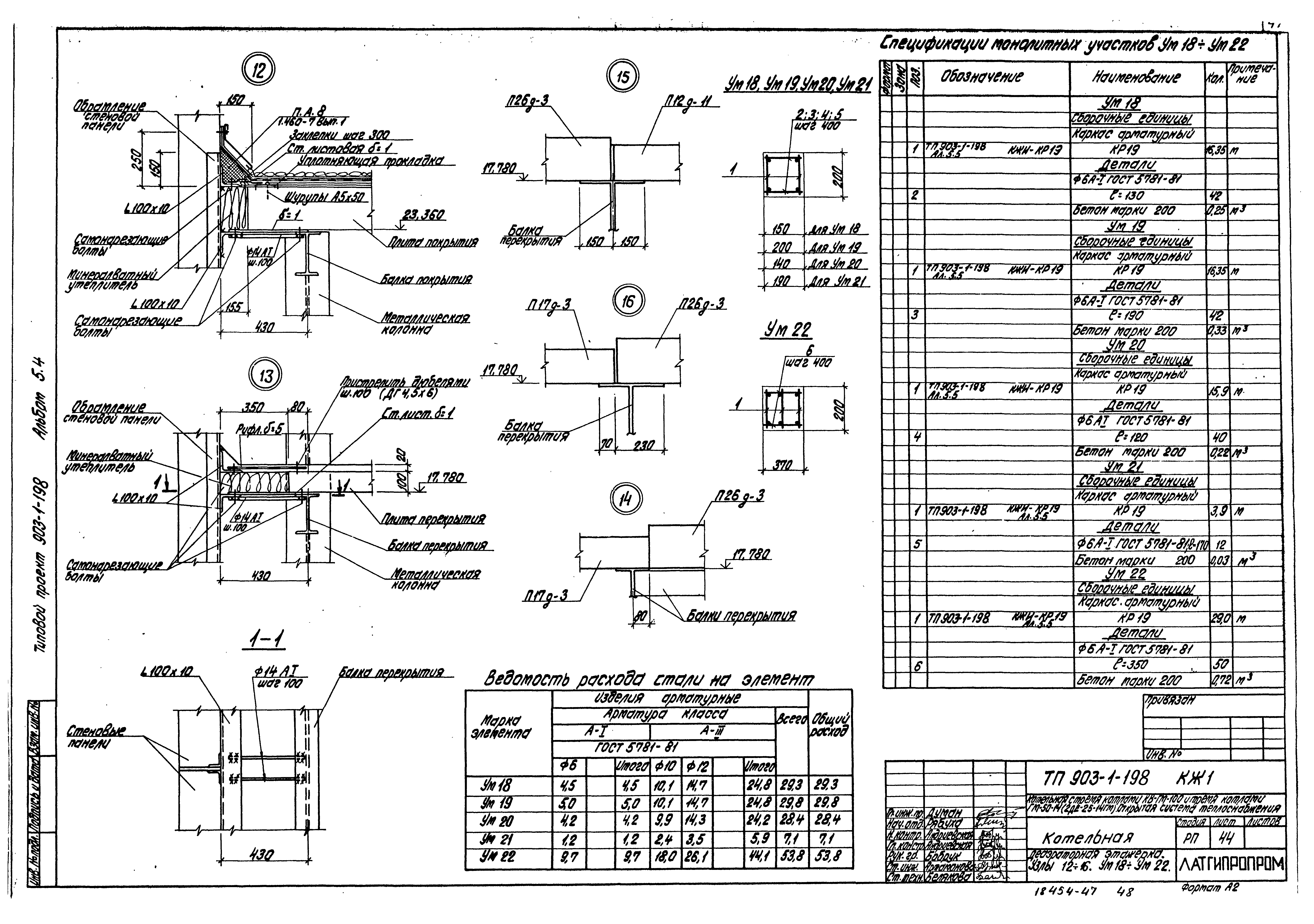
   Деаэраторная этажерка. Узлы 12 - 16. Ум18 - Ум22
Чертежи основного комплекта марки КЖ1
   Общие данные. Ведомость металлоконструкций по видам профилей
   Техническая спецификация металла
   Техническая спецификация металла для специализированных заводов
   Схемы расположения подвесных путей в осях 7 - 16; 9 - 16; Г - Е. Узел 1
   Площадки МП1, МП2. Узлы 2, 3, 4
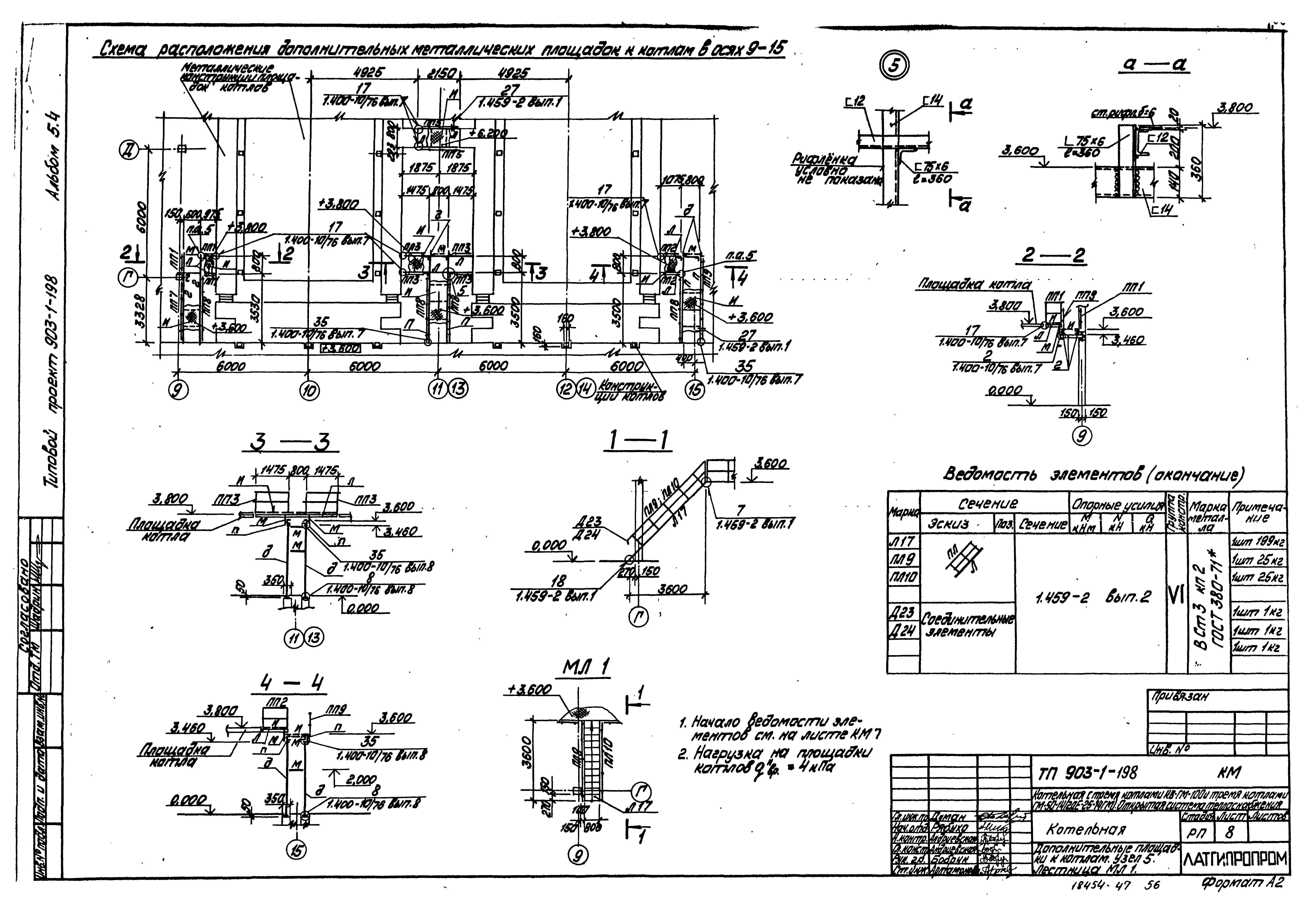
   Дополнительные площадки к котлам. Узел 5. Лестница МЛ1
   Схема расположения балок перекрытия на отм. 6.000. Узел 6
   Площадки МП3, МП4
   Лестницы МЛ2 - МЛ4. Узел 7
   Площадка МП5. Лестница МЛ6. Узлы 8, 9
   Металлическая площадка МП6. Узлы 10, 11. Стремянки С1 - С3
   Узлы 12, 13. Площадка МП7. Схема расположения монорельса и опор трубопроводов камеры управления
   Схема расположения опор под трубопроводы в осях 2 - 16. Сечения 1-1, 2-2
   Сечения 3-3 - 10-10
   Узлы 14 - 20. Сечение 11-11
   Опоры ГРУ на отм. 6.000
   Помещение деаэраторов. Лестница МЛ7. Площадка МП8. Узлы 21, 22
   Помещение деаэраторов. План на отм. 0.000; 17.780; 23.360. Узел 23
   Боров. Схема расположения металлических балок перекрытия и площадок
   Боров. Узлы 24 - 28
   Боров. Узлы 29 - 34
Разработан: Латгипропром
Утверждён:14.05.1982 Латгипропром (101А)
Расположен в:Техническая документация Строительство Справочные документы Типовые строительные конструкции, изделия и узлы Общероссийский строительный каталог Промышленные предприятия, здания и сооружения Здания и сооружения санитарно-технические Теплоснабжение Котельные установки Открытые системы теплоснабжения Топливо - газ и мазут
Типовой проект 903-1-198Типовой проект 903-1-198Типовой проект 903-1-198Типовой проект 903-1-198Типовой проект 903-1-198Типовой проект 903-1-198Типовой проект 903-1-198Типовой проект 903-1-198Типовой проект 903-1-198Типовой проект 903-1-198Типовой проект 903-1-198Типовой проект 903-1-198Типовой проект 903-1-198Типовой проект 903-1-198Типовой проект 903-1-198Типовой проект 903-1-198Типовой проект 903-1-198Типовой проект 903-1-198Типовой проект 903-1-198Типовой проект 903-1-198Типовой проект 903-1-198Типовой проект 903-1-198Типовой проект 903-1-198Типовой проект 903-1-198Типовой проект 903-1-198Типовой проект 903-1-198Типовой проект 903-1-198Типовой проект 903-1-198Типовой проект 903-1-198Типовой проект 903-1-198Типовой проект 903-1-198Типовой проект 903-1-198Типовой проект 903-1-198Типовой проект 903-1-198Типовой проект 903-1-198Типовой проект 903-1-198Типовой проект 903-1-198Типовой проект 903-1-198Типовой проект 903-1-198Типовой проект 903-1-198Типовой проект 903-1-198Типовой проект 903-1-198Типовой проект 903-1-198Типовой проект 903-1-198Типовой проект 903-1-198Типовой проект 903-1-198Типовой проект 903-1-198Типовой проект 903-1-198Типовой проект 903-1-198Типовой проект 903-1-198Типовой проект 903-1-198Типовой проект 903-1-198Типовой проект 903-1-198Типовой проект 903-1-198Типовой проект 903-1-198Типовой проект 903-1-198Типовой проект 903-1-198Типовой проект 903-1-198Типовой проект 903-1-198Типовой проект 903-1-198Типовой проект 903-1-198Типовой проект 903-1-198Типовой проект 903-1-198Типовой проект 903-1-198Типовой проект 903-1-198Типовой проект 903-1-198Типовой проект 903-1-198Типовой проект 903-1-198Типовой проект 903-1-198Типовой проект 903-1-198Типовой проект 903-1-198

© 2013 Ёшкин Кот :-) Карта сайта