Информационная система
«Ёшкин Кот»

Скачать базу одним архивом
Скачать обновления
История создания базы
Карта сайта

Скачать Типовой проект 903-1-198 Альбом 5.2. Котельная. Архитектурно-строительная часть. Общие чертежи (вариант установки котлов КВ-ГМ-100 и ДЕ-25-14ГМ)

Дата актуализации: 10.08.2017

Типовой проект 903-1-198

Альбом 5.2. Котельная. Архитектурно-строительная часть. Общие чертежи (вариант установки котлов КВ-ГМ-100 и ДЕ-25-14ГМ)

Обозначение: Типовой проект 903-1-198
Обозначение англ: 903-1-198
Статус:действует
Название рус.:Альбом 5.2. Котельная. Архитектурно-строительная часть. Общие чертежи (вариант установки котлов КВ-ГМ-100 и ДЕ-25-14ГМ)
Дата добавления в базу:01.10.2014
Дата актуализации:05.05.2017
Оглавление:Содержание альбома
Архитектурно-строительные решения
   Общие данные
   Планы полов и кровли. Экспликация полов и кровли
   План на отм. 0.000
   План на отм. 4.200
   Планы на отм. 14.400; 18.000. Разрезы 3-3, 4-4
   Разрезы 1-1, 2-2. Схемы открывания окон по осям "В" и "Е"
   Фасады 1 - 16; 16 - 1
   Фасады А/1 - Е; Е - А
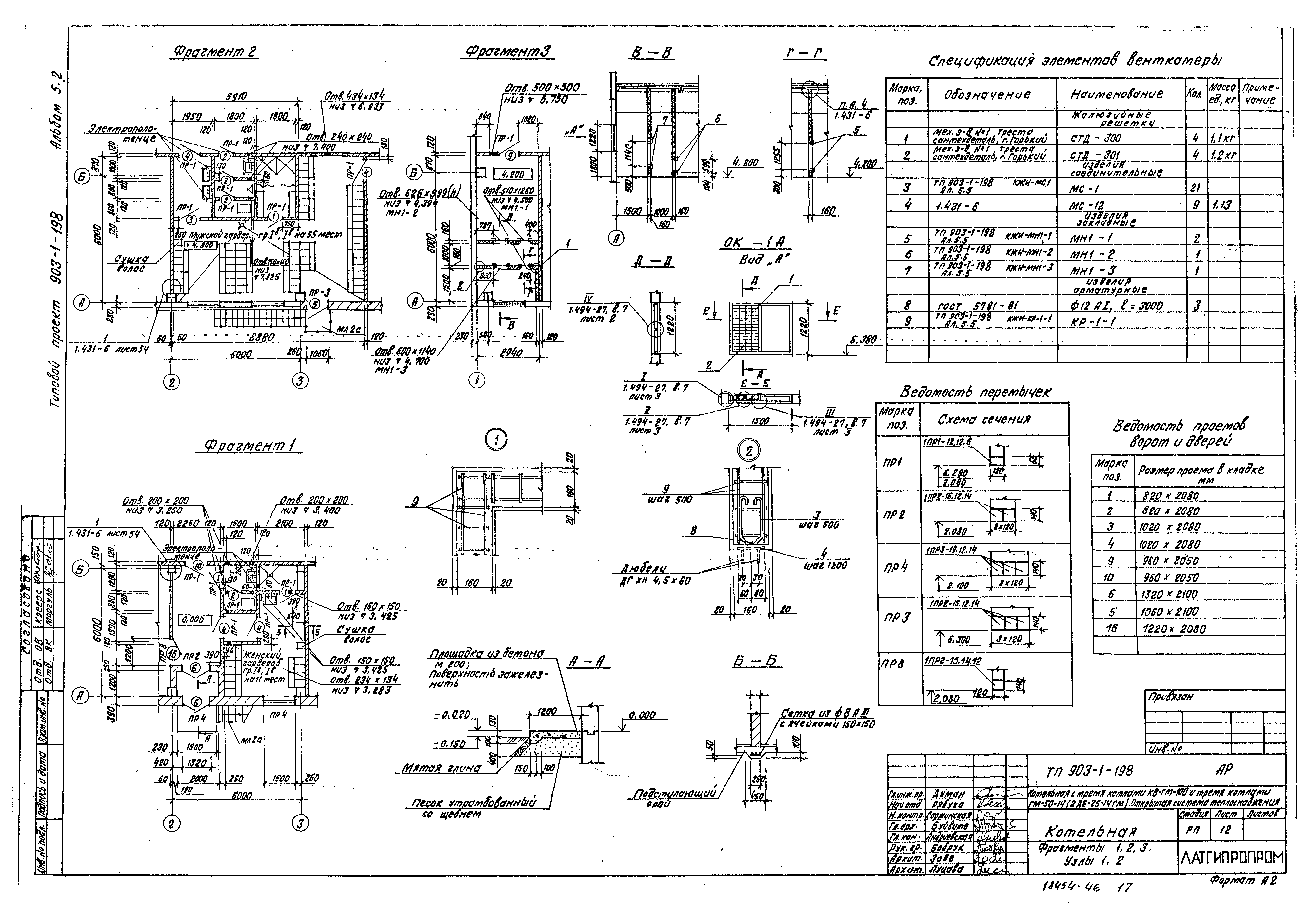
   Фрагменты 1, 2, 3. Узлы 1, 2
   Фрагменты 4, 5. Узлы 3, 4
   Лестница ЛК-1. Узел 5
   Ворота ВТ-1-1у. Узлы 6 - 13. Клапан УК3
   Ворота ВТ-1-1у. Узлы 14 - 15. Спецификация
   Двери ДТ-1. Узлы 16 - 20
   Ворота ВТ-1у
   Ворота ВТ-1у. Узлы 21 - 30
   Клапаны УК1, УК2, УК4. Жалюзи ЖР-1у, ЖР-2у. Узлы 31, 32
   Боров. План на отм. 5.200. Фасад. Узел 33
   Боров. Разрезы 1-1 - 6-6. Узлы 34 - 36
   Камера управления
Конструкции железобетонные
   Общие данные
   Схема расположения фундаментов и фундаментных балок
   Схема расположения фундаментов по торцовой оси при строительстве по очередям. Спецификация
   Таблица нагрузок на фундаменты
   Схема расположения фундаментов и фундаментных балок. Фрагменты 1 - 5
   Схема расположения фундаментов и фундаментных балок. Фрагменты 6 - 8
   Схема расположения фундаментов и фундаментных балок. Фрагменты 9 - 11
   Фм1, Фм2, Фм3. Опалубка и армирование
   Фм5, Фм6. Опалубка и армирование
   Фм7, Фм8. Опалубка и армирование
   Фм10, Фм21. Опалубка и армирование
   Фм4, Фм11, Фм12. Опалубка и армирование
   Фм9, Фм13, Фм14. Опалубка и армирование
   Фм15, Фм18. Опалубка и армирование
   Фм16, Фм22. Опалубка и армирование
   Фм17, Фм19, Фм20. Опалубка и армирование
   Фм23, Фм24. Опалубка и армирование
   Фм15-1, Фм25. Опалубка и армирование
   Схема расположения колонн, ригелей и связей
   Схема расположения колонн, ригелей и связей. Спецификация
   Схема расположения балок покрытия и плит площадки на отм. 4.200 в осях А - В; 1 - 8
   Схема расположения плит покрытия
   Схема расположения плит покрытия. Спецификация
   Схема расположения плит площадки на отм. 4.200 в осях Д - Е; 4 - 7 и на отм. 6.000
   Разрезы 1-1 - 5-5
   Узлы 1 - 6; 24
   Узлы 7 - 10; 20 - 23; 25
   Схемы расположения стальных стоек и насадок торцового фахверка по оси 1, 7, 16 и Е
   Схемы расположения стеновых панелей по осям А; А/1; В и Е
   Схемы расположения стеновых панелей по осям 16; 1 и 7
   Фрагменты 2 - 11
   Фрагменты 13 - 16. Узел А
   Фрагменты 1, 12, 19 - 23, 31, 32
   Фрагменты 17, 18, 24, 24м, 25. Узлы Б, В
   Фрагменты 26 - 30. Узел Г
   Фрагменты 33 - 38
   Схемы расположения перегородок по оси В на отм. 4.200 в осях 8 - 1
   Схемы расположения перегородок по оси Б; в осях 8 - 3; по оси Д; в осях 5 - 7; по оси 8; по оси 4 и 7; в осях Д - Е на отм. 0.000
   Схемы расположения перегородок на отм. 0.000 в осях 5 - 6; на отм. 4.200 в осях 3 - 4; по осям 8, 4
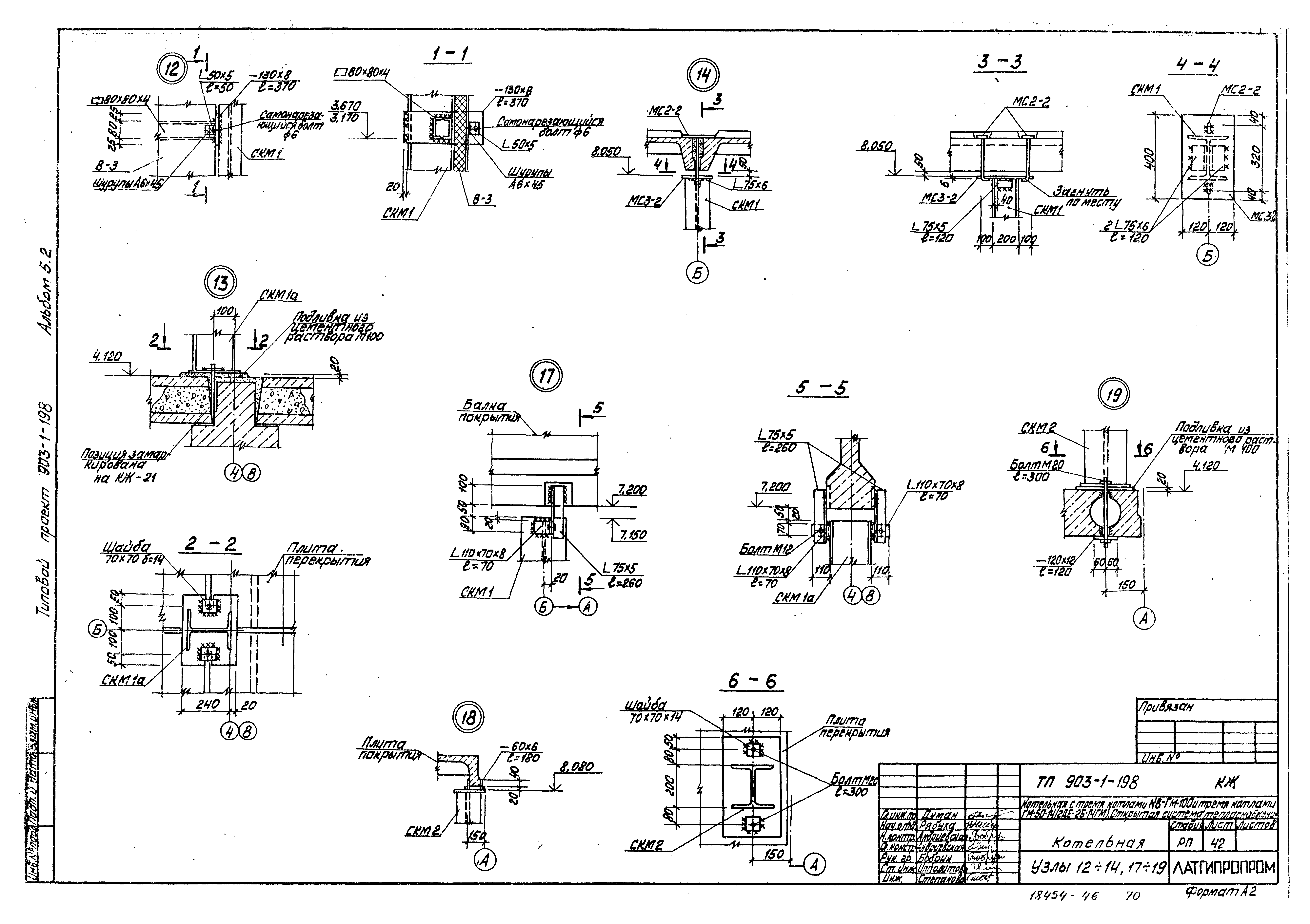
   Узлы 12 - 14; 17 - 19
   В-1 - В-4. Узлы 15, 16
   Схема расположения закладных изделий на отм. 4.200 в осях Д - Е; 4 - 7
   Схема расположения закладных изделий на отм. 4.240 по оси А
   Ум4, Ум5, Ум15, Ум16. Опалубка и армирование
   Ум2, Ум17, Ум18, Ум19. Спецификации. Ум2, Ум4, Ум5, Ум15 - Ум19
   Ум6 - Ум8, Ум10. Опалубка и армирование
   Ум9, Ум12. Опалубка и армирование
   Ум3, Ум1, Ум11. Опалубка и армирование
   Ум1, Ум3, Ум6 - Ум8, Ум10 - Ум12. Спецификации
   Ум6-1, Ум13, Ум14. Опалубка и армирование. Фрагмент А. Ум7 - Ум12. Спецификации
Разработан: Латгипропром
Утверждён:14.05.1982 Латгипропром (101А)
Расположен в:Техническая документация Строительство Справочные документы Типовые строительные конструкции, изделия и узлы Общероссийский строительный каталог Промышленные предприятия, здания и сооружения Здания и сооружения санитарно-технические Теплоснабжение Котельные установки Открытые системы теплоснабжения Топливо - газ и мазут
Типовой проект 903-1-198Типовой проект 903-1-198Типовой проект 903-1-198Типовой проект 903-1-198Типовой проект 903-1-198Типовой проект 903-1-198Типовой проект 903-1-198Типовой проект 903-1-198Типовой проект 903-1-198Типовой проект 903-1-198Типовой проект 903-1-198Типовой проект 903-1-198Типовой проект 903-1-198Типовой проект 903-1-198Типовой проект 903-1-198Типовой проект 903-1-198Типовой проект 903-1-198Типовой проект 903-1-198Типовой проект 903-1-198Типовой проект 903-1-198Типовой проект 903-1-198Типовой проект 903-1-198Типовой проект 903-1-198Типовой проект 903-1-198Типовой проект 903-1-198Типовой проект 903-1-198Типовой проект 903-1-198Типовой проект 903-1-198Типовой проект 903-1-198Типовой проект 903-1-198Типовой проект 903-1-198Типовой проект 903-1-198Типовой проект 903-1-198Типовой проект 903-1-198Типовой проект 903-1-198Типовой проект 903-1-198Типовой проект 903-1-198Типовой проект 903-1-198Типовой проект 903-1-198Типовой проект 903-1-198Типовой проект 903-1-198Типовой проект 903-1-198Типовой проект 903-1-198Типовой проект 903-1-198Типовой проект 903-1-198Типовой проект 903-1-198Типовой проект 903-1-198Типовой проект 903-1-198Типовой проект 903-1-198Типовой проект 903-1-198Типовой проект 903-1-198Типовой проект 903-1-198Типовой проект 903-1-198Типовой проект 903-1-198Типовой проект 903-1-198Типовой проект 903-1-198Типовой проект 903-1-198Типовой проект 903-1-198Типовой проект 903-1-198Типовой проект 903-1-198Типовой проект 903-1-198Типовой проект 903-1-198Типовой проект 903-1-198Типовой проект 903-1-198Типовой проект 903-1-198Типовой проект 903-1-198Типовой проект 903-1-198Типовой проект 903-1-198Типовой проект 903-1-198Типовой проект 903-1-198Типовой проект 903-1-198Типовой проект 903-1-198Типовой проект 903-1-198Типовой проект 903-1-198Типовой проект 903-1-198Типовой проект 903-1-198Типовой проект 903-1-198Типовой проект 903-1-198Типовой проект 903-1-198Типовой проект 903-1-198Типовой проект 903-1-198

© 2013 Ёшкин Кот :-) Карта сайта