Информационная система
«Ёшкин Кот»

Скачать базу одним архивом
Скачать обновления
История создания базы
Карта сайта

Скачать Типовой проект 903-1-198 Альбом 4.2. Водоподготовительная установка. Автоматизация. Электротехническая часть. Связь и сигнализация (вариант установки котлов КВ-ГМ-100 и ДЕ-25-14ГМ)

Дата актуализации: 10.08.2017

Типовой проект 903-1-198

Альбом 4.2. Водоподготовительная установка. Автоматизация. Электротехническая часть. Связь и сигнализация (вариант установки котлов КВ-ГМ-100 и ДЕ-25-14ГМ)

Обозначение: Типовой проект 903-1-198
Обозначение англ: 903-1-198
Статус:действует
Название рус.:Альбом 4.2. Водоподготовительная установка. Автоматизация. Электротехническая часть. Связь и сигнализация (вариант установки котлов КВ-ГМ-100 и ДЕ-25-14ГМ)
Дата добавления в базу:01.10.2014
Дата актуализации:05.05.2017
Оглавление:Содержание альбома
Автоматизация
   ВПУ. Общие данные
   ВПУ. Схема функциональная
   ВПУ. Схема электрическая принципиальная технологической сигнализации
   ВПУ. Схема электрическая принципиальная автоматизации
   ВПУ. Схема электрическая принципиальная питания
   ВПУ. Схема внешних проводок
   ВПУ. Приточная установка П1. Схема функциональная
   ВПУ. Приточная установка П1. Схема электрическая принципиальная управления
   ВПУ. Приточная установка П1. Схема внешних проводок
   ВПУ. Приточная установка П2. Схема функциональная
   ВПУ. Приточная установка П2. Схема электрическая принципиальная управления
   ВПУ. Приточная установка П2. Схема электрическая принципиальная регулирования
   ВПУ. Приточная установка П2. Схема внешних проводок
   ВПУ. Пожарная сигнализация. Схема внешних проводок
   ВПУ. Пожарная сигнализация. План расположения
   ВПУ. План расположения
   ВПУ. Спецификация основных материалов и изделий
Электротехническая часть
   Общие данные
   Питающая и распределительная сеть 380 В. Принципиальная однолинейная схема
   План силовой электроустановки
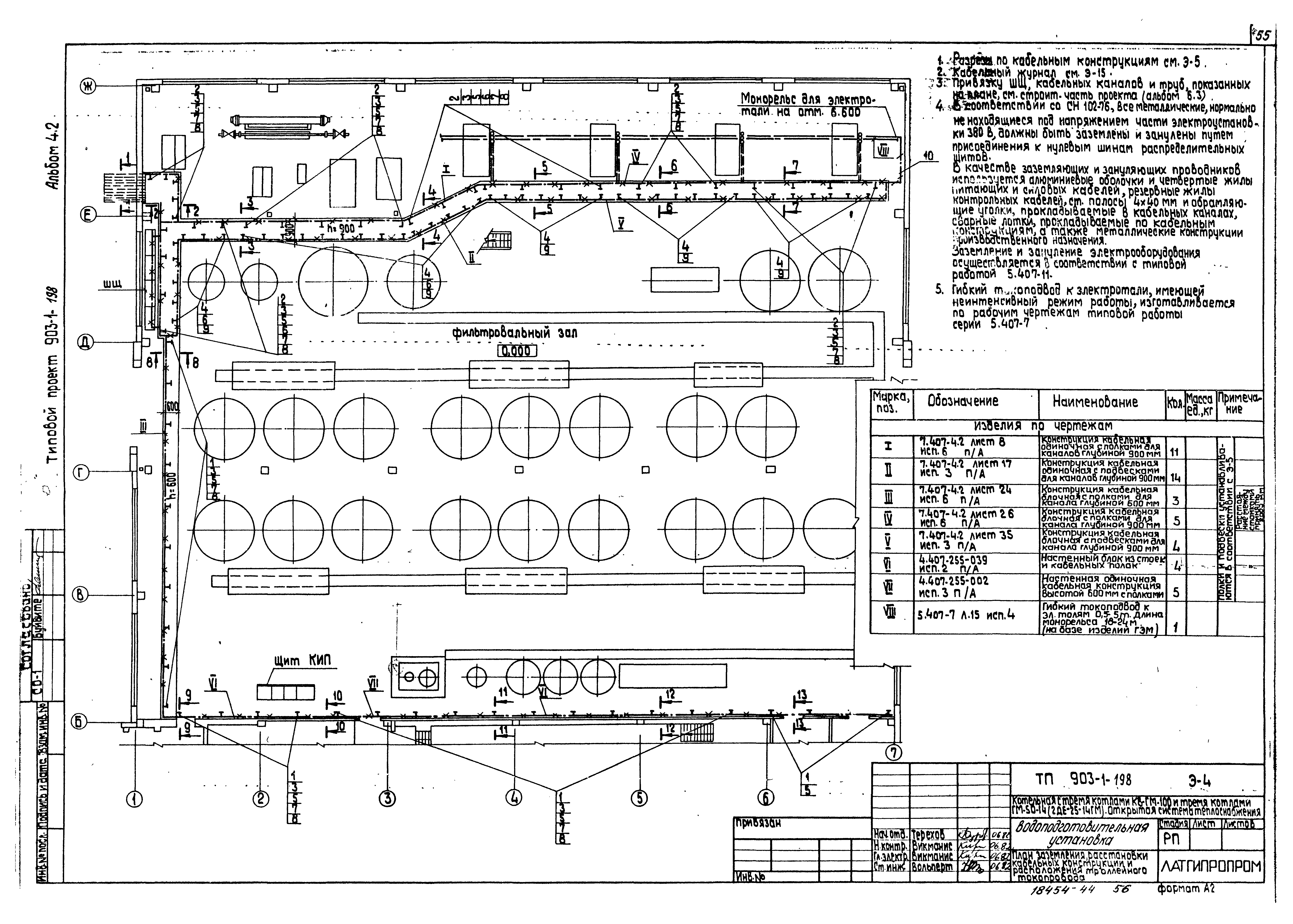
   План заземления и расстановки кабельных конструкций и расположения троллейного токопровода
   Разрезы по кабельным конструкциям
   Насос исходной воды. Насос декарбонизированной воды. Схема принципиальная
   Насос химоочищенной воды. Схема принципиальная
   Насос рабочей воды. Схема принципиальная
   Насос-дозатор щелочи. Механизм, управляемый по месту. Схемы принципиальные
   Задвижка. Схема принципиальная
   Конденсатный насос. Схема принципиальная
   Насос промывки Н-катионитных фильтров. Схема принципиальная
   Схема подключения ШЩ и насосов исходной и декарбонизированной воды
   Ящики управления 1ЯУ, 2ЯУ. Схемы соединений и подключений
   Кабельный журнал
   Осветительная электроустановка. Спецификация и примечания
   План осветительной электроустановки на отм. 0.000 в осях "Б - Ж"
   План осветительной электроустановки на отм. 0.000 в осях "А - Б" и на отм. 4.200
   План осветительной электроустановки на отм. 3.500; 3.600; 14.600. Расчетная схема питающей сети освещения
Связь и сигнализация
   Общие данные
   Связь и сигнализация. Сети на отм. 0.000
   Связь и сигнализация. Сети на отм. 4.200. Схема комплексной сети связи, громкоговорящей связи и радиофикации
Разработан: Латгипропром
Утверждён:14.05.1982 Латгипропром (101А)
Расположен в:Техническая документация Строительство Справочные документы Типовые строительные конструкции, изделия и узлы Общероссийский строительный каталог Промышленные предприятия, здания и сооружения Здания и сооружения санитарно-технические Теплоснабжение Котельные установки Открытые системы теплоснабжения Топливо - газ и мазут
Типовой проект 903-1-198Типовой проект 903-1-198Типовой проект 903-1-198Типовой проект 903-1-198Типовой проект 903-1-198Типовой проект 903-1-198Типовой проект 903-1-198Типовой проект 903-1-198Типовой проект 903-1-198Типовой проект 903-1-198Типовой проект 903-1-198Типовой проект 903-1-198Типовой проект 903-1-198Типовой проект 903-1-198Типовой проект 903-1-198Типовой проект 903-1-198Типовой проект 903-1-198Типовой проект 903-1-198Типовой проект 903-1-198Типовой проект 903-1-198Типовой проект 903-1-198Типовой проект 903-1-198Типовой проект 903-1-198Типовой проект 903-1-198Типовой проект 903-1-198Типовой проект 903-1-198Типовой проект 903-1-198Типовой проект 903-1-198Типовой проект 903-1-198Типовой проект 903-1-198Типовой проект 903-1-198Типовой проект 903-1-198Типовой проект 903-1-198Типовой проект 903-1-198Типовой проект 903-1-198Типовой проект 903-1-198Типовой проект 903-1-198Типовой проект 903-1-198Типовой проект 903-1-198Типовой проект 903-1-198Типовой проект 903-1-198Типовой проект 903-1-198Типовой проект 903-1-198Типовой проект 903-1-198Типовой проект 903-1-198Типовой проект 903-1-198Типовой проект 903-1-198Типовой проект 903-1-198Типовой проект 903-1-198Типовой проект 903-1-198Типовой проект 903-1-198Типовой проект 903-1-198Типовой проект 903-1-198Типовой проект 903-1-198Типовой проект 903-1-198Типовой проект 903-1-198Типовой проект 903-1-198Типовой проект 903-1-198Типовой проект 903-1-198Типовой проект 903-1-198Типовой проект 903-1-198Типовой проект 903-1-198Типовой проект 903-1-198Типовой проект 903-1-198Типовой проект 903-1-198Типовой проект 903-1-198Типовой проект 903-1-198Типовой проект 903-1-198Типовой проект 903-1-198Типовой проект 903-1-198Типовой проект 903-1-198Типовой проект 903-1-198Типовой проект 903-1-198Типовой проект 903-1-198Типовой проект 903-1-198Типовой проект 903-1-198Типовой проект 903-1-198Типовой проект 903-1-198Типовой проект 903-1-198

© 2013 Ёшкин Кот :-) Карта сайта