Информационная система
«Ёшкин Кот»

Скачать базу одним архивом
Скачать обновления
История создания базы
Карта сайта

Скачать Типовой проект 901-3-247.88 Альбом 3. Технология производства. Внутренние водопровод и канализация. Отопление и вентиляция

Дата актуализации: 10.08.2017

Типовой проект 901-3-247.88

Альбом 3. Технология производства. Внутренние водопровод и канализация. Отопление и вентиляция

Обозначение: Типовой проект 901-3-247.88
Обозначение англ: 901-3-247.88
Статус:не определен законодательством
Название рус.:Альбом 3. Технология производства. Внутренние водопровод и канализация. Отопление и вентиляция
Дата добавления в базу:01.10.2014
Дата актуализации:05.05.2017
Дата введения:18.11.1985
Оглавление:Содержание
Технология производства
   Общие данные
   Принципиальная схема обработки воды
   Общеувязочный план на отм. - 2.400; - 0.800; 0.000; 3.600. Экспликация помещений
   Разрезы 1-1, 2-2, 3-3. План кровли с нанесением водосточных воронок
   Зал фильтров. План на отм. 0.000; - 0.800; 3.600
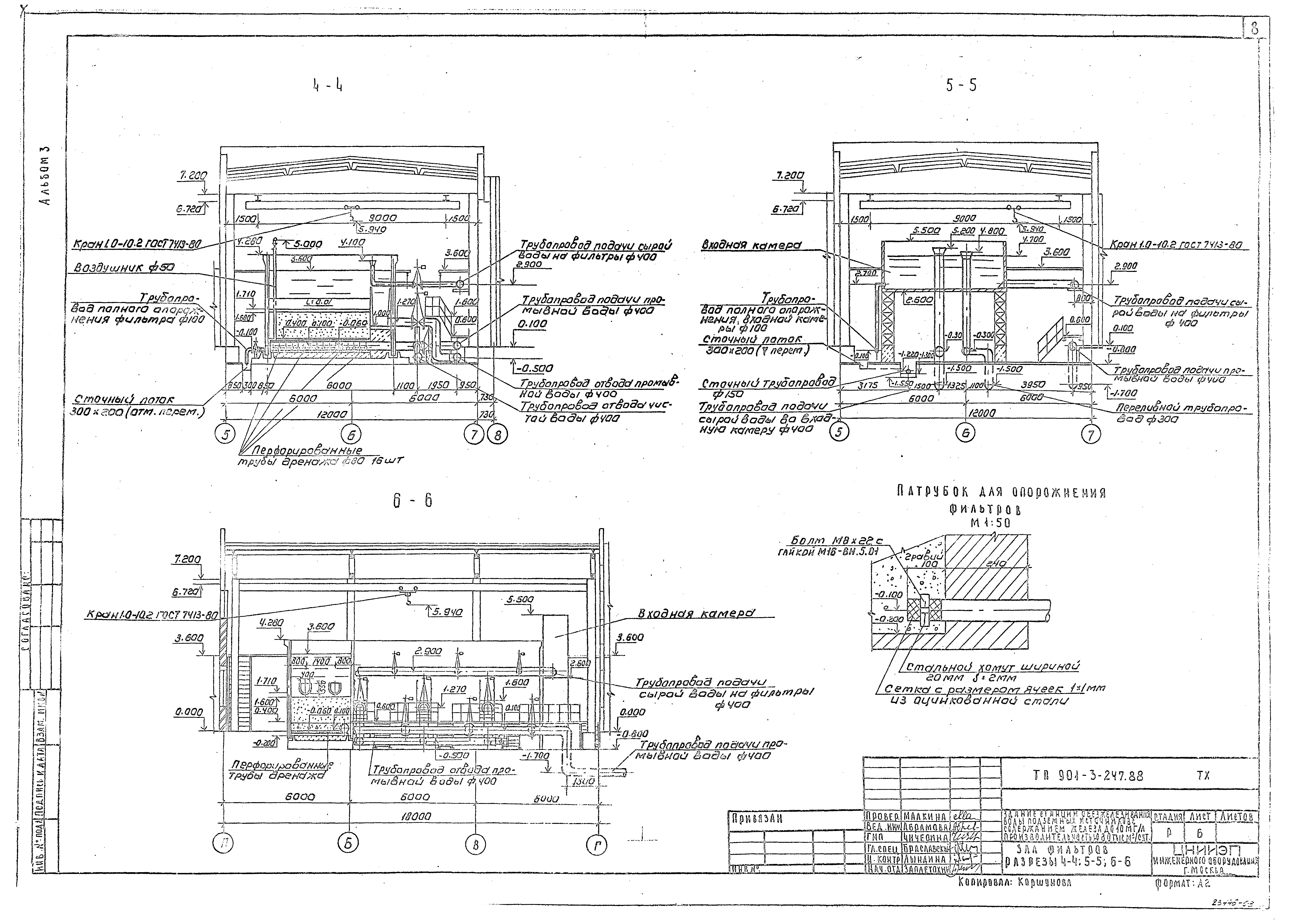
   Зал фильтров. Разрезы 4-4, 5-5, 6-6
   Зал фильтров. Фильтры. Планы на отм. 0.000; 3.600. Разрезы 7-7, 8-8
   Зал фильтров. Схема трубопроводов В1, В9, В10, В11, К3, R1
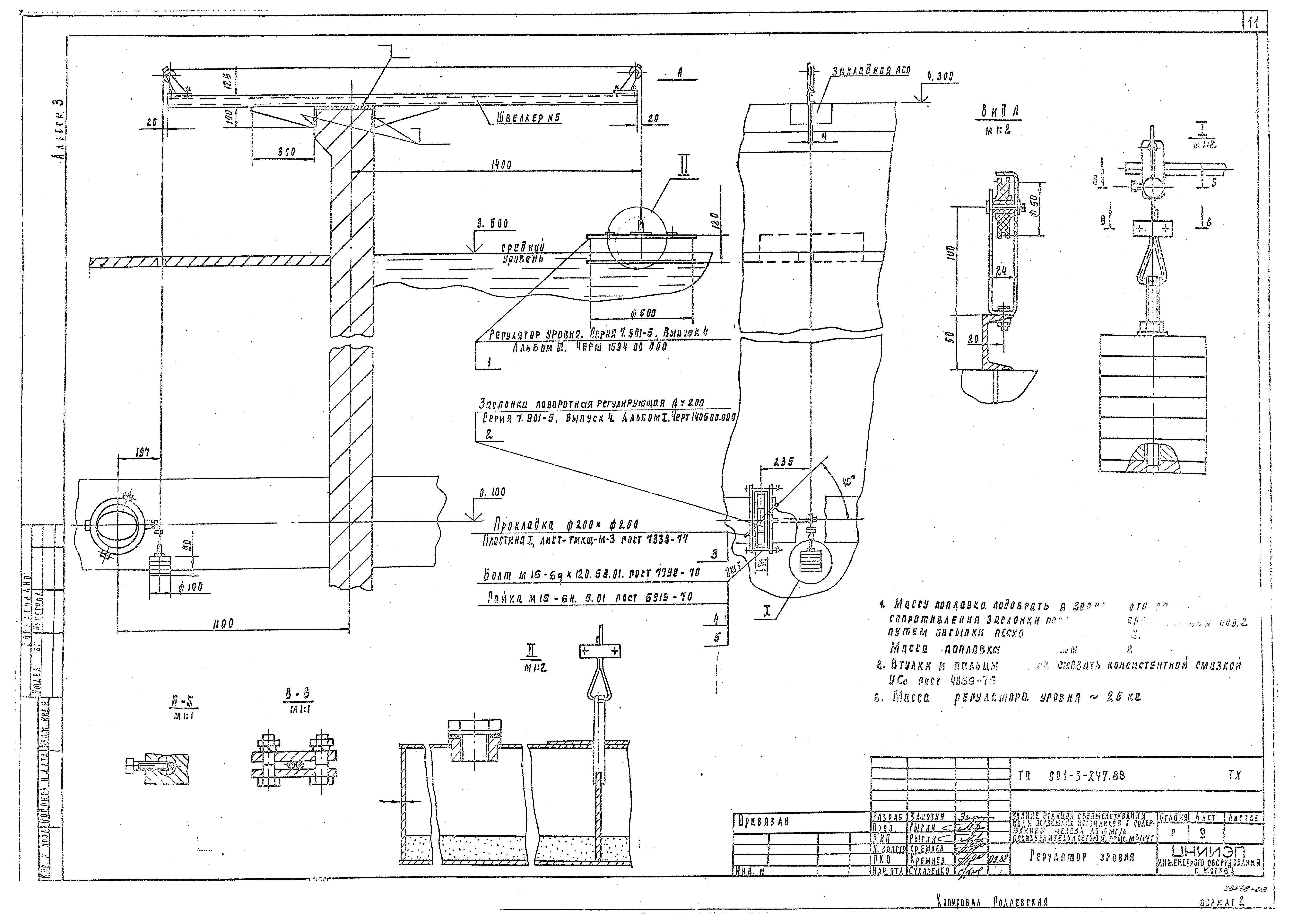
   Зал фильтров. Регулятор уровня
   Зал фильтров. План на отм. 0.000; - 0.800 с нанесением пробоотборных трубок. Схема пробоотборного узла
   Зал фильтров. Насосная станция II-го подъема. Технологический водопровод. План на отм. - 2.400; 0.000; - 0.800; 3.600. Схема трубопроводов В3, К2
   Насосная станция II-го подъема. План на отм. - 2.400; 0.000. План на отм. - 2.400 с нанесением вакуумной системы. Разрезы 9-9, 10-10
   Насосная станция II-го подъема. Схема трубопроводов В1, А2, К3, В10
   Лаборатория. План на отм. 0.000; 3.600 с расстановкой мебели и оборудования
   Механическая мастерская
   Коллектор сборно-распределительный. Эскизный чертеж общего вида
   Тройник. Эскизный чертеж общего вида
   Переход. Эскизный чертеж общего вида
Внутренний водопровод и канализация
   Общие данные
   Планы на отм. 0.000; 3.600. Экспликация помещений
   Схемы трубопроводов В1, Т3, К1, К2
Отопление и вентиляция
   Общие данные
   Планы на отм. 0.000; 3.600
   Схема системы отопления. Схема системы теплоснабжения установок П1, А1, А2. Узел управления
   Схемы систем П1, В1 - В6, ВЕ1 - ВЕ4
   Установки систем П1, В1, В2, В3, В4
   Конфузор
   Переход
Разработан: ЦНИИЭП иженерного оборудования
Утверждён:18.11.1985 Госгражданстрой (Gosgrazhdanstroy 346)
Издан: ЦИТП Госстроя СССР (CITP, Gosstroy (USSR) 1988 г. )
Расположен в:Техническая документация Строительство Справочные документы Типовые строительные конструкции, изделия и узлы Общероссийский строительный каталог Промышленные предприятия, здания и сооружения Здания и сооружения санитарно-технические Водоснабжение Сооружения и установки по подготовке питьевой воды Станция обезжелезивания воды
Типовой проект 901-3-247.88Типовой проект 901-3-247.88Типовой проект 901-3-247.88Типовой проект 901-3-247.88Типовой проект 901-3-247.88Типовой проект 901-3-247.88Типовой проект 901-3-247.88Типовой проект 901-3-247.88Типовой проект 901-3-247.88Типовой проект 901-3-247.88Типовой проект 901-3-247.88Типовой проект 901-3-247.88Типовой проект 901-3-247.88Типовой проект 901-3-247.88Типовой проект 901-3-247.88Типовой проект 901-3-247.88Типовой проект 901-3-247.88Типовой проект 901-3-247.88Типовой проект 901-3-247.88Типовой проект 901-3-247.88Типовой проект 901-3-247.88Типовой проект 901-3-247.88Типовой проект 901-3-247.88Типовой проект 901-3-247.88Типовой проект 901-3-247.88Типовой проект 901-3-247.88Типовой проект 901-3-247.88Типовой проект 901-3-247.88Типовой проект 901-3-247.88

© 2013 Ёшкин Кот :-) Карта сайта