Информационная система
«Ёшкин Кот»

Скачать базу одним архивом
Скачать обновления
История создания базы
Карта сайта

Скачать Типовой проект 111-135-60/1.2 Часть 1. Раздел 1-55. Конструктивные варианты

Дата актуализации: 10.08.2017

Типовой проект 111-135-60/1.2

Часть 1. Раздел 1-55. Конструктивные варианты

Обозначение: Типовой проект 111-135-60/1.2
Обозначение англ: 111-135-60/1.2
Статус:не определен законодательством
Название рус.:Часть 1. Раздел 1-55. Конструктивные варианты
Дата добавления в базу:01.10.2014
Дата актуализации:05.05.2017
Дата введения:26.05.1983
Оглавление:Общие данные
План фундаментов из буронабивных свай в осях "1 - 8"
План фундаментов из буронабивных свай в осях "8 - 12". Разрез I-I
План фундаментов из пирамидальных свай в осях "1 - 8"
План фундаментов из пирамидальных свай в осях "8 - 12". Развертки 7-7 - 9-9
Монтажный план цокольных панелей в осях "1 - 8"
Монтажный план цокольных панелей в осях "8 - 12"
Сечения по фундаментам 1-1 - 6-6
Монтажный план перекрытия над подвалом при ширине панелей 2980 мм
Монтажный план перекрытия над подвалом при ширине панелей 1490 мм
Сводная спецификация ниже 0.000
Монтажные фасады в осях "1 - 12"; "12 - 1"; "Д - А"; "А - Д"
Монтажный план типового этажа в осях "1 - 8"
Монтажный план типового этажа в осях "8 - 12"
Монтажные планы перекрытия типового этажа
Монтажные планы перекрытия над 3 этажом
Сводная спецификация выше 0.000
План торцевой секции
План рядовой секции
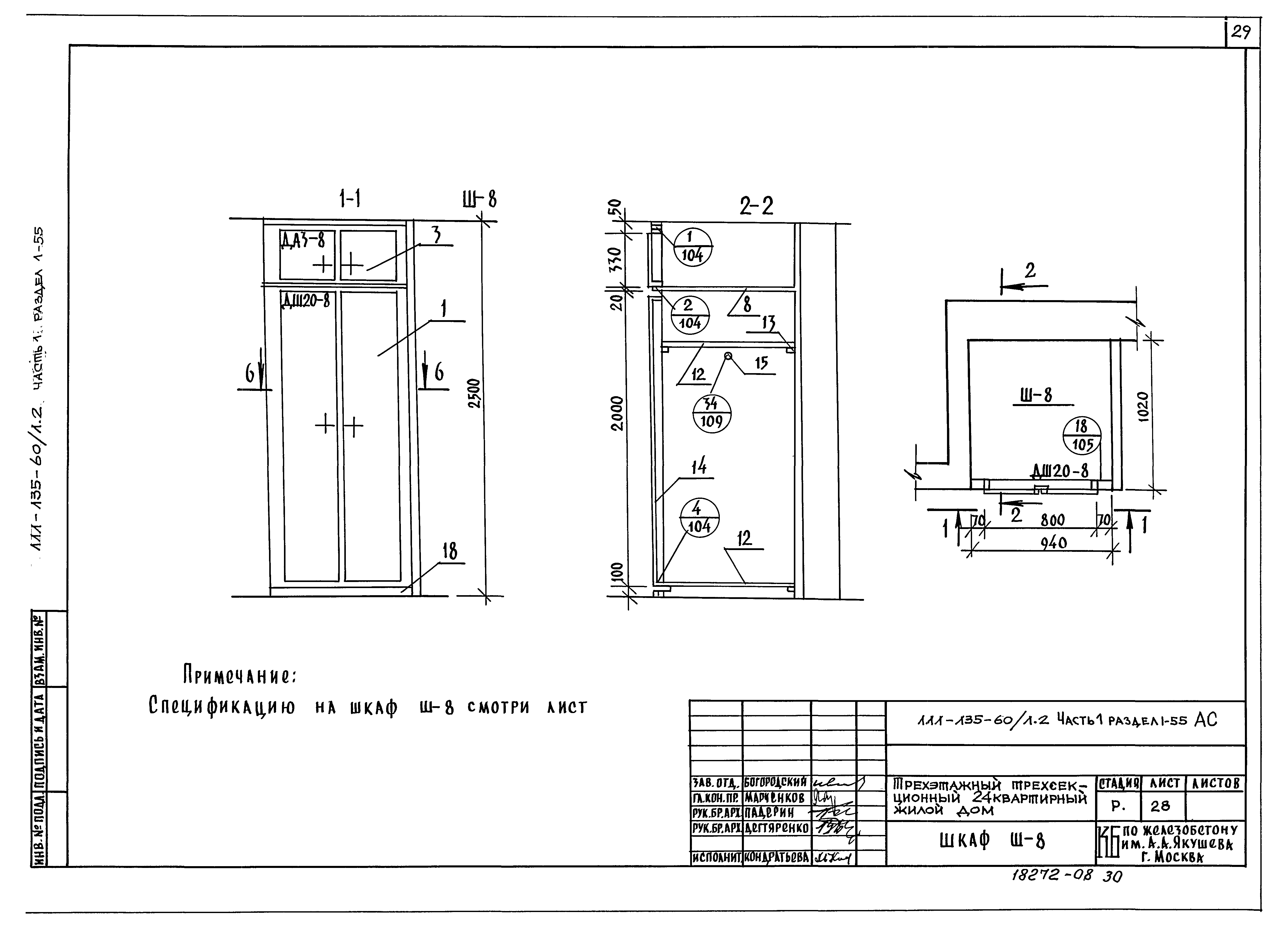
Встроенные шкафы
Состав проекта
Ведомость примененных документов
Монтажные узлы
Разработан: КБ по железобетону им. А.А. Якушева
Утверждён:03.10.1974 Госстрой РСФСР (Russian Federation Gosstroy 56)
Расположен в:Техническая документация Строительство Справочные документы Типовые строительные конструкции, изделия и узлы Общероссийский строительный каталог Жилые здания для строительства в сельской местности Жилые дома панельные Серия 135
Типовой проект 111-135-60/1.2Типовой проект 111-135-60/1.2Типовой проект 111-135-60/1.2Типовой проект 111-135-60/1.2Типовой проект 111-135-60/1.2Типовой проект 111-135-60/1.2Типовой проект 111-135-60/1.2Типовой проект 111-135-60/1.2Типовой проект 111-135-60/1.2Типовой проект 111-135-60/1.2Типовой проект 111-135-60/1.2Типовой проект 111-135-60/1.2Типовой проект 111-135-60/1.2Типовой проект 111-135-60/1.2Типовой проект 111-135-60/1.2Типовой проект 111-135-60/1.2Типовой проект 111-135-60/1.2Типовой проект 111-135-60/1.2Типовой проект 111-135-60/1.2Типовой проект 111-135-60/1.2Типовой проект 111-135-60/1.2Типовой проект 111-135-60/1.2Типовой проект 111-135-60/1.2Типовой проект 111-135-60/1.2Типовой проект 111-135-60/1.2Типовой проект 111-135-60/1.2Типовой проект 111-135-60/1.2Типовой проект 111-135-60/1.2Типовой проект 111-135-60/1.2Типовой проект 111-135-60/1.2Типовой проект 111-135-60/1.2Типовой проект 111-135-60/1.2Типовой проект 111-135-60/1.2Типовой проект 111-135-60/1.2Типовой проект 111-135-60/1.2Типовой проект 111-135-60/1.2Типовой проект 111-135-60/1.2Типовой проект 111-135-60/1.2Типовой проект 111-135-60/1.2Типовой проект 111-135-60/1.2

© 2013 Ёшкин Кот :-) Карта сайта