Информационная система
«Ёшкин Кот»

Скачать базу одним архивом
Скачать обновления
История создания базы
Карта сайта

Скачать Типовой проект 111-135-60/1.2 Часть 0. Общая часть

Дата актуализации: 10.08.2017

Типовой проект 111-135-60/1.2

Часть 0. Общая часть

Обозначение: Типовой проект 111-135-60/1.2
Обозначение англ: 111-135-60/1.2
Статус:не определен законодательством
Название рус.:Часть 0. Общая часть
Дата добавления в базу:01.10.2014
Дата актуализации:05.05.2017
Дата введения:26.05.1983
Оглавление:Общие данные
Фасады в осях 1 - 12; 12 - 1 (вариант со стропильной крышей)
Фасады в осях 1 - 12; 12 - 1 (вариант со стропильной крышей (для привязки))
Фасады в осях 1 - 12; 12 - 1 (вариант с внутренним водостоком)
Фасады в осях 1 - 12; 12 - 1 (вариант с внутренним водостоком (для привязки))
План первого этажа, план подвала
План типового этажа. Фасады с осях "Д - А" для вариантов с внутренним водостоком и стропильной крышей. Разрез 1-1
Торцевая секция 1Б-2Б-3А (левая)
Рядовая секция 3А-4Б
Торцевая секция 1Б-2Б-3А (правая)
Фрагмент фасада (вариант со стропильной крышей)
Фрагмент фасада (вариант с внутренним водостоком)
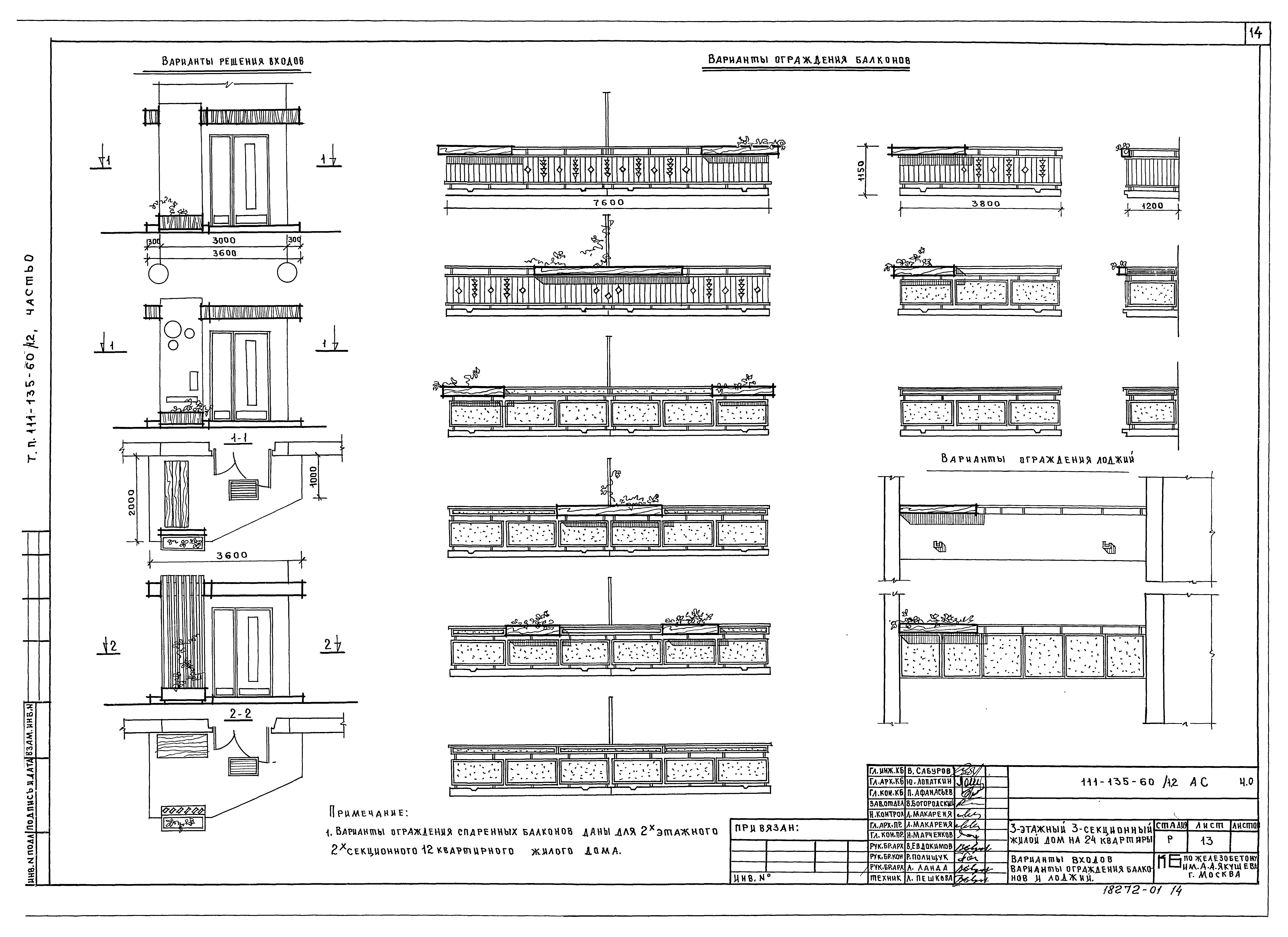
Варианты входов. Варианты ограждения балконов и лоджий
Строительные конструкции и отделка. Инженерное оборудование. Технико-экономические и эксплуатационные показатели
Указания по производству работ
Состав проекта
Указания по применению и привязке проекта
Разработан: КБ по железобетону им. А.А. Якушева
Утверждён:03.10.1974 Госстрой РСФСР (Russian Federation Gosstroy 56)
Расположен в:Техническая документация Строительство Справочные документы Типовые строительные конструкции, изделия и узлы Общероссийский строительный каталог Жилые здания для строительства в сельской местности Жилые дома панельные Серия 135
Типовой проект 111-135-60/1.2Типовой проект 111-135-60/1.2Типовой проект 111-135-60/1.2Типовой проект 111-135-60/1.2Типовой проект 111-135-60/1.2Типовой проект 111-135-60/1.2Типовой проект 111-135-60/1.2Типовой проект 111-135-60/1.2Типовой проект 111-135-60/1.2Типовой проект 111-135-60/1.2Типовой проект 111-135-60/1.2Типовой проект 111-135-60/1.2Типовой проект 111-135-60/1.2Типовой проект 111-135-60/1.2Типовой проект 111-135-60/1.2Типовой проект 111-135-60/1.2Типовой проект 111-135-60/1.2Типовой проект 111-135-60/1.2

© 2013 Ёшкин Кот :-) Карта сайта