Информационная система
«Ёшкин Кот»

Скачать базу одним архивом
Скачать обновления
История создания базы
Карта сайта

Скачать Типовой проект 264-12-318.92 Альбом 9. Пояснительная записка. Кинотехнология. Связь и сигнализация. Пожарная сигнализация

Дата актуализации: 10.08.2017

Типовой проект 264-12-318.92

Альбом 9. Пояснительная записка. Кинотехнология. Связь и сигнализация. Пожарная сигнализация

Обозначение: Типовой проект 264-12-318.92
Обозначение англ: 264-12-318.92
Статус:не определен законодательством
Название рус.:Альбом 9. Пояснительная записка. Кинотехнология. Связь и сигнализация. Пожарная сигнализация
Дата добавления в базу:01.10.2014
Дата актуализации:05.05.2017
Дата введения:17.09.1992
Оглавление:Содержание альбома
Пояснительная записка
Кинотехнология КТ
   Общие данные
   План зала на 600 мест с расположением оборудования и трубной разводкой
   Разрез 1-1 зала на 600 мест
   План кинопроекционной зала на 600 мест с расположением оборудования и трубной разводкой
   Разрез 2-2 кинопроекционной зала на 600 мест с расположением оборудования и трубной разводкой
   Схема подключений электросилового оборудования зала на 600 мест
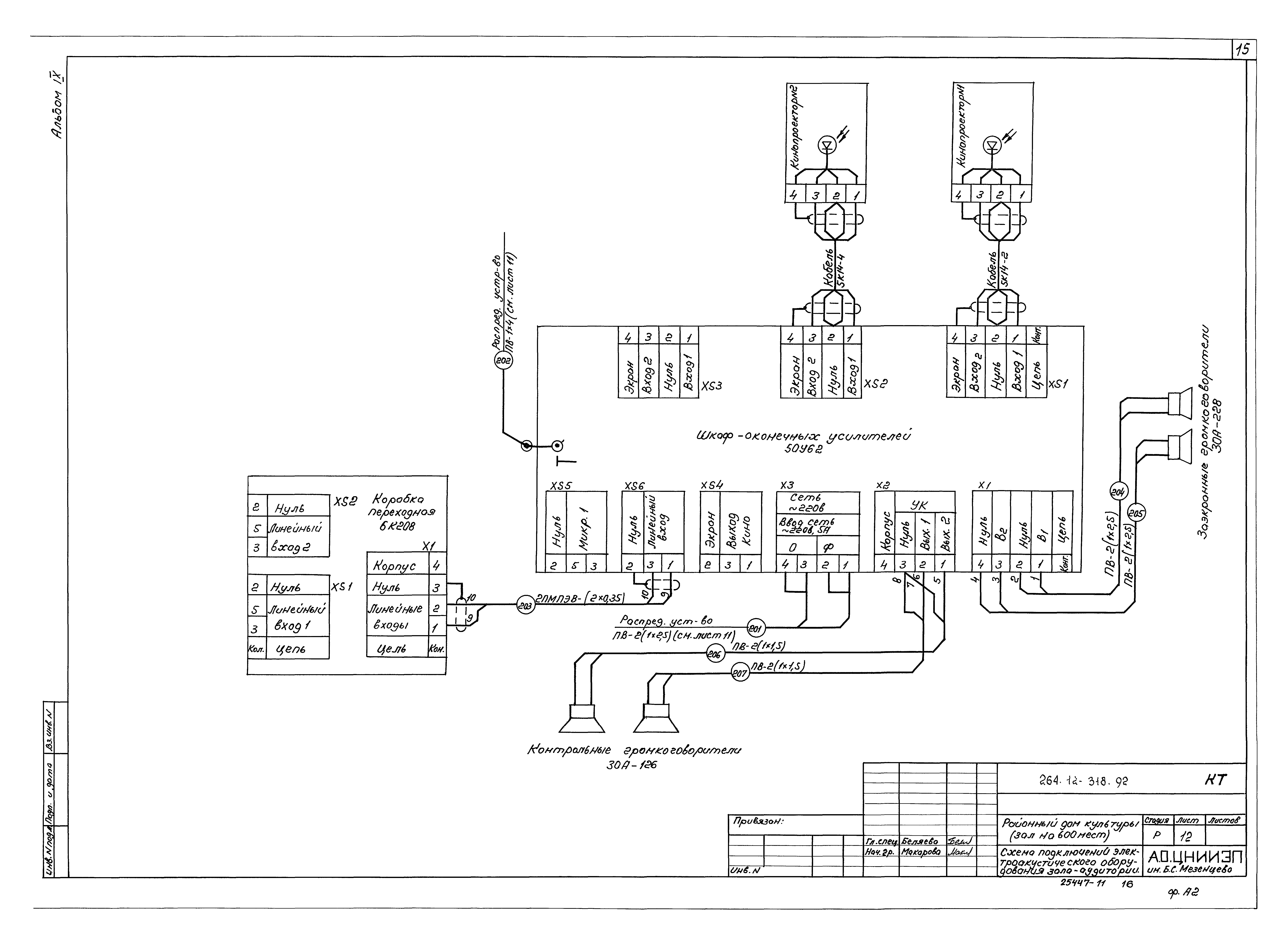
   Схема подключений электроакустического оборудования зала на 600 мест
   План и разрез 3-3 зала-аудитории с расположением оборудования и трубной разводкой
   План кинопроекционной зала-аудитории с расположением оборудования и трубной разводкой
   Разрез 4-4 кинопроекционной зала-аудитории с расположением оборудования и трубной разводкой
   Схема подключений электросилового оборудования зала-аудитории
   Схема подключений электроакустического оборудования зала-аудитории
   Установка киноэкрана и предэкранного занавеса в зале-аудитории
   Узлы. Разрезы (зал-аудитория)
Связь и сигнализация СС
   Общие данные
   Схема стояков и схема сети радиофикации
   Схемы сетей телефонизации и телевидения
   Схема сети электрочасофикации
   Схема сети оповещения о пожаре
   Схема организации технологической связи
   Схемы сетей системы звукоусиления и трансляции спектакля
   Блок-схема системы звукоусиления зрительного зала
   План расположения оборудования в звукоаппаратной
   Сети на плане подвала (зона 1)
   Сети на плане отм. 0.000 (зона 1)
   Сети на плане отм. 3.600 и 4.500 (зона 1)
   Сети на плане подвала (зона 2)
   Сети на плане отм. 0.000 (зона 2)
   Сети на плане отм. 3.600 (зона 2)
   Сети на плане подвесного потолка (зона 2)
   Сети на планах 1-ой и 2-ой рабочих галерей (зона 2)
   Сети на планах 3-ей рабочей галереи и колосников (зона 2)
   Сети на плане подвала (зона 3)
   Сети на плане отм. 0.000 (зона 3)
   Сети на плане отм. 3.600 (зона 3)
   Сети на плане подвала (зона 4)
   Сети на плане отм. 0.000 (зона 4)
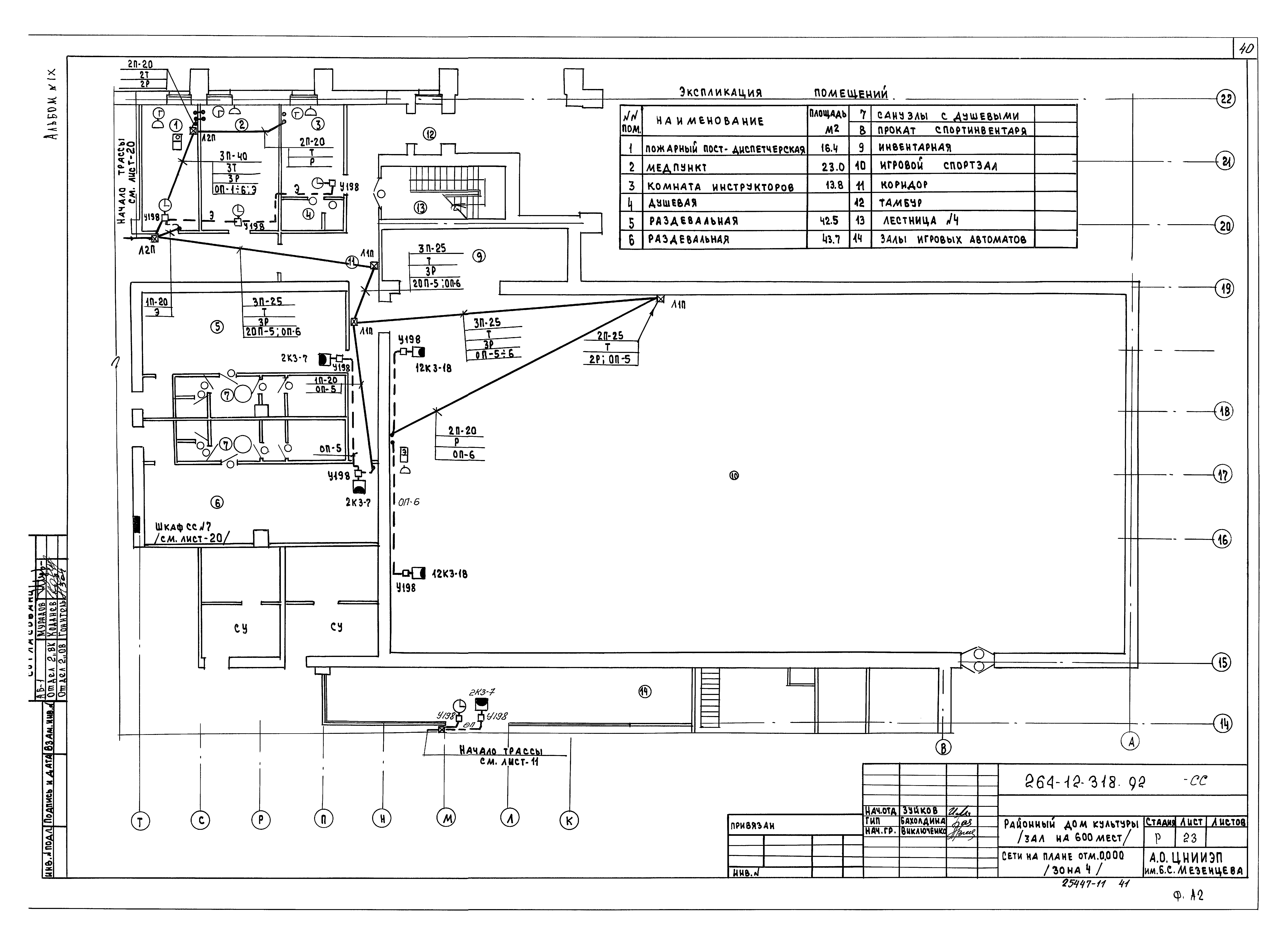
   Сети на плане отм. 3.600 (зона 4)
   План кровли. Контур заземления р/стойки и телеантенны
Пожарная сигнализация ПС
   Общие данные
   Схема сети пожарной сигнализации
   Сети на плане подвала (зона 1)
   Сети на плане подвала (зона 2)
   Сети на плане подвала (зона 3)
   Сети на плане подвала (зона 4)
   Сети на плане отм. 0.000 (зона 1)
   Сети на плане отм. 0.000 (зона 2)
   Сети на плане отм. 0.000 (зона 3)
   Сети на плане отм. 0.000 (зона 4)
   Сети на плане отм. 3.600 и 4.500 (зона 1)
   Сети на плане отм. 3.600 (зона 2)
   Сети на плане отм. 3.600 (зона 3)
   Сети на плане отм. 3.600 (зона 4)
Чертежи основного комплекта марки КТН
   Каркас киноэкрана зала-аудитории
Разработан: ЦНИИЭП им. Б.С. Мезенцева Госкомархитектуры
Утверждён:29.11.1991 Госкомархитектура (2-129)
Расположен в:Техническая документация Строительство Справочные документы Типовые строительные конструкции, изделия и узлы Общероссийский строительный каталог Общественные здания в городах и поселках городского типа Зрелищные и культурно-просветительские учреждения. Здания для органов управления и общественных организаций Зрелищные и культурно-просветительские учреждения Клубы, дома культуры, центры досуга, залы танцевальные, залы игровых автоматов
Типовой проект 264-12-318.92Типовой проект 264-12-318.92Типовой проект 264-12-318.92Типовой проект 264-12-318.92Типовой проект 264-12-318.92Типовой проект 264-12-318.92Типовой проект 264-12-318.92Типовой проект 264-12-318.92Типовой проект 264-12-318.92Типовой проект 264-12-318.92Типовой проект 264-12-318.92Типовой проект 264-12-318.92Типовой проект 264-12-318.92Типовой проект 264-12-318.92Типовой проект 264-12-318.92Типовой проект 264-12-318.92Типовой проект 264-12-318.92Типовой проект 264-12-318.92Типовой проект 264-12-318.92Типовой проект 264-12-318.92Типовой проект 264-12-318.92Типовой проект 264-12-318.92Типовой проект 264-12-318.92Типовой проект 264-12-318.92Типовой проект 264-12-318.92Типовой проект 264-12-318.92Типовой проект 264-12-318.92Типовой проект 264-12-318.92Типовой проект 264-12-318.92Типовой проект 264-12-318.92Типовой проект 264-12-318.92Типовой проект 264-12-318.92Типовой проект 264-12-318.92Типовой проект 264-12-318.92Типовой проект 264-12-318.92Типовой проект 264-12-318.92Типовой проект 264-12-318.92Типовой проект 264-12-318.92Типовой проект 264-12-318.92Типовой проект 264-12-318.92Типовой проект 264-12-318.92Типовой проект 264-12-318.92Типовой проект 264-12-318.92Типовой проект 264-12-318.92Типовой проект 264-12-318.92Типовой проект 264-12-318.92Типовой проект 264-12-318.92Типовой проект 264-12-318.92Типовой проект 264-12-318.92Типовой проект 264-12-318.92Типовой проект 264-12-318.92Типовой проект 264-12-318.92Типовой проект 264-12-318.92Типовой проект 264-12-318.92Типовой проект 264-12-318.92Типовой проект 264-12-318.92Типовой проект 264-12-318.92Типовой проект 264-12-318.92

© 2013 Ёшкин Кот :-) Карта сайта