Скачать Типовой проект 264-12-318.92 Альбом 8. Пояснительная записка. Электроосвещение здания, постановочное освещениеДата актуализации: 10.08.2017 Типовой проект 264-12-318.92
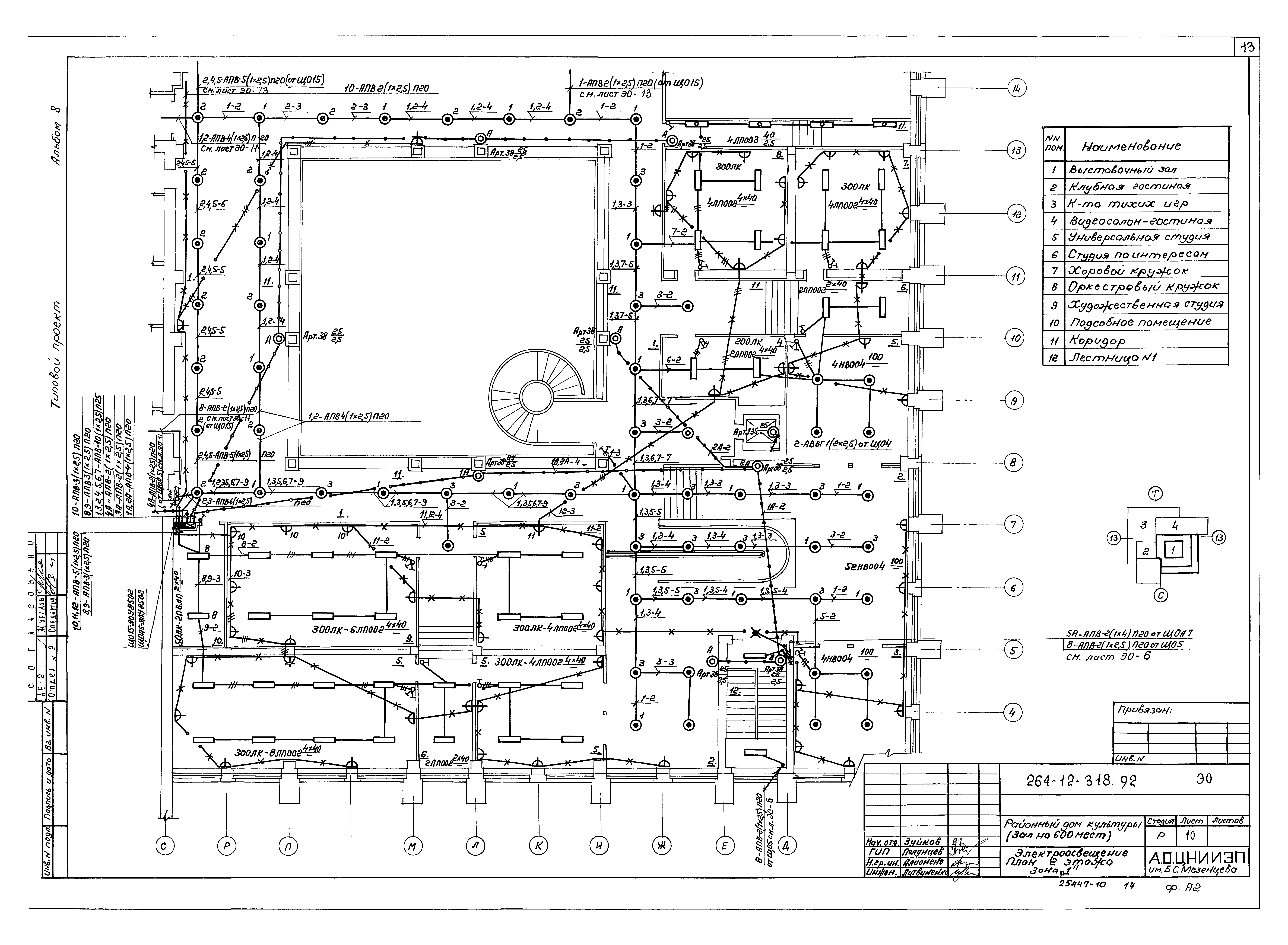
Альбом 8. Пояснительная записка. Электроосвещение здания, постановочное освещениеОбозначение: | Типовой проект 264-12-318.92 | Обозначение англ: | 264-12-318.92 | Статус: | не определен законодательством | Название рус.: | Альбом 8. Пояснительная записка. Электроосвещение здания, постановочное освещение | Дата добавления в базу: | 01.10.2014 | Дата актуализации: | 05.05.2017 | Дата введения: | 17.09.1992 | Оглавление: | Содержание Пояснительная записка Чертежи основного комплекта марки ЭО Общие данные Электроосвещение. План подвала. Зона "1" Электроосвещение. План подвала. Зона "2" Электроосвещение. План подвала. Зона "3" Электроосвещение. План подвала. Зона "4" Электроосвещение. План 1 этажа. Зона "1" Электроосвещение. План 1 этажа. Зона "2" Электроосвещение. План 1 этажа. Зона "3" Электроосвещение. План 1 этажа. Зона "4" Электроосвещение. План 2 этажа. Зона "1" Электроосвещение. План 2 этажа. Зона "2" Электроосвещение. План 2 этажа. Зона "3" Электроосвещение. План 2 этажа. Зона "4" Электроосвещение. План на отм. 8.300; 12.100. Зона "2" Электроосвещение. План кровли. Зоны "1", "4" Электроосвещение. План кровли. Зоны "2", "3" Электроосвещение. Расчетная схема питающей сети рабочего освещения здания 380/220 В Электроосвещение. Расчетная схема питающей сети аварийного освещения здания 36 В Электроосвещение. Питание и управление рабочим освещением зала на 600 мест. Схема принципиальная Электроосвещение. Питание и управление дежурным освещением зала на 600 мест. Схема принципиальная Электроосвещение. Питание и управление рабочим освещением зала на 200 мест. Схема принципиальная Электроосвещение. Питание и управление дежурным освещением зала на 200 мест. Схема принципиальная Электроосвещение. Питание и управление антрактным и межантрктным освещением. Схема принципиальная Электроосвещение. Питание и управление рекламой и иллюминацией. Схема принципиальная Электроосвещение. Питание и управление аварийным освещением. Схема принципиальная Электроосвещение. Ящик 1ЯУ-0. Клеммный ящик ХТ-038. Схема подключений Электроосвещение. Ящики 2ЯУ-0, 3ЯУ-0. Схема подключений Электроосвещение. Ящик 4ЯУ-0. Клеммный ящик ХТ-039. Схема подключений Электроосвещение. Ящики 5ЯУ-0, 6ЯУ-0. Клеммный ящик ХТ-040. Схема подключений Электроосвещение. Ящик 7ЯУ-0. Схема подключений Сводная таблица распределения линий освещения сцены Регулируемые линии освещения. Схема расчетная Нерегулируемое освещение. Схема принципиальная Ультрафиолетовое освещение. Схема принципиальная Силовые включения. Схема принципиальная Рабочее и дежурное освещение. Схема принципиальная Репетиционное освещение. Схема принципиальная СУТО-4-60-2. Схема внешних соединений ШКС-30. Панели 1, 2. Чертеж общего вида ШКС-30. Панели 1, 2. Схема подключений Шкафы регуляторов напряжения 1ШРН - 5ШРН. Схема подключений Шкафы нерегулируемых цепей 1ШНЩ, 2ШНЦ. Ящики 1ЯПКР - 3ППКР. Схема подключений Пульты управления нерегулируемыми цепями 1ПУ-Н-15, 2ПУ-Н-15. Схема подключений Разводка сетей по рампе и 1 софиту Разводка сетей по 2 и 3 софитам Разводка сетей по 4 софиту и софиту арьерсцены Рабочее и аварийное освещение. Планы трюма, планшета и 1 рабочей галереи Рабочее и аварийное освещение. План 2 и 3 рабочих галерей и колосников | Разработан: | ЦНИИЭП им. Б.С. Мезенцева Госкомархитектуры
| Утверждён: | 29.11.1991 Госкомархитектура (2-129)
| Расположен в: |
|
                                                     
|