Информационная система
«Ёшкин Кот»

Скачать базу одним архивом
Скачать обновления
История создания базы
Карта сайта

Скачать Типовой проект 264-12-318.92 Альбом 7. Пояснительная записка. Силовое электрооборудование. Установка электрооборудования и прокладка труб

Дата актуализации: 10.08.2017

Типовой проект 264-12-318.92

Альбом 7. Пояснительная записка. Силовое электрооборудование. Установка электрооборудования и прокладка труб

Обозначение: Типовой проект 264-12-318.92
Обозначение англ: 264-12-318.92
Статус:не определен законодательством
Название рус.:Альбом 7. Пояснительная записка. Силовое электрооборудование. Установка электрооборудования и прокладка труб
Дата добавления в базу:01.10.2014
Дата актуализации:05.05.2017
Дата введения:17.09.1992
Оглавление:Содержание
Пояснительная записка
Общие данные
Главный распределительный щит 380/220 В. Схема принципиальная однолинейная
Шкафы распределительные 1ШР-С - 3ШР-С. Схемы принципиальные однолинейные
Шкафы распределительные 4ШР-С - 6ШР-С. Схемы принципиальные однолинейные
Шкафы распределительные 5ШР-С, 7ШР-С, 9ШР-С. Схемы принципиальные однолинейные
Шкаф распределительный 8ШР-С. Схема принципиальная однолинейная
Шкафы распределительные 10ШР-С, 11ШР-С. Схемы принципиальные однолинейные
Ящики управления 1ЯУ-С - 13ЯУ-С. Схема принципиальная однолинейная
Ящики управления 14ЯУ-С - 21ЯУ-С. Схема принципиальная однолинейная
Таблица электроприводов шкаф 1Щ-А. Вращающийся круг. Схема подключений
Антрактно-раздвижной занавес. Схема принципиальная и подключений
Вращающийся круг. Схема принципиальная
Дымовые люки. Схема принципиальная и подключений
Приводы 201 - 207; 209 - 215; 265 - 271; 279 - 283; 285 - 290; 293 - 295. Схемы принципиальные
Ящик управления 1ЯУ-С. Схема подключений
Ящики управления 2, 4, 6, 7ЯУ-С. Схема подключений
Ящики управления 3, 5, 10, 14ЯУ-С. Схема подключений
Ящик управления 8ЯУ-С. Схема подключений
Ящики управления 9, 12, 13, 19ЯУ-С. Схема подключений
Ящики управления 11, 17, 21ЯУ-С. Схема подключений
Ящики управления 15, 16, 18ЯУ-С. Схема подключений
Ящик управления 20ЯУ-С. Схема подключений
Трубно-кабельный журнал
Подвал. Установка электрооборудования и прокладка труб. Зона 1
План на отм. 0.000. Установка электрооборудования и прокладка труб. Зона 1
План на отм. 3.600 и 4.500. Установка электрооборудования и прокладка труб. Зона 1
Кафе на 50 мест. Установка электрооборудования и прокладка труб. Зона 1
Венткамера №1. Установка электрооборудования и прокладка труб. Зона 1
План подвала. Установка электрооборудования и прокладка труб. Зона 2
Планшет на отм. 0.900. Установка электрооборудования и прокладка труб. Зона 2
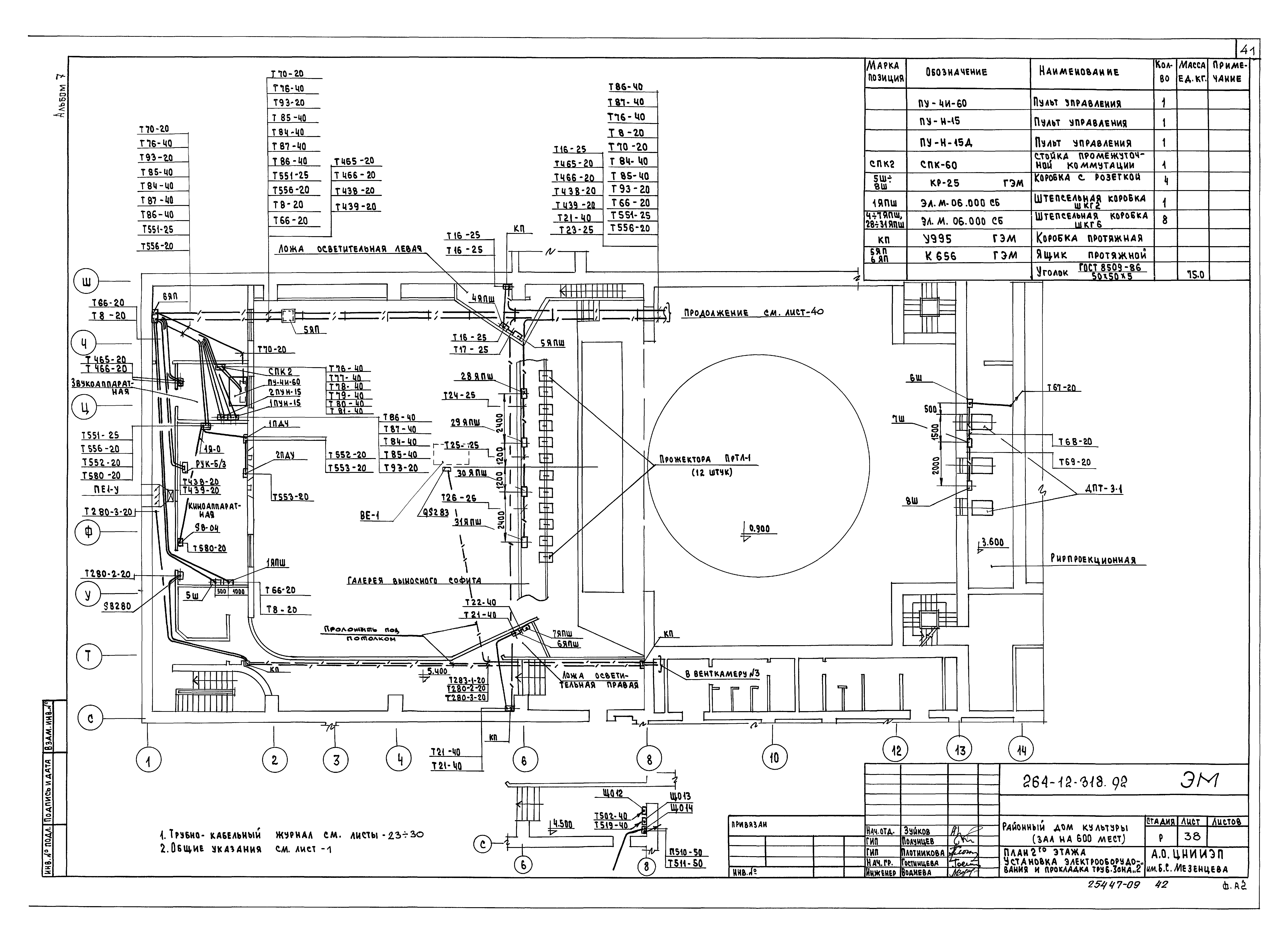
План 2-го этажа. Установка электрооборудования и прокладка труб. Зона 2
1-ая рабочая галерея. Установка электрооборудования и прокладка труб. Зона 2
2-ая рабочая галерея. Установка электрооборудования и прокладка труб. Зона 2
Колосники. Установка электрооборудования и прокладка труб. Зона 2
Узлы I и III. Установка электрооборудования и прокладка труб. Зона 2
Портальные кулисы. Установка электрооборудования и прокладка труб. Зона 2
Тиристорная. Установка электрооборудования и прокладка труб. Зона 2
Венткамеры №3 и №4. Установка электрооборудования и прокладка труб. Зона 2
Электрощитовая. Установка электрооборудования и прокладка труб. Зона 2
Технические условия на изготовление гибких сценических лент
План подвала. Установка электрооборудования и прокладка труб. Зона 3
План 1-го этажа. Установка электрооборудования и прокладка труб. Зона 3
План 2-го этажа. Установка электрооборудования и прокладка труб. Зона 3
Венткамера №2. Установка электрооборудования и прокладка труб. Зона 3
Подвал. Установка электрооборудования и прокладка труб. Зона 4
План на отм. 0.000. Установка электрооборудования и прокладка труб. Зона 4
План на отм. 3.600. Установка электрооборудования и прокладка труб. Зона 4
Венткамеры №5 и №6. Установка электрооборудования и прокладка труб. Зона 4
Главный распределительный щит 380/220 В. Опросный лист
Разработан: ЦНИИЭП им. Б.С. Мезенцева Госкомархитектуры
Утверждён:29.11.1991 Госкомархитектура (2-129)
Расположен в:Техническая документация Строительство Справочные документы Типовые строительные конструкции, изделия и узлы Общероссийский строительный каталог Общественные здания в городах и поселках городского типа Зрелищные и культурно-просветительские учреждения. Здания для органов управления и общественных организаций Зрелищные и культурно-просветительские учреждения Клубы, дома культуры, центры досуга, залы танцевальные, залы игровых автоматов
Типовой проект 264-12-318.92Типовой проект 264-12-318.92Типовой проект 264-12-318.92Типовой проект 264-12-318.92Типовой проект 264-12-318.92Типовой проект 264-12-318.92Типовой проект 264-12-318.92Типовой проект 264-12-318.92Типовой проект 264-12-318.92Типовой проект 264-12-318.92Типовой проект 264-12-318.92Типовой проект 264-12-318.92Типовой проект 264-12-318.92Типовой проект 264-12-318.92Типовой проект 264-12-318.92Типовой проект 264-12-318.92Типовой проект 264-12-318.92Типовой проект 264-12-318.92Типовой проект 264-12-318.92Типовой проект 264-12-318.92Типовой проект 264-12-318.92Типовой проект 264-12-318.92Типовой проект 264-12-318.92Типовой проект 264-12-318.92Типовой проект 264-12-318.92Типовой проект 264-12-318.92Типовой проект 264-12-318.92Типовой проект 264-12-318.92Типовой проект 264-12-318.92Типовой проект 264-12-318.92Типовой проект 264-12-318.92Типовой проект 264-12-318.92Типовой проект 264-12-318.92Типовой проект 264-12-318.92Типовой проект 264-12-318.92Типовой проект 264-12-318.92Типовой проект 264-12-318.92Типовой проект 264-12-318.92Типовой проект 264-12-318.92Типовой проект 264-12-318.92Типовой проект 264-12-318.92Типовой проект 264-12-318.92Типовой проект 264-12-318.92Типовой проект 264-12-318.92Типовой проект 264-12-318.92Типовой проект 264-12-318.92Типовой проект 264-12-318.92Типовой проект 264-12-318.92Типовой проект 264-12-318.92Типовой проект 264-12-318.92Типовой проект 264-12-318.92Типовой проект 264-12-318.92Типовой проект 264-12-318.92Типовой проект 264-12-318.92Типовой проект 264-12-318.92Типовой проект 264-12-318.92Типовой проект 264-12-318.92Типовой проект 264-12-318.92Типовой проект 264-12-318.92Типовой проект 264-12-318.92Типовой проект 264-12-318.92Типовой проект 264-12-318.92Типовой проект 264-12-318.92

© 2013 Ёшкин Кот :-) Карта сайта