Информационная система
«Ёшкин Кот»

Скачать базу одним архивом
Скачать обновления
История создания базы
Карта сайта

Скачать Типовой проект 264-12-318.92 Альбом 2. Часть 2. Конструкции железобетонные

Дата актуализации: 10.08.2017

Типовой проект 264-12-318.92

Альбом 2. Часть 2. Конструкции железобетонные

Обозначение: Типовой проект 264-12-318.92
Обозначение англ: 264-12-318.92
Статус:не определен законодательством
Название рус.:Альбом 2. Часть 2. Конструкции железобетонные
Дата добавления в базу:01.10.2014
Дата актуализации:05.05.2017
Дата введения:17.09.1992
Оглавление:Конструкции железобетонные (продолжение)
   Зона 1. Схема каркаса на отм. 3.600 и 4.500. Спецификация
   Зона 1. Схема каркаса на отм. Покрытия. Развертки
   Зона 2. Порталы №№1 и 2. Монтажные схемы
   Зона 2. Монолитная железобетонная колонна МК-2. Опалубка и армирование
   Зоны 3 и 4. Схема балок на отм. 3.600. Спецификация
   Зоны 3 и 4. Узлы опирания балок на отм. 3.600
   Зоны 1 - 4. Схема балок покрытия. Спецификация
   Зоны 1 - 4. Узлы балок покрытия
   Зона 1. План перекрытия на отм. 3.600; 4.500
   Зона 1. План покрытия
   Зона 1. Сечения 7-7 - 11-11
   Зона 2. План перекрытия на отм. 3.600; 4.550 и 4.450
   Развертка стены кинопроекционной
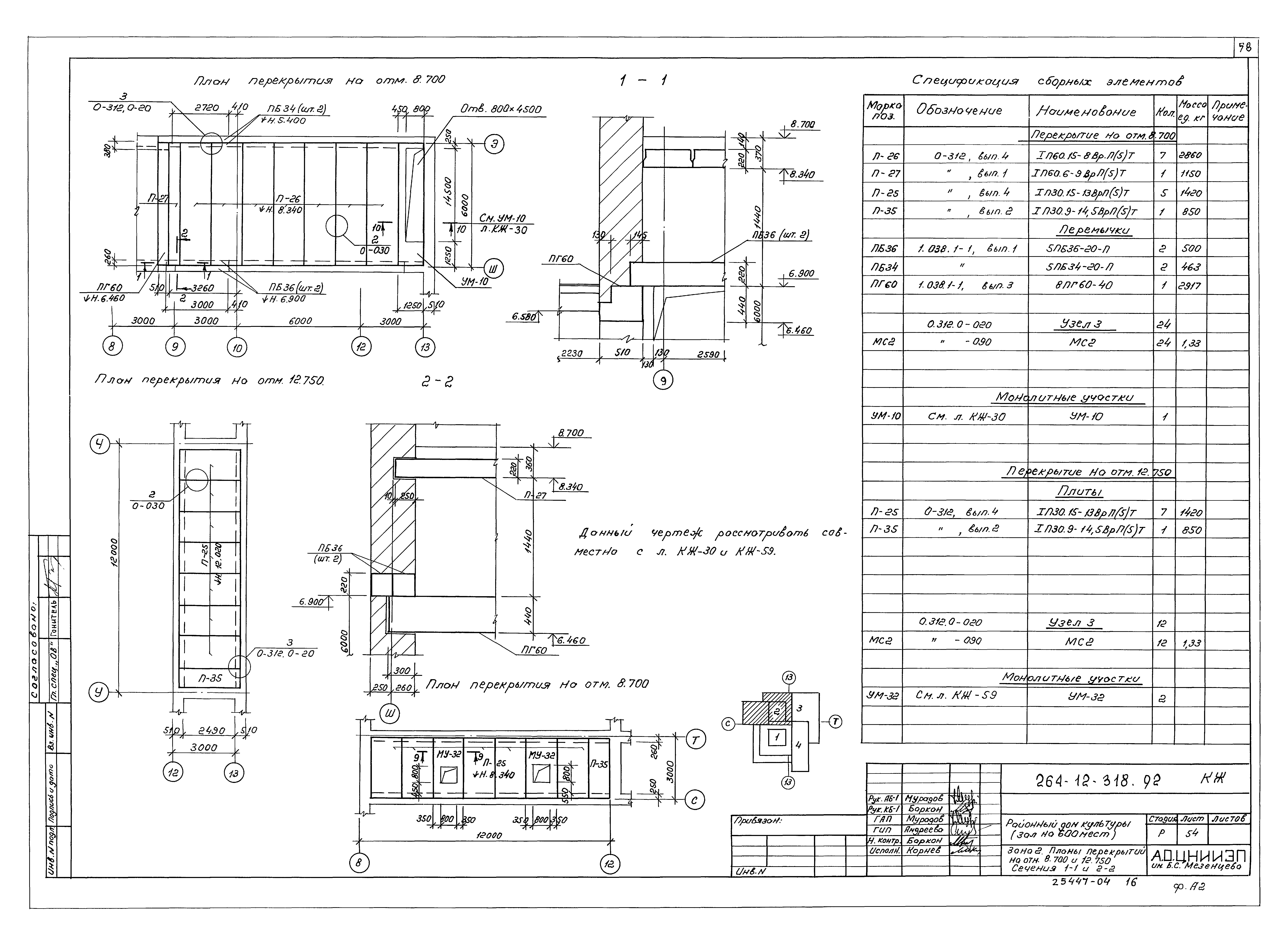
   Зона 2. Планы перекрытий на отм. 8.700 и 12.750. Сечения 1-1 и 2-2
   Зона 2. План покрытия на отм. 6.580; 10.000; 15.630; 20.200
   Зона 2. Покрытие. Сечения 1-1 - 5-5
   Зона 2. Монолитные железобетонные участки перекрытий УМ-24 - УМ-27. Сечения 1-1 - 8-8
   Зона 2. Монолитные железобетонные участки перекрытий УМ-28, УМ-29. Сечения
   Зона 2. Монолитные железобетонные участки перекрытий УМ-30 - УМ-32, УМ-44, УМ-45
   Зона 2. Опорные плиты ОМ-2, ОМ-3. Ведомость расхода стали на УМ-24 - УМ-32
   Зона 2. Сечения по перекрытию и подпольный желоб на отм. 5.450
   Зона 3. Гребенка зала в осях "14 - 17"; "У" - "Ш". Узлы
   Зона 3. Монолитная железобетонная балка на отм. 2.400 и опорная плита МОП-1
   Зона 3. План перекрытия на отм. 3.600
   Зона 3. План покрытия
   Зона 4. План перекрытия на отм. 3.600
   Зона 4. План покрытия
   Зоны 3 и 4. Сечения по перекрытиям
   Зоны 3 и 4. Монолитные железобетонные участки перекрытий УМ-33 - УМ-42
   Лестницы №№1 - 3. Монтажные схемы
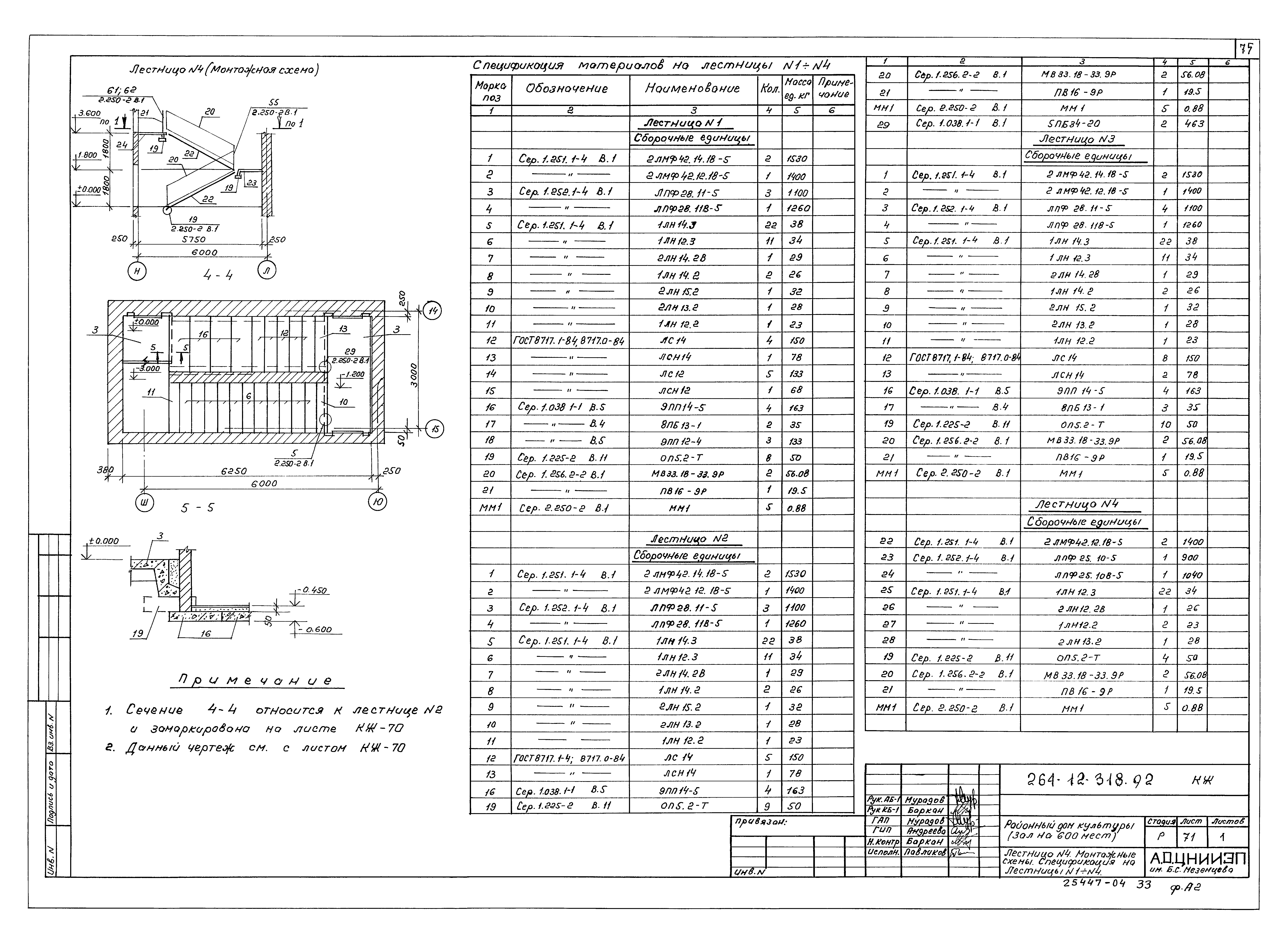
   Лестница №4. Монтажная схема. Спецификация на лестницы №1 - 4
   Лестница №5. Сечения 1-1 - 4-4
   Лестница №5. Узлы 1 - 3. Монолитные железобетонные площадки
   Лестница №6. Монтажная схема. Сечения 1-1 - 5-5
   Лестница №6. Сечение 6-6
   Лестница №7. Монтажные схемы. Сечения 1-1 - 5-5
   Лестница №7. Сечение 6-6. Узлы и детали
   Развертка стены по оси "Ш" в осях "8 - 12". Узлы с "А" - "Д". Лестницы площадки №3
   Лестница №8. Опалубочно-арматурный чертеж. Сечения с 1-1 по 10-10. Узел 1
   Лестница №8. Сечения 11-11, 12-12, ЗД-1, ЗД-2. Арматурные изделия. Спецификация
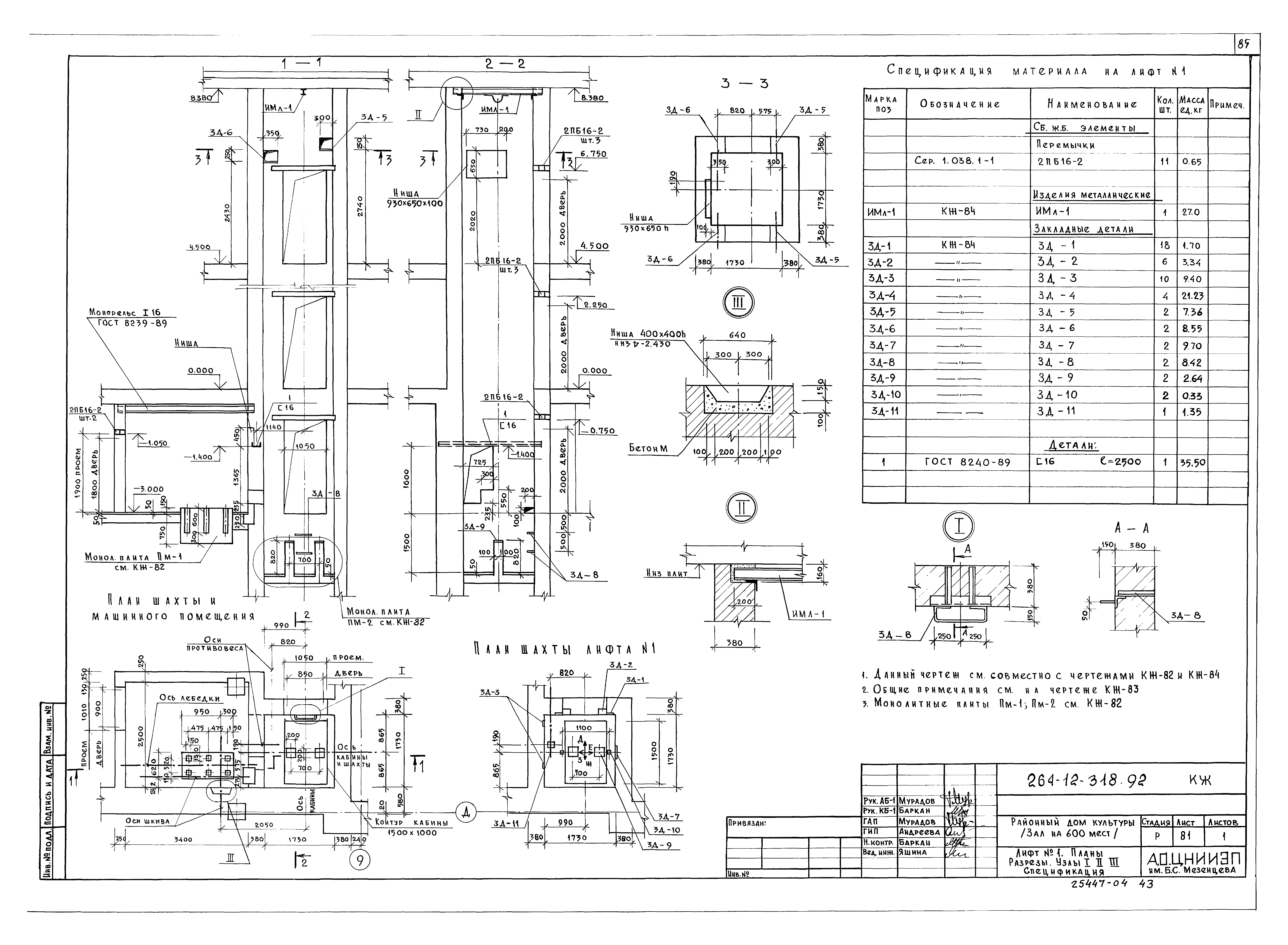
   Лифт №1. Планы, разрезы. Узлы I, II, III. Спецификация
   Лифт №1. Развертки стен. Данные для заказа лифтов №№1, 2. Спецификация на лифт №2
   Лифт №2. Планы, разрезы, развертки стен
   Лифты №1, 2. Закладные детали
   Лифт №3. Планы, разрезы, развертки стен. Данные для заказа лифта №3
   Лифт №3. Закладные детали. Спецификация
   Зона 2. Опорные плиты ОМ-2, ОМ-3. Арматурные изделия, закладные детали
   Планшет сцены. План. Сечения 1-1 - 4-4
   Планшет сцены. Сечения 5-5 - 14-14
   План раскладки щитов оркестровой ямы и кожухов рампы. Конструкция барьера оркестровой ямы
   Деревянные щиты ИД-1 - ИД-5, ИД-9
   Деревянные щиты ИД-6 - ИД-8
   Развертка стены киноэкрана по оси 14 в осях "У - Ш"
   Тиристорная. План. Сечения 1-1 - 4-4
   Фахверк зрительного зала по оси "Ш"
   Фахверк зрительного зала по оси "С". Спецификация
   Ведомость типов перемычек
   Спецификация перемычек
Разработан: ЦНИИЭП им. Б.С. Мезенцева Госкомархитектуры
Утверждён:29.11.1991 Госкомархитектура (2-129)
Расположен в:Техническая документация Строительство Справочные документы Типовые строительные конструкции, изделия и узлы Общероссийский строительный каталог Общественные здания в городах и поселках городского типа Зрелищные и культурно-просветительские учреждения. Здания для органов управления и общественных организаций Зрелищные и культурно-просветительские учреждения Клубы, дома культуры, центры досуга, залы танцевальные, залы игровых автоматов
Типовой проект 264-12-318.92Типовой проект 264-12-318.92Типовой проект 264-12-318.92Типовой проект 264-12-318.92Типовой проект 264-12-318.92Типовой проект 264-12-318.92Типовой проект 264-12-318.92Типовой проект 264-12-318.92Типовой проект 264-12-318.92Типовой проект 264-12-318.92Типовой проект 264-12-318.92Типовой проект 264-12-318.92Типовой проект 264-12-318.92Типовой проект 264-12-318.92Типовой проект 264-12-318.92Типовой проект 264-12-318.92Типовой проект 264-12-318.92Типовой проект 264-12-318.92Типовой проект 264-12-318.92Типовой проект 264-12-318.92Типовой проект 264-12-318.92Типовой проект 264-12-318.92Типовой проект 264-12-318.92Типовой проект 264-12-318.92Типовой проект 264-12-318.92Типовой проект 264-12-318.92Типовой проект 264-12-318.92Типовой проект 264-12-318.92Типовой проект 264-12-318.92Типовой проект 264-12-318.92Типовой проект 264-12-318.92Типовой проект 264-12-318.92Типовой проект 264-12-318.92Типовой проект 264-12-318.92Типовой проект 264-12-318.92Типовой проект 264-12-318.92Типовой проект 264-12-318.92Типовой проект 264-12-318.92Типовой проект 264-12-318.92Типовой проект 264-12-318.92Типовой проект 264-12-318.92Типовой проект 264-12-318.92Типовой проект 264-12-318.92Типовой проект 264-12-318.92Типовой проект 264-12-318.92Типовой проект 264-12-318.92Типовой проект 264-12-318.92Типовой проект 264-12-318.92Типовой проект 264-12-318.92Типовой проект 264-12-318.92Типовой проект 264-12-318.92Типовой проект 264-12-318.92Типовой проект 264-12-318.92Типовой проект 264-12-318.92Типовой проект 264-12-318.92Типовой проект 264-12-318.92Типовой проект 264-12-318.92Типовой проект 264-12-318.92Типовой проект 264-12-318.92Типовой проект 264-12-318.92

© 2013 Ёшкин Кот :-) Карта сайта