| ||||||||||||||||||||||||||||||||
Скачать РМД 35-14-2012 Санкт-Петербург Рекомендуемые для повторного применения проектные решения по обеспечению доступности для инвалидов и других маломобильных групп населения образовательных учреждений Санкт-Петербурга, построенных по типовым проектам в 60 - 80 годах ХХ векаДата актуализации: 10.08.2017
|
| Обозначение: | РМД 35-14-2012 Санкт-Петербург |
| Обозначение англ: | 35-14-2012 Санкт-Петербург |
| Статус: | действует |
| Название рус.: | Рекомендуемые для повторного применения проектные решения по обеспечению доступности для инвалидов и других маломобильных групп населения образовательных учреждений Санкт-Петербурга, построенных по типовым проектам в 60 - 80 годах ХХ века |
| Дата добавления в базу: | 01.10.2014 |
| Дата актуализации: | 05.05.2017 |
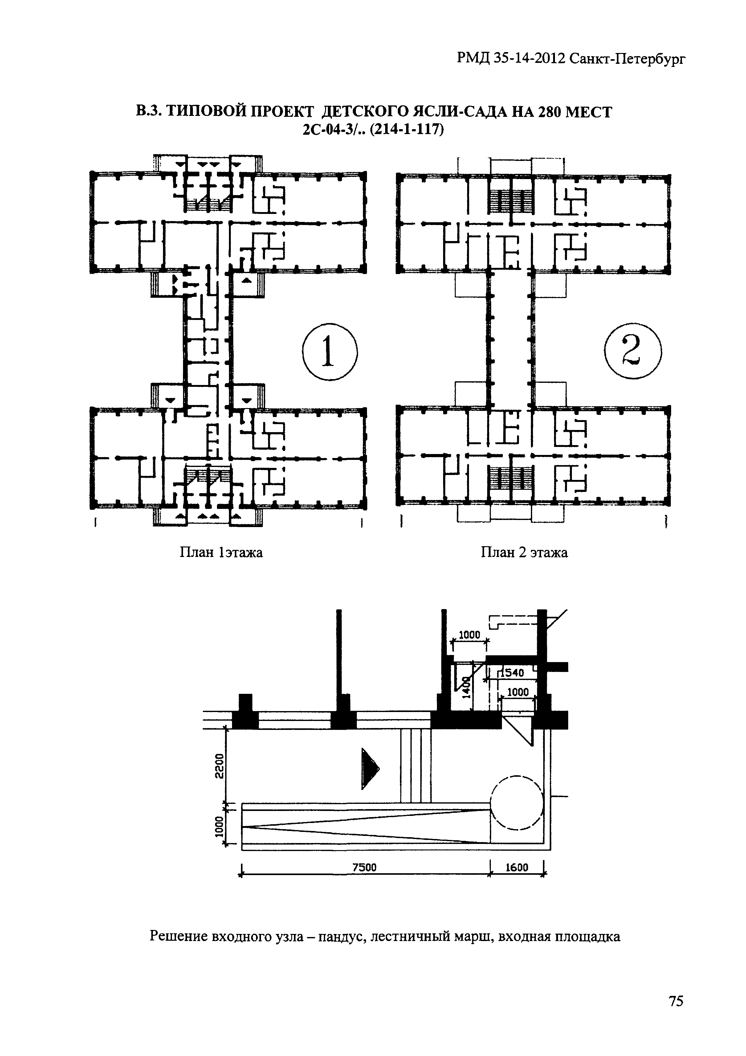
| Область применения: | В документе представлены: типология образовательных учреждений, построенных в 60-80 годах ХХ века по типовым проектам, номенклатура типовых проектов по каждому типу образовательных учреждений, анализ частоты применения того или иного типового проекта для каждого типа образовательного учреждения, выделены наиболее часто встречающиеся типовые проекты рассматриваемых объектов, рекомендуемые к применению в образовательных учреждениях архитектурно-планировочные решения по обеспечению доступности для маломобильных групп населения, примеры укрупненного расчета стоимости совокупности предлагаемых мероприятий по основным разновидностям типовых проектов образовательных учреждений 60-80 гг. Документ содержит примеры архитектурно-компоновочных решений, виды оборудования, их параметры и характеристики. В документе учтен опыт отечественных и зарубежных специалистов в этой области, в том числе разработки различных авторов и творческих коллективов. |
| Оглавление: | Введение 1 Область применения 2 Нормативные ссылки 3 Термины и определения 4 Образовательные учреждения. построенные по типовым проектам в 60-80 годах ХХ века 5 Общие положения 6 Требования к обеспечению доступности территорий земельных участков 7 Требования к обеспечению доступности зданий 7.1 Входной узел 7.2 Вестибюльная группа помещений 7.3 Вертикальные коммуникации (архитектурные элементы и технические средства доступности) 7.4 Поэтажные коммуникационные пространства 7.5 Пожаробезопасная зона 7.6 Помещения общего пользования 7.7 Входы в рабочие помещения 7.8 Условия доступности внутри помещений 7.9 Расчет стоимости предлагаемых мероприятий Библиография Приложение А (справочное) Термины и их определения Приложение Б (рекомендуемое) Варианты планировочных решений реконструкционных мероприятий и примеры укрупненного расчета стоимости для типовых проектов школьных образовательных учреждений, получивших распространение в 60-80 гг. ХХ века Приложение В (рекомендуемое) Варианты планировочных решений реконструкционных мероприятий и примеры укрупненного расчета стоимости для типовых проектов дошкольных образовательных учреждений, получивших распространение в 60-80 гг. ХХ века Приложение Г (рекомендуемое) Функциональные объемно-планировочные элементы, обеспечивающие доступность МГН Приложение Д (справочное) Варианты архитектурно-конструктивного построения пандусов Приложение Е (справочное) Оценка состояния жилой среды для последующего определения перечня мероприятий по обеспечению доступности МГН от жилого дома до первичных объектов социальной инфраструктуры (школы, детские дошкольные учреждения) Приложение Ж (рекомендуемое) Альбом проектных решений |
| Разработан: | ЗАО Инженерная ассоциация Ленстройинжсервис СПбГАСУ |
| Утверждён: | 14.05.2012 Комитет по строительству Правительства Санкт-Петербурга (48) |
| Принят: | Комитет по градостроительству и архитектуре Администрации Санкт-Петербурга (Committee on Urban Planning and Architecture, Administration of St. Petersburg ) Служба государственного строительного надзора и экспертизы Санкт-Петербурга Комитет по здравоохранению Правительства Санкт-Петербурга Комитет по социальной политике Санкт-Петербурга Управление Роспотребнадзора по г. Санкт-Петербург |
| Издан: | Администрация Санкт-Петербурга (2012 г. ) |
| Расположен в: | |
| Нормативные ссылки: |
|












































































































