Скачать Типовой проект 503-6-8.86 Альбом III. Сооружения АЗС. Чертежи (наружная канализация, архитектурно-строительные решения, строительные изделия, конструкции металлические)Дата актуализации: 10.08.2017 Типовой проект 503-6-8.86
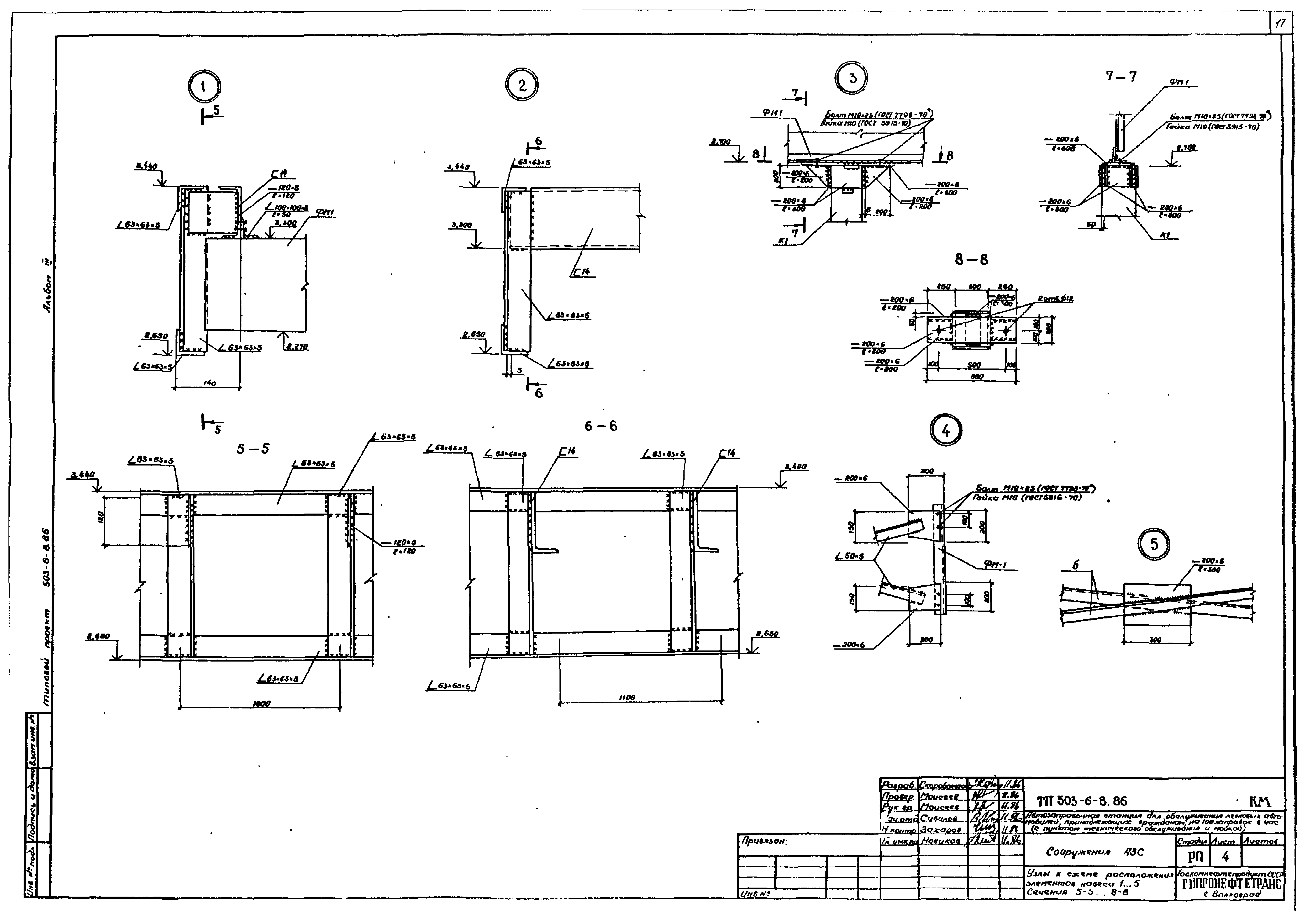
Альбом III. Сооружения АЗС. Чертежи (наружная канализация, архитектурно-строительные решения, строительные изделия, конструкции металлические)Обозначение: | Типовой проект 503-6-8.86 | Обозначение англ: | 503-6-8.86 | Статус: | не определен законодательством | Название рус.: | Альбом III. Сооружения АЗС. Чертежи (наружная канализация, архитектурно-строительные решения, строительные изделия, конструкции металлические) | Дата добавления в базу: | 01.09.2013 | Дата актуализации: | 05.05.2017 | Дата введения: | 01.01.1986 | Оглавление: | Наружная канализация Общие данные План отстойника. Разрезы 1-1, 2-2 План фильтра. Разрезы 1-1, 2-2 План колодца-сборника. Разрезы 1-1, 2-2, 3-3 Архитектурно-строительные решения Общие данные Схема расположения асбестоцементных листов покрытия и обрамления навеса. Узлы 1…3. Сечения 1-1…5-5 Схема расположения колонн навеса. Схема расположения фундаментов навеса. Сечения 5-5, 6-6 Схема расположения элементов колодца-сборника. Узлы 4 - 7 План отстойника. План фильтра. Схема расположения щитов покрытия. Узлы 8…10. Разрезы 9-9, 10-10 Строительные изделия Крышка люка МК1 Изделие закладное МН3 Изделие закладное МН4 Изделие закладное МН5 Щит деревянный Щ1 Скоба ходовая СК1 Конструкции металлические Общие данные Схема расположения элементов навеса. Сечения 1-1…4-4 Узлы к схеме расположения элементов навеса 1…5. Сечения 5-5…8-8 Ферма ФМ-1. Узлы 6…8. Сечение 9-9 | Разработан: | Гипронефтетранс
| Утверждён: | 01.01.1986 Госкомнефтепродукт СССР
| Расположен в: |
|
                
|