Скачать Типовой проект 503-6-4 Альбом I. Технологическая, генплан, санитарно-техническая и электротехническая частиДата актуализации: 10.08.2017 Типовой проект 503-6-4
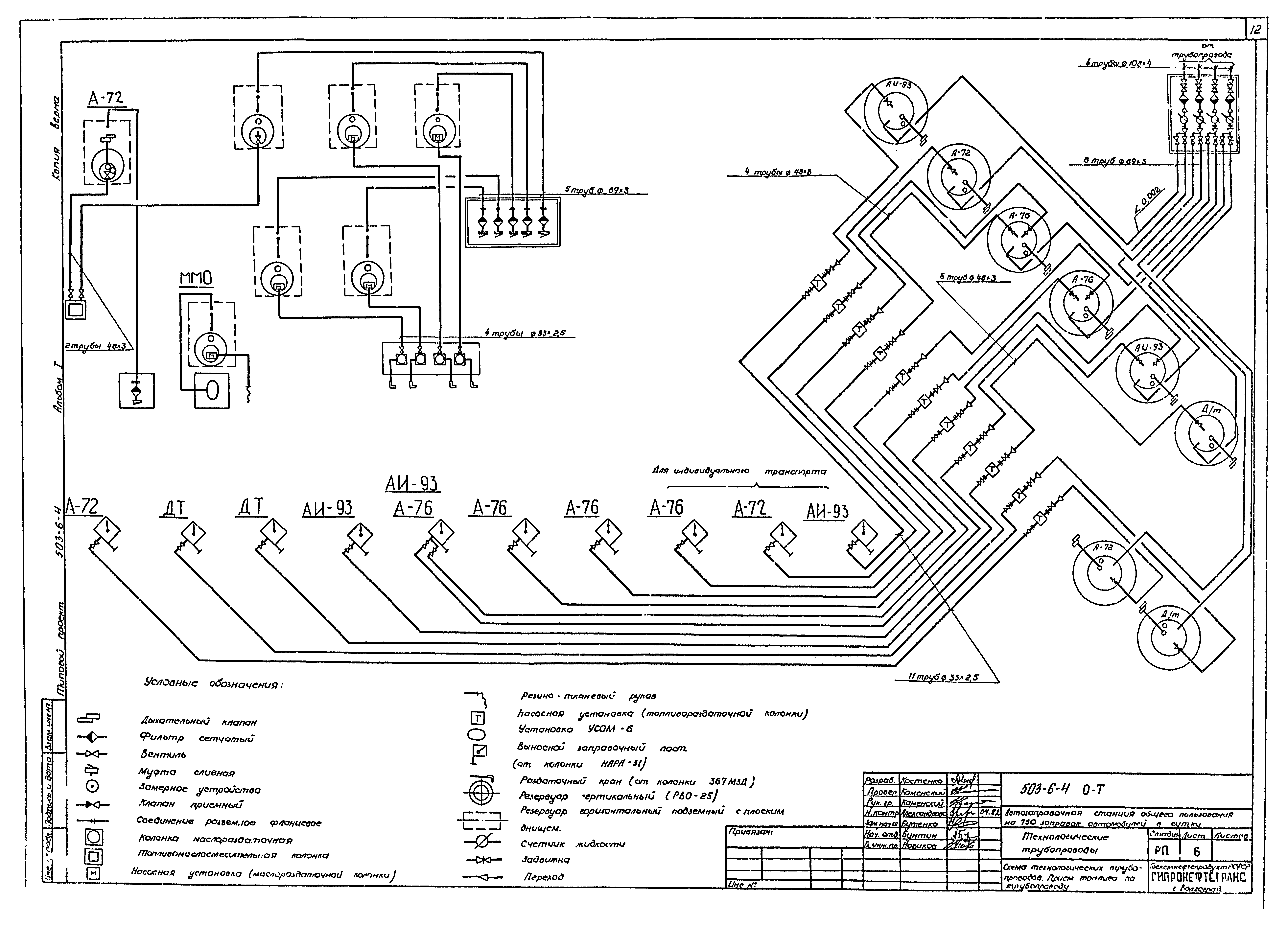
Альбом I. Технологическая, генплан, санитарно-техническая и электротехническая частиОбозначение: | Типовой проект 503-6-4 | Обозначение англ: | 503-6-4 | Статус: | не определен законодательством | Название рус.: | Альбом I. Технологическая, генплан, санитарно-техническая и электротехническая части | Дата добавления в базу: | 01.02.2017 | Дата актуализации: | 05.05.2017 | Дата введения: | 13.03.1981 | Разработан: | Гипронефтетранс
| Утверждён: | 26.02.1981 Госкомнефтепродукт РСФСР (Russian Federation Goskomnefteprodukt 63)
| Издан: | ЦИТП Госстроя СССР (CITP, Gosstroy (USSR) 1983 г. )
| Расположен в: |
|
                           
|