Скачать Типовой проект 503-6-3 Альбом III. Сооружения АЭС. Санитарно-техническая и архитектурно-строительная частиДата актуализации: 10.08.2017 Типовой проект 503-6-3
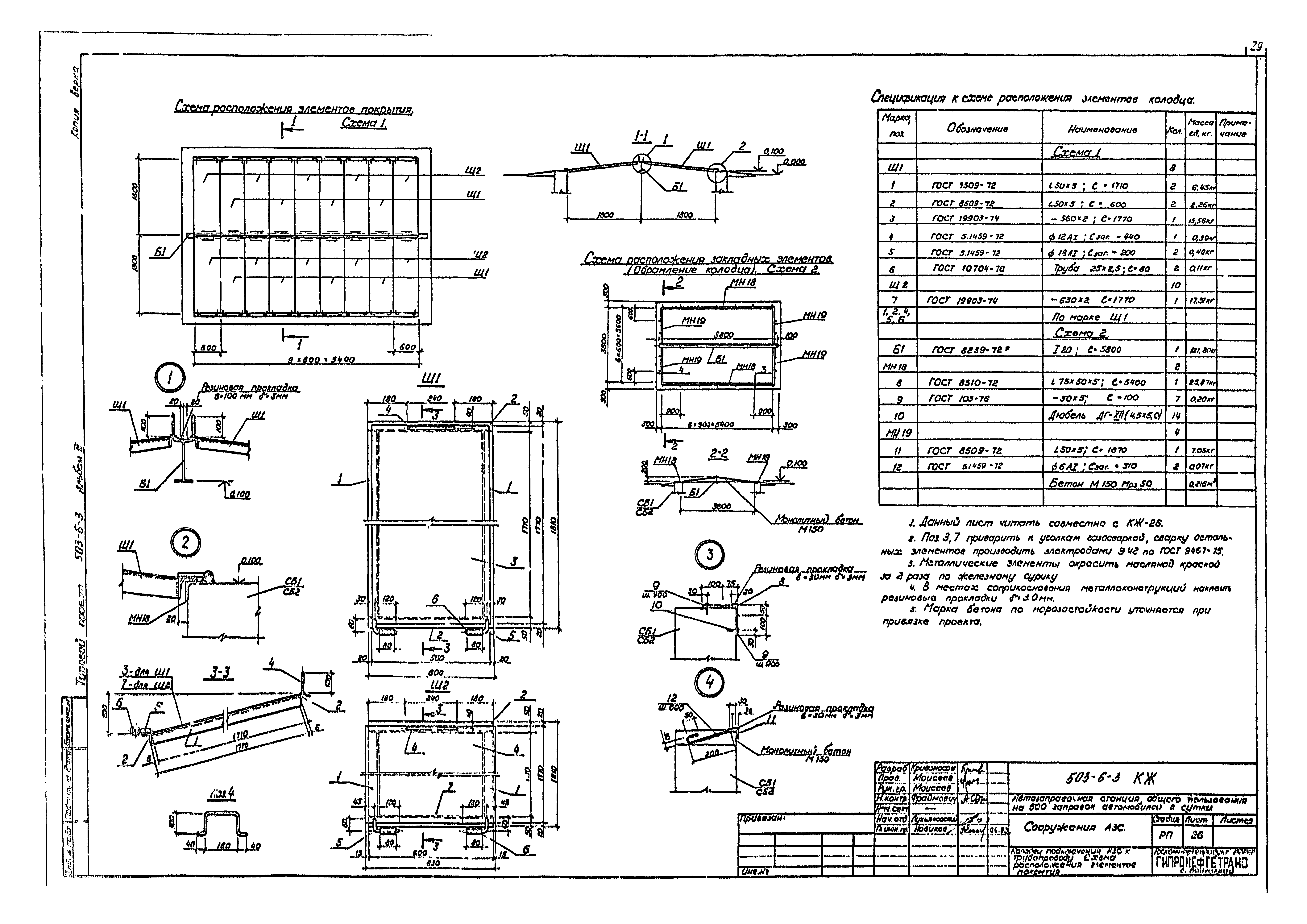
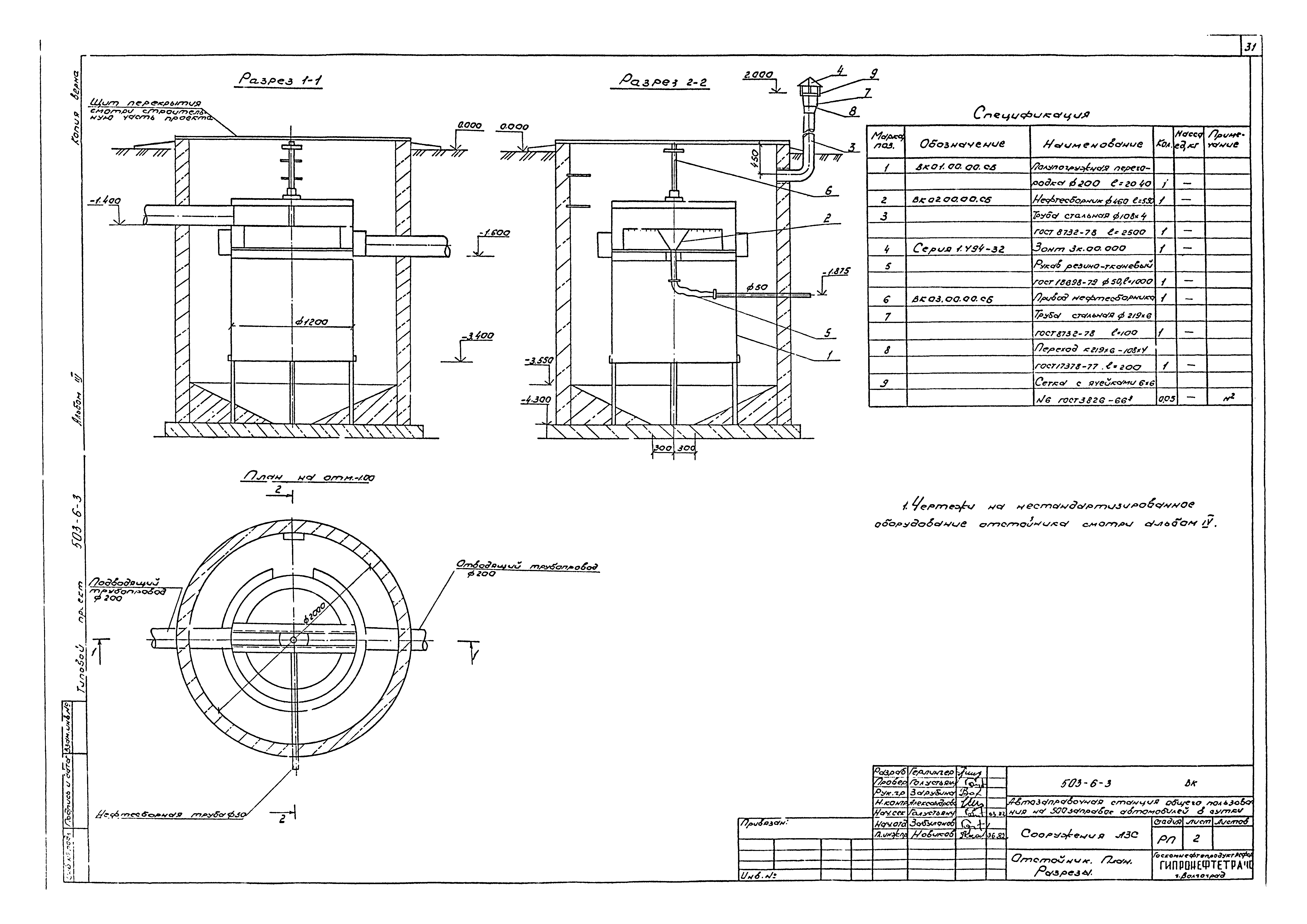
Альбом III. Сооружения АЭС. Санитарно-техническая и архитектурно-строительная частиОбозначение: | Типовой проект 503-6-3 | Обозначение англ: | 503-6-3 | Статус: | не определен законодательством | Название рус.: | Альбом III. Сооружения АЭС. Санитарно-техническая и архитектурно-строительная части | Дата добавления в базу: | 01.09.2013 | Дата актуализации: | 05.05.2017 | Дата введения: | 18.03.1981 | Оглавление: | Содержание альбома Чертежи основного комплекта марки КЖ Общие данные Топливные резервуары. Схемы расположения стеновых панелей и плит покрытия Топливные резервуары. Схема расположения элементов площадки для топливных резервуаров Топливные резервуары. Фрагмент 1. Деталь сопряжения перегородки и панелей с днищем Топливные резервуары. Плита П1. Раскладка арматурных сеток и каркасов С1, КР1 Топливные резервуары. Участок монолитный Ум1 Топливные резервуары. Армирование Ум1 Топливные резервуары. Армирование Ум2, Ум3 Топливные резервуары. Участок монолитный Ум2, Ум3 Топливные резервуары. Армирование. Участок монолитный Ум4 Топливные резервуары. Армирование Ум4 Топливные резервуары. Днище РКм1. Схема раскладки каркасов днища Топливные резервуары. Днище РКм2. Раскладки каркасов. Сечения Топливные резервуары. Днище РКм3. Раскладки каркасов. Сечения Топливные резервуары. Схемы раскладки верхних и нижних арматурных сеток Топливные резервуары. Каркасы КП1 - КП6 Топливные резервуары. Спецификации Фундамент под насосную установку "Нара-31" и 1КЭДС-25-0,5; ФО1. Фундамент под колонку, воздух - вода ФО2. Фундамент под выносной заправочный пункт ФО3 Сливной колодец для масла. План на отм. 0.000. Разрезы 1-1, 2-2. Крышка МК1 Технологические каналы Продольные профили трубопровода Отстойник. Фильтр. Планы на отм. 0.000. Сечения. Узлы. План покрытия отстойника Колодец-сборник. План по 1-1, 2-2. Узлы Колодец подключения АЗС к трубопроводу. План. Разрезы 1-1, 2-2 Колодец подключения АЗС к трубопроводу. Схема расположения элементов покрытия Чертежи основного комплекта марки ВК Общие данные Отстойник. План. Разрезы Фильтр. План. Разрезы Колодец-сборник. План, разрезы, спецификация | Разработан: | Гипронефтетранс
| Утверждён: | 26.02.1981 Госкомнефтепродукт РСФСР (Russian Federation Goskomnefteprodukt 63)
| Издан: | ЦИТП Госстроя СССР (CITP, Gosstroy (USSR) 1983 г. )
| Расположен в: |
|
                                
|