Информационная система
«Ёшкин Кот»

Скачать базу одним архивом
Скачать обновления
История создания базы
Карта сайта

Скачать Типовой проект 503-4-57с.88 Альбом 4. Конструкции железобетонные

Дата актуализации: 10.08.2017

Типовой проект 503-4-57с.88

Альбом 4. Конструкции железобетонные

Обозначение: Типовой проект 503-4-57с.88
Обозначение англ: 503-4-57с.88
Статус:не определен законодательством
Название рус.:Альбом 4. Конструкции железобетонные
Дата добавления в базу:01.09.2013
Дата актуализации:05.05.2017
Дата введения:20.06.1988
Оглавление:Содержание
Общие данные
Схема расположения фундаментов
Схема расположения фундаментов. Узлы 1…7
Схема расположения фундаментов. Узлы 8…13
Фундаменты Фм1, Фм2
Фундаменты Фм3, Фм5, Фм9
Фундамент Фм6
Фундамент Фм7
Фундамент Фм8
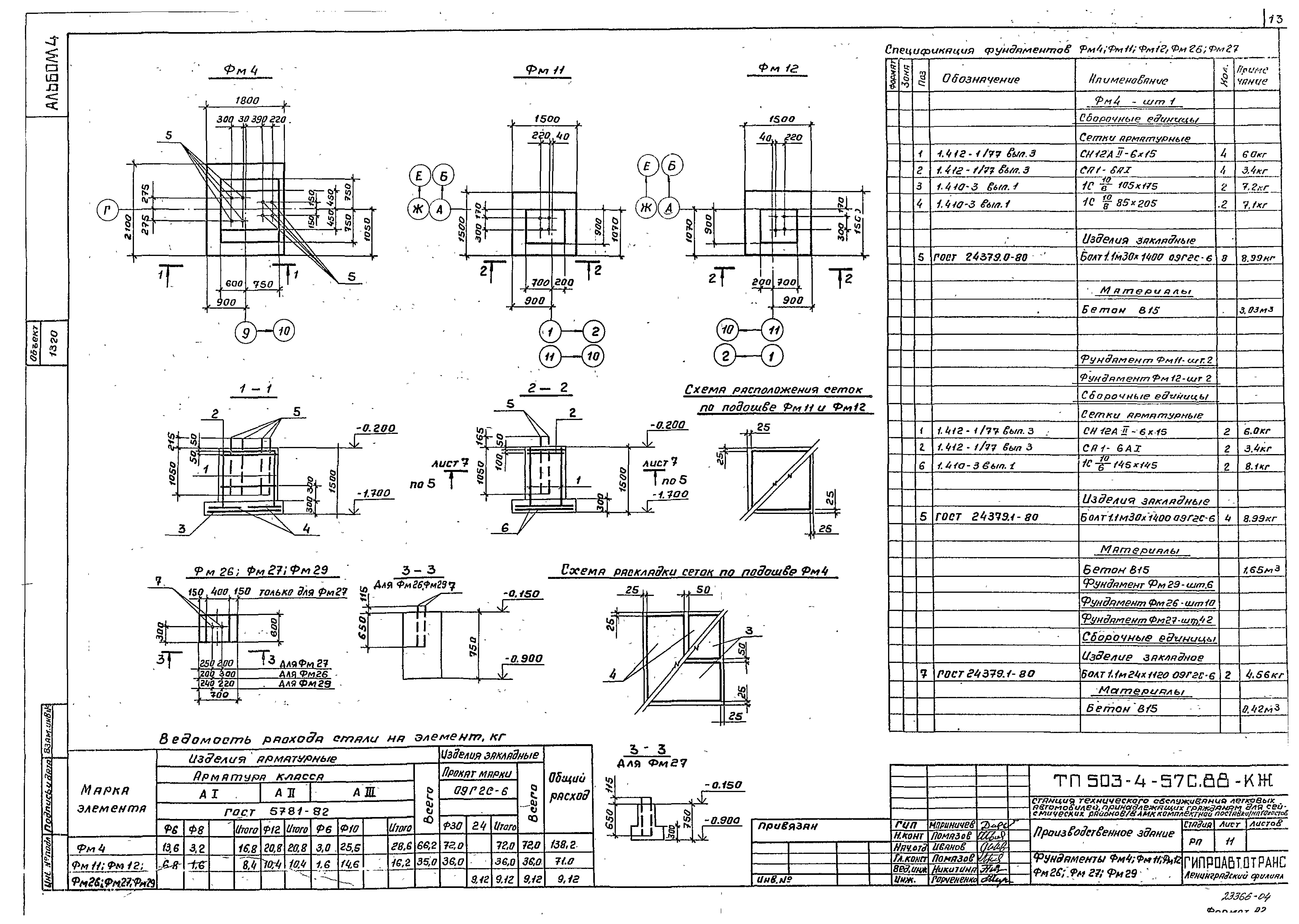
Фундаменты Фм4, Фм11, Фм12, Фм26, Фм27
Фундаменты Фм10, Фм14, Фм15, Фм30, Фм31
Фундамент Фм17
Фундамент Фм18
Фундамент Фм19
Фундамент Фм20
Фундаменты Фм21, Фм22, Фм13, Фм16
Фундаменты Фм23, Фм24, Фм25, Фм28
Схема расположения фундаментов под оборудование и каналов
Сечение 1-1 - 5-5. Приямок ПР1. Фундамент ФОм7
Фундамент ФОм1
Фундамент ФОм1. Сечения 3-3, 4-4. Узлы А, Б, В
Фундаменты ФОм2, ФОм5, ФОм6, ФОм8, ФОм9
Фундамент ФОм3
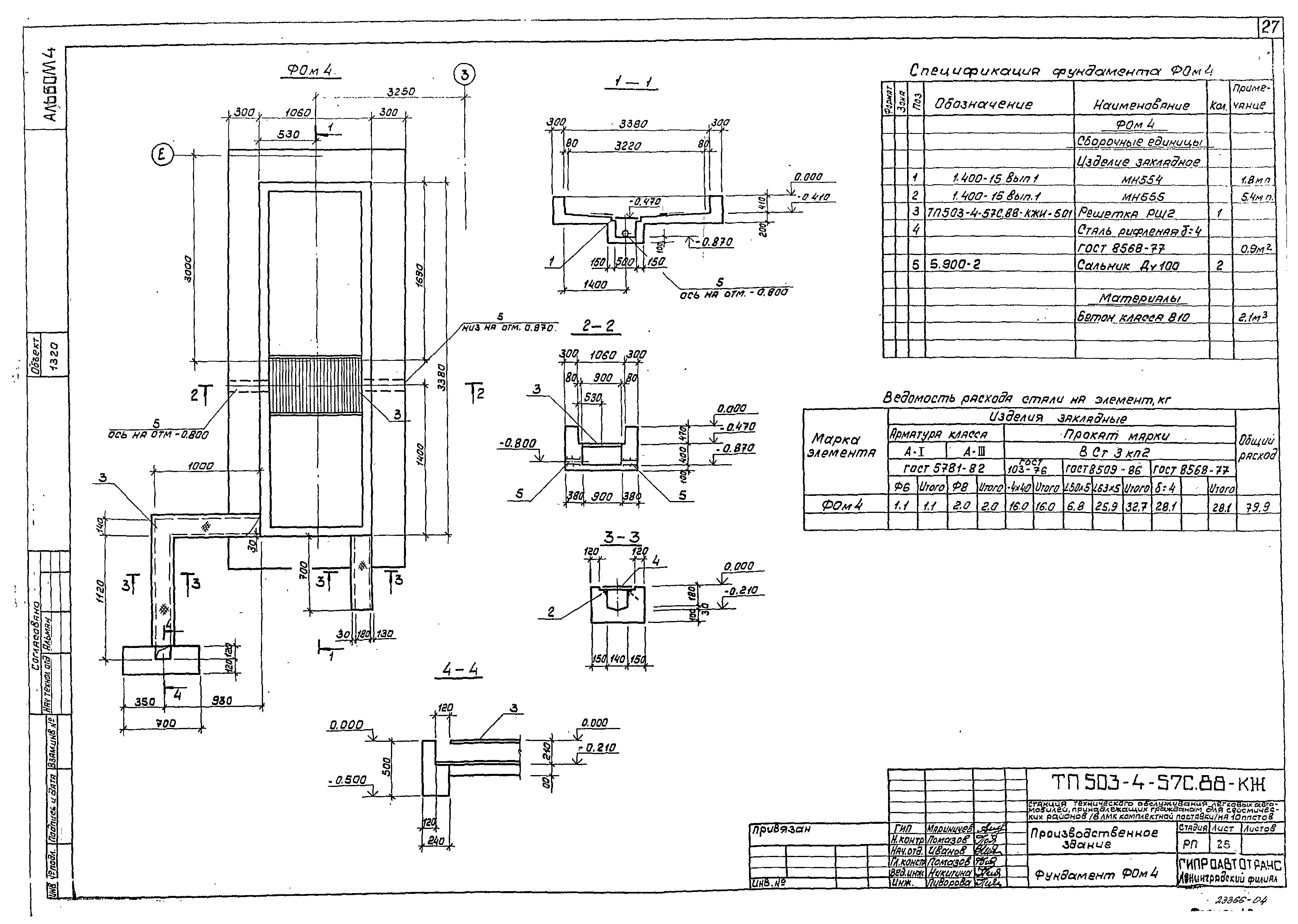
Фундамент ФОм4
Перекрытие тамбура в осях 8-9/Г-Д
Разработан: Ленинградский филиал Гипроавтотранс
Утверждён:20.06.1988 Минавтопром СССР (USSR Minavtoprom 23)
Издан: ЦИТП Госстроя СССР (CITP, Gosstroy (USSR) 1988 г. )
Расположен в:Техническая документация Строительство Справочные документы Типовые строительные конструкции, изделия и узлы Общероссийский строительный каталог Промышленные предприятия, здания и сооружения Предприятия, здания и сооружения транспорта Транспорт автомобильный Корпуса производственные, станции технического обслуживания и ремонта грузовых и легковых автомобилей и автобусов
Типовой проект 503-4-57с.88Типовой проект 503-4-57с.88Типовой проект 503-4-57с.88Типовой проект 503-4-57с.88Типовой проект 503-4-57с.88Типовой проект 503-4-57с.88Типовой проект 503-4-57с.88Типовой проект 503-4-57с.88Типовой проект 503-4-57с.88Типовой проект 503-4-57с.88Типовой проект 503-4-57с.88Типовой проект 503-4-57с.88Типовой проект 503-4-57с.88Типовой проект 503-4-57с.88Типовой проект 503-4-57с.88Типовой проект 503-4-57с.88Типовой проект 503-4-57с.88Типовой проект 503-4-57с.88Типовой проект 503-4-57с.88Типовой проект 503-4-57с.88Типовой проект 503-4-57с.88Типовой проект 503-4-57с.88Типовой проект 503-4-57с.88Типовой проект 503-4-57с.88Типовой проект 503-4-57с.88Типовой проект 503-4-57с.88Типовой проект 503-4-57с.88Типовой проект 503-4-57с.88Типовой проект 503-4-57с.88

© 2013 Ёшкин Кот :-) Карта сайта