Информационная система
«Ёшкин Кот»

Скачать базу одним архивом
Скачать обновления
История создания базы
Карта сайта

Скачать Типовой проект 503-2-19.86 Альбом VIII. Конструкции железобетонные и металлические

Дата актуализации: 10.08.2017

Типовой проект 503-2-19.86

Альбом VIII. Конструкции железобетонные и металлические

Обозначение: Типовой проект 503-2-19.86
Обозначение англ: 503-2-19.86
Статус:не определен законодательством
Название рус.:Альбом VIII. Конструкции железобетонные и металлические
Дата добавления в базу:01.09.2013
Дата актуализации:05.05.2017
Дата введения:30.06.1986
Оглавление:Содержание альбома
Конструкции железобетонные
   Общие данные
   Схема расположения элементов фундаментов в осях А - Б/1
   Схема расположения элементов фундаментов в осях Б/1 - Г
   Фундаменты ФМ1 - ФМ-7
   Фундаменты ФМ8 - ФМ-12
   Спецификация элементов монолитных фундаментов ФМ1 - ФМ12
   Узлы фундаментов I - V
   Узлы фундаментов VI - X
   Узлы фундаментов XI - XV
   Узлы фундаментов XVI - XX
   Узлы фундаментов XXI - XXV
   Узлы фундаментов XXVI - XXIX
   Схемы расположения элементов каркаса и антресолей
   Сечения 4-4 - 14-14
   Спецификация к схемам расположения элементов каркаса и антресолей
   Схемы расположения элементов стен по осям А и 1
   Схемы расположения элементов стен по осям Г, 9
   Спецификация к схемам расположения элементов стен
   Схема расположения элементов покрытия в осях 1 - 4
   Схема расположения элементов покрытия в осях 4 - 9
   Спецификация к схемам расположения элементов покрытия
   Схема расположения элементов антресолей на отм. 4.200
   Схема расположения элементов антресолей на отм. 3.600. Ум1, Ум2
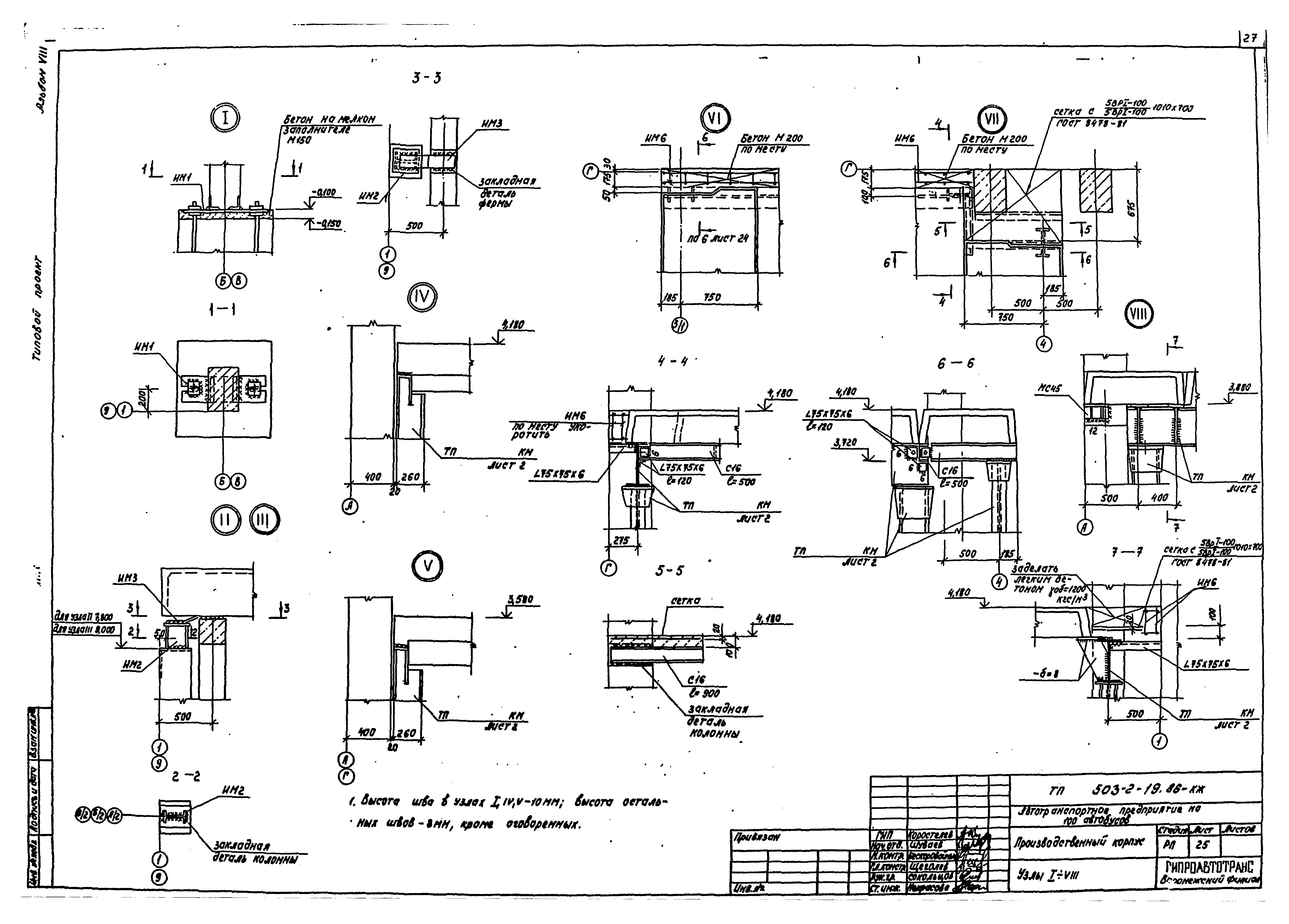
   Узлы I - VIII
   Схема расположения элементов подземного хозяйства в осях 1 - 4; Б/1 - Г
   Схема расположения элементов подземного хозяйства в осях 1 - 4; А - Б/1. Фундаменты ФОм12, ФОм13
   Фундаменты ФОм1, ФОм2
   Фундамент ФОм3, план на отм. 0.000, сечения 1-1 - 4-4
   Фундамент ФОм3, план на отм. 0.000, сечение 1-1
   Фундамент ФОм3, план на отм. - 0.200, сечения 5-5 - 7-7
   Фундамент ФОм3, сечения 8-8 - 10-10
   Фундамент ФОм4
   Фундамент ФОм5
   Каналы Кл1, Кл2
   Фундамент ФОм6. Планы на отм. 0.000; - 0.420, сечения 1-1 - 4-4
   Фундамент ФОм6. Сечения 5-5 - 8-8. Приямок ПР1
   Фундаменты ФОм7 - ФОм11
   Маслоуловитель с отстойной частью
   Колодец для доломитового фильтра
   Подземное хозяйство КТП2, ФОм14
   Подземное хозяйство КТП1, ФОм14
   Фрагмент 1. Фундаменты ФОм15 - ФОм17
   Подземное хозяйство. Узлы II - XI
Конструкции металлические
   Общие данные
   Монтажные схемы балок, стоек, монорельсов, подвесных путей
   Сечения 1-1 - 13-13
   Узлы I - X
   Узлы XI - XV
   Монтажные схемы лестниц Л1 - Л3, стремянок С1, С2
   Монтажные схемы каркаса перегородок в осях 3 - 4; 2/1 - 3/1 и зенитные фонари
   Подвесной потолок в осях 1 - 1/1 и В - Г
   Подвесной потолок. Разрезы. Узлы
   Монтажные схемы перегородок и ограждения площадки
Разработан: Воронежский филиал Гипроавтотранс
Утверждён:30.06.1986 Минавтотранс РСФСР (Russian Federation Minavtotrans 15)
Расположен в:Техническая документация Строительство Справочные документы Типовые строительные конструкции, изделия и узлы Общероссийский строительный каталог Промышленные предприятия, здания и сооружения Предприятия, здания и сооружения транспорта Транспорт автомобильный Предприятия автотранспортные, гаражи и стоянки для легковых автомобилей, автобусов и мотоциклов
Типовой проект 503-2-19.86Типовой проект 503-2-19.86Типовой проект 503-2-19.86Типовой проект 503-2-19.86Типовой проект 503-2-19.86Типовой проект 503-2-19.86Типовой проект 503-2-19.86Типовой проект 503-2-19.86Типовой проект 503-2-19.86Типовой проект 503-2-19.86Типовой проект 503-2-19.86Типовой проект 503-2-19.86Типовой проект 503-2-19.86Типовой проект 503-2-19.86Типовой проект 503-2-19.86Типовой проект 503-2-19.86Типовой проект 503-2-19.86Типовой проект 503-2-19.86Типовой проект 503-2-19.86Типовой проект 503-2-19.86Типовой проект 503-2-19.86Типовой проект 503-2-19.86Типовой проект 503-2-19.86Типовой проект 503-2-19.86Типовой проект 503-2-19.86Типовой проект 503-2-19.86Типовой проект 503-2-19.86Типовой проект 503-2-19.86Типовой проект 503-2-19.86Типовой проект 503-2-19.86Типовой проект 503-2-19.86Типовой проект 503-2-19.86Типовой проект 503-2-19.86Типовой проект 503-2-19.86Типовой проект 503-2-19.86Типовой проект 503-2-19.86Типовой проект 503-2-19.86Типовой проект 503-2-19.86Типовой проект 503-2-19.86Типовой проект 503-2-19.86Типовой проект 503-2-19.86Типовой проект 503-2-19.86Типовой проект 503-2-19.86Типовой проект 503-2-19.86Типовой проект 503-2-19.86Типовой проект 503-2-19.86Типовой проект 503-2-19.86Типовой проект 503-2-19.86Типовой проект 503-2-19.86Типовой проект 503-2-19.86Типовой проект 503-2-19.86Типовой проект 503-2-19.86Типовой проект 503-2-19.86Типовой проект 503-2-19.86Типовой проект 503-2-19.86Типовой проект 503-2-19.86Типовой проект 503-2-19.86Типовой проект 503-2-19.86

© 2013 Ёшкин Кот :-) Карта сайта