Информационная система
«Ёшкин Кот»

Скачать базу одним архивом
Скачать обновления
История создания базы
Карта сайта

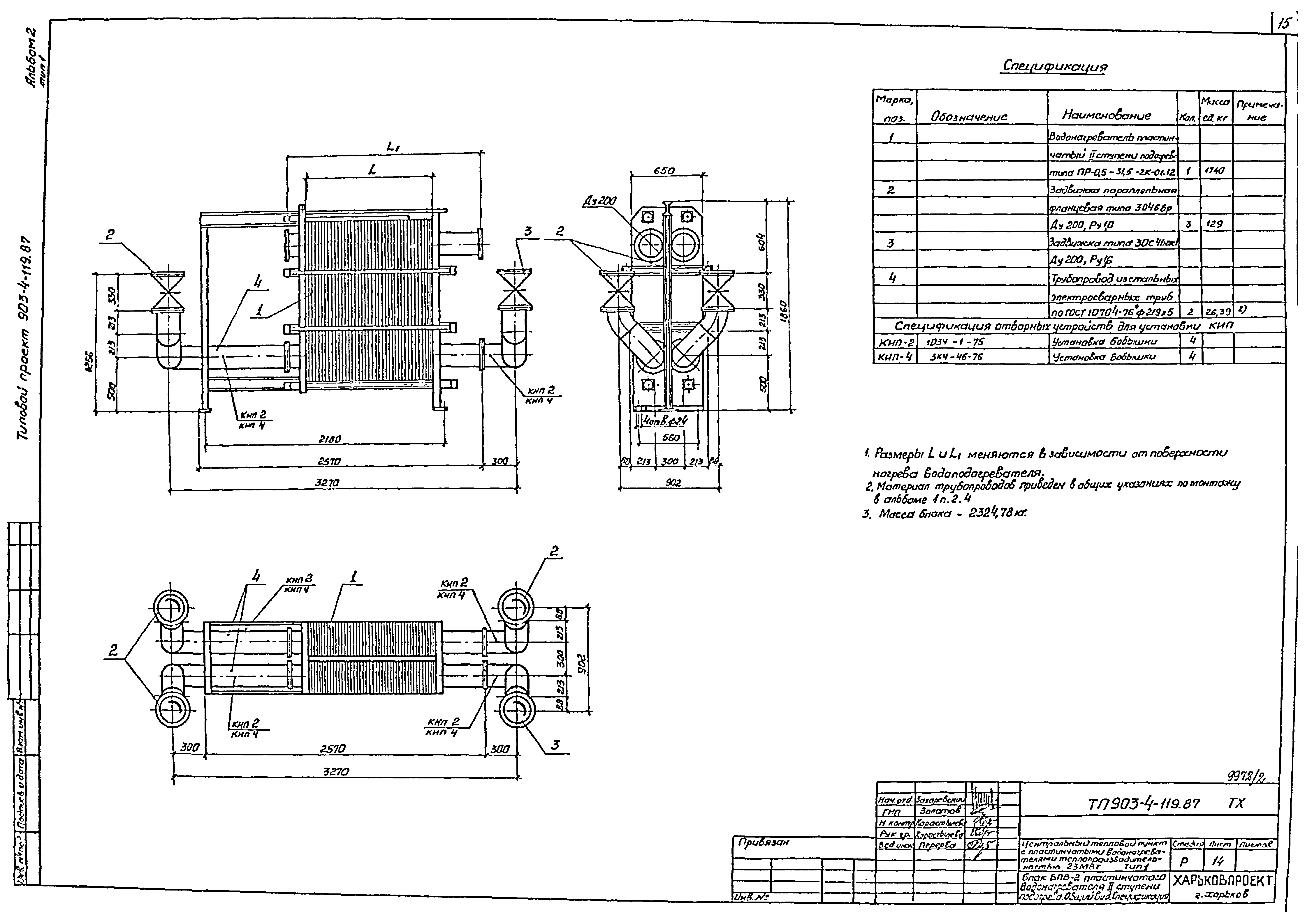
Скачать Типовой проект 903-4-119.87 Альбом 2. Технология производства

Дата актуализации: 10.08.2017

Типовой проект 903-4-119.87

Альбом 2. Технология производства

Обозначение: Типовой проект 903-4-119.87
Обозначение англ: 903-4-119.87
Статус:не определен законодательством
Название рус.:Альбом 2. Технология производства
Дата добавления в базу:01.10.2014
Дата актуализации:05.05.2017
Дата введения:02.11.1987
Разработан: Харьковпроект
Утверждён:16.07.1986 Госстрой УССР (UkrSSR Gosstroy 136)
Расположен в:Техническая документация Строительство Справочные документы Типовые строительные конструкции, изделия и узлы Общероссийский строительный каталог Промышленные предприятия, здания и сооружения Здания и сооружения санитарно-технические Теплоснабжение Сооружения тепловых сетей Центральные тепловые пункты
Типовой проект 903-4-119.87Типовой проект 903-4-119.87Типовой проект 903-4-119.87Типовой проект 903-4-119.87Типовой проект 903-4-119.87Типовой проект 903-4-119.87Типовой проект 903-4-119.87Типовой проект 903-4-119.87Типовой проект 903-4-119.87Типовой проект 903-4-119.87Типовой проект 903-4-119.87Типовой проект 903-4-119.87Типовой проект 903-4-119.87Типовой проект 903-4-119.87Типовой проект 903-4-119.87Типовой проект 903-4-119.87Типовой проект 903-4-119.87Типовой проект 903-4-119.87Типовой проект 903-4-119.87Типовой проект 903-4-119.87Типовой проект 903-4-119.87Типовой проект 903-4-119.87Типовой проект 903-4-119.87Типовой проект 903-4-119.87

© 2013 Ёшкин Кот :-) Карта сайта