Информационная система
«Ёшкин Кот»

Скачать базу одним архивом
Скачать обновления
История создания базы
Карта сайта

Скачать Типовой проект Серия 467А Альбом III. Часть 3В. Внутренние стеновые панели толщиной 150 мм и вентиляционные блоки горизонтального формования

Дата актуализации: 10.08.2017

Типовой проект Серия 467А

Альбом III. Часть 3В. Внутренние стеновые панели толщиной 150 мм и вентиляционные блоки горизонтального формования

Обозначение: Типовой проект Серия 467А
Обозначение англ: Серия 467А
Статус:действует
Название рус.:Альбом III. Часть 3В. Внутренние стеновые панели толщиной 150 мм и вентиляционные блоки горизонтального формования
Дата добавления в базу:01.09.2013
Дата актуализации:05.05.2017
Оглавление:Содержание альбома
Пояснительная записка
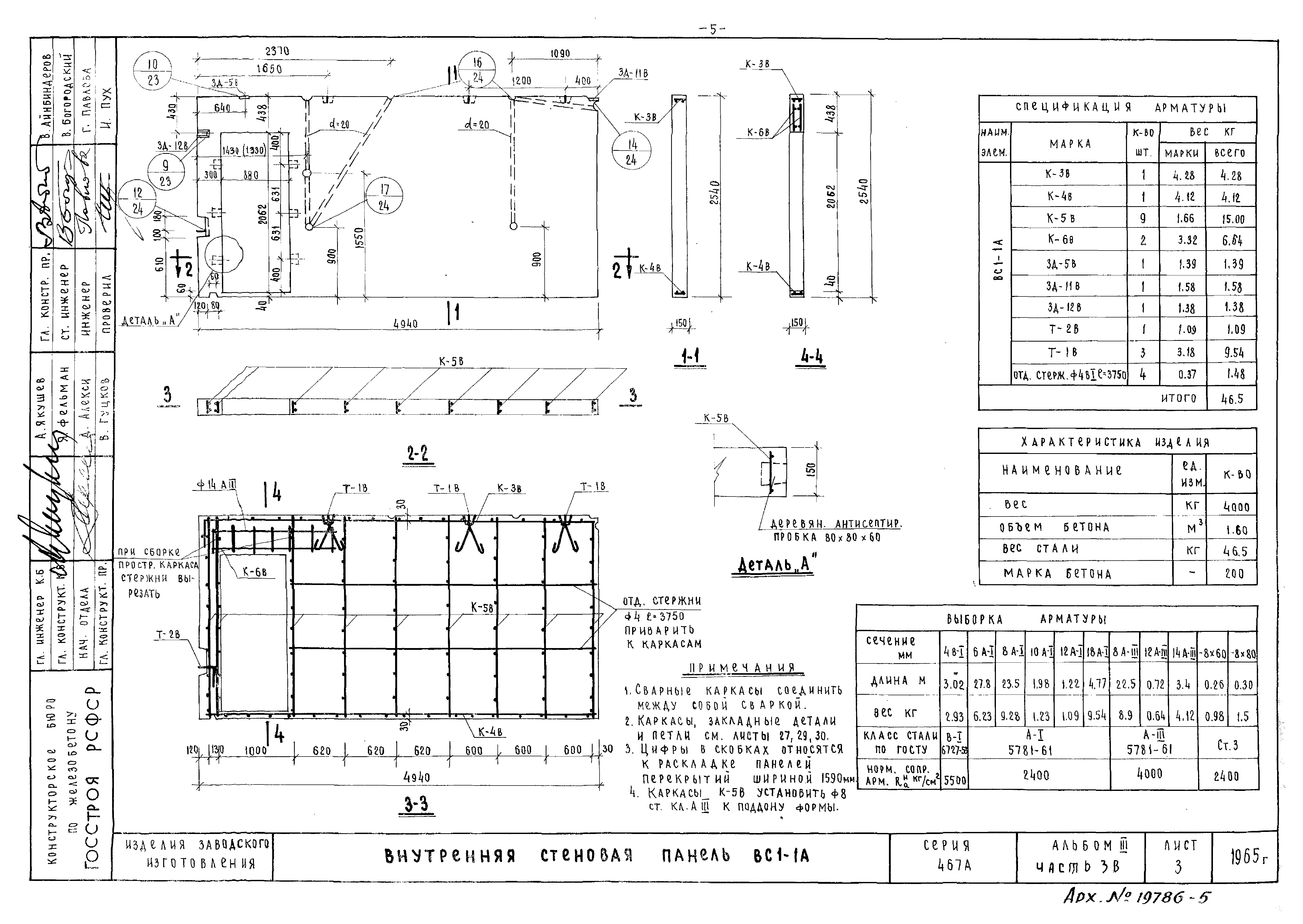
Внутренняя стеновая панель
Ригель
Внутренняя стеновая панель
Ригель
Внутренняя стеновая панель
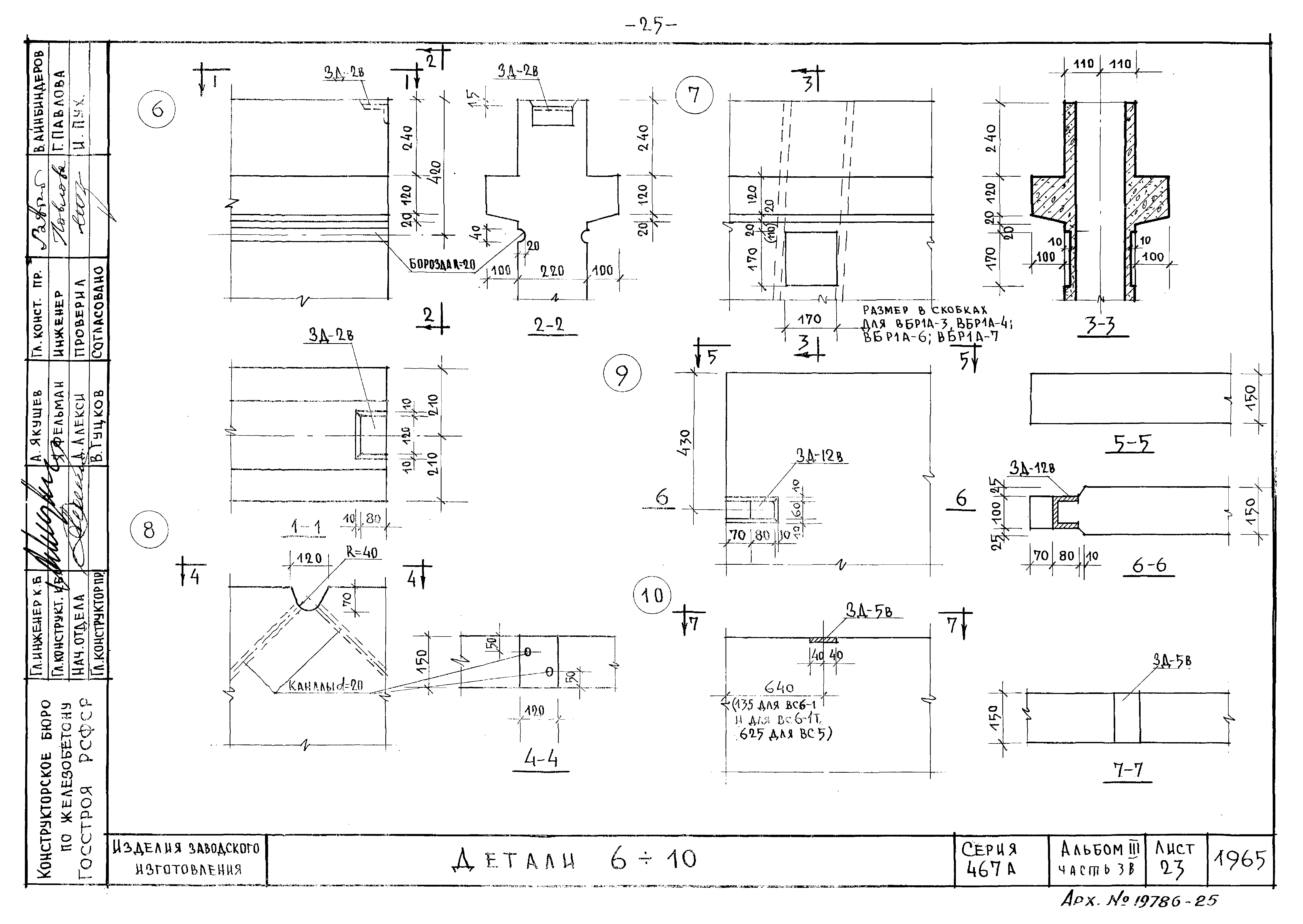
Детали
Закладные детали
Закладные детали, петли
Сварные каркасы
Сварные каркасы и сетки
Сварные каркасы
Ригель
Сварные каркасы
Вентиляционный блок
Сварные каркасы и сетки
Внутренняя стеновая панель
Разработан: КБ по железобетону Госстроя РСФСР
Утверждён:29.10.1965 КБ по железобетону Госстроя РСФСР (34)
Издан: ЦИТП Госстроя СССР (CITP, Gosstroy (USSR) 1965 г. )
Расположен в:Техническая документация Строительство Справочные документы Типовые строительные конструкции, изделия и узлы Общероссийский строительный каталог Жилые здания для строительства в сельской местности Жилые дома панельные Серия 467А
Типовой проект Серия 467АТиповой проект Серия 467АТиповой проект Серия 467АТиповой проект Серия 467АТиповой проект Серия 467АТиповой проект Серия 467АТиповой проект Серия 467АТиповой проект Серия 467АТиповой проект Серия 467АТиповой проект Серия 467АТиповой проект Серия 467АТиповой проект Серия 467АТиповой проект Серия 467АТиповой проект Серия 467АТиповой проект Серия 467АТиповой проект Серия 467АТиповой проект Серия 467АТиповой проект Серия 467АТиповой проект Серия 467АТиповой проект Серия 467АТиповой проект Серия 467АТиповой проект Серия 467АТиповой проект Серия 467АТиповой проект Серия 467АТиповой проект Серия 467АТиповой проект Серия 467АТиповой проект Серия 467АТиповой проект Серия 467АТиповой проект Серия 467АТиповой проект Серия 467АТиповой проект Серия 467АТиповой проект Серия 467АТиповой проект Серия 467АТиповой проект Серия 467АТиповой проект Серия 467АТиповой проект Серия 467АТиповой проект Серия 467АТиповой проект Серия 467АТиповой проект Серия 467АТиповой проект Серия 467АТиповой проект Серия 467АТиповой проект Серия 467АТиповой проект Серия 467АТиповой проект Серия 467АТиповой проект Серия 467АТиповой проект Серия 467АТиповой проект Серия 467АТиповой проект Серия 467АТиповой проект Серия 467АТиповой проект Серия 467АТиповой проект Серия 467АТиповой проект Серия 467АТиповой проект Серия 467АТиповой проект Серия 467АТиповой проект Серия 467АТиповой проект Серия 467АТиповой проект Серия 467АТиповой проект Серия 467АТиповой проект Серия 467АТиповой проект Серия 467АТиповой проект Серия 467А

© 2013 Ёшкин Кот :-) Карта сайта