Информационная система
«Ёшкин Кот»

Скачать базу одним архивом
Скачать обновления
История создания базы
Карта сайта

Скачать Типовой проект 902-2-477.89 Альбом 3. Варианты решений для усреднителей агрессивных сточных вод. Конструкции железобетонные. Антикоррозионная защита. Организация строительства

Дата актуализации: 10.08.2017

Типовой проект 902-2-477.89

Альбом 3. Варианты решений для усреднителей агрессивных сточных вод. Конструкции железобетонные. Антикоррозионная защита. Организация строительства

Обозначение: Типовой проект 902-2-477.89
Обозначение англ: 902-2-477.89
Статус:не определен законодательством
Название рус.:Альбом 3. Варианты решений для усреднителей агрессивных сточных вод. Конструкции железобетонные. Антикоррозионная защита. Организация строительства
Дата добавления в базу:01.09.2013
Дата актуализации:05.05.2017
Дата введения:28.09.1989
Оглавление:Содержание альбома
Чертежи основного комплекта марки КЖ
   Общие данные
   Поддон. Общий вид. План, разрезы
   Поддон. Опалубочный чертеж
   Поддон. Арматурный чертеж
Чертежи основного комплекта марки АЗ
   Общие данные
   План. Сечения 1-1, 2-2, 3-3
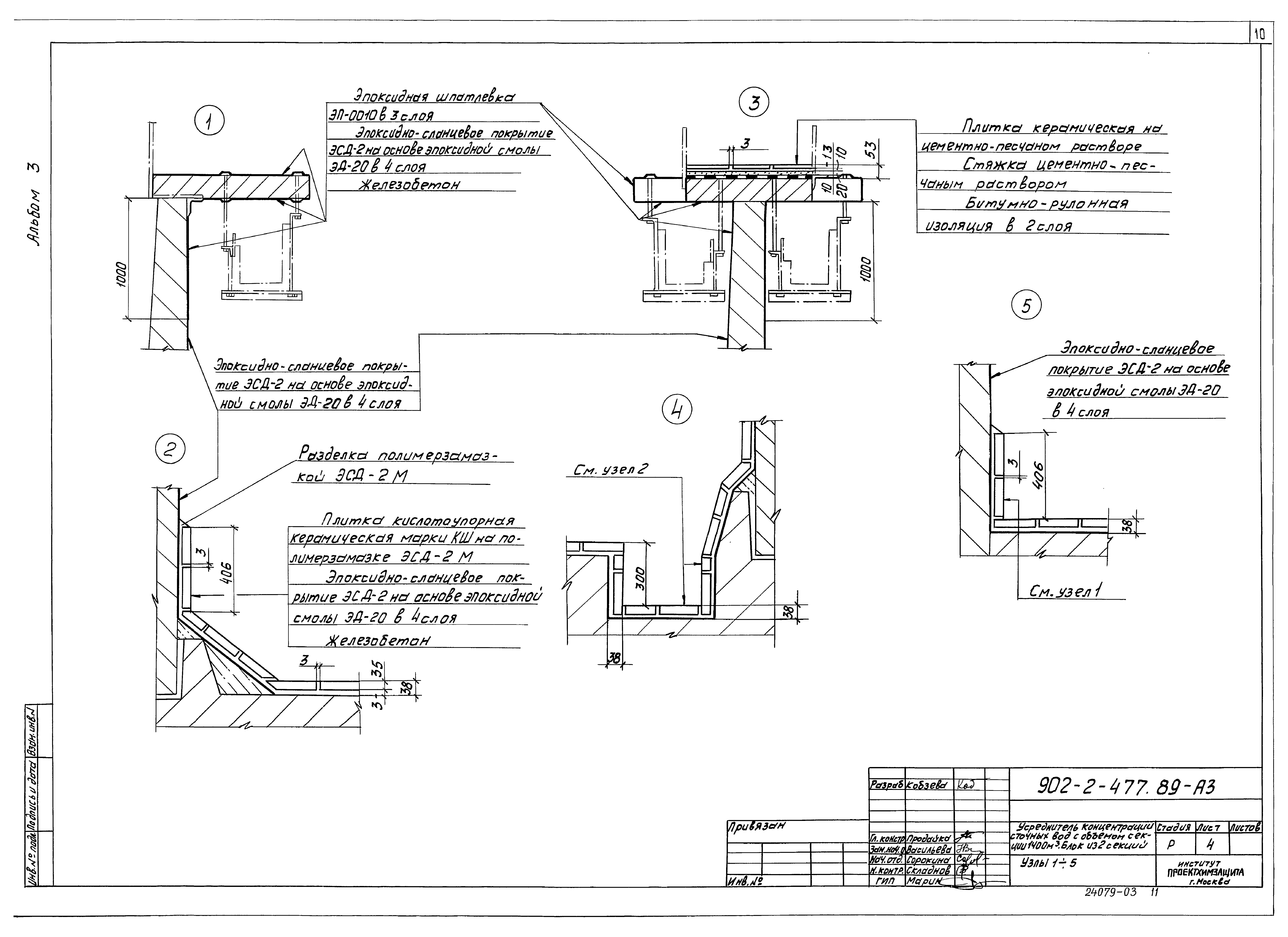
   Узлы 1 - 5
   Сечения 4-4, 5-5. Узлы 6, 7. Узел опоры под трубопровод
Чертежи основного комплекта марки ОС
   Общие данные. Стройгенплан
   График производства основных строительных и монтажных работ
Разработан: Союзводоканалпроект
Проектхимзащита Минмонтажспецстроя СССР
Утверждён:28.09.1989 Союзводоканалпроект (Soyuzvodokanalproject 86)
Расположен в:Техническая документация Строительство Справочные документы Типовые строительные конструкции, изделия и узлы Общероссийский строительный каталог Промышленные предприятия, здания и сооружения Здания и сооружения санитарно-технические Канализация Сооружения для очистки производственных сточных вод Станции физико-химической очистки
Заменяет собой:
  • Типовой проект 902-2-329
Типовой проект 902-2-477.89Типовой проект 902-2-477.89Типовой проект 902-2-477.89Типовой проект 902-2-477.89Типовой проект 902-2-477.89Типовой проект 902-2-477.89Типовой проект 902-2-477.89Типовой проект 902-2-477.89Типовой проект 902-2-477.89Типовой проект 902-2-477.89Типовой проект 902-2-477.89Типовой проект 902-2-477.89Типовой проект 902-2-477.89Типовой проект 902-2-477.89

© 2013 Ёшкин Кот :-) Карта сайта