Информационная система
«Ёшкин Кот»

Скачать базу одним архивом
Скачать обновления
История создания базы
Карта сайта

Скачать Типовой проект 903-9-22см.88 Альбом 3. Бак перелива емкостью 700 куб. м

Дата актуализации: 10.08.2017

Типовой проект 903-9-22см.88

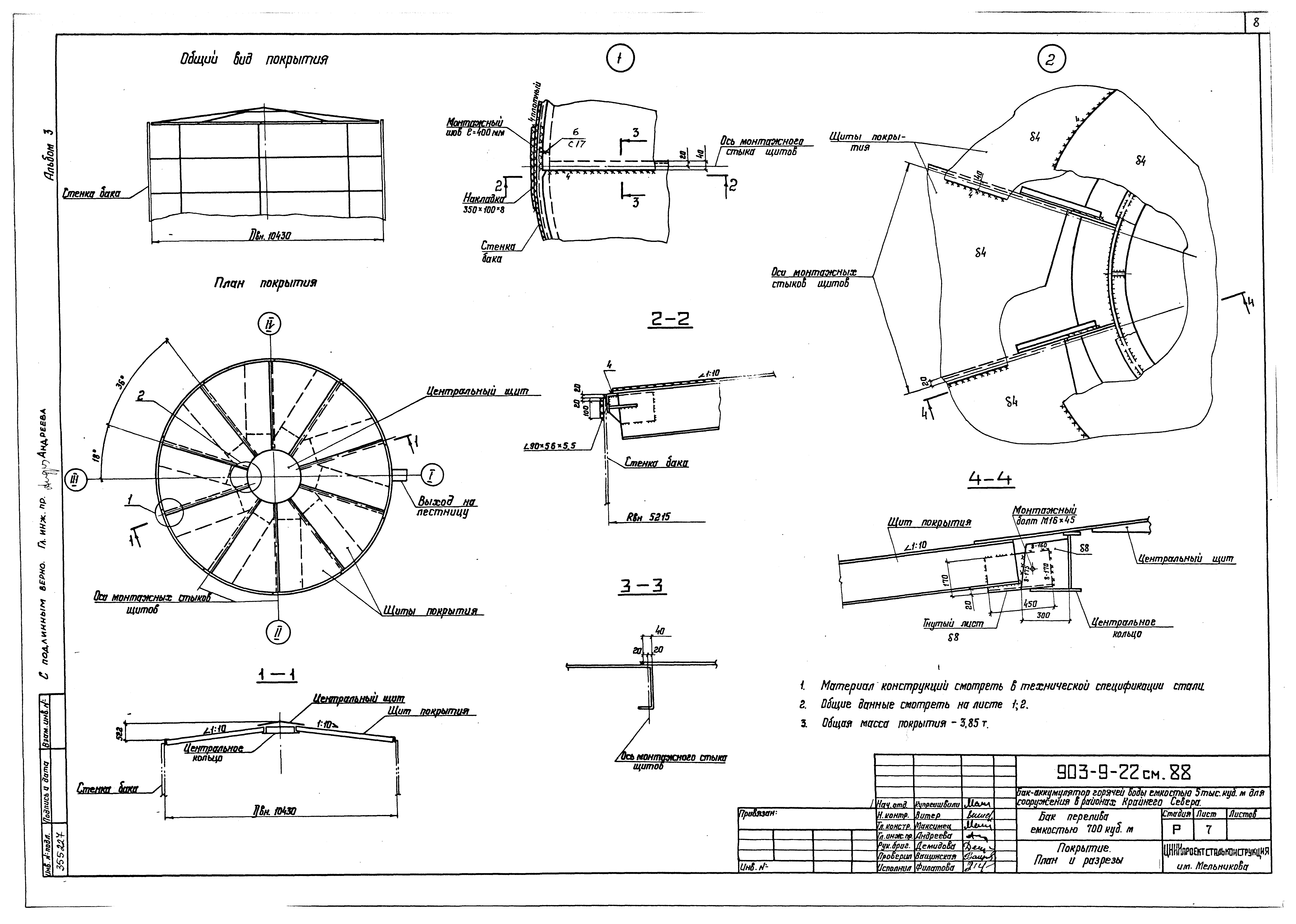
Альбом 3. Бак перелива емкостью 700 куб. м

Обозначение: Типовой проект 903-9-22см.88
Обозначение англ: 903-9-22см.88
Статус:не определен законодательством
Название рус.:Альбом 3. Бак перелива емкостью 700 куб. м
Дата добавления в базу:01.09.2013
Дата актуализации:05.05.2017
Дата введения:28.11.1988
Оглавление:Общие данные
Техническая спецификация стали
Ведомость металлоконструкций по видам профилей
Общий вид
Стенка и днище
Покрытие. План и разрезы
Щит покрытия
Покрытие. Центральное кольцо
Площадки и ограждения на крыше
Врезка патрубков
Врезка патрубков. Исходные данные для проектирования основания и фундаментов
Разработан: ВНИПИэнергопром
ЦНИИпроектстальконструкция
Утверждён:20.01.1987 Минэнерго СССР (USSR Minenergo 3)
Расположен в:Техническая документация Строительство Справочные документы Типовые строительные конструкции, изделия и узлы Общероссийский строительный каталог Промышленные предприятия, здания и сооружения Здания и сооружения санитарно-технические Теплоснабжение Здания и сооружения разные
Типовой проект 903-9-22см.88Типовой проект 903-9-22см.88Типовой проект 903-9-22см.88Типовой проект 903-9-22см.88Типовой проект 903-9-22см.88Типовой проект 903-9-22см.88Типовой проект 903-9-22см.88Типовой проект 903-9-22см.88Типовой проект 903-9-22см.88Типовой проект 903-9-22см.88Типовой проект 903-9-22см.88Типовой проект 903-9-22см.88Типовой проект 903-9-22см.88Типовой проект 903-9-22см.88

© 2013 Ёшкин Кот :-) Карта сайта