Информационная система
«Ёшкин Кот»

Скачать базу одним архивом
Скачать обновления
История создания базы
Карта сайта

Скачать Типовой проект 709-9-126.93 Альбом 2. Технологические решения. Архитектурно-строительные решения. Электротехническая часть. Связь и сигнализация

Дата актуализации: 10.08.2017

Типовой проект 709-9-126.93

Альбом 2. Технологические решения. Архитектурно-строительные решения. Электротехническая часть. Связь и сигнализация

Обозначение: Типовой проект 709-9-126.93
Обозначение англ: 709-9-126.93
Статус:не определен законодательством
Название рус.:Альбом 2. Технологические решения. Архитектурно-строительные решения. Электротехническая часть. Связь и сигнализация
Дата добавления в базу:01.09.2013
Дата актуализации:05.05.2017
Дата введения:07.07.1993
Оглавление:Содержание альбома
Технологические решения ТХ
   Общие данные
   План цеха с расстановкой технологического оборудования
Архитектурно-строительные решения АС
   Общие данные
   План цеха (тип 1)
   План цеха (тип 2)
   Разрезы 1-1, 2-2 (тип 1). Вариант площадки ПЛ1 из монолитного железобетона
   Разрезы 1-1, 2-2 (тип 1). Вариант площадки ПЛ1 из сборных ж/б плит
   Разрезы 1-1, 2-2 (тип 2). Вариант площадки ПЛ1 из монолитного железобетона
   Разрезы 1-1, 2-2 (тип 2). Вариант площадки ПЛ1 из сборных ж/б плит
   Узлы 1…5. Упор УП1
   Схемы расположения элементов подкранового пути ПКП1. Фундаменты опор ФМ1, ФМ2
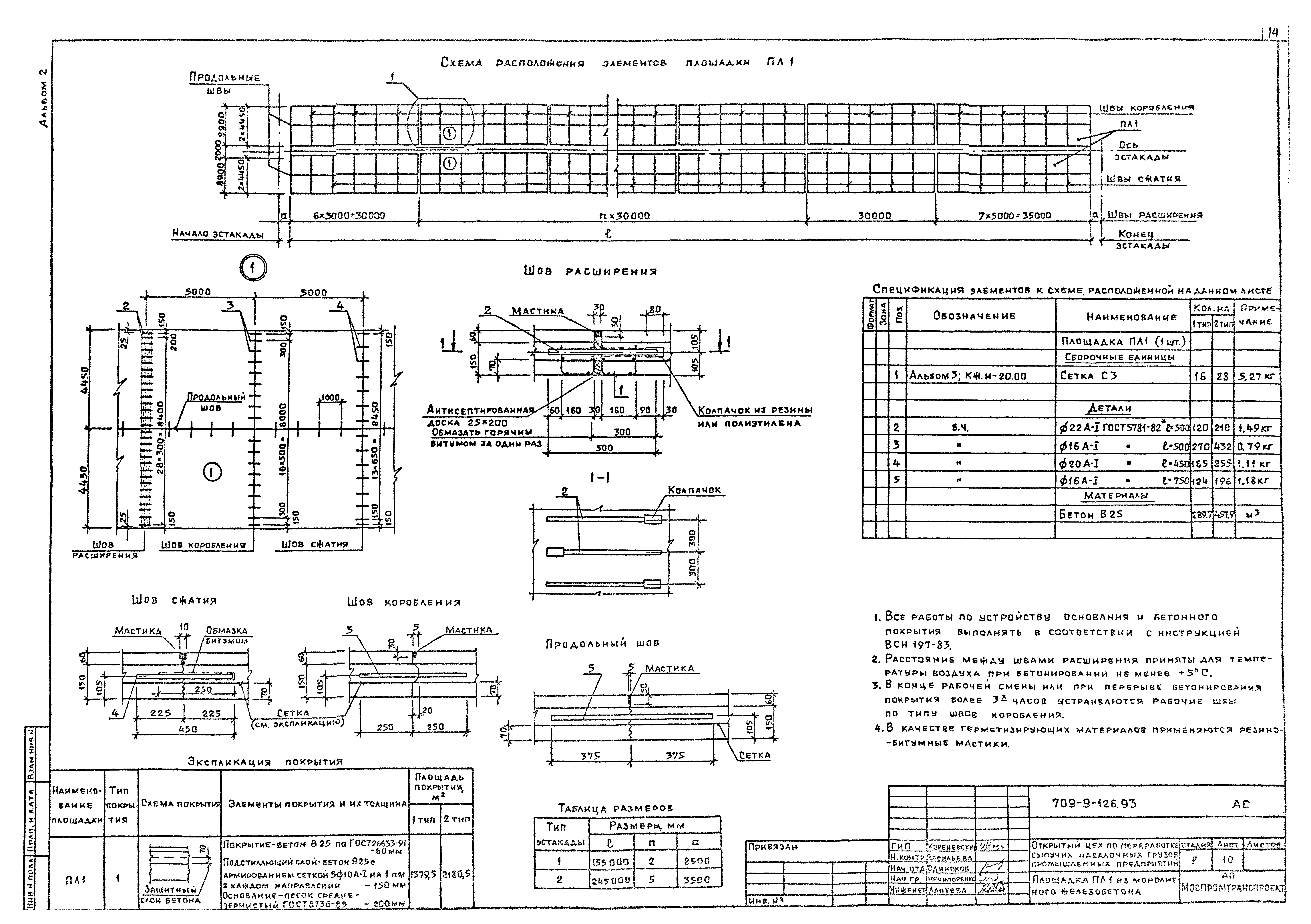
   Площадка ПЛ1 из монолитного железобетона
   Площадка ПЛ1 из сборных ж/б плит
   Эстакада высотой 2,4 м из бетонных блоков (тип 1). План. Разрезы 1-1, 2-2. Фрагмент №1. Узлы 1…3
   Эстакада высотой 2,4 м из бетонных блоков (тип 1). Секции 1 и 2. Узлы 1 и 2
   Монолитный пояс МП-1
   Эстакада балочного типа высотой 3,0 м (тип 2). План. Фасад. Разрезы 1-1, 2-2
   Эстакада балочного типа высотой 3,0 м (тип 2). Фрагмент №1. Узлы 1…11
Электротехническая часть ЭМ
   Общие данные
   Троллейные линии. Схемы электрические принципиальные
   План. Цех тип 1
   План. Цех тип 2
   Спецификация к чертежам ЭМ-3, ЭМ-4
   Крепление троллеев на промежуточной опоре
   Крепление троллеев на анкерной опоре. Исп. 1
   Крепление троса ограничителя грузов на анкерной опоре
   Крепление троллеев на анкерной опоре. Исп. 2
   Установка на опоре ящика с рубильником и ящика с рубильником-переключателем
   Установка светофора на опоре
   Электроосвещение. План
   Ведомости изделий, материалов и электромонтажных конструкций МЭЗ
   Траверса
   Кронштейн
   Косынка
   Болт М22
   Траверса
   Зажим питающий контактного провода
   Щека зажима левая
   Щека зажима правая
   Фиксатор проводов в пролете
   Планка
   Скоба
   Полухомут
   Тяга
   Щека
   Стержень
   Установка рубильника и рубильника-переключателя в навесном шкафу
Связь и сигнализация СС
   Общие данные. Схемы сетей громкоговорящего оповещения
   Планы кабельных сетей громкоговорящего оповещения
Разработан: Моспромтранспроект
Утверждён:07.07.1993 Государственная корпорация Трансстрой (Transstroy Government-Owned Corporation МВ-129)
Расположен в:Техническая документация Строительство Справочные документы Типовые строительные конструкции, изделия и узлы Общероссийский строительный каталог Промышленные предприятия, здания и сооружения Предприятия, здания и сооружения складские Склады разные Склады материально-технические и запчастей
Типовой проект 709-9-126.93Типовой проект 709-9-126.93Типовой проект 709-9-126.93Типовой проект 709-9-126.93Типовой проект 709-9-126.93Типовой проект 709-9-126.93Типовой проект 709-9-126.93Типовой проект 709-9-126.93Типовой проект 709-9-126.93Типовой проект 709-9-126.93Типовой проект 709-9-126.93Типовой проект 709-9-126.93Типовой проект 709-9-126.93Типовой проект 709-9-126.93Типовой проект 709-9-126.93Типовой проект 709-9-126.93Типовой проект 709-9-126.93Типовой проект 709-9-126.93Типовой проект 709-9-126.93Типовой проект 709-9-126.93Типовой проект 709-9-126.93Типовой проект 709-9-126.93Типовой проект 709-9-126.93Типовой проект 709-9-126.93Типовой проект 709-9-126.93Типовой проект 709-9-126.93Типовой проект 709-9-126.93Типовой проект 709-9-126.93Типовой проект 709-9-126.93Типовой проект 709-9-126.93Типовой проект 709-9-126.93Типовой проект 709-9-126.93Типовой проект 709-9-126.93Типовой проект 709-9-126.93Типовой проект 709-9-126.93Типовой проект 709-9-126.93Типовой проект 709-9-126.93Типовой проект 709-9-126.93Типовой проект 709-9-126.93Типовой проект 709-9-126.93Типовой проект 709-9-126.93

© 2013 Ёшкин Кот :-) Карта сайта