Информационная система
«Ёшкин Кот»

Скачать базу одним архивом
Скачать обновления
История создания базы
Карта сайта

Скачать Типовой проект 0901-4-11.89 Альбом 2. Строительные изделия

Дата актуализации: 10.08.2017

Типовой проект 0901-4-11.89

Альбом 2. Строительные изделия

Обозначение: Типовой проект 0901-4-11.89
Обозначение англ: 0901-4-11.89
Статус:не определен законодательством
Название рус.:Альбом 2. Строительные изделия
Дата добавления в базу:01.09.2013
Дата актуализации:05.05.2017
Дата введения:15.03.1989
Оглавление:0901-4-11.89-ТУ Технические условия
0901-4-11.89-КЖИ.1 Каркас пространственный КП (КП1 - КП8)
0901-4-11.89-КЖИ.2 Каркас пространственный КП (КП9 - КП12)
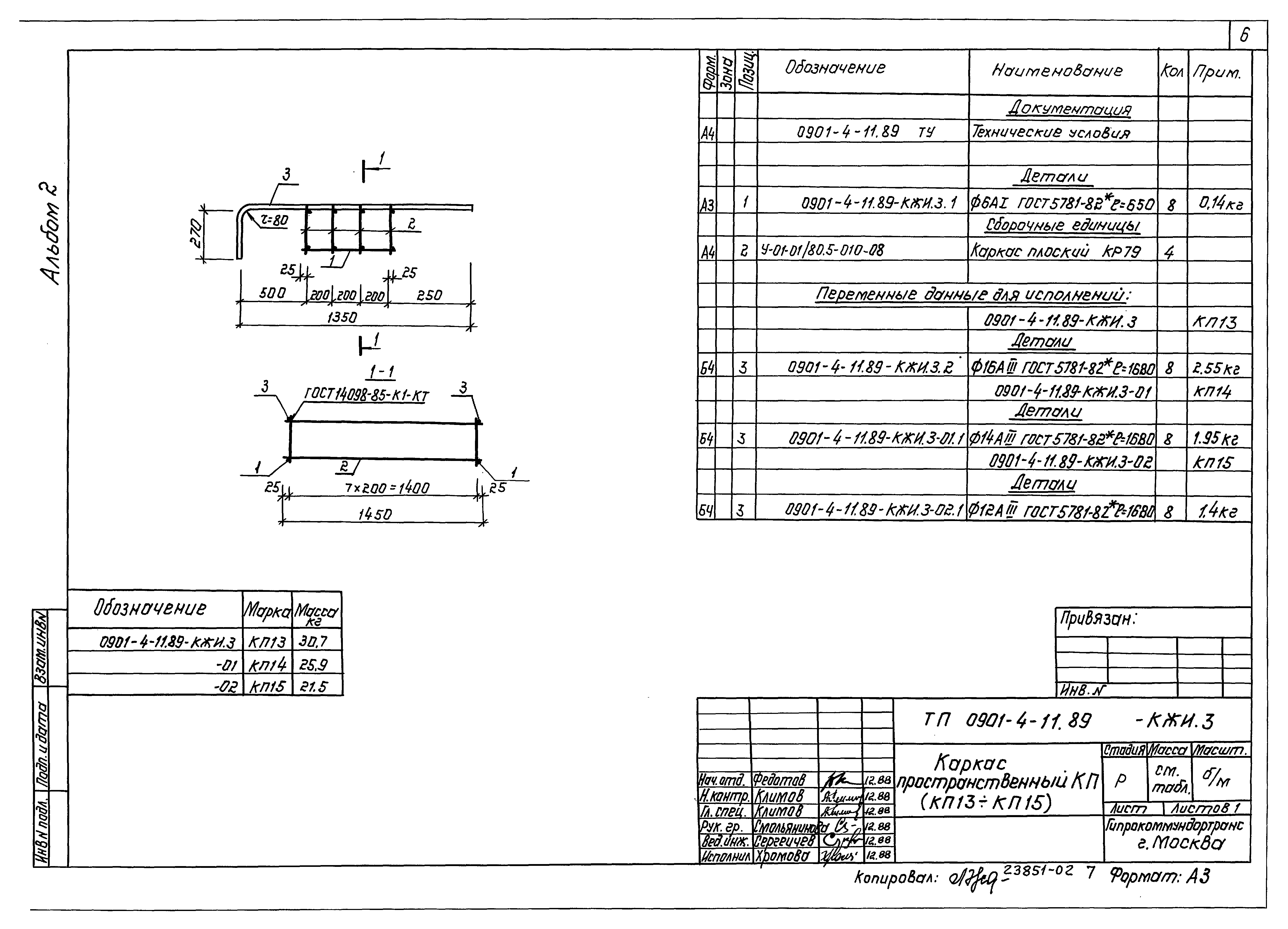
0901-4-11.89-КЖИ.3 Каркас пространственный КП (КП13 - КП15)
0901-4-11.89-КЖИ.4 Каркас плоский КР (КР1, КР2)
0901-4-11.89-КЖИ.5 Каркас плоский КР (КР3, КР4)
0901-4-11.89-КЖИ.6 Каркас плоский КР (КР15 - КР8)
0901-4-11.89-КЖИ.7 Каркас плоский КР (КР9, КР10)
0901-4-11.89-КЖИ.8 Сетка С (С1 - С14)
0901-4-11.89-КЖИ.9 Сетка С (С15 - С17)
0901-4-11.89-КЖИ.10 Лестница ЛМ-1
0901-4-11.89-КЖИ.11 Изделие закладное МН-1
0901-4-11.89-КЖИ.12 Изделие закладное МН-2
Разработан: Гипрокоммундортранс
Утверждён:03.03.1989 Штаб гражданской обороны СССР (USSR Civil Defense Headquarters 40)
Расположен в:Техническая документация Строительство Справочные документы Типовые строительные конструкции, изделия и узлы Общероссийский строительный каталог Защитные сооружения гражданской обороны Конструкции и инженерное оборудование Вспомогательные сооружения
Типовой проект 0901-4-11.89Типовой проект 0901-4-11.89Типовой проект 0901-4-11.89Типовой проект 0901-4-11.89Типовой проект 0901-4-11.89Типовой проект 0901-4-11.89Типовой проект 0901-4-11.89Типовой проект 0901-4-11.89Типовой проект 0901-4-11.89Типовой проект 0901-4-11.89Типовой проект 0901-4-11.89Типовой проект 0901-4-11.89Типовой проект 0901-4-11.89Типовой проект 0901-4-11.89Типовой проект 0901-4-11.89Типовой проект 0901-4-11.89

© 2013 Ёшкин Кот :-) Карта сайта