Информационная система
«Ёшкин Кот»

Скачать базу одним архивом
Скачать обновления
История создания базы
Карта сайта

Скачать Типовой проект 0901-4-12.89 Альбом 1. Пояснительная записка. Архитектурно-строительные решения. Конструкции железобетонные. Организация строительства. Технологическая часть. Автоматизация. Спецификация оборудования

Дата актуализации: 10.08.2017

Типовой проект 0901-4-12.89

Альбом 1. Пояснительная записка. Архитектурно-строительные решения. Конструкции железобетонные. Организация строительства. Технологическая часть. Автоматизация. Спецификация оборудования

Обозначение: Типовой проект 0901-4-12.89
Обозначение англ: 0901-4-12.89
Статус:не определен законодательством
Название рус.:Альбом 1. Пояснительная записка. Архитектурно-строительные решения. Конструкции железобетонные. Организация строительства. Технологическая часть. Автоматизация. Спецификация оборудования
Дата добавления в базу:01.09.2013
Дата актуализации:05.05.2017
Дата введения:18.05.1989
Оглавление:Содержание
Пояснительная записка
Чертежи основного комплекта марки АР
   Общие данные
   План, разрезы
Чертежи основного комплекта марки КЖ
   Общие данные
   Фундаментная плита. Армирование. Сечения
   Фундаментная плита. Узлы. Спецификация и ведомость расхода стали
   Схемы раскладки железобетонных элементов и соединительных каркасов
   Монолитная часть покрытия. Армирование. Сечения. Узлы
   Монолитная часть покрытия. Спецификация и ведомость расхода стали
   Металлическая рубашка резервуара. Сечения. Узлы. Спецификация и ведомость расхода стали
Чертежи основного комплекта марки ОС
   Общие данные
   График производства работ
Чертежи основного комплекта марки ТХ
   Общие данные. Схема
   План. Разрезы 1-1, 2-2
Чертежи основного комплекта марки А
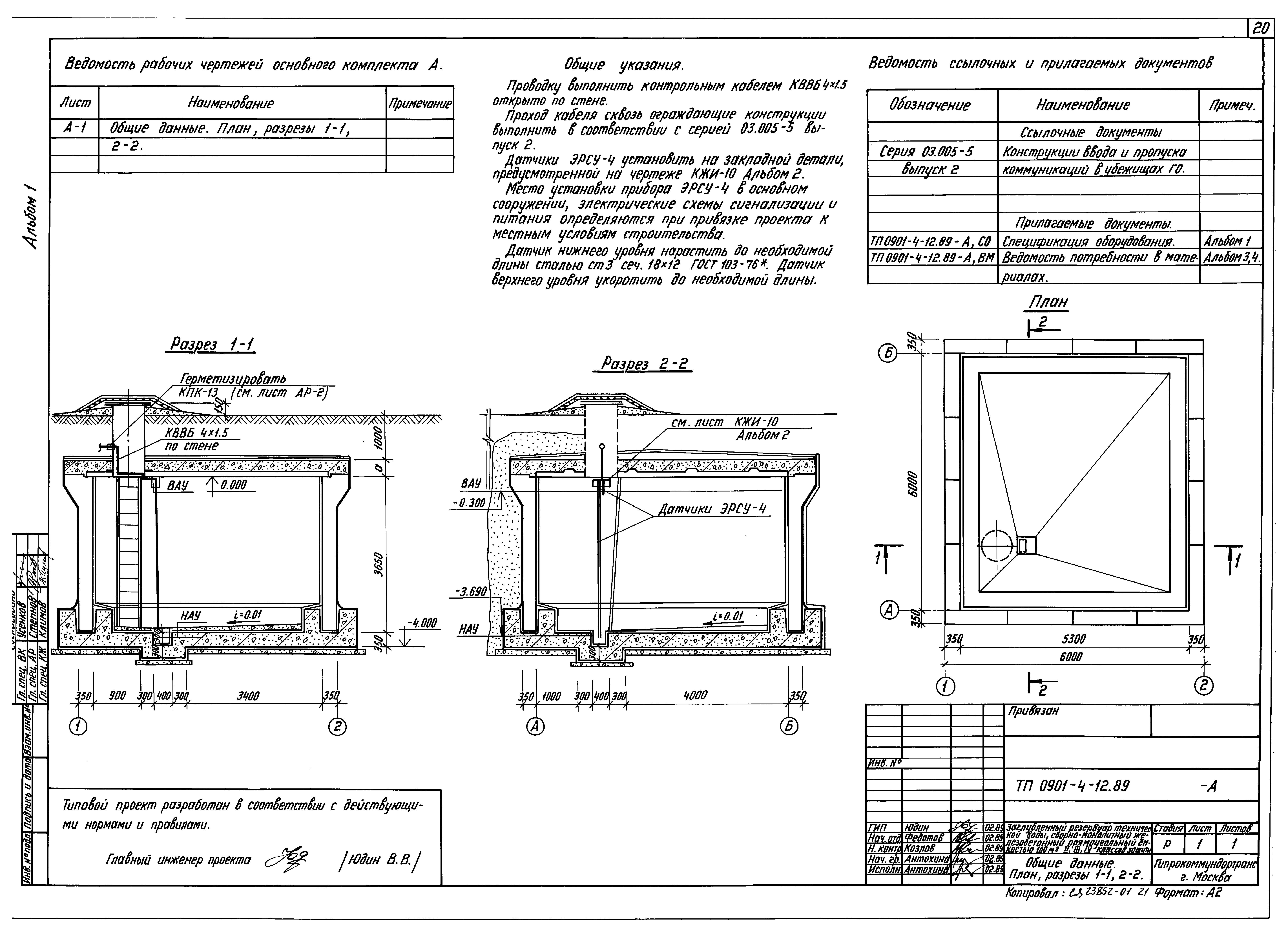
   Общие данные. План, разрезы 1-1, 2-2
Спецификация оборудования
Разработан: Гипрокоммундортранс
Утверждён:12.05.1989 Штаб гражданской обороны СССР (USSR Civil Defense Headquarters 43)
Расположен в:Техническая документация Строительство Справочные документы Типовые строительные конструкции, изделия и узлы Общероссийский строительный каталог Защитные сооружения гражданской обороны Конструкции и инженерное оборудование Вспомогательные сооружения
Типовой проект 0901-4-12.89Типовой проект 0901-4-12.89Типовой проект 0901-4-12.89Типовой проект 0901-4-12.89Типовой проект 0901-4-12.89Типовой проект 0901-4-12.89Типовой проект 0901-4-12.89Типовой проект 0901-4-12.89Типовой проект 0901-4-12.89Типовой проект 0901-4-12.89Типовой проект 0901-4-12.89Типовой проект 0901-4-12.89Типовой проект 0901-4-12.89Типовой проект 0901-4-12.89Типовой проект 0901-4-12.89Типовой проект 0901-4-12.89Типовой проект 0901-4-12.89Типовой проект 0901-4-12.89Типовой проект 0901-4-12.89Типовой проект 0901-4-12.89Типовой проект 0901-4-12.89Типовой проект 0901-4-12.89Типовой проект 0901-4-12.89

© 2013 Ёшкин Кот :-) Карта сайта