Информационная система
«Ёшкин Кот»

Скачать базу одним архивом
Скачать обновления
История создания базы
Карта сайта

Скачать НП 5.3.4-72 Спортивные сооружения. Залы для спортивных игр

Дата актуализации: 10.08.2017

НП 5.3.4-72

Спортивные сооружения. Залы для спортивных игр

Обозначение: НП 5.3.4-72
Обозначение англ: NP 5.3.4-72
Статус:не установлен срок действия
Название рус.:Спортивные сооружения. Залы для спортивных игр
Дата добавления в базу:01.09.2013
Дата актуализации:05.05.2017
Область применения:Нормали предусматривают применение для полно-сборного строительства зданий крупнопанельной и каркасной конструкции, а также зданий с несущими стенами из кирпича или блоков
Оглавление:Основные положения
1. Общие положения для проектирования (1)
2. Общие положения для проектирования (2)
3. Табель-экспликация оборудования и инвентаря для площадок (1)
4. Табель-экспликация оборудования и инвентаря для площадок (2)
5. Габариты оборудования и его крепление (1)
6. Габариты оборудования и его крепление (2)
7. Габариты оборудования и его крепление (3)
8. Площадка для баскетбола
9. Площадка для волейбола
10. Площадка для бадминтона
11. Площадка для тенниса
12. Площадка для ручного мяча 7:7
13. Площадка и залы для настольного тенниса
Примеры размещения площадок в залах
14. Примеры размещения площадок в залах 30х18 м, 36х18 м и 42х24 м Основные положения
15. Табель-экспликация оборудования и инвентаря 30х18 м, 36х18 м и 42х24 м (1)
16. Табель-экспликация оборудования и инвентаря 30х18 м, 36х18 м и 42х24 м (2)
17. Табель-экспликация оборудования и инвентаря 30х18 м, 36х18 м и 42х24 м (3)
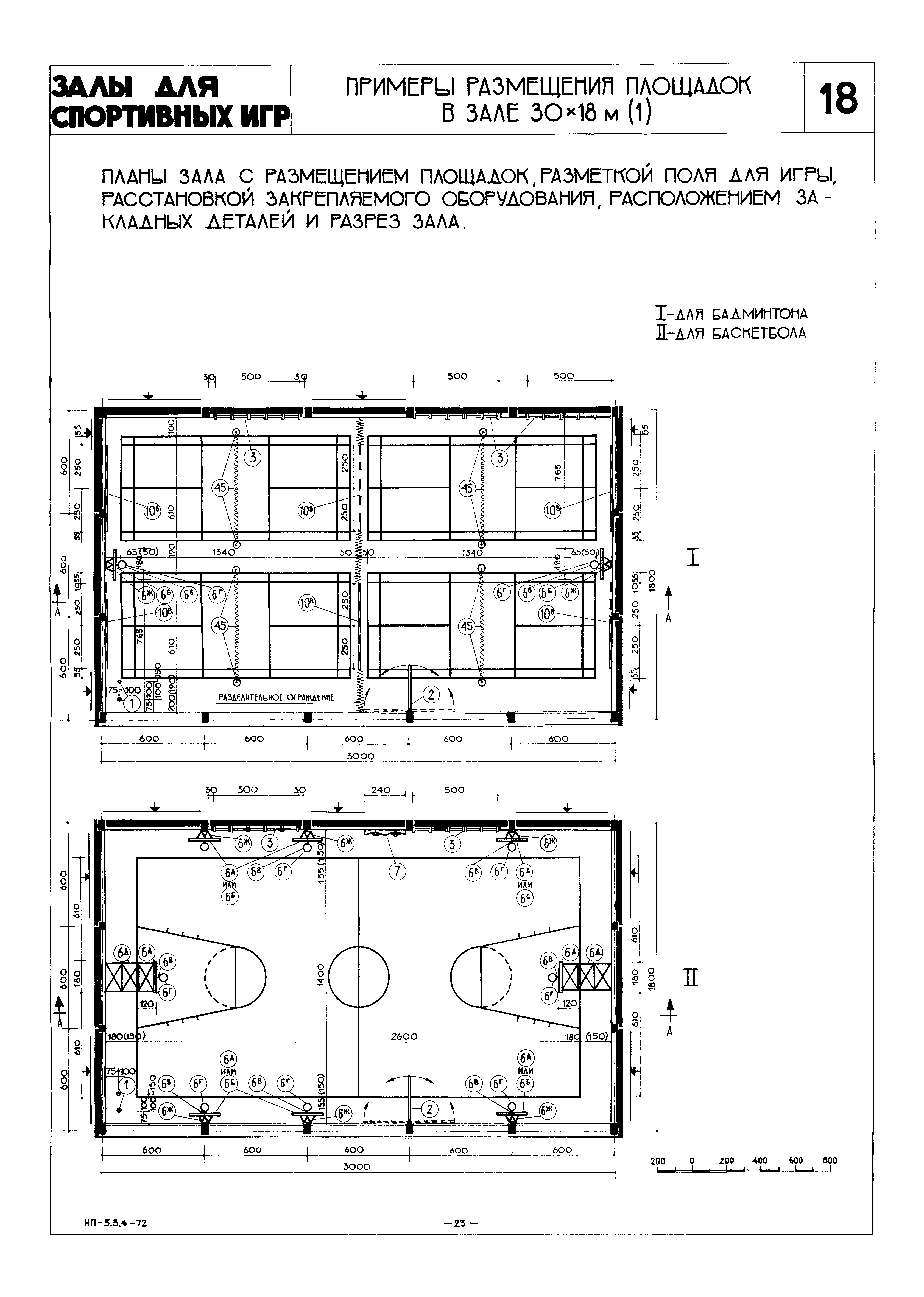
18. Примеры размещения площадок в зале 30х18 м (1)
19. Примеры размещения площадок в зале 30х18 м (2)
20. Примеры размещения площадок в зале 36х18 м (1)
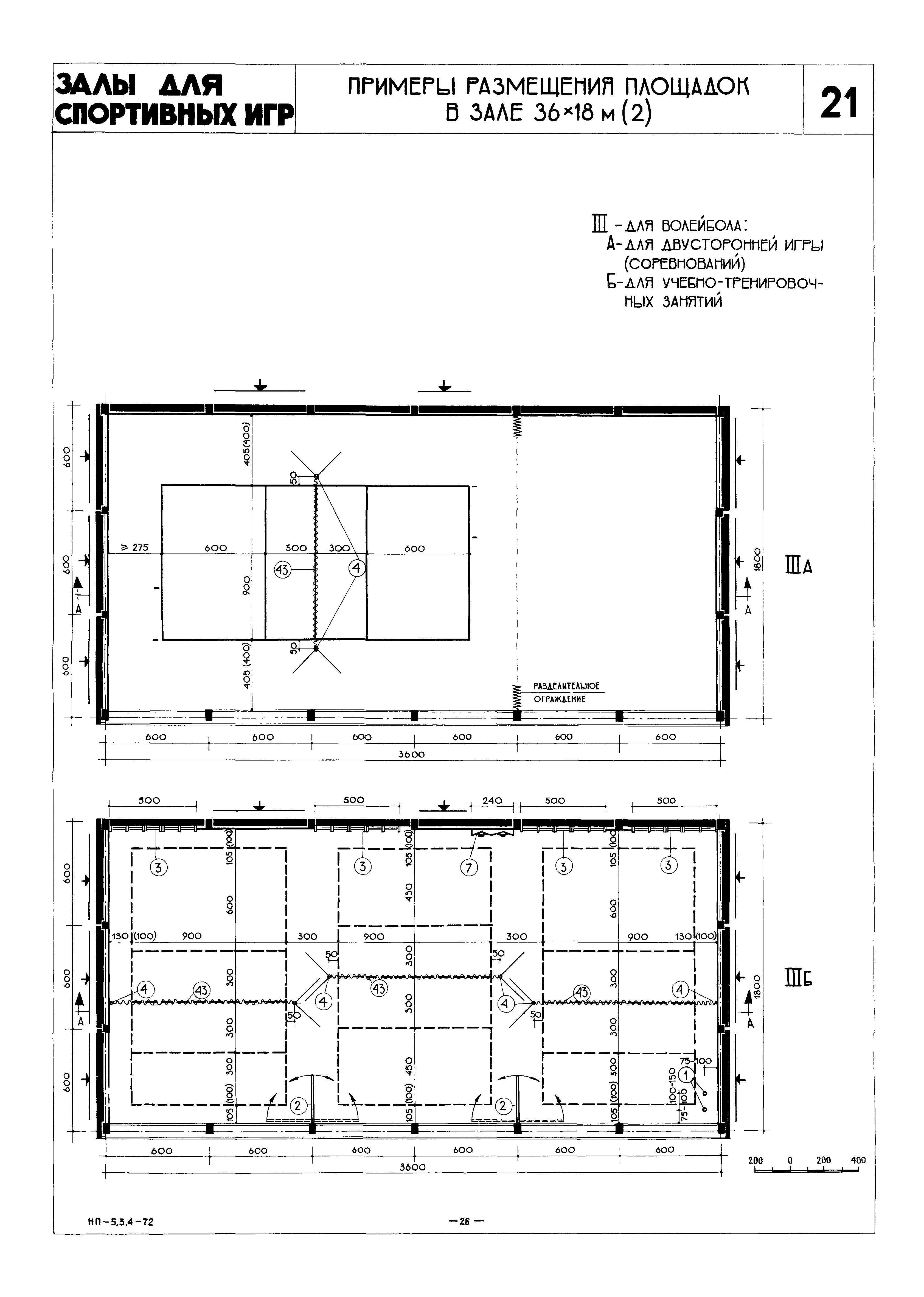
21. Примеры размещения площадок в зале 36х18 м (2)
22. Примеры размещения площадок в зале 36х18 м (3)
23. Примеры размещения площадок в зале 42х24 м (1)
24. Примеры размещения площадок в зале 42х24 м (2)
25. Примеры размещения площадок в зале 42х24 м (1)
Разработан: МНИИТЭП
ЦНИИЭП граждансельстрой
ЦНИИЭП зрелищных зданий и спортивных сооружений Госгражданстроя
КиевЗНИИЭП
Союзспортпроект Спорткомитета СССР
ЦНИИЭП лечебно-курортных зданий Госгражданстроя
Гипроздрав
ЦНИИЭП торговых зданий Госгражданстроя СССР
МИСИ им. В.В. Куйбышева
Утверждён:02.03.1972 Госгражданстрой (Gosgrazhdanstroy 24)
Издан: ЦИТП Госстроя СССР (CITP, Gosstroy (USSR) 1972 г. )
Расположен в:Техническая документация Строительство Справочные документы Нормали основных планировочных элементов жилых и общественных зданий
Нормативные ссылки:
НП 5.3.4-72НП 5.3.4-72НП 5.3.4-72НП 5.3.4-72НП 5.3.4-72НП 5.3.4-72НП 5.3.4-72НП 5.3.4-72НП 5.3.4-72НП 5.3.4-72НП 5.3.4-72НП 5.3.4-72НП 5.3.4-72НП 5.3.4-72НП 5.3.4-72НП 5.3.4-72НП 5.3.4-72НП 5.3.4-72НП 5.3.4-72НП 5.3.4-72НП 5.3.4-72НП 5.3.4-72НП 5.3.4-72НП 5.3.4-72НП 5.3.4-72НП 5.3.4-72НП 5.3.4-72НП 5.3.4-72НП 5.3.4-72НП 5.3.4-72НП 5.3.4-72НП 5.3.4-72НП 5.3.4-72НП 5.3.4-72

© 2013 Ёшкин Кот :-) Карта сайта