Информационная система
«Ёшкин Кот»

Скачать базу одним архивом
Скачать обновления
История создания базы
Карта сайта

Скачать Рекомендации по проектированию усадебных жилых домов для сельского строительства

Дата актуализации: 10.08.2017

Рекомендации по проектированию усадебных жилых домов для сельского строительства

Статус:cправочные материалы, мп, тпр
Название рус.:Рекомендации по проектированию усадебных жилых домов для сельского строительства
Дата добавления в базу:01.09.2013
Дата актуализации:05.05.2017
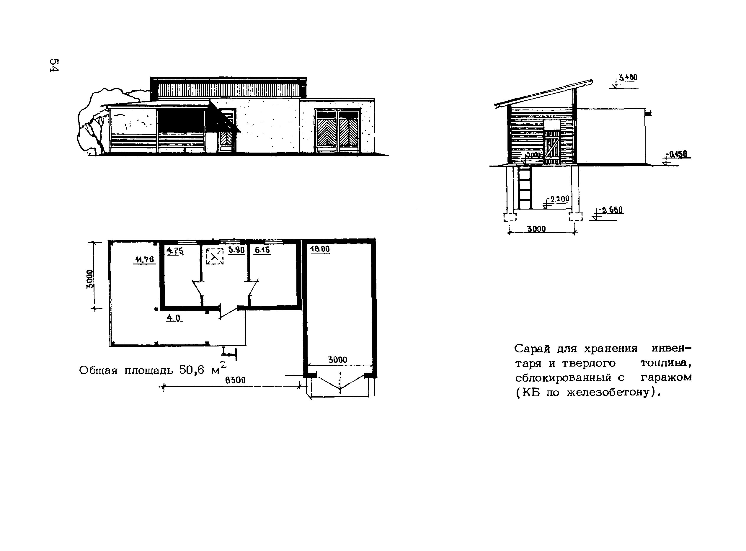
Область применения:Рекомендации по проектированию усадебных жилых домов и хозяйственных построек при них для государственного, колхозного и индивидуального строительства в сельской местности разработаны с учетом измененных нормативных требований, опыта проектирования и технико—экономических обоснований по выбору оптимальных решений. В Рекомендациях рассматриваются одно— и двухквартирные усадебные жилые дома с квартирами от двух до пяти комнат. С целью сокращения теплопотерь и стоимости строительства однокомнатные квартиры для лиц, занимающихся подсобным хозяйством целесообразно размещать в многоквартирных блокированных домах с приквартирными земельными участками.
Оглавление:Введение
1. Типы домов
2. Типы квартир
3. Хозяйственные постройки
4. Технико-экономические показатели
Заключение
Иллюстрации
Разработан: ЦНИИЭП граждансельстрой
ЦНИИЭП жилища
Утверждён:30.03.1984 ЦНИИЭП жилища (TsNIIEPzhilishcha 13)
Расположен в:Техническая документация Экология СТРОИТЕЛЬНЫЕ МАТЕРИАЛЫ И СТРОИТЕЛЬСТВО Строительство Общественные здания Строительство Справочные документы Директивные письма, положения, рекомендации и др.
Нормативные ссылки:

© 2013 Ёшкин Кот :-) Карта сайта