Информационная система
«Ёшкин Кот»

Скачать базу одним архивом
Скачать обновления
История создания базы
Карта сайта

Скачать Типовой проект 901-1-85.87 Альбом III. Архитектурно-строительные решения

Дата актуализации: 10.08.2017

Типовой проект 901-1-85.87

Альбом III. Архитектурно-строительные решения

Обозначение: Типовой проект 901-1-85.87
Обозначение англ: 901-1-85.87
Статус:не определен законодательством
Название рус.:Альбом III. Архитектурно-строительные решения
Дата добавления в базу:01.10.2014
Дата актуализации:05.05.2017
Дата введения:28.08.1987
Оглавление:Чертежи основного комплекта марки АР
   Общие данные
   Планы
   Разрезы 1-1, 2-2, 3-3
   Фасады
   План отверстий. Узлы
   Фрагмент плана 2
   Планы полов
   План кровли. Ведомость перемычек
   Узлы
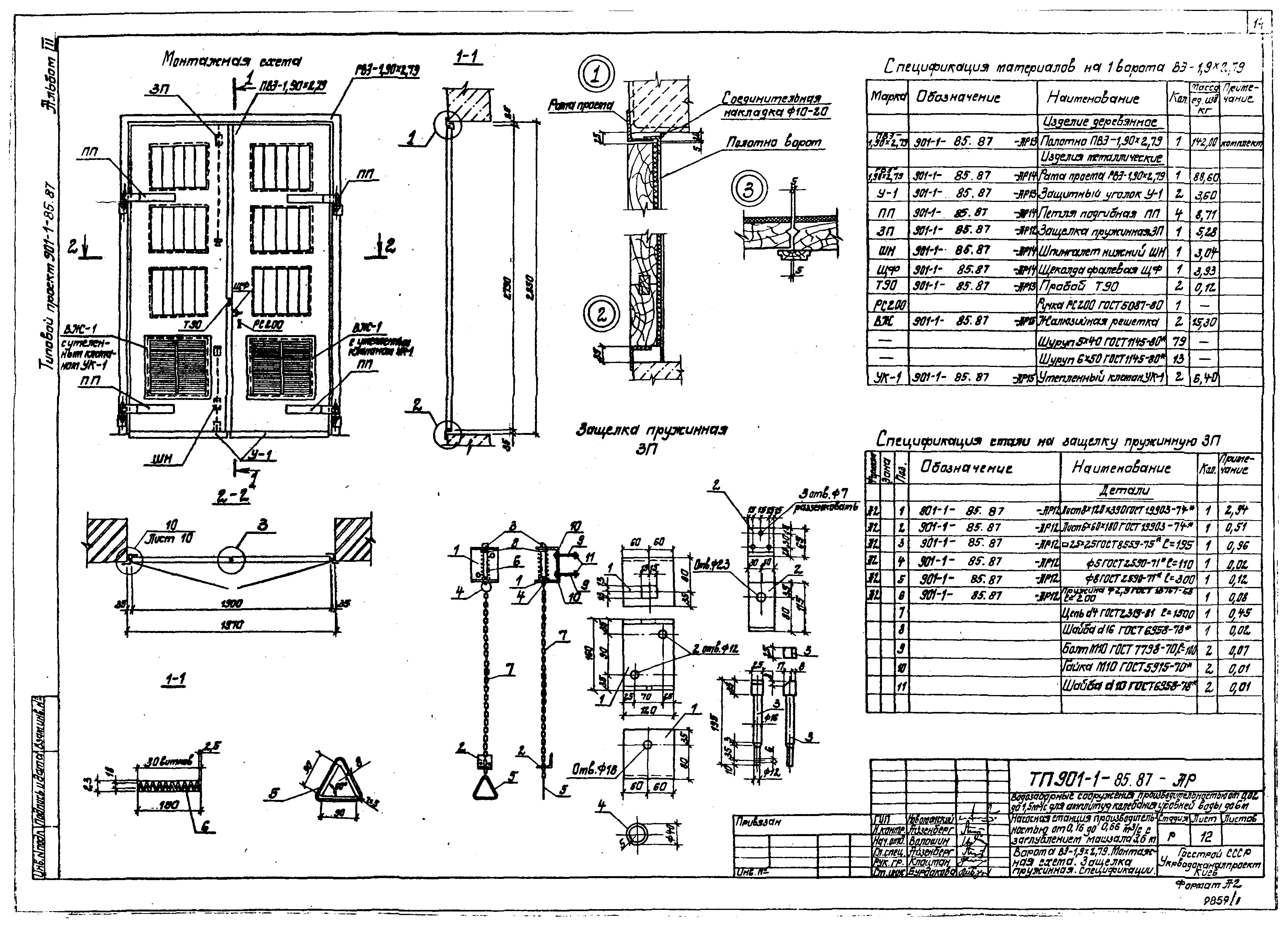
   Ворота ВЭ-1,9х2,79. Монтажная схема. Защелка пружинная. Спецификация
   ПВЭ-1,9х2,79. Защитный уголок, пробой Т90
   Рама РВЭ-1,9х2,79. Шпингалет нижний ШН. Щеколда фалевая ЩФ, петля подгибная ПП
   Детали установки приборов ворот, вентиляционная, жалюзийная решетка ВЖ-1. Утепленный клапан УК-1
   Вентиляционная жалюзийная решетка ВЖ-2. Утепленный клапан УК-2
Чертежи основного комплекта марки КЖ
   Общие данные
   Схемы расположения плит и балок покрытия, колонн
   Узел 1…7 к схемам расположения плит и балок покрытия, колонн
   Схемы расположения стеновых панелей надземной части
   Схема расположения фундаментов и фундаментных балок
   Фундамент ФМ1, ФМ2, ФА1-2…ФА1-2д
   Армирование фундаментов ФМ1, ФМ2, ФА1-2…ФА1-2д
   Схемы расположения стеновых панелей подземной части
   Узел 1…4 к схеме расположения стеновых панелей подземной части
   Схема расположения закладных изделий и выпусков днища ПМ-1. Детали армирования гребня и приямка
   Схемы армирования днища ПМ-1
   Спецификация и ведомость расхода стали днища ПМ-1
   Схема расположения площадок машзала
   Схема расположения фундаментов, опор под оборудование. Фундамент ФОМ1
   Фундамент ФОм2…ФОм6, опора ОПм
   Схема расположения каналов электрочасти (вариант установки 2КТП-630). Разрез 1-1
   Схема расположения каналов электрочасти (вариант установки 2КТП-400, 2КТП-250). Разрезы 2-2…8-8
   Каналы электрочасти. Разрезы 9-9…14-14
   Балка БМ1 - БМ5
   Балка БМ1 - БМ5. Спецификация. Ведомость расхода стали
   Схема расположения приямка теплосети
   Водонепроницаемый выгреб
Чертежи основного комплекта марки КМ
   Общие данные
   Схема расположения путей подвесного крана и монорельсов
   Узел 1…8. Балка МБ6
   Схемы расположения металлических лестниц, площадок, ограждений на отм. 0.000; - 3.660
   Разрез 3-3…10-10
   Узел 1…12
   Схема расположения стоек балок и кронштейнов под площадки
   Разрез 16-16…20-20. Узел 13…18
   Схема расположения опор под трубопроводы. Решетка РМ-3
   Техническая спецификация металла
Разработан: Укрводоканалпроект
Утверждён:28.08.1987 Госстрой СССР (Государственный комитет Совета Министров СССР по делам строительства) (USSR Gosstroy 57)
Расположен в:Техническая документация Строительство Справочные документы Типовые строительные конструкции, изделия и узлы Общероссийский строительный каталог Промышленные предприятия, здания и сооружения Здания и сооружения санитарно-технические Водоснабжение Насосные станции Насосные станции водопроводные
Заменяет собой:
Типовой проект 901-1-85.87Типовой проект 901-1-85.87Типовой проект 901-1-85.87Типовой проект 901-1-85.87Типовой проект 901-1-85.87Типовой проект 901-1-85.87Типовой проект 901-1-85.87Типовой проект 901-1-85.87Типовой проект 901-1-85.87Типовой проект 901-1-85.87Типовой проект 901-1-85.87Типовой проект 901-1-85.87Типовой проект 901-1-85.87Типовой проект 901-1-85.87Типовой проект 901-1-85.87Типовой проект 901-1-85.87Типовой проект 901-1-85.87Типовой проект 901-1-85.87Типовой проект 901-1-85.87Типовой проект 901-1-85.87Типовой проект 901-1-85.87Типовой проект 901-1-85.87Типовой проект 901-1-85.87Типовой проект 901-1-85.87Типовой проект 901-1-85.87Типовой проект 901-1-85.87Типовой проект 901-1-85.87Типовой проект 901-1-85.87Типовой проект 901-1-85.87Типовой проект 901-1-85.87Типовой проект 901-1-85.87Типовой проект 901-1-85.87Типовой проект 901-1-85.87Типовой проект 901-1-85.87Типовой проект 901-1-85.87Типовой проект 901-1-85.87Типовой проект 901-1-85.87Типовой проект 901-1-85.87Типовой проект 901-1-85.87Типовой проект 901-1-85.87Типовой проект 901-1-85.87Типовой проект 901-1-85.87Типовой проект 901-1-85.87Типовой проект 901-1-85.87Типовой проект 901-1-85.87Типовой проект 901-1-85.87Типовой проект 901-1-85.87Типовой проект 901-1-85.87Типовой проект 901-1-85.87Типовой проект 901-1-85.87

© 2013 Ёшкин Кот :-) Карта сайта