Информационная система
«Ёшкин Кот»

Скачать базу одним архивом
Скачать обновления
История создания базы
Карта сайта

Скачать Типовой проект 905-1-37.87 Альбом 1. Пояснительная записка. Технология производства. Спецификация оборудования. Ведомость потребности в материалах. Архитектурно-строительные решения. Ведомость потребности в материалах. Конструкции металлические. Электроснабжение. Спецификация оборудования. Ведомость потребности в материалах

Дата актуализации: 10.08.2017

Типовой проект 905-1-37.87

Альбом 1. Пояснительная записка. Технология производства. Спецификация оборудования. Ведомость потребности в материалах. Архитектурно-строительные решения. Ведомость потребности в материалах. Конструкции металлические. Электроснабжение. Спецификация оборудования. Ведомость потребности в материалах

Обозначение: Типовой проект 905-1-37.87
Обозначение англ: 905-1-37.87
Статус:действует
Название рус.:Альбом 1. Пояснительная записка. Технология производства. Спецификация оборудования. Ведомость потребности в материалах. Архитектурно-строительные решения. Ведомость потребности в материалах. Конструкции металлические. Электроснабжение. Спецификация оборудования. Ведомость потребности в материалах
Дата добавления в базу:01.10.2014
Дата актуализации:05.05.2017
Оглавление:Содержание альбома
Общая пояснительная записка
Технология производства
   Общие данные
   План, разрезы А-А, Б-Б, В-В
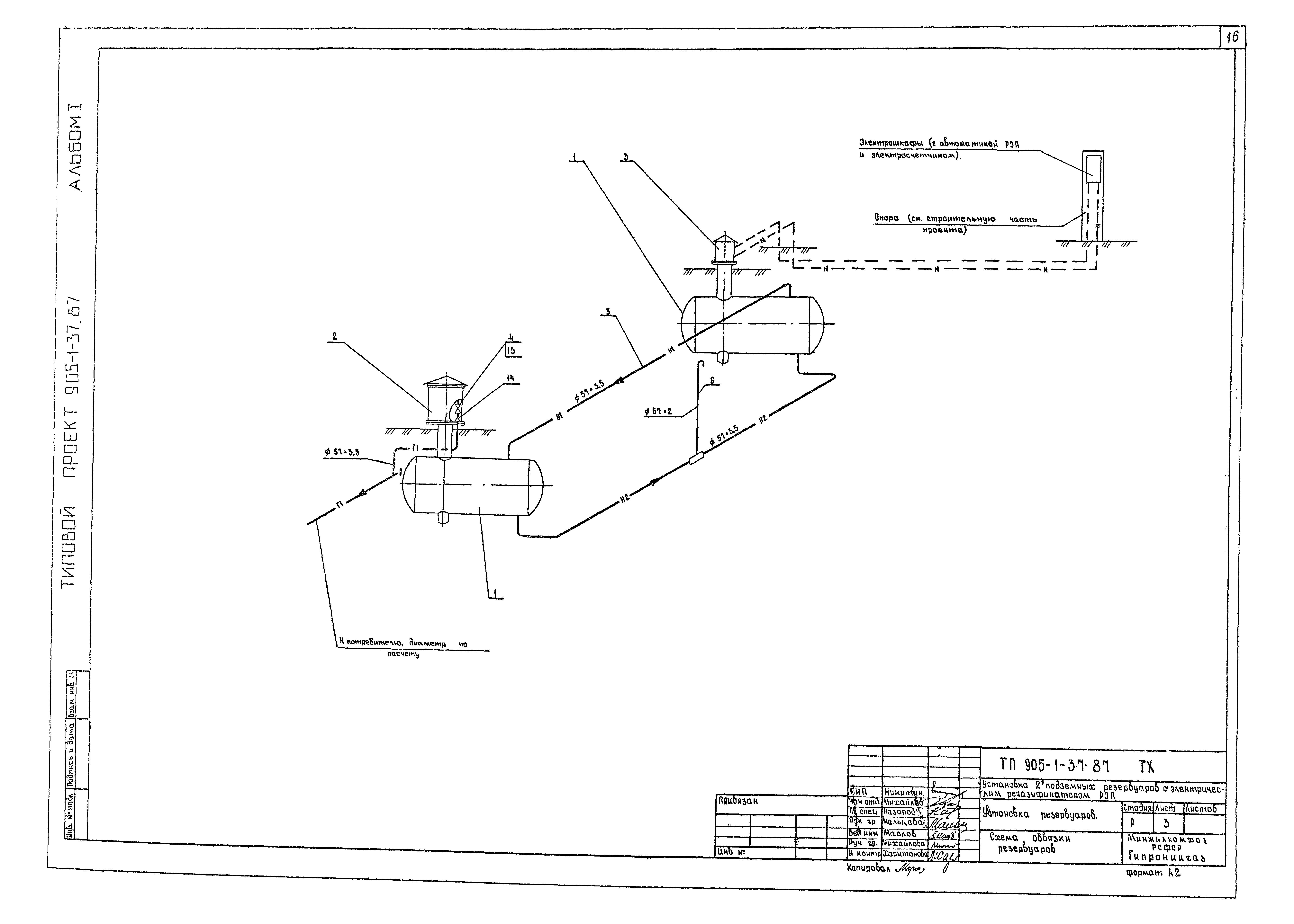
   Схема обвязки резервуаров
   Фрагмент плана. Разрезы Г-Г, Д-Д
   Дренажная трубка
   Ведомость потребности материалов
   Спецификация оборудования
Архитектурно-строительные решения
   Общие данные
   Схема расположения столбов ограды. Схема установки столбов ограды. Схема расположения фундаментов. Фундаменты ФМ-1, ФМ-2
   Ведомость потребности материалов
Конструкции металлические
   Общие данные
   Схема расположения элементов ограды М1Б и стойки МС. Стойка МС. Узел 1
Электроснабжение
   Общие данные
   План внутриплощадочных электрических сетей 220 В. Молниезащита
   Шкаф счетчика
   Шкаф счетчика. Схема соединений
   Ведомость потребности материалов
   Спецификация оборудования
Разработан: Гипрониигаз Минжилкомхоза РСФСР
Утверждён:14.12.1987 Минжилкомхоз РСФСР (Russian Federation Minzhilkomkhoz )
Расположен в:Техническая документация Строительство Справочные документы Типовые строительные конструкции, изделия и узлы Общероссийский строительный каталог Промышленные предприятия, здания и сооружения Здания и сооружения санитарно-технические Газоснабжение Сооружения и установки систем газоснабжения
Заменяет собой:
  • Типовой проект 905-1-12
Типовой проект 905-1-37.87Типовой проект 905-1-37.87Типовой проект 905-1-37.87Типовой проект 905-1-37.87Типовой проект 905-1-37.87Типовой проект 905-1-37.87Типовой проект 905-1-37.87Типовой проект 905-1-37.87Типовой проект 905-1-37.87Типовой проект 905-1-37.87Типовой проект 905-1-37.87Типовой проект 905-1-37.87Типовой проект 905-1-37.87Типовой проект 905-1-37.87Типовой проект 905-1-37.87Типовой проект 905-1-37.87Типовой проект 905-1-37.87Типовой проект 905-1-37.87Типовой проект 905-1-37.87Типовой проект 905-1-37.87Типовой проект 905-1-37.87Типовой проект 905-1-37.87Типовой проект 905-1-37.87Типовой проект 905-1-37.87Типовой проект 905-1-37.87Типовой проект 905-1-37.87Типовой проект 905-1-37.87Типовой проект 905-1-37.87Типовой проект 905-1-37.87

© 2013 Ёшкин Кот :-) Карта сайта