Скачать Типовые проектные решения 403-3-075.86 Альбом XII. Камера ремонта горнопроходческого оборудованияДата актуализации: 10.08.2017 Типовые проектные решения 403-3-075.86
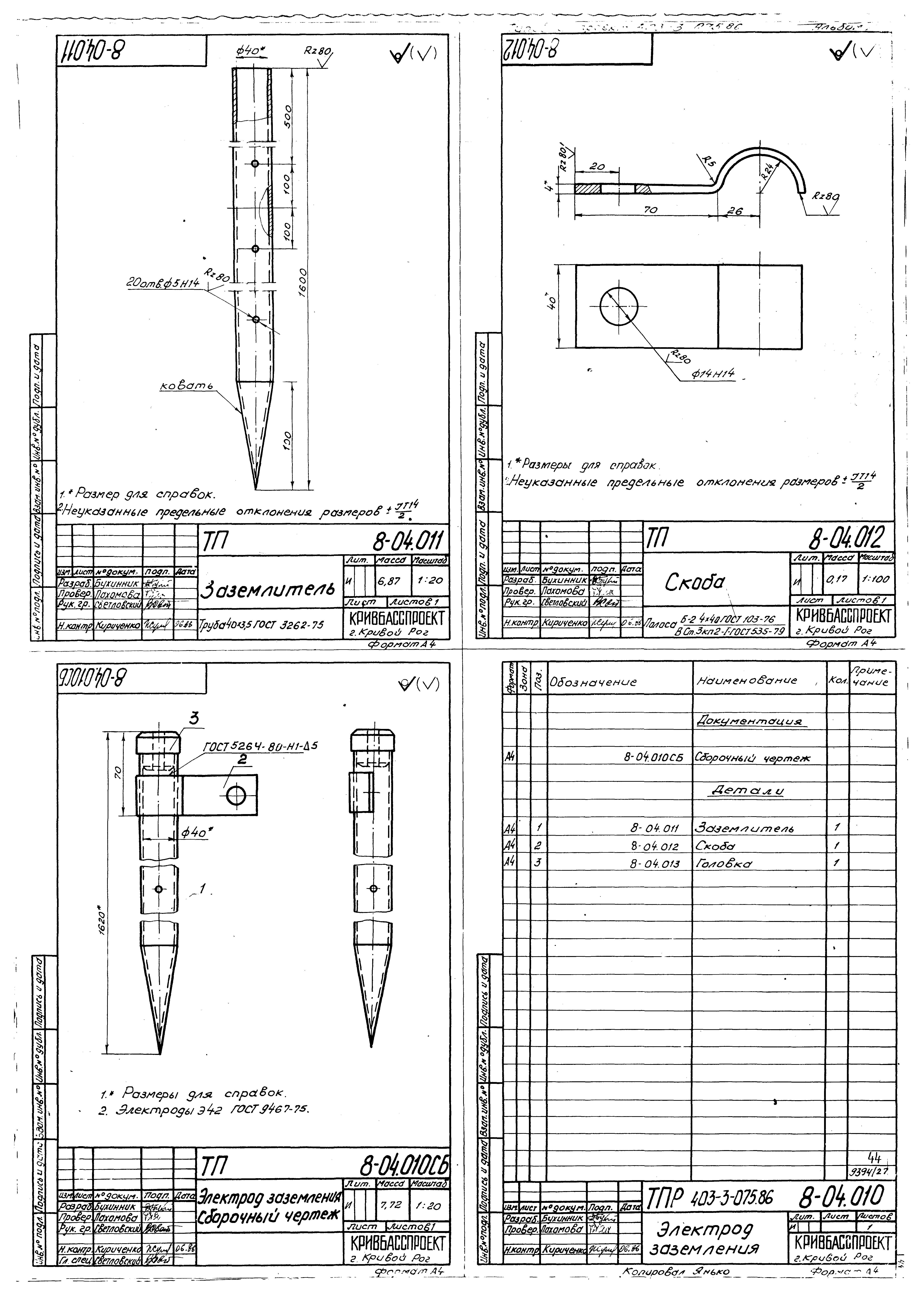
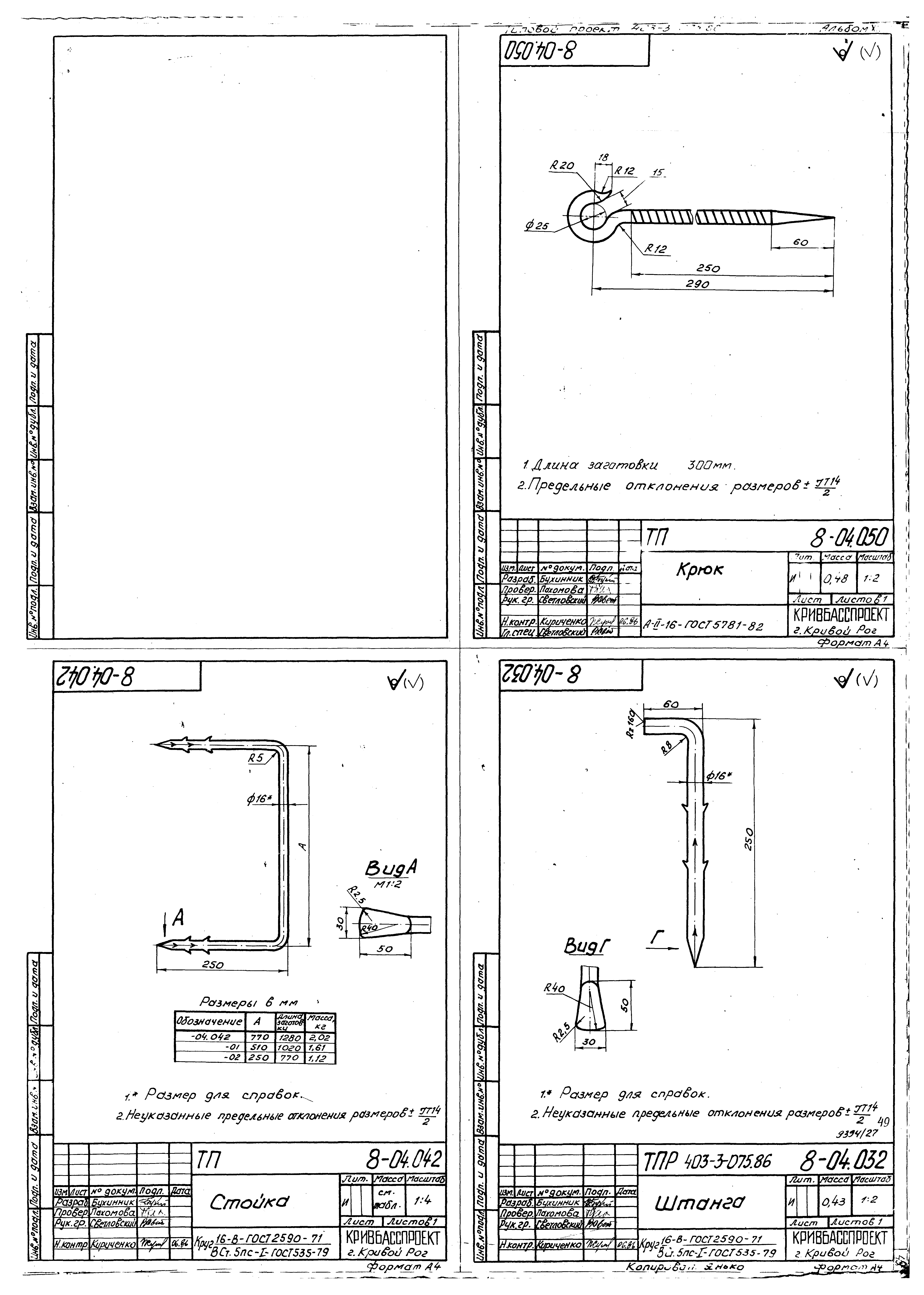
Альбом XII. Камера ремонта горнопроходческого оборудованияОбозначение: | Типовые проектные решения 403-3-075.86 | Обозначение англ: | 403-3-075.86 | Статус: | cправочные материалы, мп, тпр | Название рус.: | Альбом XII. Камера ремонта горнопроходческого оборудования | Дата добавления в базу: | 01.09.2013 | Дата актуализации: | 05.05.2017 | Оглавление: | Содержание альбома I. Горностроительные решения Общие данные Крепь штанговая с набрызгбетоном. План Крепь штанговая с набрызгбетоном. Разрезы А-А…И-И. Узел I Крепь штанговая со стальной сеткой и набрызгбетоном. План Крепь штанговая со стальной сеткой и набрызгбетоном. Разрезы А-А…И-И. Узел I Крепь - монолитный бетон. План Крепь - монолитный бетон. Разрезы А-А…И-И. Узел I Яма смотровая. План. Разрезы А-А, Б-Б. Узел I Настилка рельсового пути на закруглении. План, разрез А-А, вид А Настилка рельсового пути на прямом участке. План, разрезы А-А, Б-Б. Узел I Канавка водоотливная. Узел II, разрез А-А План расположения фундаментных болтов под оборудование Штанга. Сборочный чертеж Штанга Стержень Плита опорная II. Технология производства Общие данные Схема расположения. Разрезы А-А, Б-Б, В-В План расположения технологического оборудования Разрезы А-А, Б-Б, В-В Разрез Г-Г. План фундаментных болтов под оборудование. План фундаментных болтов под лебедку Спецификация Разводка трубопроводов сжатого воздуха. План. Разрезы А-А, Б-Б Установка аспирационная местная. План. Разрезы Б-Б, В-В, Г-Г Установка аспирационная местная. Разрезы А-А, Д-Д, Е-Е, Ж-Ж, И-И Установка аспирационная ванны для мойки деталей. План. Вид В. Разрезы А-А, Б-Б, Е-Е Установка аспирационная ванны для мойки деталей. Вид Г. Разрезы Д-Д, Ж-Ж, И-И. План расположения фундаментных болтов под вентилятор Установка аспирационная стола сварщика. План. Разрезы А-А…Е-Е Устройство для крепления гибкого токопровода. Главный вид. Разрезы А-А…В-В Устройство для крепления гибкого токопровода. Выносные элементы I, II, III III. Конструкции металлические Общие данные. Техническая спецификация металла Техническая спецификация металла Ведомость металлоконструкций по видам профилей Монтажный чертеж Подкрановый путь. Главный вид и разрезы 1-1, 2-2, 3-3 Площадка крана. Главный вид и разрезы 1-1, 2-2, 3-3, 4-4 IV. Водопровод и канализация Общие данные. План Разрезы А-А…Г-Г, узлы I…III Кронштейн. Сборочный чертеж Кронштейн Опора Пояс V. Силовое электрооборудование Общие данные Схема принципиальная однолинейная 0,4 кВ Расположение оборудования и кабельная разводка Сети электроосвещения и заземления Спецификации Электрод заземления. Сборочный чертеж Электрод заземления Заземлитель Скоба Перемычка. Сборочный чертеж Перемычка Головка Наконечник Кабельная подвеска КП2-8. Сборочный чертеж Кабельная подвеска КП2-8 Скоба Кабельные подвески КП2-4, КП4-4, КП6-4. Сборочный чертеж Кабельные подвески КП2-4, КП4-4, КП6-4 Скоба Штанга. Сборочный чертеж Штанга Стержень Штанга Стойка Крюк Заземляющий проводник. Сборочный чертеж Заземляющий проводник Хомут VI. Связь и сигнализация Общие данные Телефонизация и радиофикация | Разработан: | Кривбасспроект Минчермета СССР
| Утверждён: | 19.06.1986 Минчермет СССР (USSR Minchermet 762)
| Расположен в: |
|
                                                    
|