Скачать Типовой проект 901-9-18.87 Альбом II. Архитектурные решения. Конструкции железобетонные. Технологическая, сантехническая, электротехническая частиДата актуализации: 10.08.2017 Типовой проект 901-9-18.87
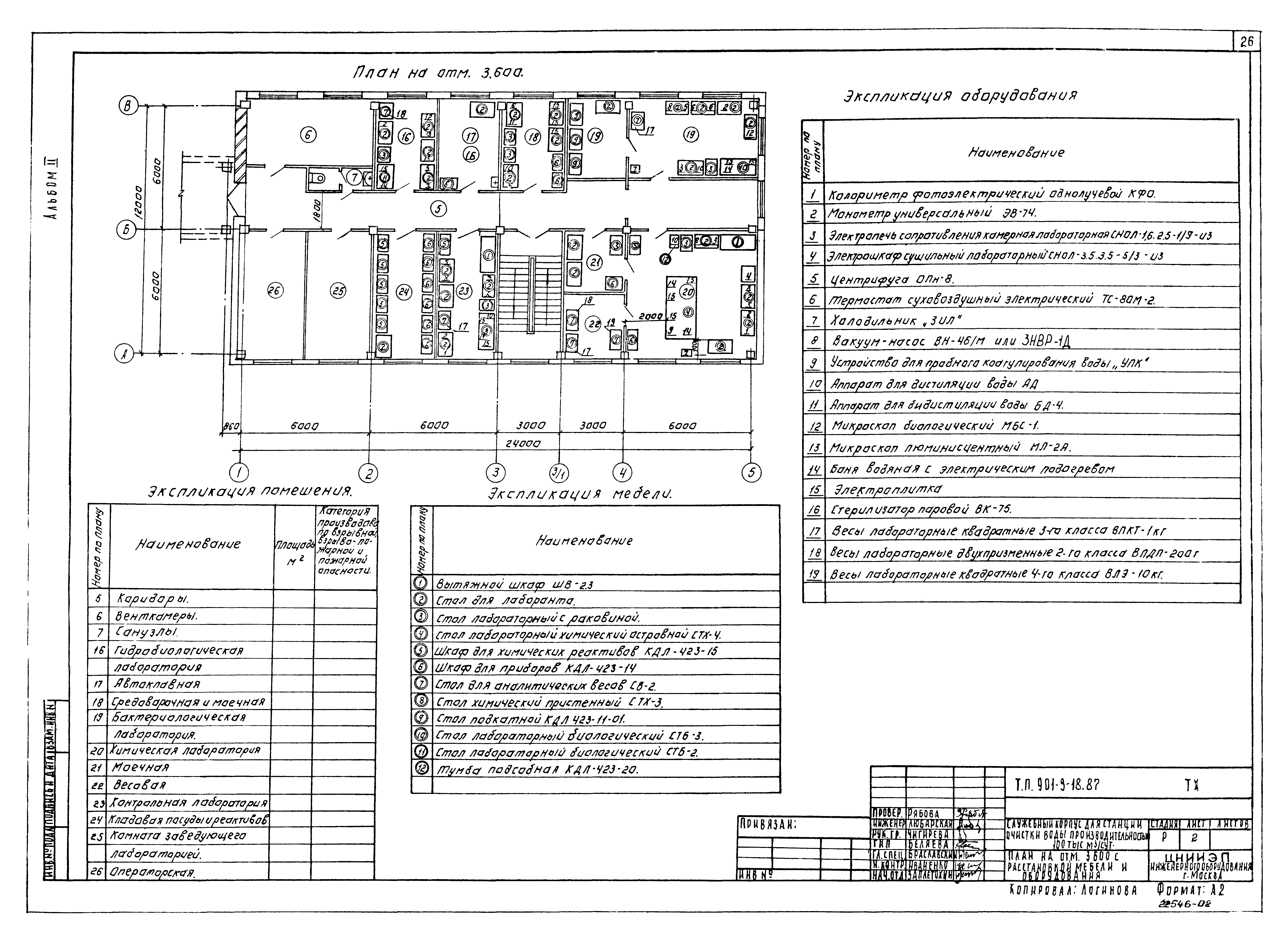
Альбом II. Архитектурные решения. Конструкции железобетонные. Технологическая, сантехническая, электротехническая частиОбозначение: | Типовой проект 901-9-18.87 | Обозначение англ: | 901-9-18.87 | Статус: | не определен законодательством | Название рус.: | Альбом II. Архитектурные решения. Конструкции железобетонные. Технологическая, сантехническая, электротехническая части | Дата добавления в базу: | 01.10.2014 | Дата актуализации: | 05.05.2017 | Дата введения: | 29.09.1987 | Оглавление: | Содержание Архитектурно-строительные решения Общие данные План на отм. 0.000 План на отм. 3.600 Фасады 1 - 5; 5 - 1; В - А; А - В. Разрезы 1-1, 2-2 Планы и спецификации перегородок. Узлы Ведомости перемычек, отделки помещений, проемов ворот и дверей. Спецификации элементов заполнения проемов, перемычек Планы полов и кровли Переходная галерея. Планы, разрезы, фасад Переходная галерея. Детали Конструкции железобетонные Общие данные Схема расположения фундаментов и фундаментных балок Фрагменты 1 - 6. Сечения 1-1 - 6-6 Фрагменты ФМ1, ФМ2, ФМ3, ФМ4 Схема расположения каналов и приямков. Сечения Схема расположения колонн, ригелей и диафрагм жесткости. Сечения 1-1 - 4-4 Схема расположения плит покрытия и перекрытия. Разрез 1-1, Ум-1 Схемы расположения стеновых панелей в осях 1 - 5; 5 - 1; В - А; А - В Схемы расположения лестницы Схема расположения МП-1. Сечения 1-1 - 5-5 Венткамера на отм. 0.000 Переходная галерея. Схемы расположения колонн, ригелей, плит покрытия, фундаментов Переходная галерея. Схемы расположения стеновых панелей Технологическая часть Общие данные План на отм. 3.600 с расстановкой мебели и оборудования Сантехническая часть Общие данные Планы на отм. 0.000 и 3.600 Схемы В1, Т3, Х1 и К2 Отопление и вентиляция Общие данные План на отм. 0.000 План на отм. 3.600. Переходная галерея. План на отм. 3.685. Схема отопления Схема отопления. Схемы вентиляции П1, В1-3, ВЕ-1 Установка системы П-1. План на отм. 0.000. Разрез 1-1. Спецификация. Узел управления. Схема теплоснабжения установки П1 Установка системы В1. План на отм. 3.600. Разрез 1-1. Спецификация Конфузор Переход Электротехническая часть Общие данные Схема электрическая принципиальная распределительной сети 380/220 В Схема подключения электрооборудования Кабельный журнал Размещение электрооборудования и прокладка кабеля. План на отм. 0.000 Размещение электрооборудования и прокладка кабеля. План на отм. 3.600 Размещение электрооборудования и прокладка кабеля. Спецификация Автоматизация Общие данные Схема электрическая принципиальная питания приборов и цепей управления ЩО и ЩАХ, схема автоматизации приточной системы П-1 Схемы электрические принципиальные сигнализации питания приборов и цепей управления ЩД Схема электрическая принципиальная сигнализации ЩО Схема подключения приборов и устройств технологического контроля Размещение приборов и устройств технологического контроля. План на отм. 0.000 и 3.600. Спецификация Схема подключения Электрическое освещение Общие данные Электрическое освещение. План на отм. 0.000 Электрическое освещение. План на отм. 3.600. План переходной галереи на отм. 3.685 Связь и сигнализация Общие данные План на отм. 0.000 с сетями связи и сигнализации План на отм. 3.600 с сетями связи и сигнализации Организация строительства Схема монтажа сборных железобетонных конструкций График производства работ | Разработан: | ЦНИИЭП инженерного оборудования
| Утверждён: | 13.02.1985 Госгражданстрой (Gosgrazhdanstroy 43)
| Расположен в: |
| Заменяет собой: | |
                                                           
|