Информационная система
«Ёшкин Кот»

Скачать базу одним архивом
Скачать обновления
История создания базы
Карта сайта

Скачать Типовой проект 804-2-41.86 Альбом I. Общая пояснительная записка. Рабочие чертежи. Спецификации оборудования

Дата актуализации: 10.08.2017

Типовой проект 804-2-41.86

Альбом I. Общая пояснительная записка. Рабочие чертежи. Спецификации оборудования

Обозначение: Типовой проект 804-2-41.86
Обозначение англ: 804-2-41.86
Статус:не определен законодательством
Название рус.:Альбом I. Общая пояснительная записка. Рабочие чертежи. Спецификации оборудования
Дата добавления в базу:01.09.2013
Дата актуализации:05.05.2017
Дата введения:06.11.1986
Оглавление:Содержание альбома
Пояснительная записка
Комплект рабочих чертежей марки ТХ
   Общие данные
   План расстановки технологического оборудования с паддоками. Разрез А-А
Комплект рабочих чертежей марки АС
   Общие данные
   Фасады 1 - 22; 22 - 1; А - В; В - А
   План на отм. 0.000. Экспликация помещений. Фрагмент 1
   Разрезы 1-1, 2-2, 3-3, 4-4. Фрагмент 2
   Схема расположения фундаментов. Фрагмент 1
   Ведомость перемычек
   Планы полов, кровли. Раскладка асбестоцементных волнистых листов
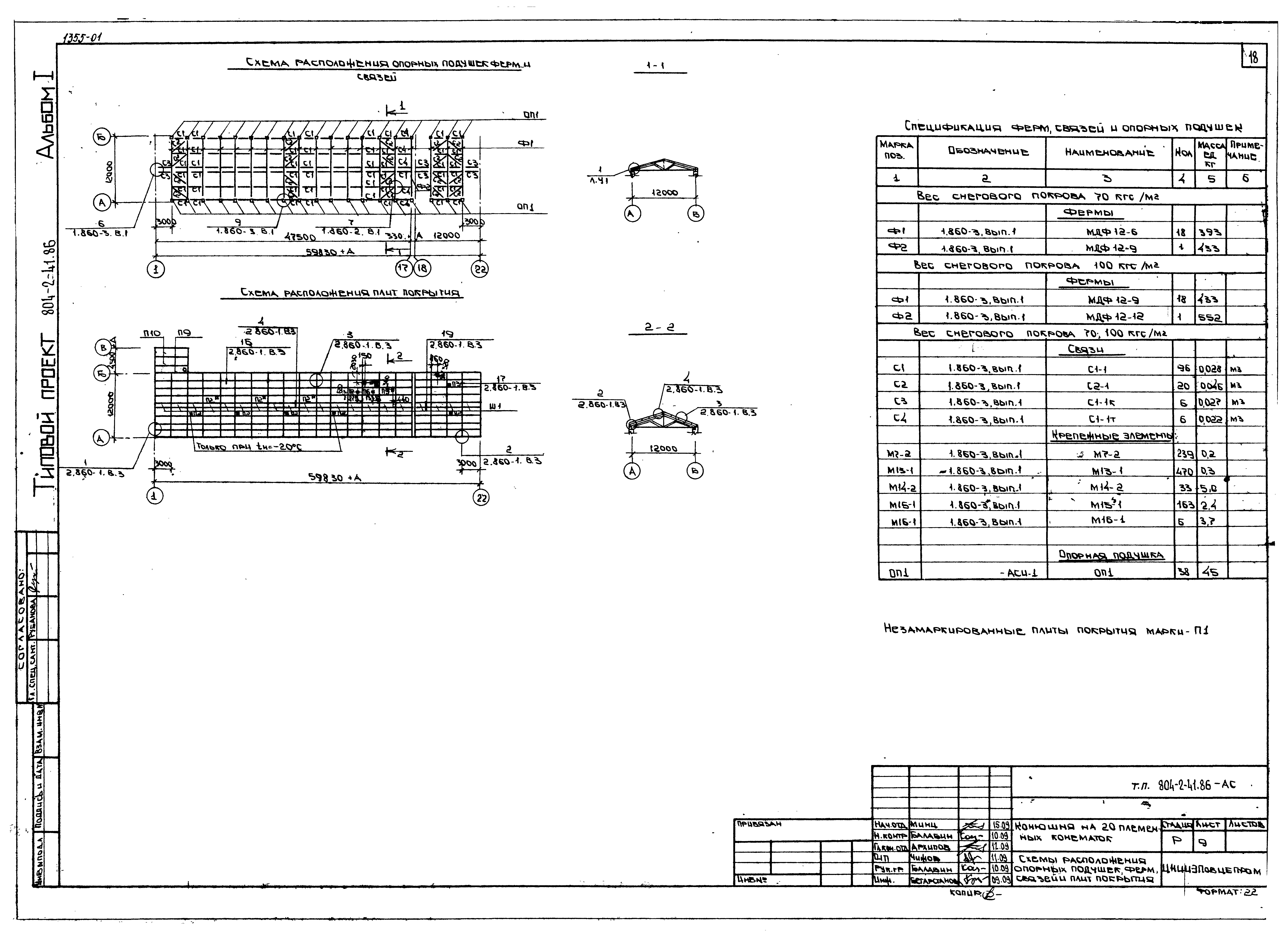
   Схемы расположения опорных подушек, ферм, связей и плит покрытия
   Спецификация к схеме расположения плит покрытия
   Схема расположения решеток, кормушек
   План навозоуборочного канала
   Схема расположения щитов навозоуборочного канала
   Схема ограждения элементов ограждения паддоков
   Узлы 1 - 6
   Опорная подушка ОП-1
   Стойки СК1, СК2
   Крепление проема ворот к кирпичной стене
   Кронштейны К1, К2
   Ворота ВМ-1
   Полотно ворот ПМ-1. Засов
   Металлические решетки РМ1 - РМ6
   Кормушки КРМ1, КРМ2
   Дверь ИД1, ИД2
   Кормушка КР1
   Изделия соединительные МС1, МС2. Вешало для сбруи
   Щиты Щ3 - Щ7, Щ9, Щ10
   Оконный блок с турникетом ОК3
   Люк с задвижкой Л1
Комплект рабочих чертежей марки ОВ
   Общие данные
   План на отм. 0.000. Разрез 1-1. Схема системы вентиляции П1
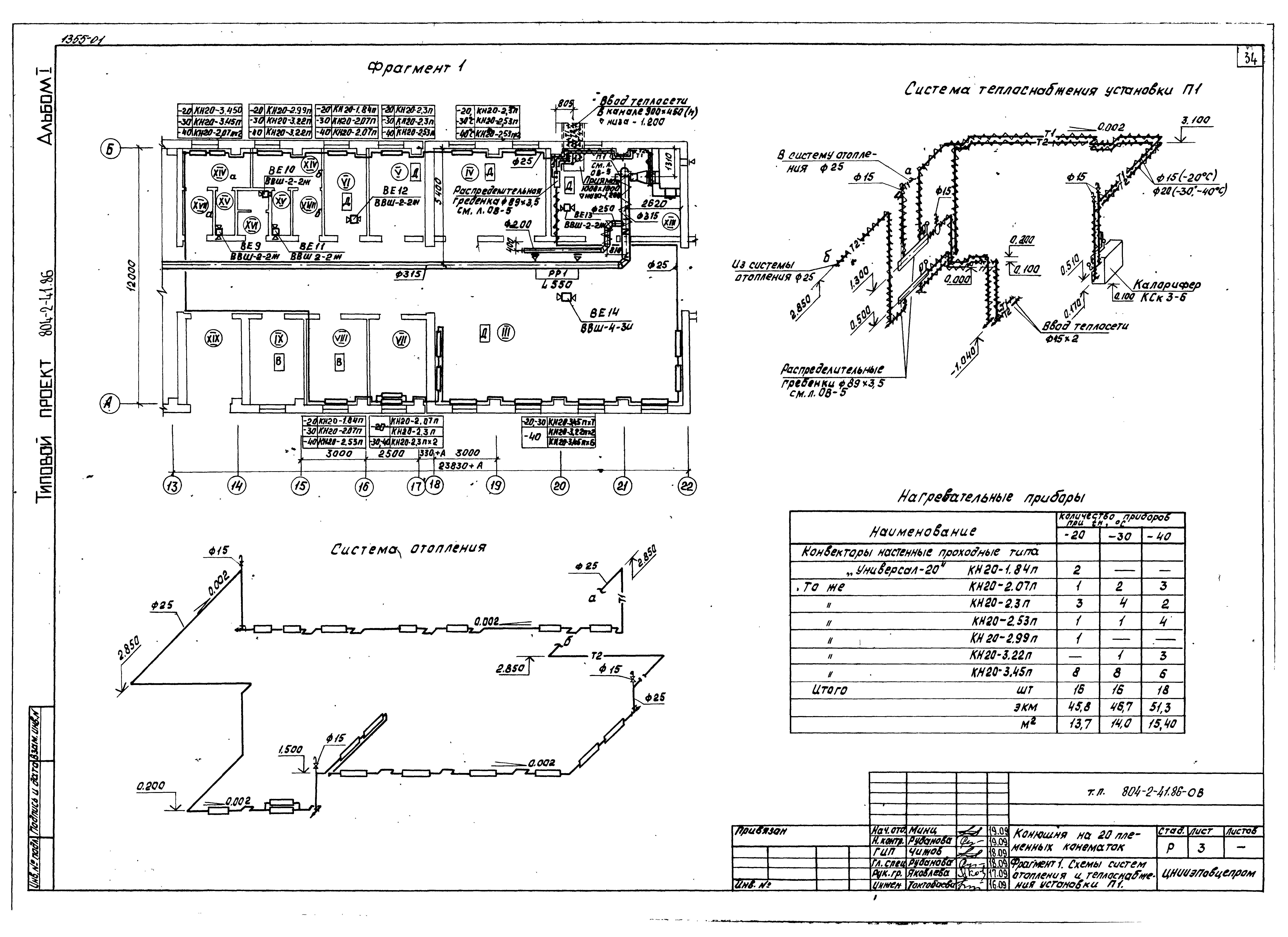
   Фрагмент 1. Схемы систем отопления м теплоснабжения установки П1
   Фрагмент 1 (вариант с электрокалорифером). Таблица нагревательных приборов
   Венткамера. План. Разрез 1-1
   Электрокалориферная. План. Разрез 1-1
Комплект рабочих чертежей марки ВК
   Общие данные
   План на отм. 0.000. Фрагмент 1, 2
   Схемы систем В0, Т3, К1, К3
Комплект рабочих чертежей марки ЭМ
   Общие данные
   Электроосвещение
   Силовое электрооборудование
   Расчетная схема (вариант с вентагрегатом)
   Расчетная схема (вариант с электрокалорифером)
   Схемы электрические принципиальные
   Задание мастерской электромонтажных заготовок
Спецификации оборудования
Разработан: ЦНИИЭПовцепрома
Утверждён:08.10.1986 Госагропром РСФСР (Russian Federation Gosagroprom 53-В)
Расположен в:Техническая документация Строительство Справочные документы Типовые строительные конструкции, изделия и узлы Общероссийский строительный каталог Сельскохозяйственные предприятия, здания и сооружения Предприятия, здания и сооружения коневодческие Здания и сооружения
Типовой проект 804-2-41.86Типовой проект 804-2-41.86Типовой проект 804-2-41.86Типовой проект 804-2-41.86Типовой проект 804-2-41.86Типовой проект 804-2-41.86Типовой проект 804-2-41.86Типовой проект 804-2-41.86Типовой проект 804-2-41.86Типовой проект 804-2-41.86Типовой проект 804-2-41.86Типовой проект 804-2-41.86Типовой проект 804-2-41.86Типовой проект 804-2-41.86Типовой проект 804-2-41.86Типовой проект 804-2-41.86Типовой проект 804-2-41.86Типовой проект 804-2-41.86Типовой проект 804-2-41.86Типовой проект 804-2-41.86Типовой проект 804-2-41.86Типовой проект 804-2-41.86Типовой проект 804-2-41.86Типовой проект 804-2-41.86Типовой проект 804-2-41.86Типовой проект 804-2-41.86Типовой проект 804-2-41.86Типовой проект 804-2-41.86Типовой проект 804-2-41.86Типовой проект 804-2-41.86Типовой проект 804-2-41.86Типовой проект 804-2-41.86Типовой проект 804-2-41.86Типовой проект 804-2-41.86Типовой проект 804-2-41.86Типовой проект 804-2-41.86Типовой проект 804-2-41.86Типовой проект 804-2-41.86Типовой проект 804-2-41.86Типовой проект 804-2-41.86Типовой проект 804-2-41.86Типовой проект 804-2-41.86Типовой проект 804-2-41.86Типовой проект 804-2-41.86Типовой проект 804-2-41.86Типовой проект 804-2-41.86Типовой проект 804-2-41.86Типовой проект 804-2-41.86Типовой проект 804-2-41.86Типовой проект 804-2-41.86Типовой проект 804-2-41.86Типовой проект 804-2-41.86Типовой проект 804-2-41.86Типовой проект 804-2-41.86Типовой проект 804-2-41.86Типовой проект 804-2-41.86Типовой проект 804-2-41.86Типовой проект 804-2-41.86Типовой проект 804-2-41.86Типовой проект 804-2-41.86Типовой проект 804-2-41.86Типовой проект 804-2-41.86Типовой проект 804-2-41.86

© 2013 Ёшкин Кот :-) Карта сайта