Информационная система
«Ёшкин Кот»

Скачать базу одним архивом
Скачать обновления
История создания базы
Карта сайта

Скачать Типовой проект 224-1-454.85 Альбом I. Архитектурно-строительные и технологические чертежи

Дата актуализации: 10.08.2017

Типовой проект 224-1-454.85

Альбом I. Архитектурно-строительные и технологические чертежи

Обозначение: Типовой проект 224-1-454.85
Обозначение англ: 224-1-454.85
Статус:не определен законодательством
Название рус.:Альбом I. Архитектурно-строительные и технологические чертежи
Дата добавления в базу:01.09.2013
Дата актуализации:05.05.2017
Дата введения:18.12.1985
Оглавление:Содержание альбома
Чертежи марки АС
   Общие данные
   Схема плана фундаментов и сечений. Таблица нагрузок
   Схема расположения фундаментов
   Схема расположения подпольных каналов
   Сечения 1-1 - 24-24
   План лестницы в подвал. Крыльца 1, 3
   Входы №1, №2. Крыльцо 2. Спецификация
   Фасады 1 - 8; 8 - 1
   Фасады К - А; А - К
   Фасады 1 - 8; 8 - 1 (вариант)
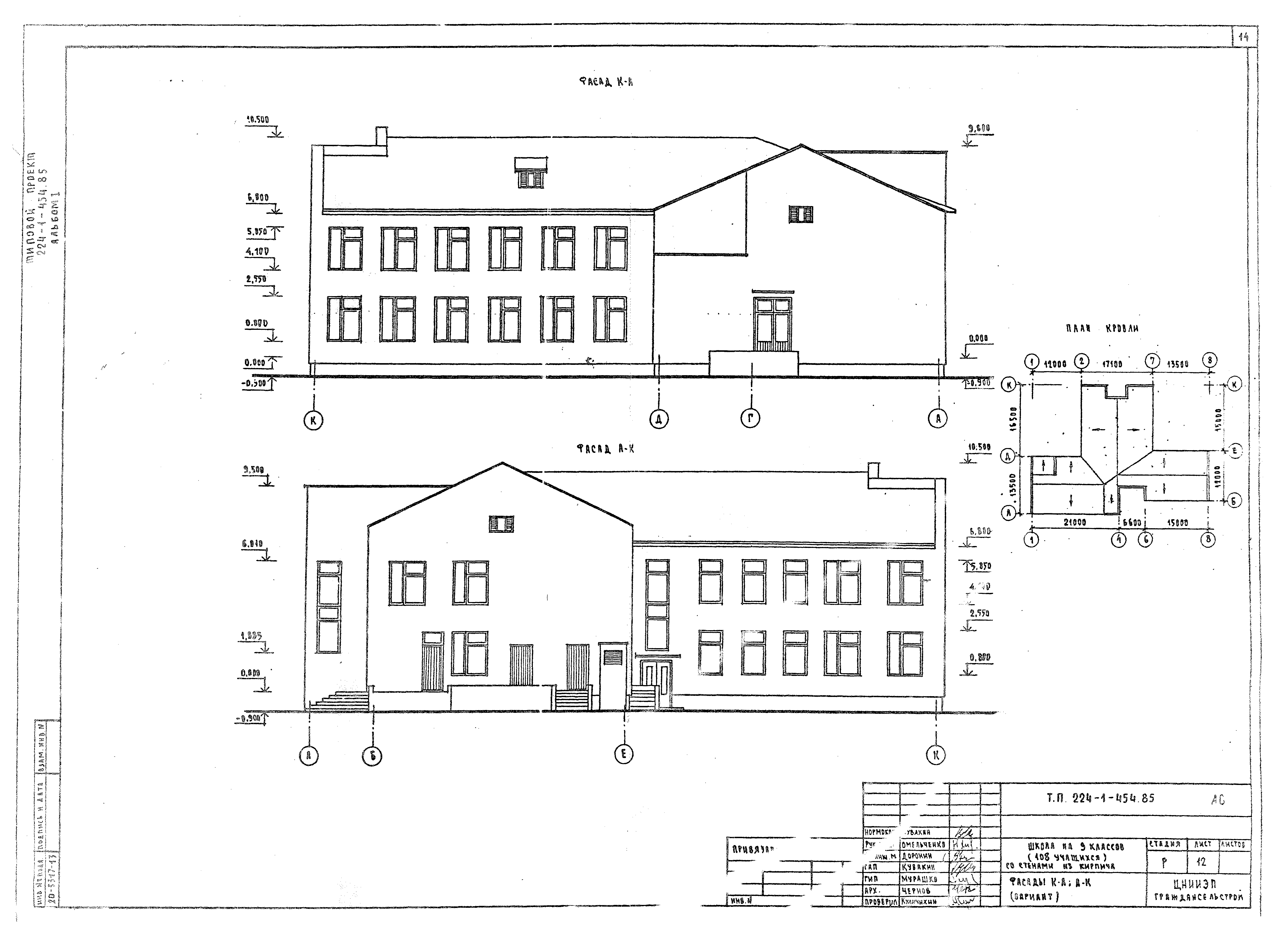
   Фасады К - А; А - К (вариант)
   План подвала. План 1-го этажа. Экспликация отверстий
   План 2-го этажа. Ведомость проемов ворот и дверей
   Разрезы 1-1, 2-2, 3-3
   Спецификация столярных изделий. Ведомость отделки помещений
   Монтажный план перемычек и козырьков
   Ведомость перемычек
   Ведомость перемычек. Узлы
   Спецификация перемычек
   План перекрытия над 1-ым этажом
   План покрытия на отм. 6.300 и 5.400
   Ум1 - Ум4. Спецификации
   Развертки каналов по осям "Г", "7", "3", "5", "Е"
   Вентшахты ВШ-1 - ВШ-12. Спецификация
   Монолитные железобетонные балки БМ1 - БМ3. Спецификации
   Лестницы Л-1 и Л-2. Спецификации
   Венткамера
   План кровли. Эстрада учебно-спортивного зала
   Фрагменты фасадов 1, 2
   Фрагменты планов 1 и 2 этажей. Развертки стен. Спецификация оборудования
Чертежи марки ТХ
   Общие данные
   План 1 этажа. Вариант расстановки учебного оборудования и мебели
   План 2 этажа. Вариант расстановки учебного оборудования и мебели
   Фрагмент плана с привязкой подводов электроэнергии и воды к оборудованию
Разработан: ЦНИИЭП граждансельстрой
Утверждён:05.02.1985 Госгражданстрой (Gosgrazhdanstroy 34)
Расположен в:Техническая документация Строительство Справочные документы Типовые строительные конструкции, изделия и узлы Общероссийский строительный каталог Общественные здания для строительства в сельской местности Школы и внешкольные учреждения Общеобразовательные школы
Типовой проект 224-1-454.85Типовой проект 224-1-454.85Типовой проект 224-1-454.85Типовой проект 224-1-454.85Типовой проект 224-1-454.85Типовой проект 224-1-454.85Типовой проект 224-1-454.85Типовой проект 224-1-454.85Типовой проект 224-1-454.85Типовой проект 224-1-454.85Типовой проект 224-1-454.85Типовой проект 224-1-454.85Типовой проект 224-1-454.85Типовой проект 224-1-454.85Типовой проект 224-1-454.85Типовой проект 224-1-454.85Типовой проект 224-1-454.85Типовой проект 224-1-454.85Типовой проект 224-1-454.85Типовой проект 224-1-454.85Типовой проект 224-1-454.85Типовой проект 224-1-454.85Типовой проект 224-1-454.85Типовой проект 224-1-454.85Типовой проект 224-1-454.85Типовой проект 224-1-454.85Типовой проект 224-1-454.85Типовой проект 224-1-454.85Типовой проект 224-1-454.85Типовой проект 224-1-454.85Типовой проект 224-1-454.85Типовой проект 224-1-454.85Типовой проект 224-1-454.85Типовой проект 224-1-454.85Типовой проект 224-1-454.85Типовой проект 224-1-454.85Типовой проект 224-1-454.85Типовой проект 224-1-454.85Типовой проект 224-1-454.85

© 2013 Ёшкин Кот :-) Карта сайта