Информационная система
«Ёшкин Кот»

Скачать базу одним архивом
Скачать обновления
История создания базы
Карта сайта

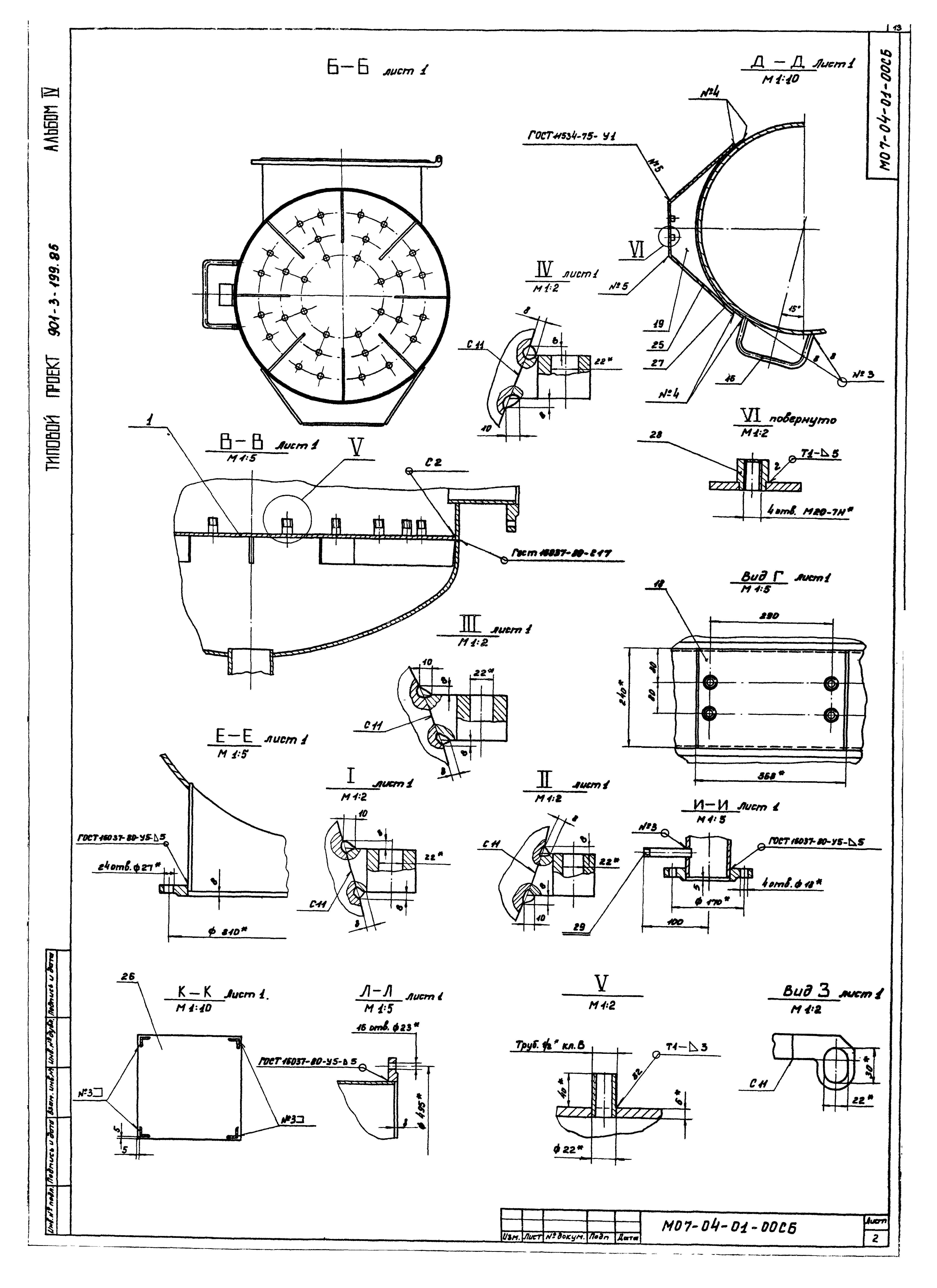
Скачать Типовой проект 901-3-225.86 Альбом IV. Нестандартизированное оборудование (из ТП 901-3-199.85)

Дата актуализации: 10.08.2017

Типовой проект 901-3-225.86

Альбом IV. Нестандартизированное оборудование (из ТП 901-3-199.85)

Обозначение: Типовой проект 901-3-225.86
Обозначение англ: 901-3-225.86
Статус:не определен законодательством
Название рус.:Альбом IV. Нестандартизированное оборудование (из ТП 901-3-199.85)
Дата добавления в базу:01.10.2014
Дата актуализации:05.05.2017
Дата введения:07.08.1986
Оглавление:Содержание
Отстойник трубчатый
Отстойник трубчатый. Сборочный чертеж
Бак
Фильтр сетчатый
Бак. Сборочный чертеж
Фильтр сетчатый. Сборочный чертеж
Фильтр
Система контроля давления и дренажа
Фильтр. Сборочный чертеж
Корпус фильтра
Опора
Корпус фильтра. Сборочный чертеж
Система контроля давления и дренажа. Сборочный чертеж
Опора. Сборочный чертеж
Бак аэраторный
Бак аэраторный. Сборочный чертеж
Бак
Бак. Сборочный чертеж
Крышка
Мешалка
Мешалка. Сборочный чертеж
Винт
Разработан: Гипрокоммунводоканал Минжилкомхоза РСФСР
Утверждён:07.08.1986 Минжилкомхоз РСФСР (Russian Federation Minzhilkomkhoz 11-ТД)
Расположен в:Техническая документация Строительство Справочные документы Типовые строительные конструкции, изделия и узлы Общероссийский строительный каталог Промышленные предприятия, здания и сооружения Здания и сооружения санитарно-технические Водоснабжение Сооружения и установки по подготовке питьевой воды Станция обезжелезивания воды
Типовой проект 901-3-225.86Типовой проект 901-3-225.86Типовой проект 901-3-225.86Типовой проект 901-3-225.86Типовой проект 901-3-225.86Типовой проект 901-3-225.86Типовой проект 901-3-225.86Типовой проект 901-3-225.86Типовой проект 901-3-225.86Типовой проект 901-3-225.86Типовой проект 901-3-225.86Типовой проект 901-3-225.86Типовой проект 901-3-225.86Типовой проект 901-3-225.86Типовой проект 901-3-225.86Типовой проект 901-3-225.86Типовой проект 901-3-225.86Типовой проект 901-3-225.86Типовой проект 901-3-225.86Типовой проект 901-3-225.86Типовой проект 901-3-225.86

© 2013 Ёшкин Кот :-) Карта сайта