Информационная система
«Ёшкин Кот»

Скачать базу одним архивом
Скачать обновления
История создания базы
Карта сайта

Скачать Типовой проект 222-1-193/75 Альбом III. Электротехнические чертежи

Дата актуализации: 10.08.2017

Типовой проект 222-1-193/75

Альбом III. Электротехнические чертежи

Обозначение: Типовой проект 222-1-193/75
Обозначение англ: 222-1-193/75
Статус:действует
Название рус.:Альбом III. Электротехнические чертежи
Дата добавления в базу:01.10.2014
Дата актуализации:05.05.2017
Оглавление:Содержание альбома
Электрооборудование
   Пояснения к проекту. Опись чертежей. Электрооборудование
   Сводная спецификация. Электрооборудование
   Расчетная схема питающих сетей. Электрооборудование
   Блок автоматического управления освещением
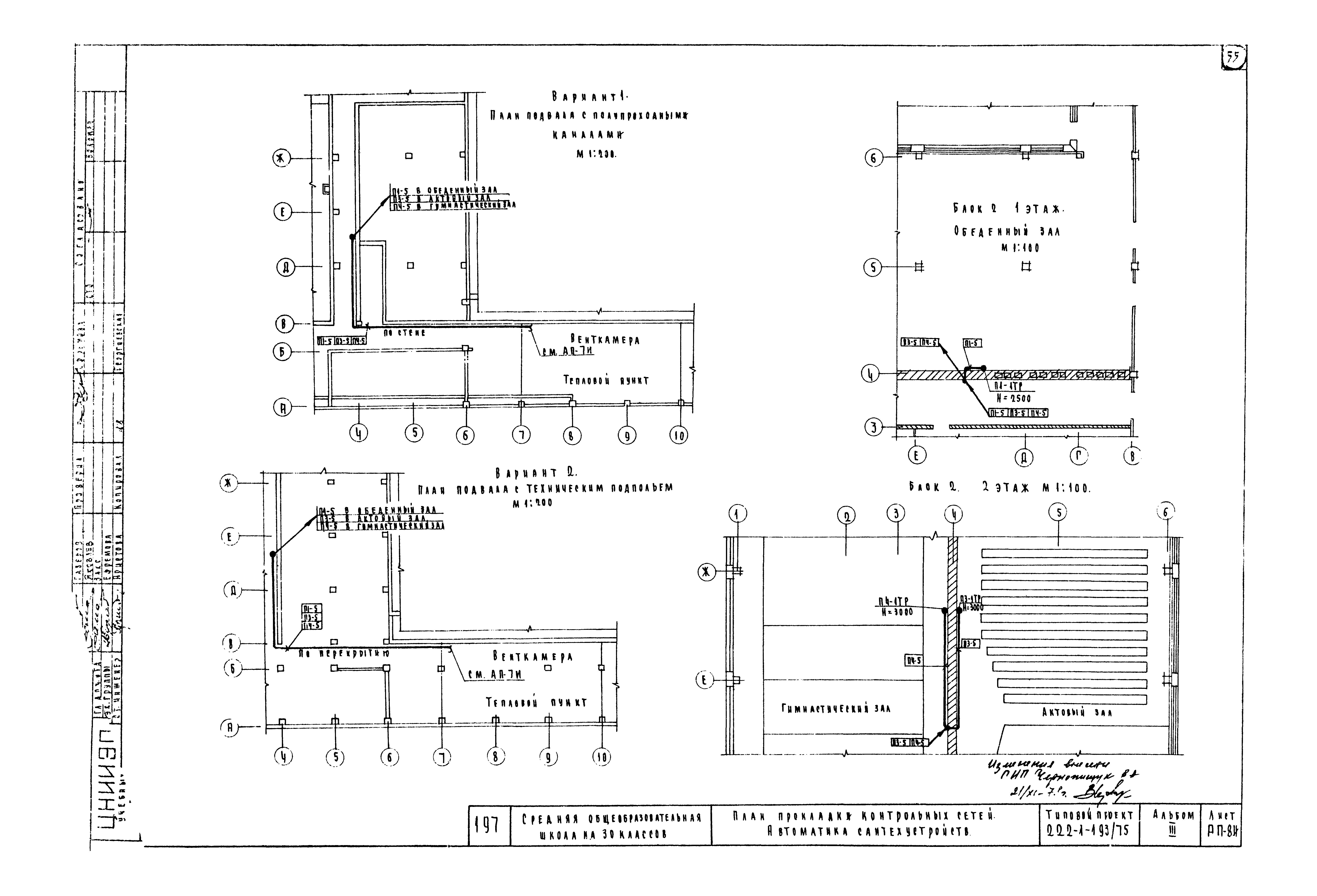
   План подвала с техническим подпольем. Электрооборудование
   План полупроходных и подпольных каналов. Электрооборудование
   Блок 1. План 1 этажа в осях 6 - 11. Узлы установки светильников освещения сцены. Вариант с люминесцентными лампами. Электрооборудование
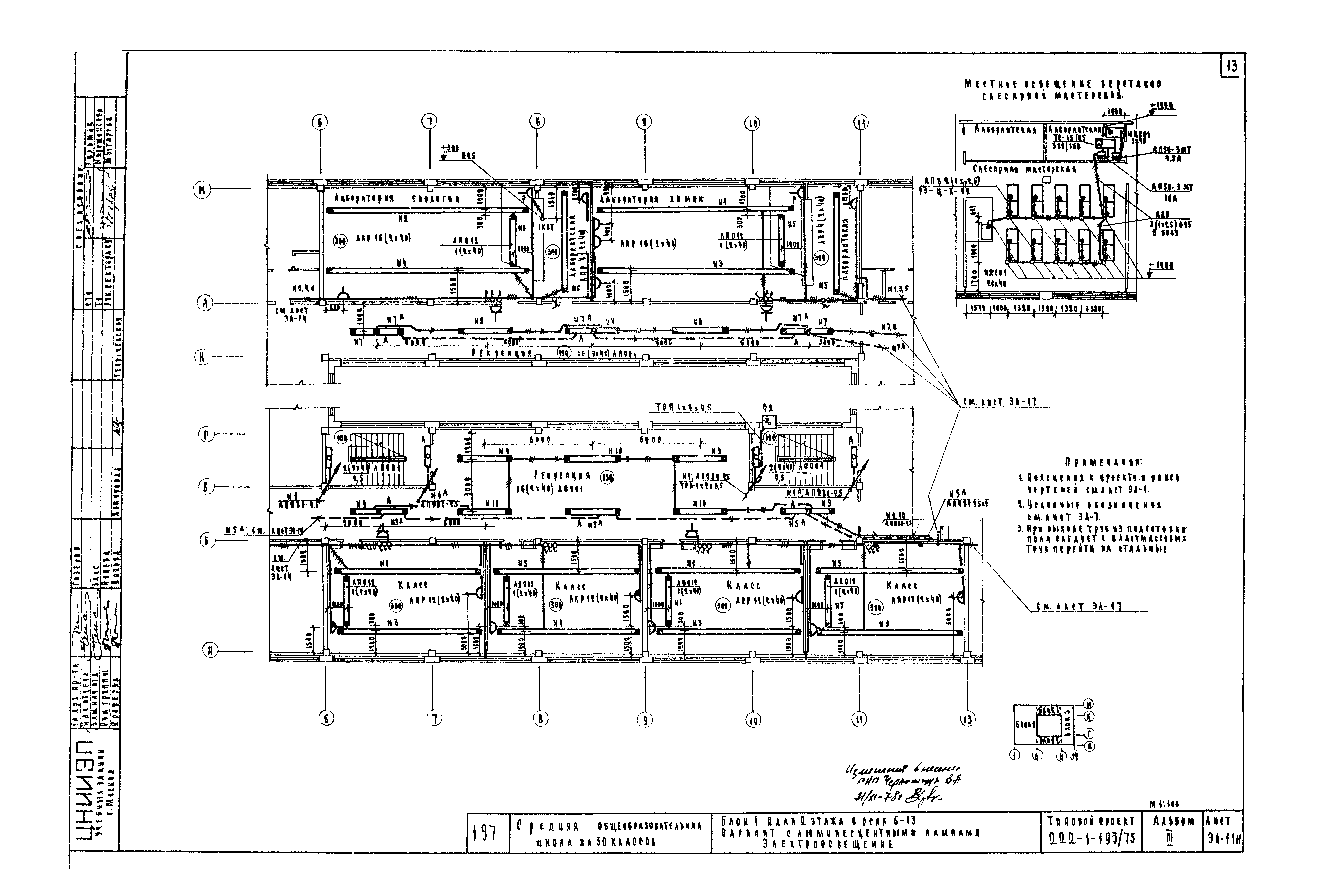
   Блок 1. План 2 этажа в осях 6 - 13. Вариант с люминесцентными лампами. Электроосвещение
   Блок 1. План 3 этажа в осях 6 - 13. Вариант с люминесцентными лампами. Электроосвещение
   Блок 2. План 1 этажа в осях 1 - 6. Вариант с люминесцентными лампами. Электроосвещение
   Блок 2. План 2 этажа в осях 1 - 6. Вариант с люминесцентными лампами. Электроосвещение
   Блок 2. План 3 этажа в осях 1 - 6. Вариант с люминесцентными лампами. Электроосвещение
   Блок 3. План 1 этажа в осях 11 - 14. Вариант с люминесцентными лампами. Электроосвещение
   Блок 3. Планы 2 и 3 этажей в осях 11 - 14. Вариант с люминесцентными лампами. Электроосвещение
   Блок 1. План 1 этажа в осях 6 - 11. Вариант с лампами накаливания. Электроосвещение
   Блок 1. План 2 этажа в осях 6 - 13. Вариант с лампами накаливания. Электроосвещение
   Блок 1. План 3 этажа в осях 6 - 13. Вариант с лампами накаливания. Электроосвещение
   Блок 2. План 1 этажа в осях 1 - 6. Вариант с лампами накаливания. Электроосвещение
   Блок 2. План 2 этажа в осях 1 - 6. Вариант с лампами накаливания. Электроосвещение
   Блок 2. План 3 этажа в осях 1 - 6. Вариант с лампами накаливания. Электроосвещение
   Блок 3. План 1 этажа в осях 11 - 14. Вариант с лампами накаливания. Электроосвещение
   Блок 3. Планы 2 и 3 этажей в осях 11 - 14. Вариант с лампами накаливания. Электроосвещение
   Расчетная схема щита освещения сцены. Схема управления освещением актового зала. Электроосвещение
   Блоки 1, 2, 3. Фрагменты 1, 2 и 3 этажей. Электрооборудование
   Блок 2. План 1 этажа в осях 1 - 6. Силовое электрооборудование
   Планы венткамеры и кровли. Силовое электрооборудование
   Таблица-схема распределительной сети. Силовое электрооборудование
   Отключение вентиляции при пожаре. Схемы принципиальная и присоединений. Кабельный журнал. Электрооборудование
   Вводно-распределительное устройство. Опросный лист. Электрооборудование
Связь и сигнализация
   Заглавный лист. Связь и сигнализация
   Схемы. Связь и сигнализация
   План подвала с техническим подпольем. Условные обозначения. Связь и сигнализация
   План подвала с полупроходными каналами. Связь и сигнализация
   Блок 2. План 1 этажа в осях 1 - 6. Связь и сигнализация
   Блок 2. План 2 этажа в осях 1 - 6. Связь и сигнализация
   Блок 2. План 3 этажа в осях 1 - 6. Связь и сигнализация
   Блок 1 и блок 3. План 1 этажа в осях 6 - 14. Связь и сигнализация
   Блок 3. План 2 и 3 этажей в осях 11 - 14. Связь и сигнализация
   Блок 1. План 2 этажа в осях 6 - 13. Связь и сигнализация
   Блок 1. План 3 этажа в осях 6 - 13. Связь и сигнализация
   Схема электропитания концентратора принципиальная. Размещение аккумуляторов в протяжном ящике. Связь и сигнализация
Автоматика
   Содержание. Пояснения к проекту. Автоматика сантехустройств
   Приточная система П-1 (П-2 - П-7). Функциональная схема автоматизации. Автоматика сантехустройств
   Приточная система П-1 (П-2 - П-7). Схемы управления принципиальные электрические. Автоматика сантехустройств
   Приточная система П-1 (П-2 - П-7). Схемы регулирования и управления принципиальные электрические. Автоматика сантехустройств
   Приточная система П- П-7. Схема дистанционного управления и сигнализации. Автоматика сантехустройств
   Приточная система П-1 (П-2 - П-7). Схема соединений. Автоматика сантехустройств
   Венткамера. План прокладки контрольных сетей. Автоматика сантехустройств
   План прокладки контрольных сетей. Автоматика сантехустройств
Разработан: ЦНИИЭП учебных зданий
Утверждён:24.11.1975 ЦНИИЭП учебных зданий (TsNIIEP of Educational Buildings 147)
Расположен в:Техническая документация Строительство Справочные документы Типовые строительные конструкции, изделия и узлы Общероссийский строительный каталог Общественные здания для строительства в сельской местности Школы и внешкольные учреждения Общеобразовательные школы
Типовой проект 222-1-193/75Типовой проект 222-1-193/75Типовой проект 222-1-193/75Типовой проект 222-1-193/75Типовой проект 222-1-193/75Типовой проект 222-1-193/75Типовой проект 222-1-193/75Типовой проект 222-1-193/75Типовой проект 222-1-193/75Типовой проект 222-1-193/75Типовой проект 222-1-193/75Типовой проект 222-1-193/75Типовой проект 222-1-193/75Типовой проект 222-1-193/75Типовой проект 222-1-193/75Типовой проект 222-1-193/75Типовой проект 222-1-193/75Типовой проект 222-1-193/75Типовой проект 222-1-193/75Типовой проект 222-1-193/75Типовой проект 222-1-193/75Типовой проект 222-1-193/75Типовой проект 222-1-193/75Типовой проект 222-1-193/75Типовой проект 222-1-193/75Типовой проект 222-1-193/75Типовой проект 222-1-193/75Типовой проект 222-1-193/75Типовой проект 222-1-193/75Типовой проект 222-1-193/75Типовой проект 222-1-193/75Типовой проект 222-1-193/75Типовой проект 222-1-193/75Типовой проект 222-1-193/75Типовой проект 222-1-193/75Типовой проект 222-1-193/75Типовой проект 222-1-193/75Типовой проект 222-1-193/75Типовой проект 222-1-193/75Типовой проект 222-1-193/75Типовой проект 222-1-193/75Типовой проект 222-1-193/75Типовой проект 222-1-193/75Типовой проект 222-1-193/75Типовой проект 222-1-193/75Типовой проект 222-1-193/75Типовой проект 222-1-193/75Типовой проект 222-1-193/75Типовой проект 222-1-193/75Типовой проект 222-1-193/75Типовой проект 222-1-193/75Типовой проект 222-1-193/75Типовой проект 222-1-193/75Типовой проект 222-1-193/75Типовой проект 222-1-193/75Типовой проект 222-1-193/75

© 2013 Ёшкин Кот :-) Карта сайта