Информационная система
«Ёшкин Кот»

Скачать базу одним архивом
Скачать обновления
История создания базы
Карта сайта

Скачать Типовой проект 221-1-384.85 Альбом IV. Электроснабжение и силовое электрооборудование. Связь и сигнализация. Автоматизация инженерного оборудования

Дата актуализации: 10.08.2017

Типовой проект 221-1-384.85

Альбом IV. Электроснабжение и силовое электрооборудование. Связь и сигнализация. Автоматизация инженерного оборудования

Обозначение: Типовой проект 221-1-384.85
Обозначение англ: 221-1-384.85
Статус:действует
Название рус.:Альбом IV. Электроснабжение и силовое электрооборудование. Связь и сигнализация. Автоматизация инженерного оборудования
Дата добавления в базу:01.09.2013
Дата актуализации:05.05.2017
Оглавление:Чертежи основного комплекта марки ЭОМ
   Общие данные
   Однолинейная расчетная схема питающих сетей. Схема автоматического отключения вентиляции при пожаре
   Расчетная схема ЩС-1, ЩС-2
   Расчетная схема ЩС-3, ЩС-4
   Расчетная схема ЩС-5, ЩС-6, ЩС-7
   Расчетная схема ЩС-8, ЩС-9, ЩС-10
   Зона А. План сетей технического подполья
   Зона Б. План сетей технического подполья
   Зона В. План сетей технического подполья
   Зона А. План осветительных и питающих сетей 1 этажа
   Зона Б. План осветительных и питающих сетей 1 этажа
   Зона В. План осветительных и питающих сетей 1 этажа
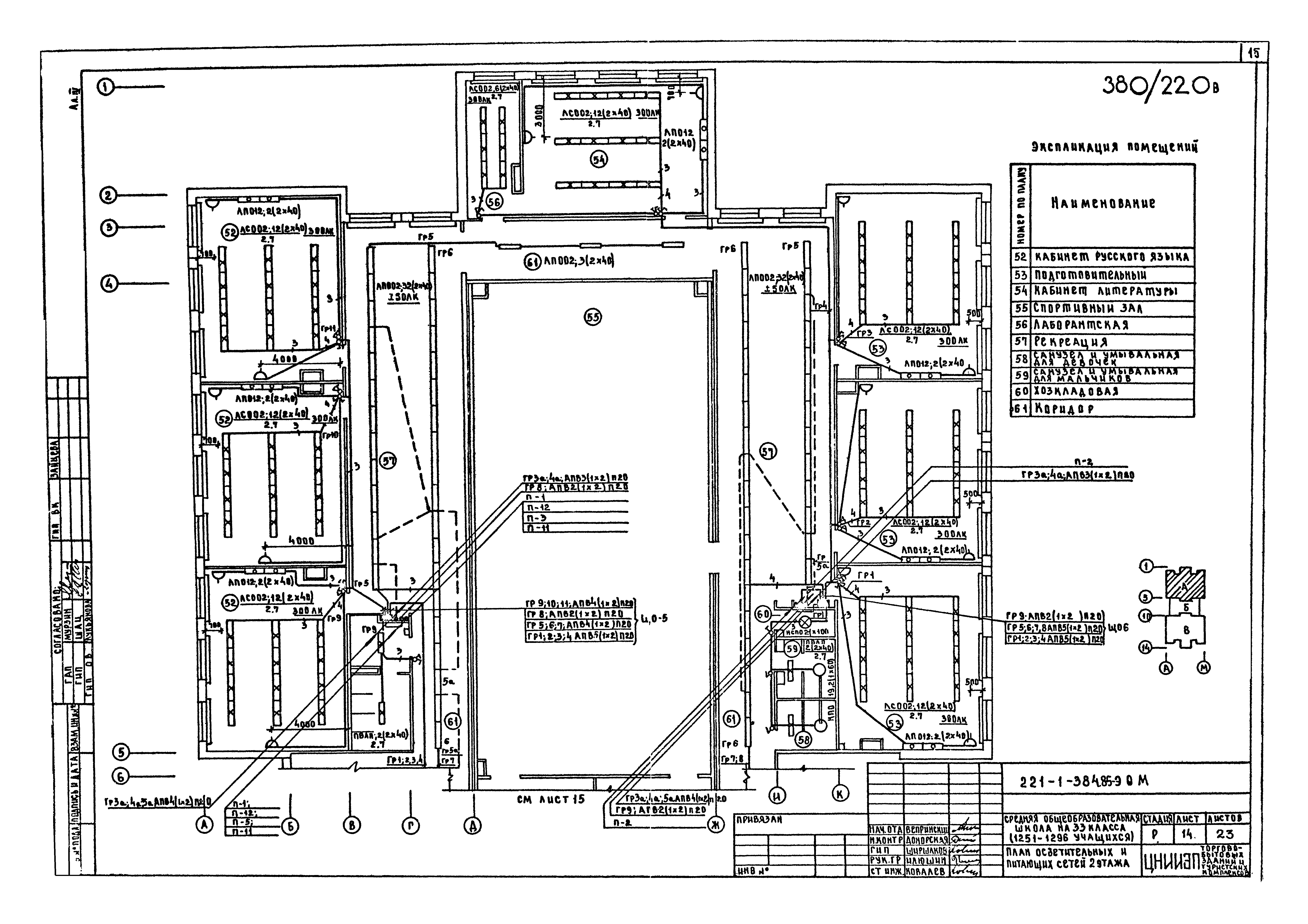
   Зона А. План осветительных и питающих сетей 2 этажа
   Зона Б. План осветительных и питающих сетей 2 этажа
   Зона В. План осветительных и питающих сетей 2 этажа
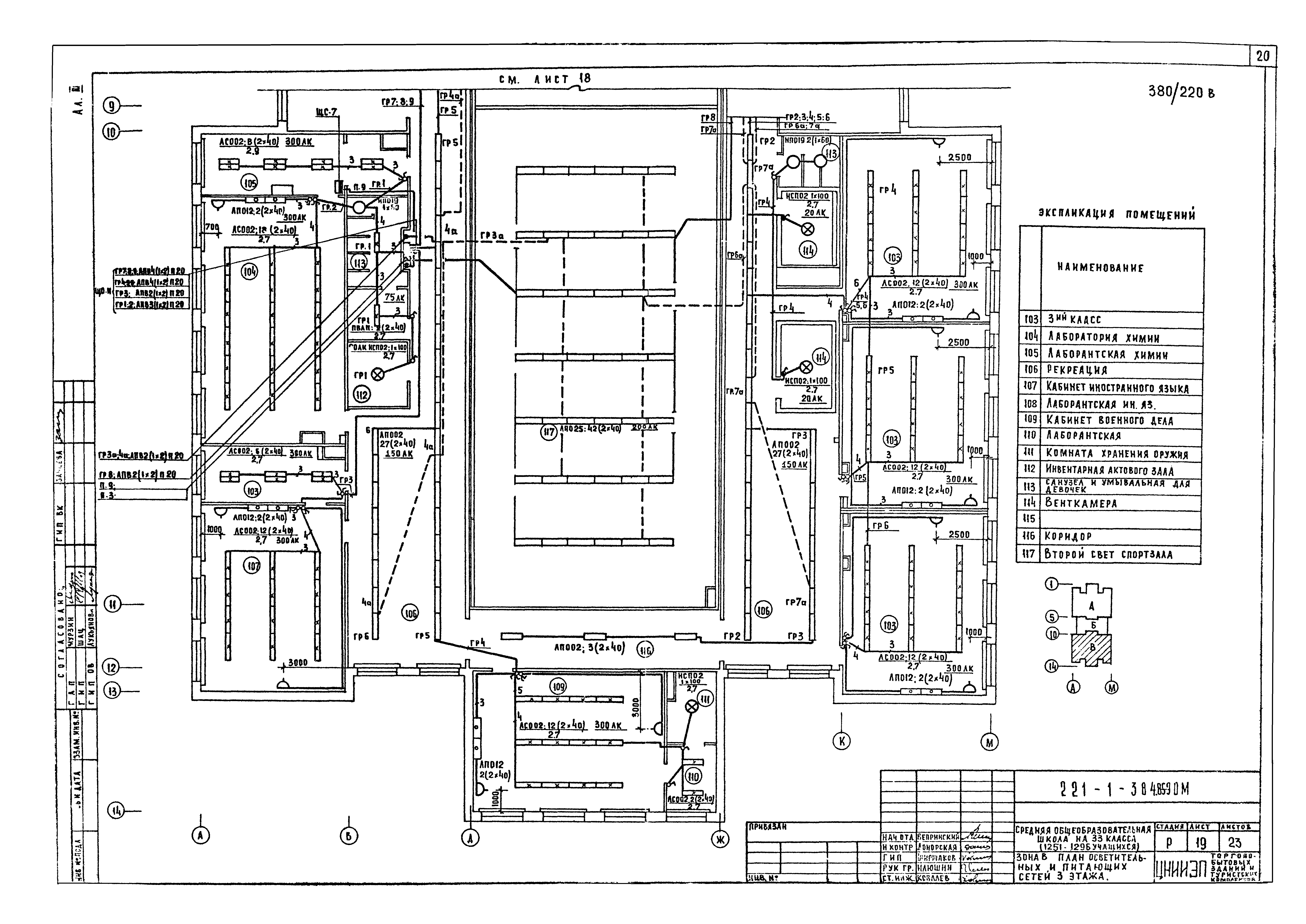
   Зона А. План осветительных и питающих сетей 3 этажа
   Зона Б. План осветительных и питающих сетей 3 этажа
   Зона В. План осветительных и питающих сетей 3 этажа
   Зона Б. План осветительных и питающих сетей 4 этажа
   Фрагменты планов силовых и питающих сетей 1, 2 и 3 этажей
   Зона В. План силовых и питающих сетей 1 этажа
   План силовых сетей на кровле и 3 этаж
   Опросный лист
Чертежи основного комплекта марки СС
   Общие данные
   Схемы
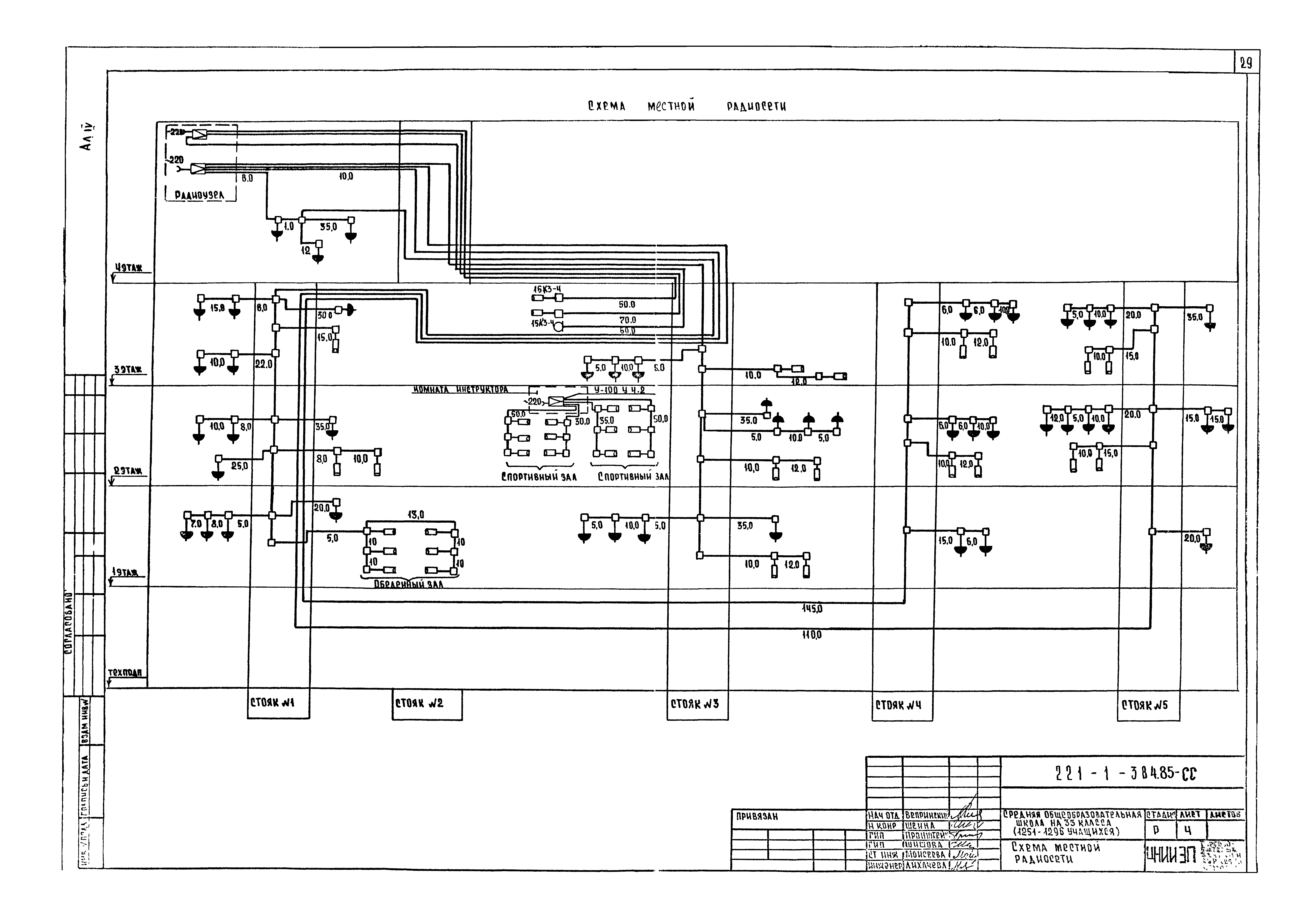
   Схема местной радиосети
   Зоны А, Б. План технического подполья
   Зона В. План технического подполья
   Зона А. План 1 этажа
   Зона Б. План 1 этажа
   Зона В. План 1 этажа
   Зона А. План 2 этажа
   Зона Б. План 2 этажа
   Зона В. План 2 этажа
   Зона А. План 3 этажа
   Зона Б. План 3 этажа
   Зона В. План 3 этажа
   Зона Б. План 4 этажа
Чертежи основного комплекта марки АУ
   Общие данные
   Приточные системы П1, П2, П9. Схема функциональная
   Приточные системы П1, П2, П9. Схема электрическая принципиальная
   Приточные системы П1, П2, П9. Схема соединений внешних проводок
   Приточные системы П3 - П8. Схема функциональная и электрическая принципиальная
   Приточные системы П3 - П8. Схема соединений внешних проводок
   Завеса У1. Схемы функциональная, электрическая принципиальная и соединений внешних проводок
   Приточные системы П1, П2, П5, П6, П8. План расположения
   Приточные системы П3, П4, П7, П9. Завеса У1. План расположения
   Приточные системы П1, П2, П9. Общий вид щита автоматизации
   Узел присоединения калориферов. Схемы функциональная и соединений внешних проводок, план расположения
   Холодильная машина Х1 для камер. Схема соединений внешних проводок
   Холодильная машина Х1 для камер. План расположения
Разработан: ЦНИИЭП торгово-бытовых зданий и туристских комплексов
Утверждён:27.11.1981 Госгражданстрой (Gosgrazhdanstroy 324)
Расположен в:Техническая документация Строительство Справочные документы Типовые строительные конструкции, изделия и узлы Общероссийский строительный каталог Общественные здания для строительства в сельской местности Школы и внешкольные учреждения Общеобразовательные школы
Типовой проект 221-1-384.85Типовой проект 221-1-384.85Типовой проект 221-1-384.85Типовой проект 221-1-384.85Типовой проект 221-1-384.85Типовой проект 221-1-384.85Типовой проект 221-1-384.85Типовой проект 221-1-384.85Типовой проект 221-1-384.85Типовой проект 221-1-384.85Типовой проект 221-1-384.85Типовой проект 221-1-384.85Типовой проект 221-1-384.85Типовой проект 221-1-384.85Типовой проект 221-1-384.85Типовой проект 221-1-384.85Типовой проект 221-1-384.85Типовой проект 221-1-384.85Типовой проект 221-1-384.85Типовой проект 221-1-384.85Типовой проект 221-1-384.85Типовой проект 221-1-384.85Типовой проект 221-1-384.85Типовой проект 221-1-384.85Типовой проект 221-1-384.85Типовой проект 221-1-384.85Типовой проект 221-1-384.85Типовой проект 221-1-384.85Типовой проект 221-1-384.85Типовой проект 221-1-384.85Типовой проект 221-1-384.85Типовой проект 221-1-384.85Типовой проект 221-1-384.85Типовой проект 221-1-384.85Типовой проект 221-1-384.85Типовой проект 221-1-384.85Типовой проект 221-1-384.85Типовой проект 221-1-384.85Типовой проект 221-1-384.85Типовой проект 221-1-384.85Типовой проект 221-1-384.85Типовой проект 221-1-384.85Типовой проект 221-1-384.85Типовой проект 221-1-384.85Типовой проект 221-1-384.85Типовой проект 221-1-384.85Типовой проект 221-1-384.85Типовой проект 221-1-384.85Типовой проект 221-1-384.85Типовой проект 221-1-384.85Типовой проект 221-1-384.85Типовой проект 221-1-384.85Типовой проект 221-1-384.85Типовой проект 221-1-384.85Типовой проект 221-1-384.85Типовой проект 221-1-384.85Типовой проект 221-1-384.85Типовой проект 221-1-384.85

© 2013 Ёшкин Кот :-) Карта сайта