Информационная система
«Ёшкин Кот»

Скачать базу одним архивом
Скачать обновления
История создания базы
Карта сайта

Скачать Типовой проект 221-1-384.85 Альбом III. Отопление и вентиляция

Дата актуализации: 10.08.2017

Типовой проект 221-1-384.85

Альбом III. Отопление и вентиляция

Обозначение: Типовой проект 221-1-384.85
Обозначение англ: 221-1-384.85
Статус:действует
Название рус.:Альбом III. Отопление и вентиляция
Дата добавления в базу:01.09.2013
Дата актуализации:05.05.2017
Оглавление:Чертежи основного комплекта марки ОВ
   Общие данные
   План технического подполья. Зона А
   План технического подполья. Зона Б
   План технического подполья. Зона В
   План 1 этажа. Зона А
   План 1 этажа. Зона Б
   План 1 этажа. Зона В
   План 2 этажа. Зона А
   План 2 этажа. Зона Б
   План 2 этажа. Зона В
   План 3 этажа. Зона А
   План 3 этажа. Зона Б
   План 3 этажа. Зона В
   План 4 этажа. Зона Б
   Установка систем П1, П2, П3, П6, П8
   Спецификация установок отопительно-вентиляционных систем П1, П2, П5, П6, П8
   Установка систем П3, П4, П7, П9
   Спецификация установок отопительно-вентиляционных систем П3, П4, П7, П9
   Установка системы У1
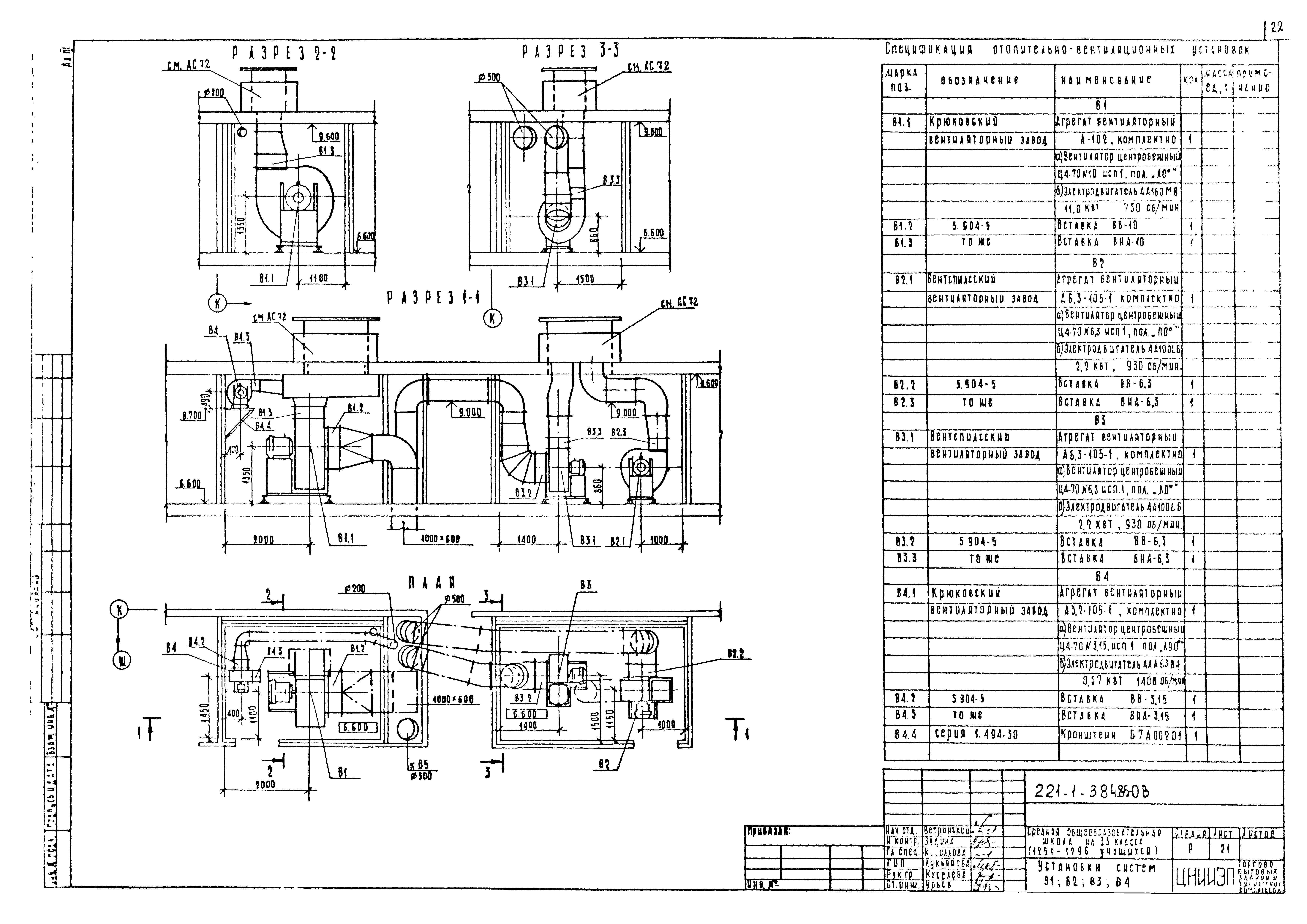
   Установка систем В1, В2, В3, В4
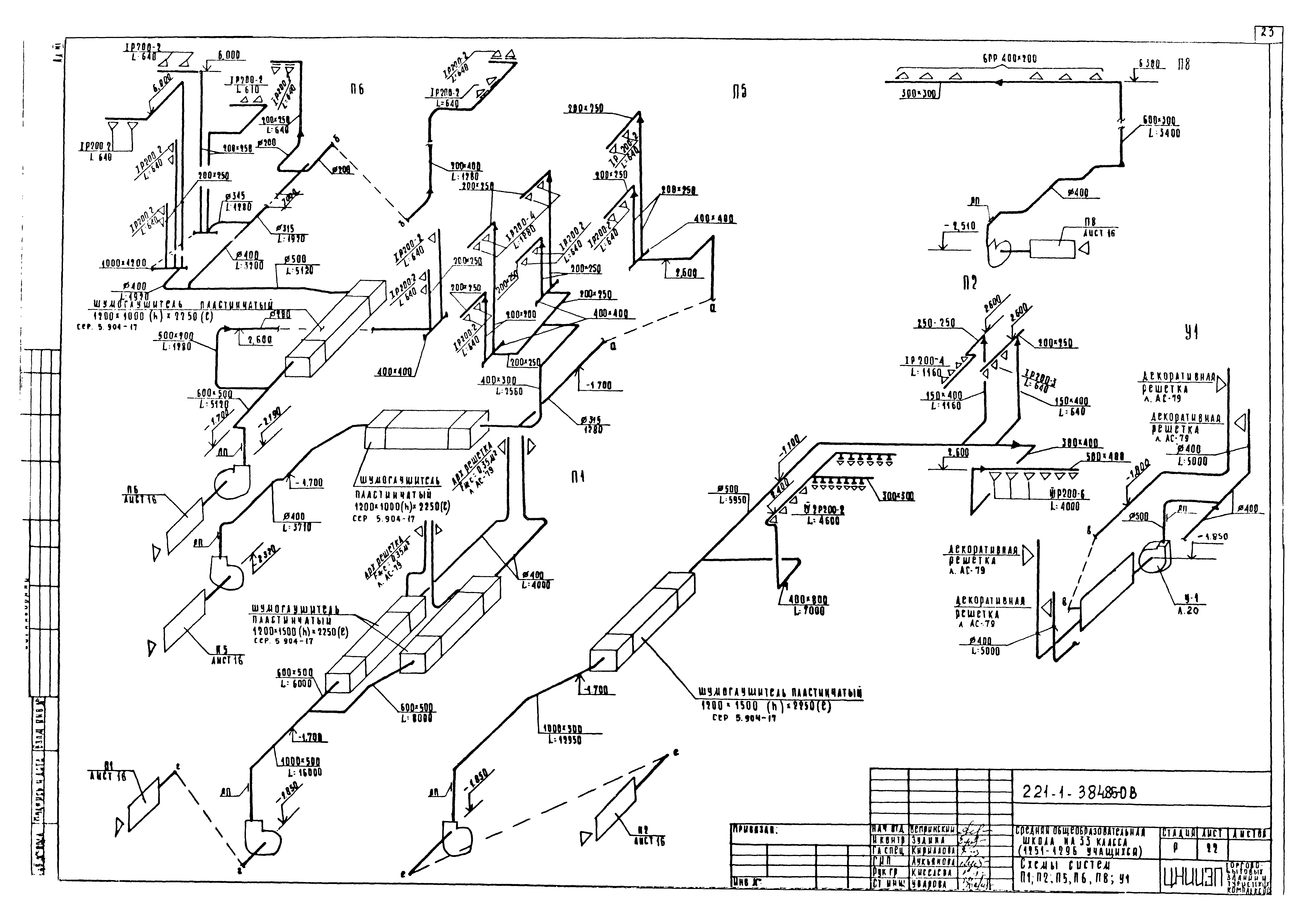
   Схемы систем П1, П2, П5, П6, П8, У1
   Схемы систем П3, П4, П7, П9
   Схемы систем В1, В2, В3, В4, ВЕ6, ВЕ7, ВЕ10, ВЕ11
   Схемы систем В5, В6, В8, В11, В13, В14
   Схема системы отопления №1
   Схема системы отопления №2
   Схема системы отопления №3
   Схема систем теплоснабжения установок П1 - П9, У1
Чертежи основного комплекта марки ОВН
   Ведомость чертежей
   Секция переходная установки системы У1
   Тепловая изоляция трубопроводов
   Тепловая изоляция воздуховодов
Разработан: ЦНИИЭП торгово-бытовых зданий и туристских комплексов
Утверждён:27.11.1981 Госгражданстрой (Gosgrazhdanstroy 324)
Расположен в:Техническая документация Строительство Справочные документы Типовые строительные конструкции, изделия и узлы Общероссийский строительный каталог Общественные здания для строительства в сельской местности Школы и внешкольные учреждения Общеобразовательные школы
Типовой проект 221-1-384.85Типовой проект 221-1-384.85Типовой проект 221-1-384.85Типовой проект 221-1-384.85Типовой проект 221-1-384.85Типовой проект 221-1-384.85Типовой проект 221-1-384.85Типовой проект 221-1-384.85Типовой проект 221-1-384.85Типовой проект 221-1-384.85Типовой проект 221-1-384.85Типовой проект 221-1-384.85Типовой проект 221-1-384.85Типовой проект 221-1-384.85Типовой проект 221-1-384.85Типовой проект 221-1-384.85Типовой проект 221-1-384.85Типовой проект 221-1-384.85Типовой проект 221-1-384.85Типовой проект 221-1-384.85Типовой проект 221-1-384.85Типовой проект 221-1-384.85Типовой проект 221-1-384.85Типовой проект 221-1-384.85Типовой проект 221-1-384.85Типовой проект 221-1-384.85Типовой проект 221-1-384.85Типовой проект 221-1-384.85Типовой проект 221-1-384.85Типовой проект 221-1-384.85Типовой проект 221-1-384.85Типовой проект 221-1-384.85Типовой проект 221-1-384.85Типовой проект 221-1-384.85

© 2013 Ёшкин Кот :-) Карта сайта