Информационная система
«Ёшкин Кот»

Скачать базу одним архивом
Скачать обновления
История создания базы
Карта сайта

Скачать Типовой проект 221-1-384.85 Альбом I. Архитектурно-строительные решения

Дата актуализации: 10.08.2017

Типовой проект 221-1-384.85

Альбом I. Архитектурно-строительные решения

Обозначение: Типовой проект 221-1-384.85
Обозначение англ: 221-1-384.85
Статус:действует
Название рус.:Альбом I. Архитектурно-строительные решения
Дата добавления в базу:01.09.2013
Дата актуализации:05.05.2017
Оглавление:Общие данные
Схема генерального плана
Схемы нагрузок на элементы фундаментов
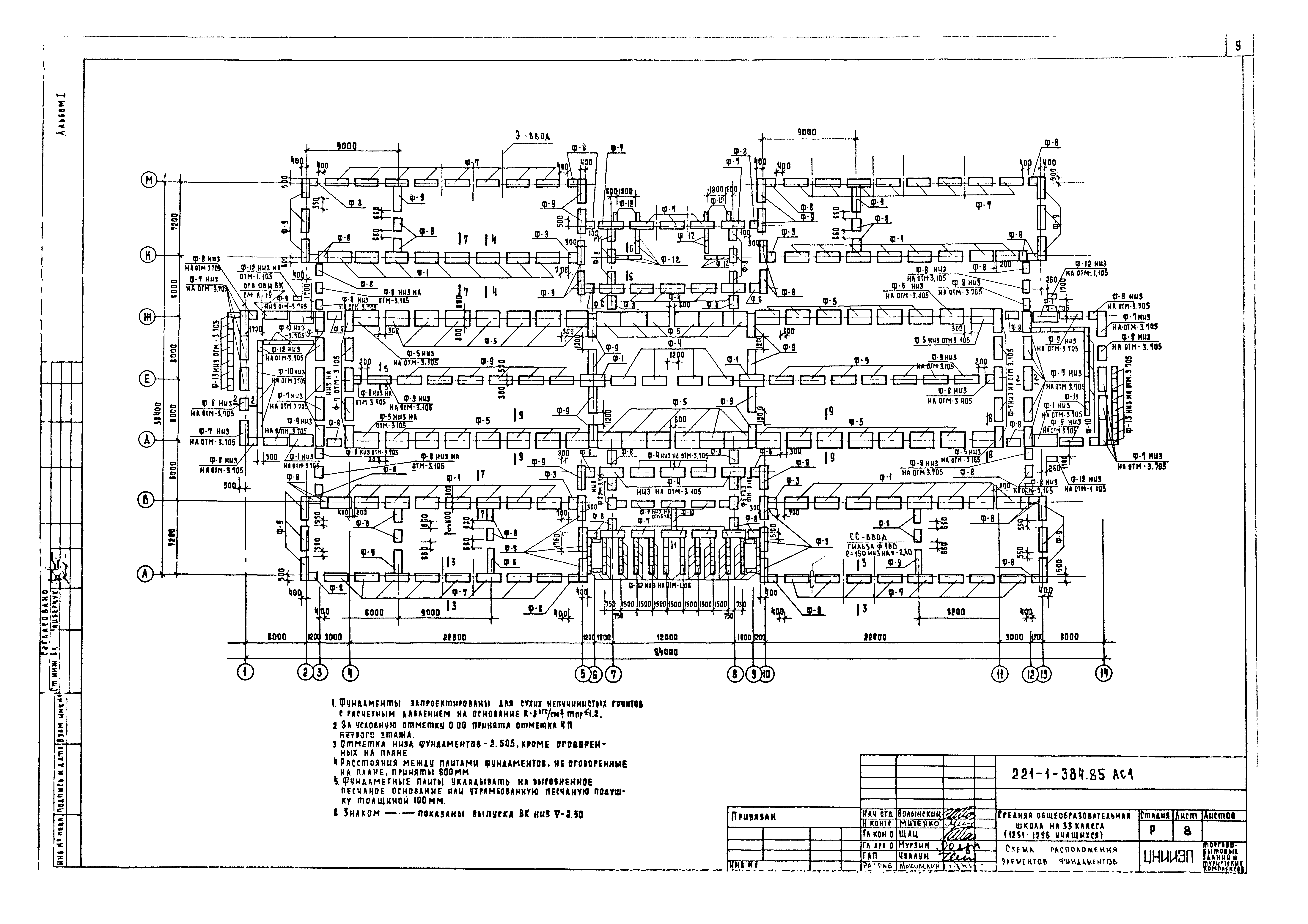
Схема расположения элементов фундаментов
Сечения и развертки к схеме расположения элементов фундаментов
Зона А. План технического подполья
Зона Б. План технического подполья. Планы подвала в осях 1 - 3 и 12 - 14
Зона В. План технического подполья
Спецификация к схемам расположения панелей стен технического подполья и перекрытий на отм. - 0.080
Схема расположения панелей наружных и внутренних стен технического подполья
Зона А. Схема расположения элементов перекрытия на отм. - 0.080
Схема расположения элементов перекрытия на отм. - 0.080. Зоны Б и В в осях 1 - 3; 12 - 14
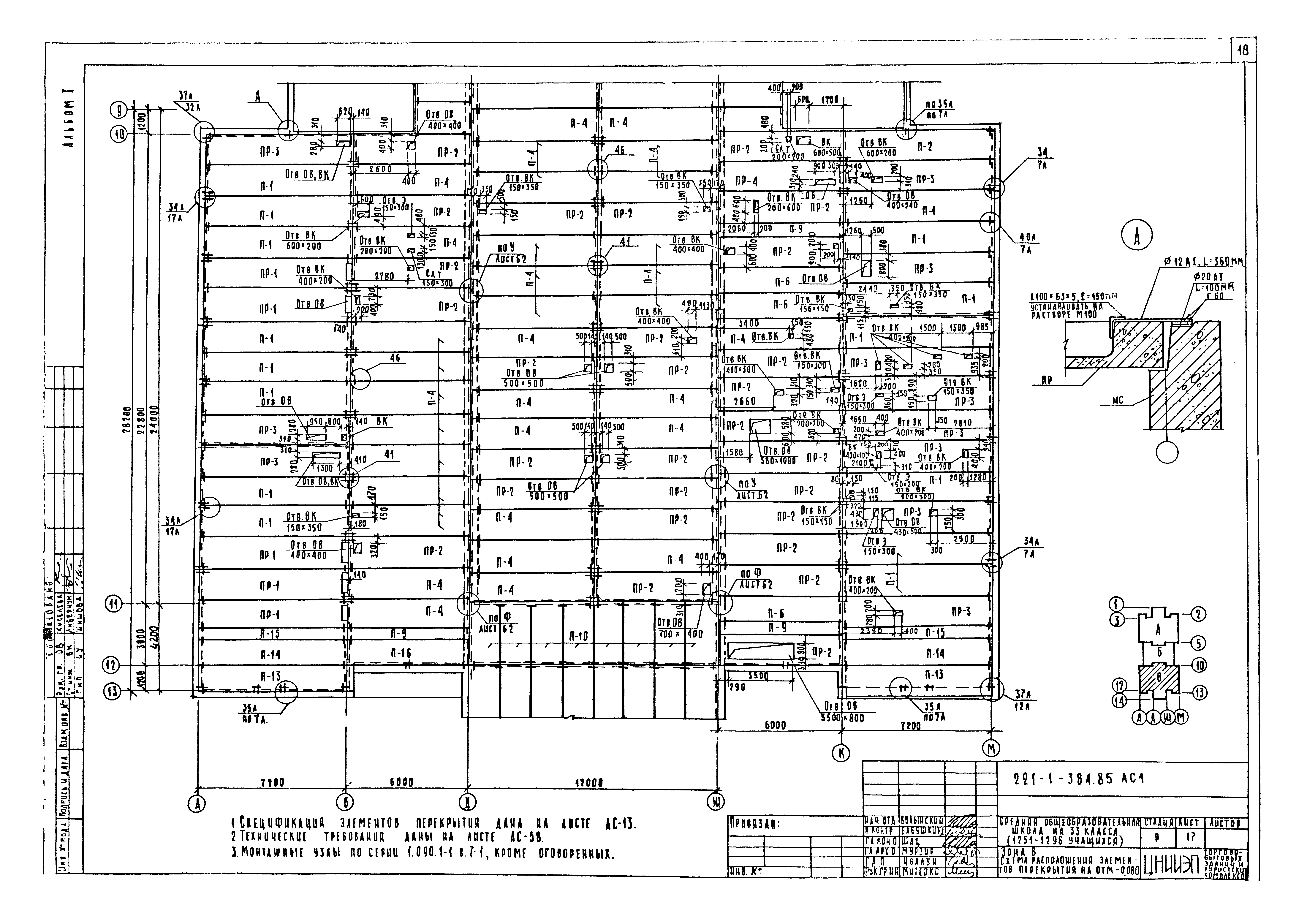
Зона В. Схема расположения элементов перекрытия на отм. - 0.080
Схемы расположения элементов входов №1 - №4. Главный вход
Схемы расположения элементов входов №5 - №7
Приточные венткамеры. Развертки стен по осям 3, 4, 12, Ж, Д
Фасады
Вариант отделки фасадов. Фрагмент монтажной схемы фасадов в осях 5 - 7; 8 - 10
Спецификация элементов планов. Спецификация перегородок
Зона А. План 1 этажа
Зона Б. План 1 этажа
Зона В. План 1 этажа
Зона А. План 2 этажа
Зона Б. План 2 этажа
Зона В. План 2 этажа
Зона А. План 3 этажа
Зона Б. План 3 этажа
Зона В. План 3 этажа
Зона Б. План 4 этажа
Планы 1, 2 и 3 этажей в осях 1 - 3 и 12 - 14
Фрагменты планов санузлов
Разрез 1-1
Разрез 2-2. Подвесной потолок в гардеробе
Разрез 3-3
Спецификация к схемам расположения наружных стеновых панелей
Спецификация к схемам расположения внутренних и парапетных стеновых панелей
Схема расположения панелей и внутренних стен и перегородок 1 этажа
Схема расположения панелей наружных и внутренних стен и перегородок 2 этажа
Схема расположения панелей наружных и внутренних стен и перегородок 3 этажа
Схема расположения панелей наружных и внутренних стен и перегородок 4 этажа и парапетных панелей зоны А и В
Фрагменты схем расположения перегородок
Развертки внутренних стен по осям 4 - 11; Е, Д со стороны оси Е, Ж со стороны оси Е
Развертки внутренних стен по осям В, Г, И, К, 3, 12, Д со стороны оси В, Ж со стороны оси К, стен жесткости
Спецификация к схемам расположения элементов перекрытия
Зона А. Схема расположения элементов перекрытия на отм. 3.220
Зона Б. Схема расположения элементов перекрытия на отм. 3.220
Зона В. Схема расположения элементов перекрытия на отм. 3.220
Зона А. Схема расположения элементов перекрытия на отм. 6.520
Зона Б. Схема расположения элементов перекрытия на отм. 6.520
Зона В. Схема расположения элементов перекрытия на отм. 6.520
Зона А. Схема расположения элементов покрытия на отм. 9.820
Зона Б. Схема расположения элементов покрытия на отм. 9.820
Зона В. Схема расположения элементов покрытия на отм. 9.820
Зона Б. Схема покрытия на отм. 13.120
Перекрытия на отм. 3.220; 6.220; 9.820 в осях 1 - 3; 12 - 14
Узлы А - Г; Е; М; Н; П - С
Узлы Д; Ж; И; К; Л; Т
Узлы У; Ф; Ш
Узел Ц
План кровли
Охлаждаемые камеры
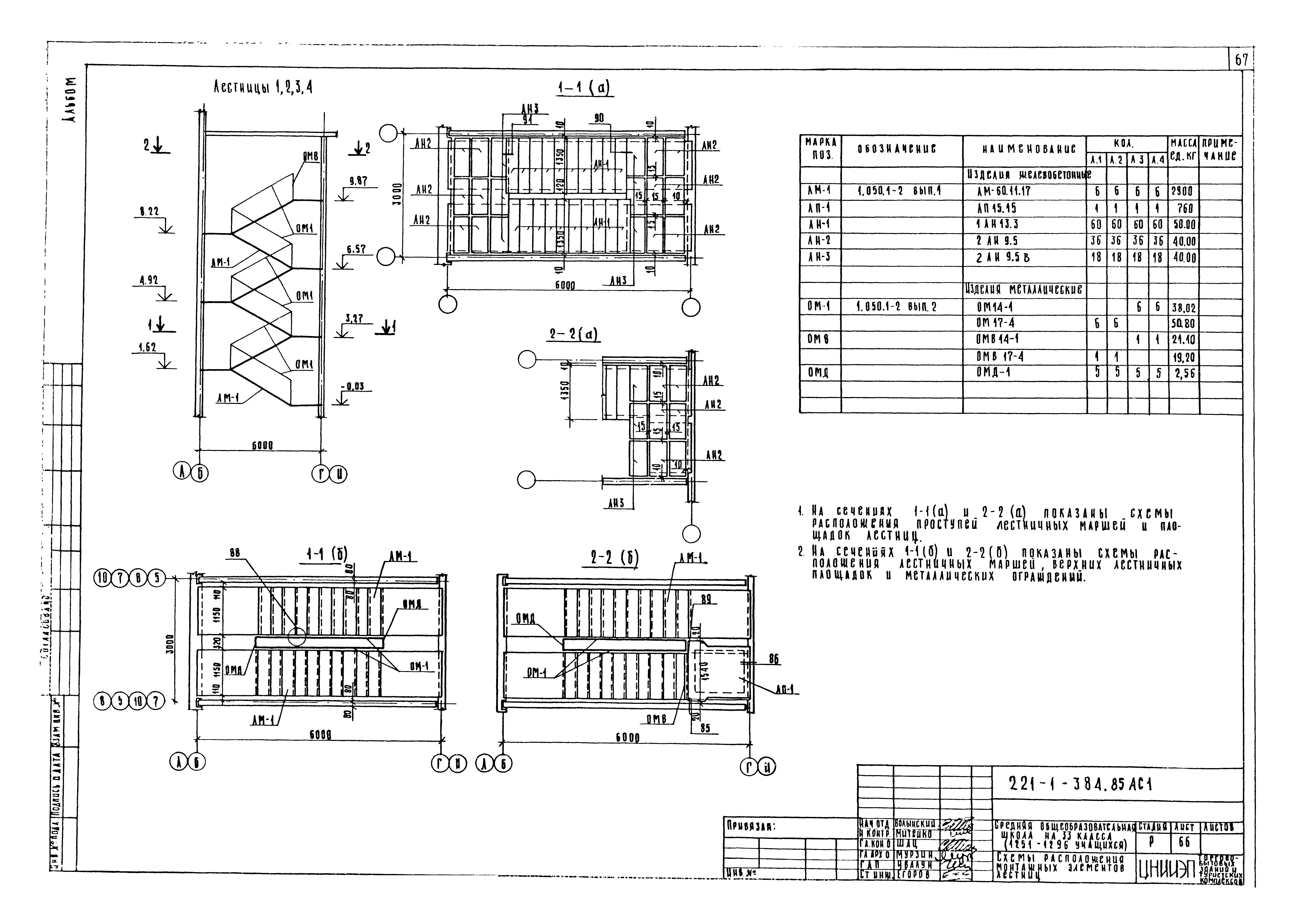
Схема расположения контактных элементов лестниц
Главный вход
Входы №1 и №2
Входы №3 и №4
Подшивные потолки в тамбурах главного входа и входах №1, №2
Вентшахты ВШ-1 - ВШ-4
Пример установки вентиляционных каналов вентшахты ВШ-5 - ВШ-7
Установка остекленных перегородок типов А, Б, В
Подвесной потолок на отм. 8.950. Узлы изоляции венткамеры 3 этажа, ИЭС-1
Эстрада
Конструктивные элементы эстрады
Ниши Э и СС. Карниз. Декоративный короб ДКЭ
Развертки стен актового зала. План подвески светильников
Развертки стен спортивного зала. Привязка креплений спортивного оборудования
Развертка стен обеденного зала и умывальной
Декоративная стенка. Стол туалетный СТ-1
Развертки стен вестибюля. Узлы крепления вешалок
Развертки стен вестибюля. Установка витрины
Разработан: ЦНИИЭП торгово-бытовых зданий и туристских комплексов
Утверждён:27.11.1981 Госгражданстрой (Gosgrazhdanstroy 324)
Расположен в:Техническая документация Строительство Справочные документы Типовые строительные конструкции, изделия и узлы Общероссийский строительный каталог Общественные здания для строительства в сельской местности Школы и внешкольные учреждения Общеобразовательные школы
Типовой проект 221-1-384.85Типовой проект 221-1-384.85Типовой проект 221-1-384.85Типовой проект 221-1-384.85Типовой проект 221-1-384.85Типовой проект 221-1-384.85Типовой проект 221-1-384.85Типовой проект 221-1-384.85Типовой проект 221-1-384.85Типовой проект 221-1-384.85Типовой проект 221-1-384.85Типовой проект 221-1-384.85Типовой проект 221-1-384.85Типовой проект 221-1-384.85Типовой проект 221-1-384.85Типовой проект 221-1-384.85Типовой проект 221-1-384.85Типовой проект 221-1-384.85Типовой проект 221-1-384.85Типовой проект 221-1-384.85Типовой проект 221-1-384.85Типовой проект 221-1-384.85Типовой проект 221-1-384.85Типовой проект 221-1-384.85Типовой проект 221-1-384.85Типовой проект 221-1-384.85Типовой проект 221-1-384.85Типовой проект 221-1-384.85Типовой проект 221-1-384.85Типовой проект 221-1-384.85Типовой проект 221-1-384.85Типовой проект 221-1-384.85Типовой проект 221-1-384.85Типовой проект 221-1-384.85Типовой проект 221-1-384.85Типовой проект 221-1-384.85Типовой проект 221-1-384.85Типовой проект 221-1-384.85Типовой проект 221-1-384.85Типовой проект 221-1-384.85Типовой проект 221-1-384.85Типовой проект 221-1-384.85Типовой проект 221-1-384.85Типовой проект 221-1-384.85Типовой проект 221-1-384.85Типовой проект 221-1-384.85Типовой проект 221-1-384.85Типовой проект 221-1-384.85Типовой проект 221-1-384.85Типовой проект 221-1-384.85Типовой проект 221-1-384.85Типовой проект 221-1-384.85Типовой проект 221-1-384.85Типовой проект 221-1-384.85Типовой проект 221-1-384.85Типовой проект 221-1-384.85Типовой проект 221-1-384.85Типовой проект 221-1-384.85Типовой проект 221-1-384.85Типовой проект 221-1-384.85Типовой проект 221-1-384.85Типовой проект 221-1-384.85Типовой проект 221-1-384.85Типовой проект 221-1-384.85Типовой проект 221-1-384.85Типовой проект 221-1-384.85Типовой проект 221-1-384.85Типовой проект 221-1-384.85Типовой проект 221-1-384.85Типовой проект 221-1-384.85Типовой проект 221-1-384.85Типовой проект 221-1-384.85Типовой проект 221-1-384.85Типовой проект 221-1-384.85Типовой проект 221-1-384.85Типовой проект 221-1-384.85Типовой проект 221-1-384.85Типовой проект 221-1-384.85Типовой проект 221-1-384.85Типовой проект 221-1-384.85Типовой проект 221-1-384.85Типовой проект 221-1-384.85Типовой проект 221-1-384.85Типовой проект 221-1-384.85Типовой проект 221-1-384.85Типовой проект 221-1-384.85

© 2013 Ёшкин Кот :-) Карта сайта