Информационная система
«Ёшкин Кот»

Скачать базу одним архивом
Скачать обновления
История создания базы
Карта сайта

Скачать Типовой проект 125-04/1.2 АС.0. Общие архитектурно-строительные решения

Дата актуализации: 10.08.2017

Типовой проект 125-04/1.2

АС.0. Общие архитектурно-строительные решения

Обозначение: Типовой проект 125-04/1.2
Обозначение англ: 125-04/1.2
Статус:не определен законодательством
Название рус.:АС.0. Общие архитектурно-строительные решения
Дата добавления в базу:01.09.2013
Дата актуализации:05.05.2017
Дата введения:01.09.1983
Оглавление:Общие данные
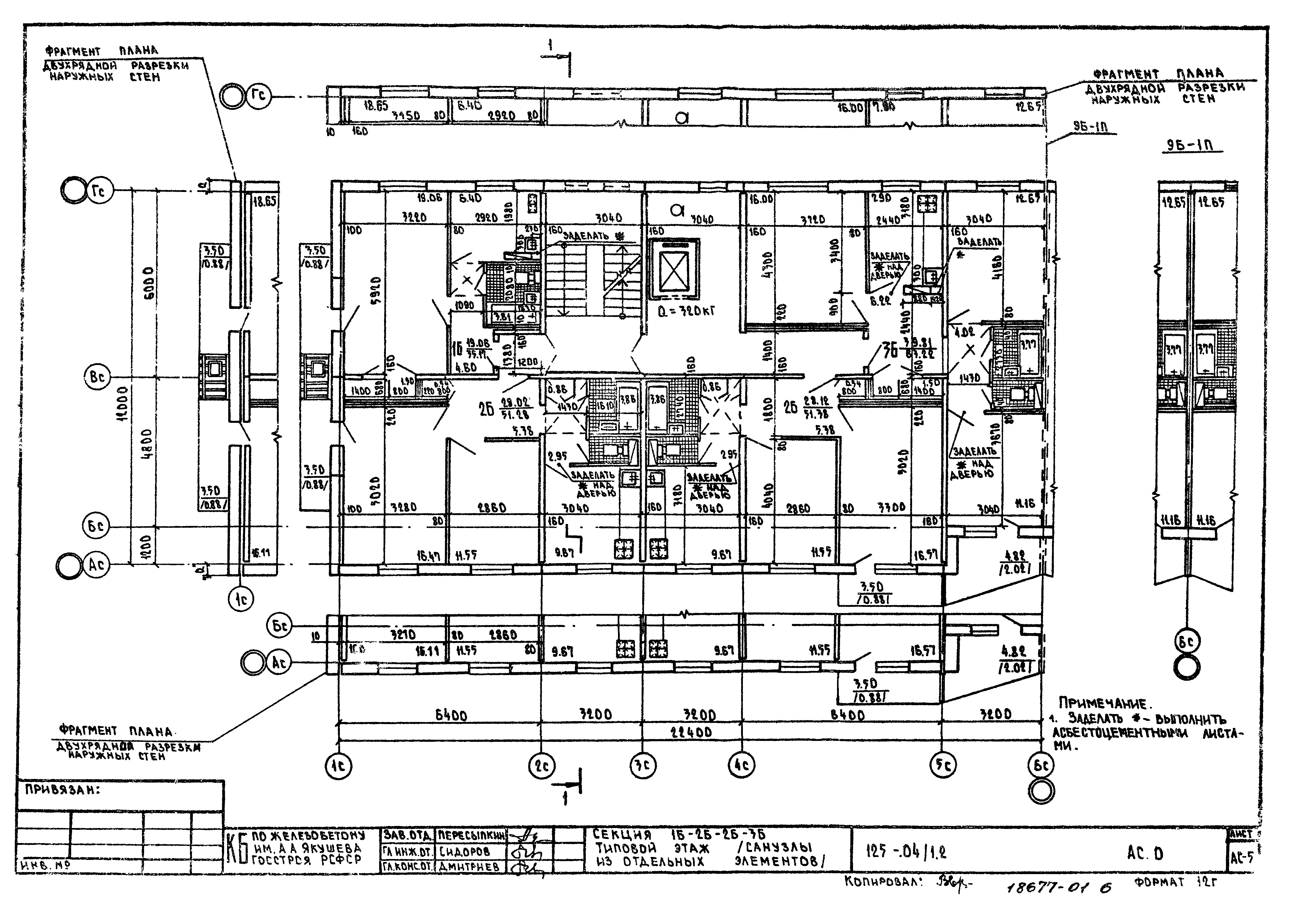
Секция 1Б-2Б-2Б-3Б, типовой этаж (санузлы из отдельных элементов)
Секция 1Б-2Б-2Б-3Б, первый этаж (санузлы из отдельных элементов)
Секция 1Б-2Б-2Б-3Б, типовой этаж (санузлы объемные)
Фрагмент плана первого этажа (вариант 2)
Схемы фасадов 1с - 6с; 6с - 1с (основное решение)
Фрагменты и схемы фасадов 1с - 6с; 6с - 1с (вариант 1 и 2)
Фрагменты и схемы фасадов Гс - Ас (основное решение, вариант 1 и 2)
Варианты блокировок блок-секций
Деталь фасада в осях 5с - 7с
Деталь фасада (торец)
Фрагмент фасада. Вход с двойным тамбуром
Фрагмент фасада. Вход с одинарным тамбуром
Ведомость отделки помещений. Ведомость отделки фасадов
Варианты фасадов, конструктивных решений и инженерного оборудования
Варианты фасадов, конструктивных решений и инженерного оборудования. Объемно-планировочные показатели
Разработан: КБ по железобетону им. А.А. Якушева
Утверждён:01.09.1983 Госстрой РСФСР (Russian Federation Gosstroy )
Расположен в:Техническая документация Строительство Справочные документы Типовые строительные конструкции, изделия и узлы Общероссийский строительный каталог Жилые здания для строительства в городах и поселках городского типа Обычные условия Жилые дома панельные Серия 125
Типовой проект 125-04/1.2Типовой проект 125-04/1.2Типовой проект 125-04/1.2Типовой проект 125-04/1.2Типовой проект 125-04/1.2Типовой проект 125-04/1.2Типовой проект 125-04/1.2Типовой проект 125-04/1.2Типовой проект 125-04/1.2Типовой проект 125-04/1.2Типовой проект 125-04/1.2Типовой проект 125-04/1.2Типовой проект 125-04/1.2Типовой проект 125-04/1.2Типовой проект 125-04/1.2Типовой проект 125-04/1.2Типовой проект 125-04/1.2Типовой проект 125-04/1.2Типовой проект 125-04/1.2Типовой проект 125-04/1.2Типовой проект 125-04/1.2

© 2013 Ёшкин Кот :-) Карта сайта