Скачать Типовые проектные решения 0407-1-010.87 Альбом I. Пояснительная записка. Архитектурно-строительные решения. Отопление и вентиляция. Водопровод и канализация. Электротехническая часть. Тепломеханическая часть. Ведомости потребности в материалахДата актуализации: 10.08.2017 Типовые проектные решения 0407-1-010.87
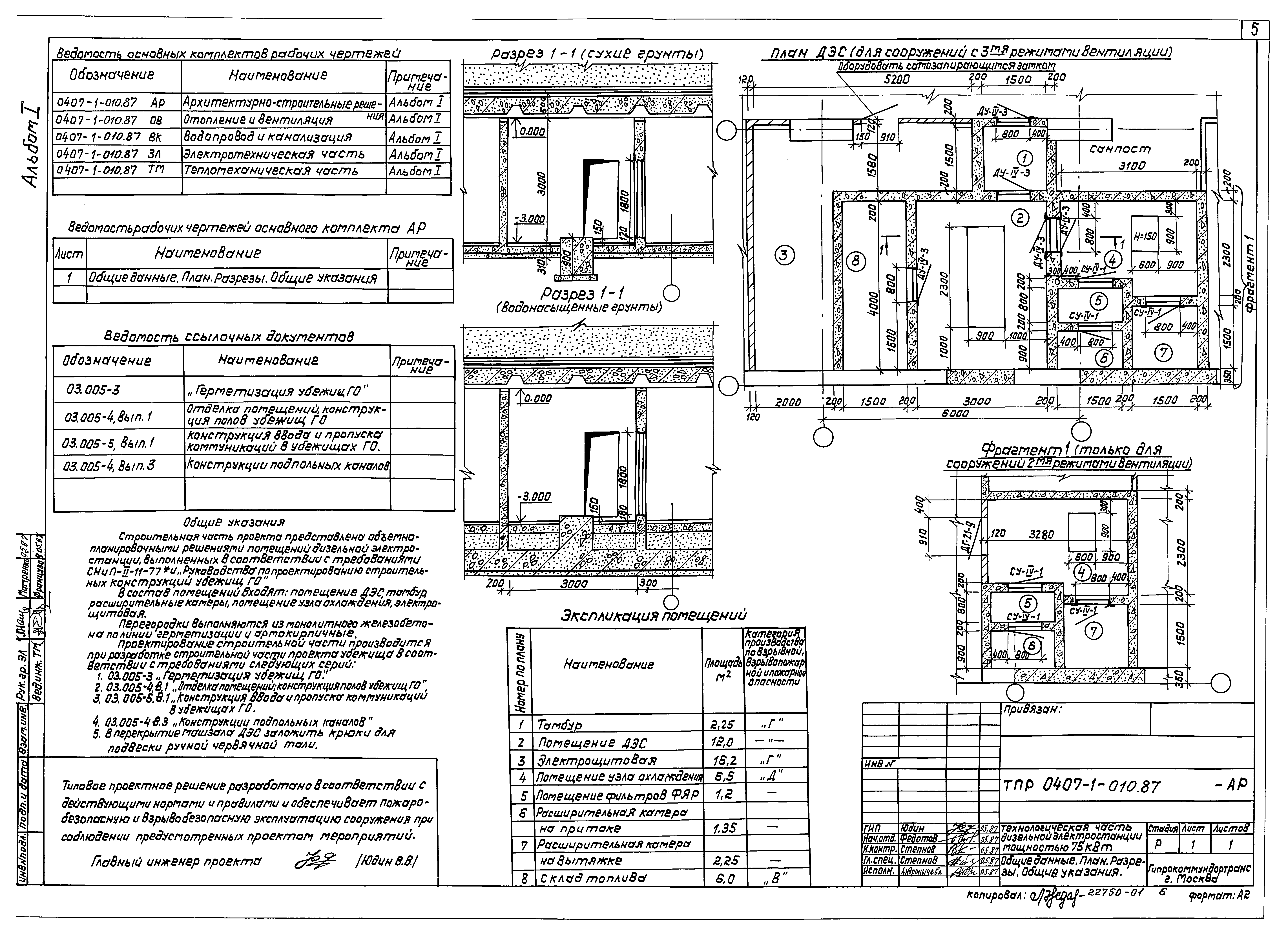
Альбом I. Пояснительная записка. Архитектурно-строительные решения. Отопление и вентиляция. Водопровод и канализация. Электротехническая часть. Тепломеханическая часть. Ведомости потребности в материалахОбозначение: | Типовые проектные решения 0407-1-010.87 | Обозначение англ: | 0407-1-010.87 | Статус: | cправочные материалы, мп, тпр | Название рус.: | Альбом I. Пояснительная записка. Архитектурно-строительные решения. Отопление и вентиляция. Водопровод и канализация. Электротехническая часть. Тепломеханическая часть. Ведомости потребности в материалах | Дата добавления в базу: | 01.09.2013 | Дата актуализации: | 05.05.2017 | Дата введения: | 25.08.1987 | Оглавление: | Содержание Пояснительная записка Чертежи основного комплекта марки АР Общие данные. План. Разрезы. Общие указания Чертежи основного комплекта марки ОВ Общие данные. Варианты 1, 2 Общие данные. Принципиальная схема вентиляции. Вариант 1 Общие данные. Принципиальная схема вентиляции. Вариант 2 План, разрез, спецификация вентустановок. Вариант 1 План, разрез, спецификация вентустановок. Вариант 2 Схемы вентсистем. Варианты 1, 2 Коробка размером 780х503х650 h Шибер для вентилятора Коробка для крепления 4-х фильтров ФЯР Установка эжектора Чертежи основного комплекта марки ВК Общие данные Вариант №1. План, разрезы 1-1, 2-2. Расчетная и аксонометрическая схемы системы охлаждения Чертежи основного комплекта марки ЭЛ Общие данные План силового электрооборудования и раскладки кабеля к дизель генератору Принципиальная однолинейная схема питающей сети Кабельный журнал Спецификация основного оборудования ДЭС и схема подключения Система В1. Схема электрическая принципиальная Система В1. Схема внешних проводок План осветительного электрооборудования Схема включения осветительных щитов Чертежи основного комплекта марки ТМ Общие данные Дизельная электростанция мощностью 75 кВт. Размещение оборудования. План. Разрезы Вариант 1. Принципиальная схема систем ДЭС Вариант 1. Разводка трубопроводов систем ДЭС Вариант 1. Монтажный чертеж узла охлаждения Вариант 2. Принципиальная схема систем ДЭС Вариант 2. Разводка трубопроводов систем ДЭС Вариант 2. Монтажный чертеж узла охлаждения Стеллаж на 4 аккумуляторные батареи Ведомости потребности в материалах | Разработан: | Гипрокоммундортранс
| Утверждён: | 31.07.1987 Штаб гражданской обороны СССР (USSR Civil Defense Headquarters 25)
| Расположен в: |
|
                                   
|