Скачать Типовые материалы для проектирования 407-03-465.87 Альбом I. Пояснительная записка, схемыДата актуализации: 10.08.2017 Типовые материалы для проектирования 407-03-465.87
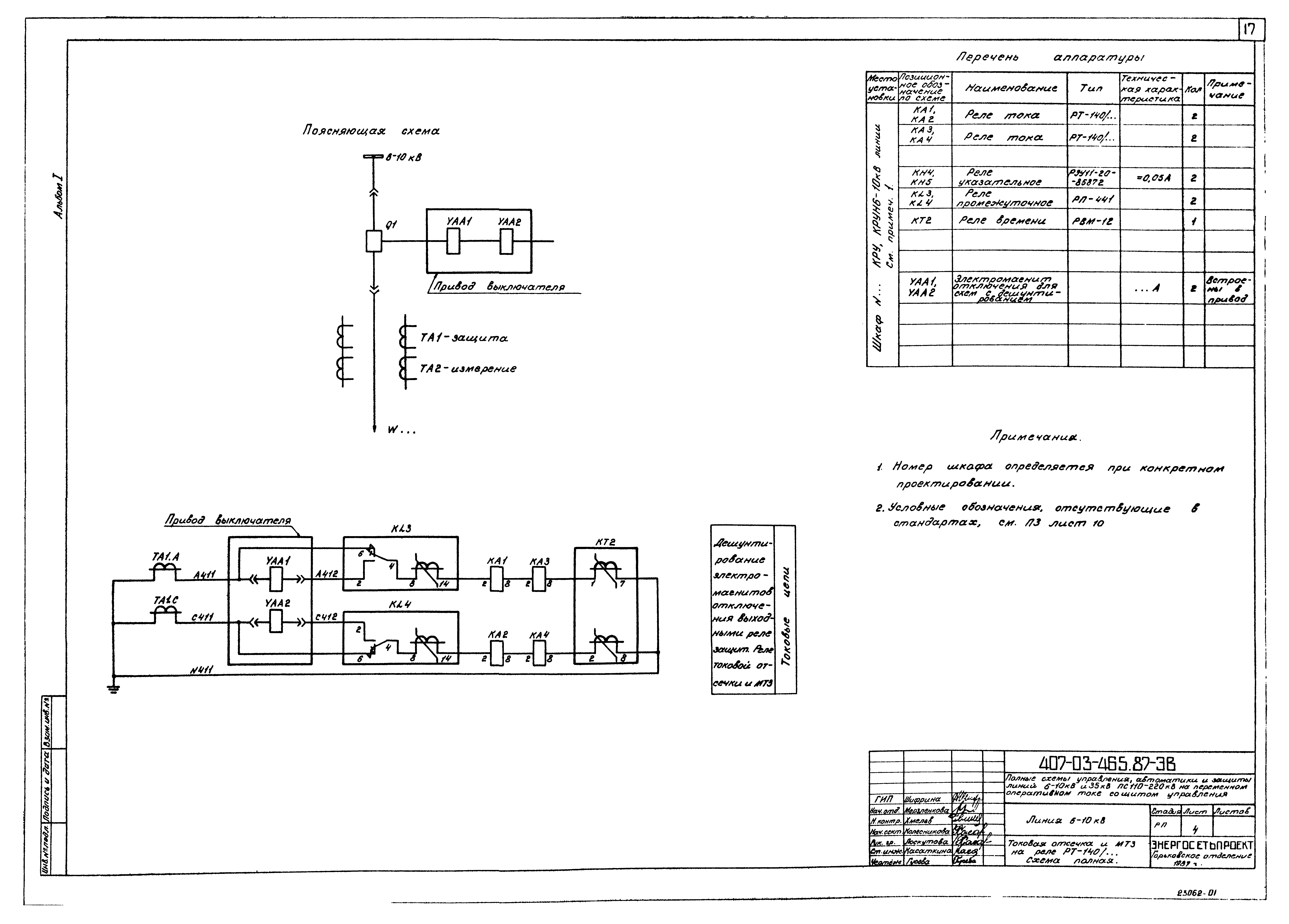
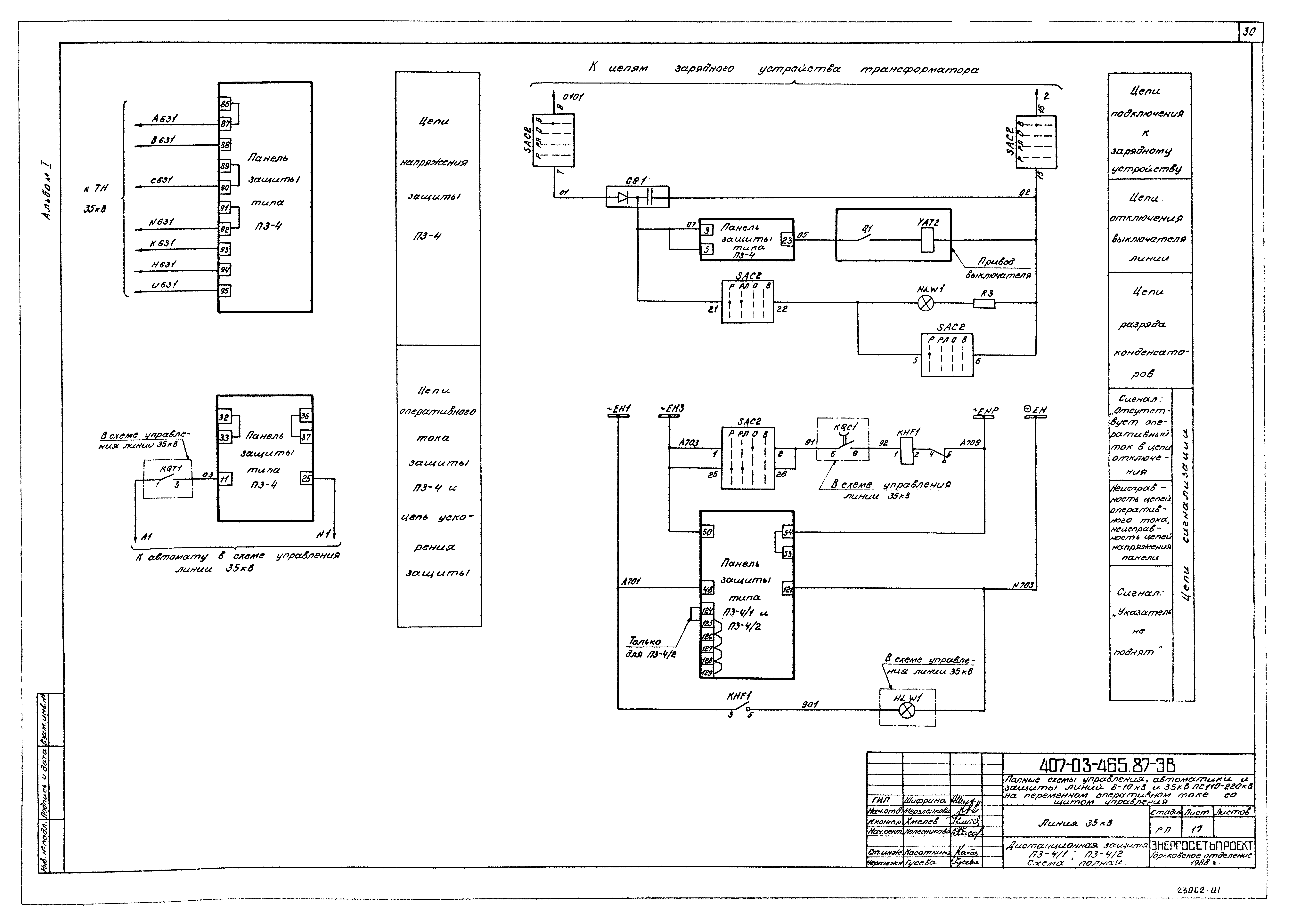
Альбом I. Пояснительная записка, схемыОбозначение: | Типовые материалы для проектирования 407-03-465.87 | Обозначение англ: | 407-03-465.87 | Статус: | cправочные материалы, мп, тпр | Название рус.: | Альбом I. Пояснительная записка, схемы | Дата добавления в базу: | 01.10.2014 | Дата актуализации: | 05.05.2017 | Дата введения: | 15.01.1988 | Оглавление: | Содержание альбома Пояснительная записка Выбор чертежей Линия 6 - 10 кВ. Управление, автоматика, сигнализация и измерение. Схема полная Линия 6 - 10 кВ. Токовая отсечка и МТЗ на реле РТ-851. Схема полная Линия 6 - 10 кВ. Токовая отсечка и МТЗ на реле РТ-1401. Схема полная Линия 6 - 10 кВ. Защита от замыканий на землю с устройством УС3-3М. Схема полная Линия 6 - 10 кВ. Защита от замыканий на землю с устройством ЗЗП-1. Схема полная Линия 6 - 10 кВ. Защита от дуговых замыканий (ЗДЗ). Схема полная Линия 35 кВ. Управление, автоматика, сигнализация и измерение. Схема полная Линия 35 кВ. Двухступенчатая токовая защита с пуском по напряжению. Схема полная Линия 35 кВ. Трехступенчатая токовая защита с комбинированной отсечкой по току и напряжению. Схема полная Линия 35 кВ. Дистанционная защита П3-4/1, П3-4/2. Схема полная Линия 35 кВ. Защита параллельных линий 35 кВ. Схема полная Привод ПП-67 выключателя С-35М-630-10. Схема электрическая принципиальная Привод выключателя ВК-10. Схема электрическая принципиальная | Разработан: | Горьковское отделение института Энергосетьпроект Минэнерго СССР
| Утверждён: | 15.01.1988 Минэнерго СССР (USSR Minenergo 7)
| Расположен в: |
| Заменяет собой: | - Типовые проектные решения 407-03-278 «Полные схемы линий 6 - 10 кВ и 35 кВ подстанций 110 - 220 кВ на переменном оперативном токе со щитом управления»
|
                                  
|