Информационная система
«Ёшкин Кот»

Скачать базу одним архивом
Скачать обновления
История создания базы
Карта сайта

Скачать Серия ПК-01-17 Выпуск VIII. Подстропильные балки с пучковой арматурой для крановых цехов и бескрановых цехов без подвесного транспортного оборудования. Рабочие чертежи

Дата актуализации: 10.08.2017

Серия ПК-01-17

Выпуск VIII. Подстропильные балки с пучковой арматурой для крановых цехов и бескрановых цехов без подвесного транспортного оборудования. Рабочие чертежи

Обозначение: Серия ПК-01-17
Обозначение англ: Series ПК-01-17
Статус:действует
Название рус.:Выпуск VIII. Подстропильные балки с пучковой арматурой для крановых цехов и бескрановых цехов без подвесного транспортного оборудования. Рабочие чертежи
Дата добавления в базу:01.09.2013
Дата актуализации:05.05.2017
Оглавление:Пояснительная записка
Примеры схем конструкций покрытий
Детали опирания стропильных и подстропильных конструкций
Пример решения продольного температурного шва с применением катковых опор
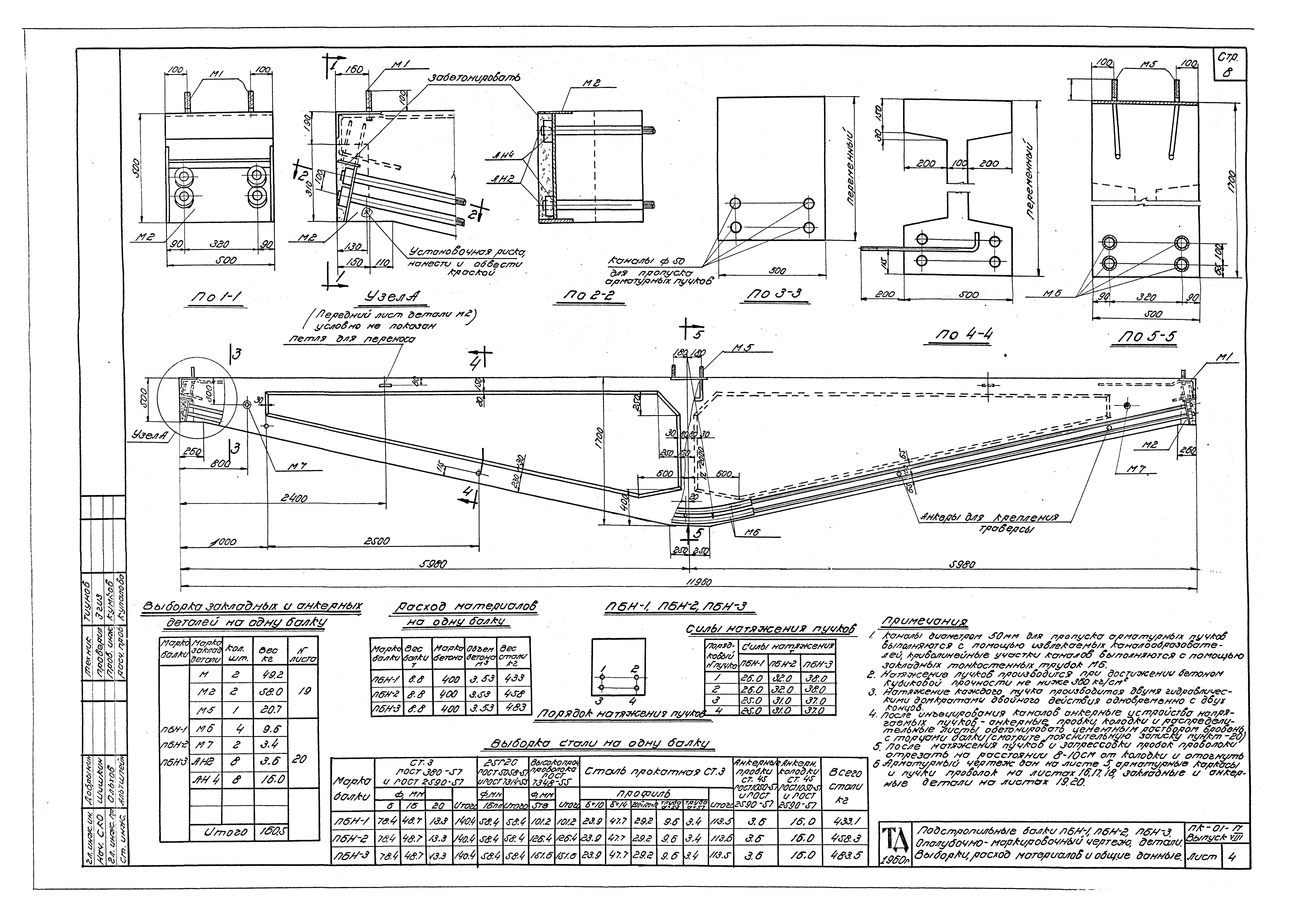
Подстропильные балки ПБН-1, ПБН-2, ПБН-3. Опалубочно-маркировочный чертеж, детали, выборки, расход материалов и общие данные
Подстропильные балки ПБН-1, ПБН-2, ПБН-3. Арматурный чертеж
Подстропильные балки ПБН-4, ПБН-5. Опалубочно-маркировочный чертеж, детали, выборки, расход материалов и общие данные
Подстропильные балки ПБН-4, ПБН-5. Арматурный чертеж
Подстропильные балки ПБН-6, ПБН-7. Опалубочно-маркировочный чертеж, детали, выборки, расход материалов и общие данные
Подстропильные балки ПБН-6, ПБН-7. Арматурный чертеж
Подстропильные балки ПБН-1к, ПБН-2к, ПБН-3к. Опалубочно-маркировочный чертеж, детали, выборки, расход материалов и общие данные
Подстропильные балки ПБН-1к, ПБН-2к, ПБН-3к. Арматурный чертеж
Подстропильные балки ПБН-4к, ПБН-5к. Опалубочно-маркировочный чертеж, детали, выборки, расход материалов и общие данные
Подстропильные балки ПБН-4к, ПБН-5к. Арматурный чертеж
Подстропильные балки ПБН-6к, ПБН-7к. Опалубочно-маркировочный чертеж, детали, выборки, расход материалов и общие данные
Подстропильные балки ПБН-6к, ПБН-7к. Арматурный чертеж
Арматурные каркасы с К-1 по К-9 и К-6А
Арматурные каркасы с К-10 по К-15 и К-14А. Спецификация
Арматурные пучки ПН-1, ПН-2, ПН-3. Спецификация
Закладные детали с М1 по М5
Закладные детали с М6 по М11 и анкерные детали АН2, АН4
Опоры 01, 02 марки С1 и С2
Опоры 01, 02, 03 марки С3, К1, К2, К3, П1, П2, П3, выборка марок и расход стали
Разработан: Промстройпроект Госстроя СССР
НИИЖБ АСиА СССР
Утверждён:08.03.1960 Госстрой СССР (Государственный комитет Совета Министров СССР по делам строительства) (USSR Gosstroy 134)
Расположен в:Техническая документация Строительство Справочные документы Типовые строительные конструкции, изделия и узлы Общероссийский строительный каталог Строительные конструкции, изделия и узлы зданий и сооружений для всех видов строительства Конструкции, изделия и узлы зданий Ограждающие конструкции Покрытия Сборные железобетонные плиты и панели
Серия ПК-01-17Серия ПК-01-17Серия ПК-01-17Серия ПК-01-17Серия ПК-01-17Серия ПК-01-17Серия ПК-01-17Серия ПК-01-17Серия ПК-01-17Серия ПК-01-17Серия ПК-01-17Серия ПК-01-17Серия ПК-01-17Серия ПК-01-17Серия ПК-01-17Серия ПК-01-17Серия ПК-01-17Серия ПК-01-17Серия ПК-01-17Серия ПК-01-17Серия ПК-01-17Серия ПК-01-17Серия ПК-01-17Серия ПК-01-17Серия ПК-01-17Серия ПК-01-17Серия ПК-01-17Серия ПК-01-17

© 2013 Ёшкин Кот :-) Карта сайта