Скачать Методический пример проекта организации строительства предприятия химической промышленностиДата актуализации: 10.08.2017
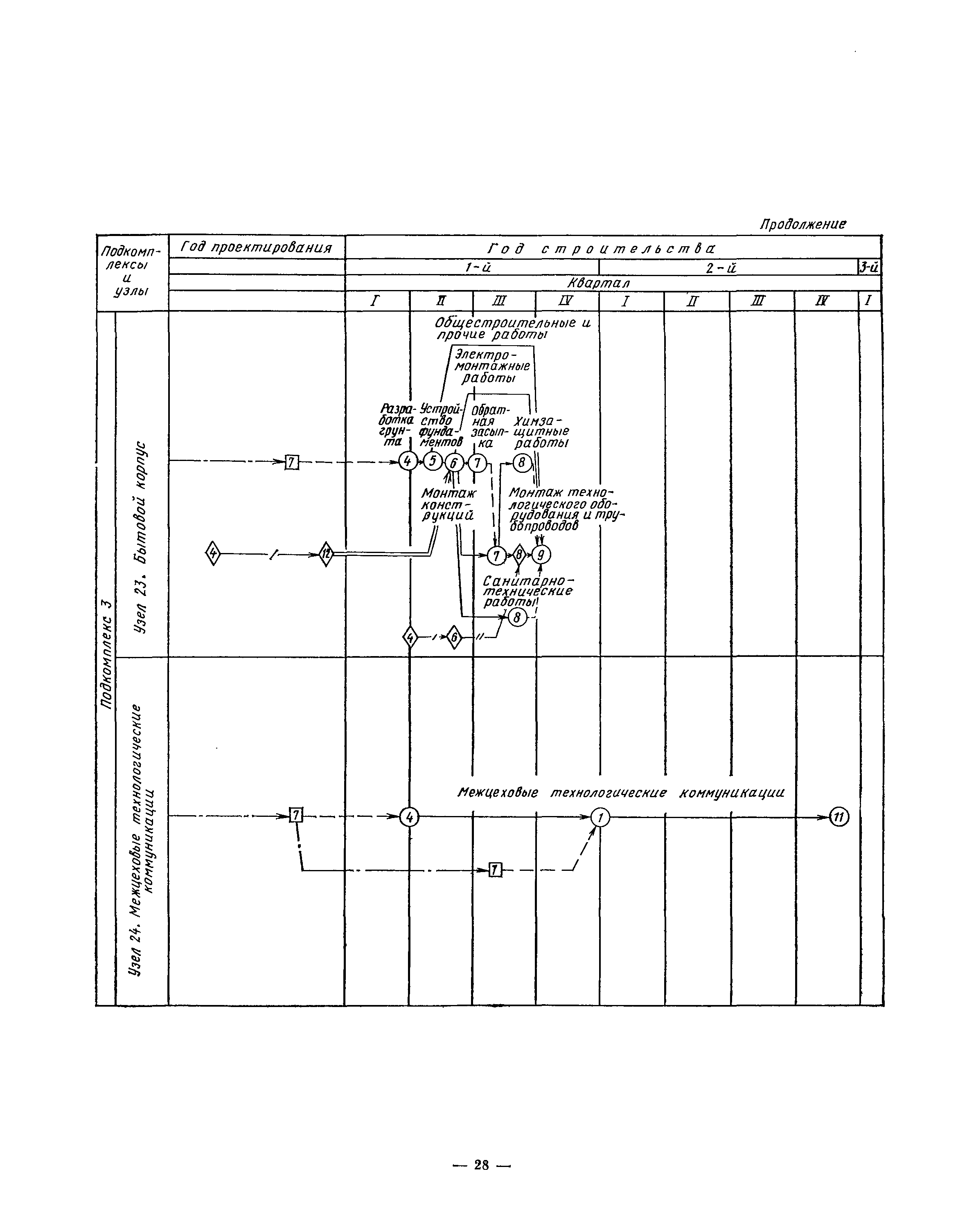
Методический пример проекта организации строительства предприятия химической промышленностиСтатус: | cправочные материалы, мп, тпр | Название рус.: | Методический пример проекта организации строительства предприятия химической промышленности | Дата добавления в базу: | 01.09.2013 | Дата актуализации: | 05.05.2017 | Область применения: | В документе рассмотрены состав и содержание проекта организации строительства предприятия химической промышленности (на примере комплекса производства серной кислоты). Проект разработан с применением узлового метода проектирования, подготовки, организации и управления строительством. Приведены методы производства работ, расчет потребности в рабочих кадрах, материально-технических ресурсах, рекомендации по структуре управления строительством, а также технико-экономические показатели строительства. Для инженерно-технических работников и строительных организаций | Оглавление: | Введение 1. Характеристика условий и объектов строительства Природно-климатическая характеристика площадки строительства Объемно-планировочные, технологические и конструктивные особенности объектов предприятия химической промышленности 2. Организационно-технологические схемы возведения основных зданий в сооружений Календарный план строительства Строительный генеральный план 3. Методы производства работ 4. Указания по составу, точности, методам и порядку построения геодезической разбивочной основы 5. Вопросы техники безопасности 6. Объемы строительных, монтажных п специальных работ 7. Потребность в строительных конструкциях, изделиях, деталях, полуфабрикатах, материалах в оборудовании 8. Потребность в основных строительных машинах 9. Потребность в рабочих кадрах, жилье и зданиях культурно-бытового назначения 10. Потребность в материально-технических ресурсах 11. Потребность в инвентарных зданиях 12. Структура управления строительством 13. Оценка экономической эффективности проекта организации строительства 14. Технико-экономические показатели Приложение 1. Комплексный, укрупненный поузловой сетевой график Приложение 2. Схема последовательности ввода узлов с учетом межузловых ограничений во времени | Разработан: | ЦНИИОМТП
| Утверждён: | ЦНИИОМТП Госстроя СССР (TsNIIOMTP, USSR Gosstroy )
| Издан: | Стройиздат (1983 г. )
| Расположен в: |
| Нормативные ссылки: | |
                               
|